Property
Account |
| Property ID: | 809425 | Abbreviated Legal Description: | THE HIGHLANDS,s Lot 15,s Blk 0;s LOT 15 L-BLA AF#4402915 LOT A L-BLA AF#4444281s |
| Geographic ID: | S8525-00-00015-0 | Agent Code: | |
| Type: | Real | | |
| Tax Area: | 700 - APPRAISER-S Whid Schl Dist, in town of Langley | Land Use Code | 11 |
| Open Space: | N | DFL | N |
| Historic Property: | N | Remodel Property: | N |
| Multi-Family Redevelopment: | N | | |
| Township: | | Section: | |
| Range: | |
Location |
| Address: | 208 BOWERY LOOP LANGLEY, WA 98260 | Mapsco: | |
| Neighborhood: | City of Langley | Map ID: | 726 |
| Neighborhood CD: | 04-L |
Owner |
| Name: | LOWE, REBECCA K | Owner ID: | 280450 |
| Mailing Address: | CHARLES E HORNIG 208 BOWERY LOOP LANGLEY, WA 98260 | % Ownership: | 100.0000000000% |
| | | Exemptions: | |
Taxes and Assessment Details
Values
| (+) Improvement Homesite Value: | + | $0 | |
| (+) Improvement Non-Homesite Value: | + | $305,816 | |
| (+) Land Homesite Value: | + | $0 | |
| (+) Land Non-Homesite Value: | + | $390,000 | |
| (+) Curr Use (HS): | + | $0 | $0 |
| (+) Curr Use (NHS): | + | $0 | $0 |
| | | -------------------------- | |
| (=) Market Value: | = | $695,816 | |
| (–) Productivity Loss: | – | $0 | |
| | | -------------------------- | |
| (=) Subtotal: | = | $695,816 | |
| (+) Senior Appraised Value: | + | $0 | |
| (+) Non-Senior Appraised Value: | + | $695,816 | |
| | | -------------------------- | |
| (=) Total Appraised Value: | = | $695,816 | |
| (–) Senior Exemption Loss: | – | $0 | |
| (–) Exemption Loss: | – | $0 | |
| | | -------------------------- | |
| (=) Taxable Value: | = | $695,816 | |
Taxing Jurisdiction
| Owner: | LOWE, REBECCA K | | |
| % Ownership: | 100.0000000000% | | |
| Total Value: | $695,816 | | |
| Tax Area: | 700 - APPRAISER-S Whid Schl Dist, in town of Langley |
| CF | Conservation Futures | 0.0316035091 | $695,816 | $695,816 | $21.99 | | |
| LANG | City of Langley | 1.0093520762 | $695,816 | $695,816 | $702.32 | | |
| LANGBOND | City of Langley BOND | 1.0326110892 | $695,816 | $695,816 | $718.51 | | |
| FIRE3 | Fire & Rescue Dist #3 S Whidbey GEN | 1.2004855531 | $695,816 | $695,816 | $835.32 | | |
| HOBOND | Hospital BOND | 0.1910887512 | $695,816 | $695,816 | $132.96 | | |
| HOGEN | Hospital GEN | 0.3902502903 | $695,816 | $695,816 | $271.54 | | |
| CE | County Current Expense | 0.3708482477 | $695,816 | $695,816 | $258.04 | | |
| ISLANDEMS | Hospital GEN (EMS) | 0.5000000000 | $695,816 | $695,816 | $347.91 | | |
| LIB | Library Sno-Isle GEN | 0.3153421757 | $695,816 | $695,816 | $219.42 | | |
| PORTWHID | Port of S Whidbey GEN | 0.1094540357 | $695,816 | $695,816 | $76.16 | | |
| SCH206BOND | School 206 BOND | 0.3161759235 | $695,816 | $695,816 | $220.00 | | |
| SCH206MO | School 206 Enrichment | 0.4547169547 | $695,816 | $695,816 | $316.40 | | |
| ST | State School | 1.3035497053 | $695,816 | $695,816 | $907.03 | | |
| ST2 | State School Part 2 | 0.8169543533 | $695,816 | $695,816 | $568.45 | | |
| SWHIDPRBD | P & R S Whidbey BOND | 0.0152817568 | $695,816 | $695,816 | $10.63 | | |
| SWHIDPRBD2 | P & R S Whidbey BOND2 | 0.0138911264 | $695,816 | $695,816 | $9.67 | | |
| SWHIDPRMT | P & R S Whidbey GEN | 0.2053334452 | $695,816 | $695,816 | $142.87 | | |
| | Total Tax Rate: | 8.2769389934 | | | | | |
| | | | | Taxes w/Current Exemptions: | $5,759.22 | | |
| | | | | Taxes w/o Exemptions: | $5,759.22 | | |
Improvement / Building
| Improvement #1: | RESIDENTIAL | State Code: | Y | 1344.0 sqft | Value: | $305,816 |
| Bathrooms: | 2 | Bedrooms: | 2 | | Ceiling: | DRYWALL PAINTED | Cooling: | HEAT PUMP/CONV/V | | Exterior Wall/Cover: | CEMENT FIBER | Floor Covering: | HARDWOOD 100% | | Floor Structure: | WOOD W/SUBFLOOR | Foundation: | CONCRETE | | Interior Finish: | DRYWALL PAINT | Plumbing Fixture Cnt: | 9 | | Roof Slope: | 4" IN 12" | Roof Structure/Cover: | CJ ASPHALT |
|
| | Type | Description | Class CD | Sub Class CD | Year Built | Area |
| | BAS | BASE/MAIN FLOOR | 3 | 0 | 2017 | 1344.0 |
| | DGR | DETACHED GARAGE | 3 | 0 | 2017 | 264.0 |
| | OWC | OPEN WOOD PORCH W/STEPS/ROOF/C | 3 | 0 | 2017 | 192.0 |
Sketch
Property Image
Land
| 1 | 14 | SQ (08001-12000) | 0.2100 | 9147.60 | 0.00 | 0.00 | 1.00 | $390,000 | $0 |
Roll Value History
| 2026 | N/A | N/A | N/A | N/A | N/A |
| 2025 | $305,816 | $390,000 | $0 | $695,816 | $695,816 |
| 2024 | $308,323 | $390,000 | $0 | $698,323 | $698,323 |
| 2023 | $310,830 | $380,000 | $0 | $690,830 | $690,830 |
| 2022 | $283,738 | $375,000 | $0 | $658,738 | $658,738 |
| 2021 | $248,698 | $350,000 | $0 | $598,698 | $598,698 |
| 2020 | $241,275 | $350,000 | $0 | $591,275 | $591,275 |
| 2019 | $177,615 | $325,000 | $0 | $502,615 | $502,615 |
| 2018 | $178,068 | $225,000 | $0 | $403,068 | $403,068 |
| 2017 | $180,779 | $225,000 | $0 | $405,779 | $405,779 |
| 2016 | $0 | $90,000 | $0 | $90,000 | $90,000 |
| 2015 | $0 | $90,000 | $0 | $90,000 | $90,000 |
| 2014 | $0 | $90,000 | $0 | $90,000 | $90,000 |
| 2013 | $0 | $90,000 | $0 | $90,000 | $90,000 |
| 2012 | $0 | $90,000 | $0 | $90,000 | $90,000 |
| 2011 | $0 | $90,000 | $0 | $90,000 | $90,000 |
| 2010 | $0 | $90,000 | $0 | $90,000 | $90,000 |
| 2009 | $0 | $90,000 | $0 | $90,000 | $90,000 |
| 2008 | $0 | $0 | $0 | $6,981 | $6,981 |
Deed and Sales History
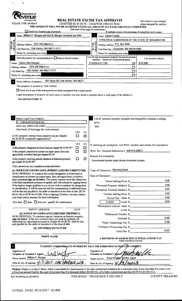
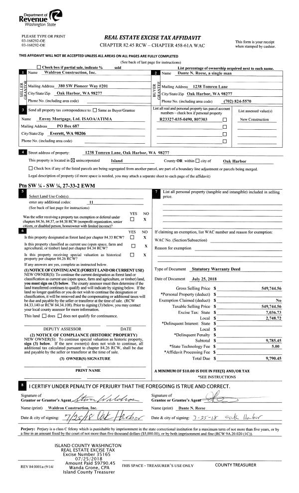
| 1 | 06/01/2018 | QCD | Quit Claim Deed | LOWE, REBECCA K | | | | | 34354 | 4445436 |
| 2 | 06/13/2017 | WD | Warranty Deed | THE HIGHLANDS AT LANGLEY | LOWE, REBECCA K | | | $380,000.00 | 29778 | 4424441 |
| 3 | 01/01/1900 | OTHER | Other - Misc. Documents | Unknown | THE HIGHLANDS AT LANGLEY, | | | $0.00 | 0 | 0 |
Payout Agreement
| No payout information available.. |