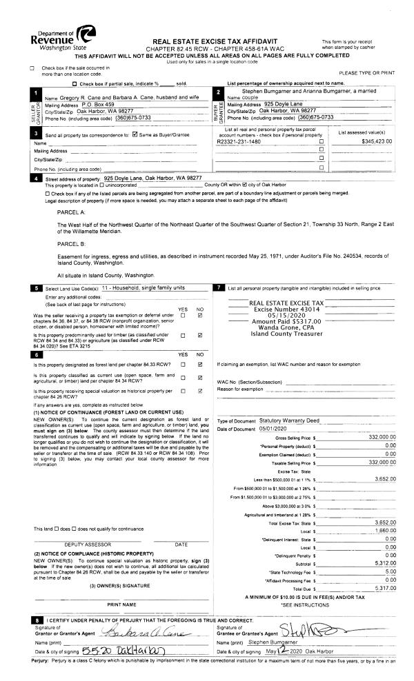
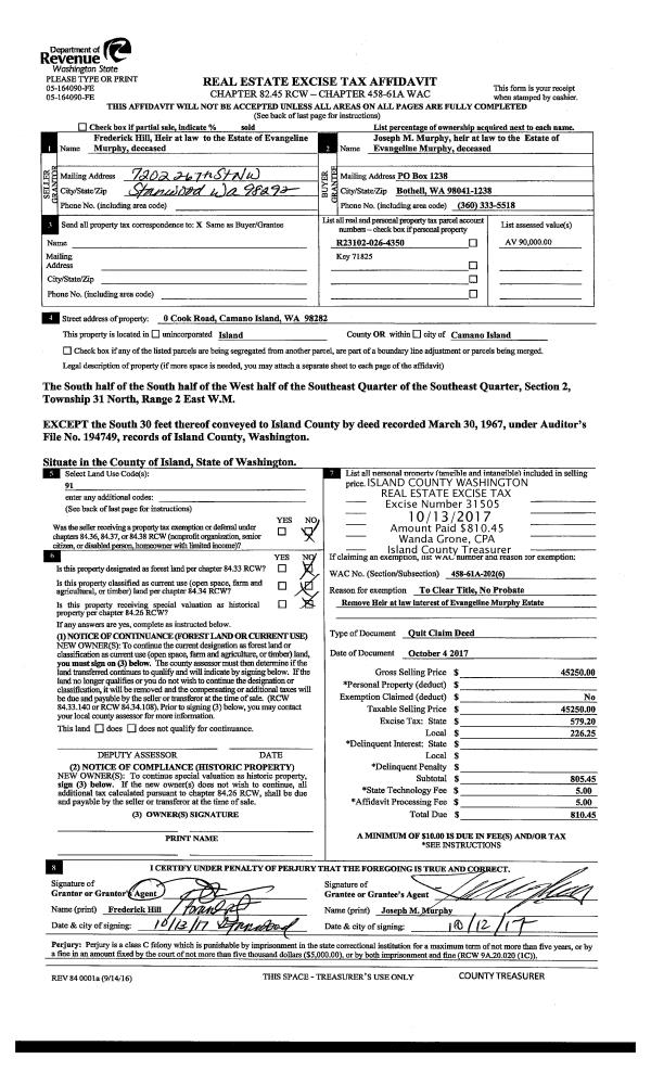
Property
Account |
| Property ID: | 809454 | Abbreviated Legal Description: | CLOVER COURT - BSP NO. 3 AMENDED AF#4400374 - THE HIGHLANDS PUD LOT 39 |
| Geographic ID: | S8525-00-00039-0 | Agent Code: | |
| Type: | Real | | |
| Tax Area: | 700 - APPRAISER-S Whid Schl Dist, in town of Langley | Land Use Code | 11 |
| Open Space: | N | DFL | N |
| Historic Property: | N | Remodel Property: | N |
| Multi-Family Redevelopment: | N | | |
| Township: | | Section: | |
| Range: | |
Location |
| Address: | 233 CLOVER CT LANGLEY, WA 98260 | Mapsco: | |
| Neighborhood: | City of Langley | Map ID: | 726 |
| Neighborhood CD: | 04-L |
Owner |
| Name: | ZECHMAN, RICHARD F. | Owner ID: | 306385 |
| Mailing Address: | SANDY K ZECHMAN 233 CLOVER CT LANGLEY, WA 98260-8033 | % Ownership: | 100.0000000000% |
| | | Exemptions: | |
Taxes and Assessment Details
Values
| (+) Improvement Homesite Value: | + | $0 | |
| (+) Improvement Non-Homesite Value: | + | $245,709 | |
| (+) Land Homesite Value: | + | $0 | |
| (+) Land Non-Homesite Value: | + | $390,000 | |
| (+) Curr Use (HS): | + | $0 | $0 |
| (+) Curr Use (NHS): | + | $0 | $0 |
| | | -------------------------- | |
| (=) Market Value: | = | $635,709 | |
| (–) Productivity Loss: | – | $0 | |
| | | -------------------------- | |
| (=) Subtotal: | = | $635,709 | |
| (+) Senior Appraised Value: | + | $0 | |
| (+) Non-Senior Appraised Value: | + | $635,709 | |
| | | -------------------------- | |
| (=) Total Appraised Value: | = | $635,709 | |
| (–) Senior Exemption Loss: | – | $0 | |
| (–) Exemption Loss: | – | $0 | |
| | | -------------------------- | |
| (=) Taxable Value: | = | $635,709 | |
Taxing Jurisdiction
| Owner: | ZECHMAN, RICHARD F. | | |
| % Ownership: | 100.0000000000% | | |
| Total Value: | $635,709 | | |
| Tax Area: | 700 - APPRAISER-S Whid Schl Dist, in town of Langley |
| CF | Conservation Futures | 0.0316035091 | $635,709 | $635,709 | $20.09 | | |
| LANG | City of Langley | 1.0093520762 | $635,709 | $635,709 | $641.65 | | |
| LANGBOND | City of Langley BOND | 1.0326110892 | $635,709 | $635,709 | $656.44 | | |
| FIRE3 | Fire & Rescue Dist #3 S Whidbey GEN | 1.2004855531 | $635,709 | $635,709 | $763.16 | | |
| HOBOND | Hospital BOND | 0.1910887512 | $635,709 | $635,709 | $121.48 | | |
| HOGEN | Hospital GEN | 0.3902502903 | $635,709 | $635,709 | $248.09 | | |
| CE | County Current Expense | 0.3708482477 | $635,709 | $635,709 | $235.75 | | |
| ISLANDEMS | Hospital GEN (EMS) | 0.5000000000 | $635,709 | $635,709 | $317.85 | | |
| LIB | Library Sno-Isle GEN | 0.3153421757 | $635,709 | $635,709 | $200.47 | | |
| PORTWHID | Port of S Whidbey GEN | 0.1094540357 | $635,709 | $635,709 | $69.58 | | |
| SCH206BOND | School 206 BOND | 0.3161759235 | $635,709 | $635,709 | $201.00 | | |
| SCH206MO | School 206 Enrichment | 0.4547169547 | $635,709 | $635,709 | $289.07 | | |
| ST | State School | 1.3035497053 | $635,709 | $635,709 | $828.68 | | |
| ST2 | State School Part 2 | 0.8169543533 | $635,709 | $635,709 | $519.35 | | |
| SWHIDPRBD | P & R S Whidbey BOND | 0.0152817568 | $635,709 | $635,709 | $9.71 | | |
| SWHIDPRBD2 | P & R S Whidbey BOND2 | 0.0138911264 | $635,709 | $635,709 | $8.83 | | |
| SWHIDPRMT | P & R S Whidbey GEN | 0.2053334452 | $635,709 | $635,709 | $130.53 | | |
| | Total Tax Rate: | 8.2769389934 | | | | | |
| | | | | Taxes w/Current Exemptions: | $5,261.73 | | |
| | | | | Taxes w/o Exemptions: | $5,261.73 | | |
Improvement / Building
| Improvement #1: | RESIDENTIAL | State Code: | Y | 890.0 sqft | Value: | $245,709 |
| Bathrooms: | 1.5 | Bedrooms: | 2 | | Ceiling: | DRY WALL SPRAYED | Cooling: | HEAT PUMP/CONV/V | | Exterior Wall/Cover: | CEMENT FIBER | Floor Covering: | VINYL TILE/HARWD 20-80 | | Floor Structure: | WOOD W/SUBFLOOR | Foundation: | CONCRETE | | Interior Finish: | DRYWALL PAINT | Plumbing Fixture Cnt: | 9 | | Roof Slope: | 6" IN 12" | Roof Structure/Cover: | CJ ASPHALT |
|
| | Type | Description | Class CD | Sub Class CD | Year Built | Area |
| | BAS | BASE/MAIN FLOOR | 3 | 0 | 2017 | 890.0 |
| | OP4 | OPEN PORCH W/CEILING-ROOF | 3 | 0 | 2017 | 112.0 |
| | AGR | ATTACHED GARAGE | 3 | 0 | 2017 | 264.0 |
Sketch
Property Image
Land
| 1 | 12 | SQ (00000-06000) | 0.0000 | 0.00 | 0.00 | 0.00 | 1.00 | $390,000 | $0 |
Roll Value History
| 2026 | N/A | N/A | N/A | N/A | N/A |
| 2025 | $245,709 | $390,000 | $0 | $635,709 | $635,709 |
| 2024 | $247,723 | $390,000 | $0 | $637,723 | $637,723 |
| 2023 | $249,736 | $380,000 | $0 | $629,736 | $629,736 |
| 2022 | $227,960 | $325,000 | $0 | $552,960 | $552,960 |
| 2021 | $199,815 | $300,000 | $0 | $499,815 | $499,815 |
| 2020 | $193,175 | $300,000 | $0 | $493,175 | $493,175 |
| 2019 | $136,853 | $225,000 | $0 | $361,853 | $361,853 |
| 2018 | $137,201 | $225,000 | $0 | $362,201 | $362,201 |
| 2017 | $66,121 | $225,000 | $0 | $291,121 | $291,121 |
| 2016 | $0 | $90,000 | $0 | $90,000 | $90,000 |
| 2015 | $0 | $90,000 | $0 | $90,000 | $90,000 |
| 2014 | $0 | $90,000 | $0 | $90,000 | $90,000 |
| 2013 | $0 | $90,000 | $0 | $90,000 | $90,000 |
| 2012 | $0 | $90,000 | $0 | $90,000 | $90,000 |
| 2011 | $0 | $90,000 | $0 | $90,000 | $90,000 |
| 2010 | $0 | $90,000 | $0 | $90,000 | $90,000 |
| 2009 | $0 | $90,000 | $0 | $90,000 | $90,000 |
| 2008 | $0 | $0 | $0 | $6,981 | $6,981 |
Deed and Sales History
| 1 | 10/06/2022 | WD | Warranty Deed | MITCHELL, SUSAN | ZECHMAN, RICHARD F. | | | $640,000.00 | 54896 | 4552704 |
| 2 | 09/23/2019 | WD | Warranty Deed | SCHMITT, BARBARA | MITCHELL, SUSAN | | | $504,000.00 | 40423 | 4472100 |
| 3 | 10/05/2017 | WD | Warranty Deed | THE HIGHLANDS AT LANGLEY | SCHMITT, BARBARA | | | $407,762.00 | 31445 | 4431796 |
| 4 | 01/01/1900 | OTHER | Other - Misc. Documents | Unknown | THE HIGHLANDS AT LANGLEY, | | | $0.00 | 0 | 0 |
Payout Agreement
| No payout information available.. |