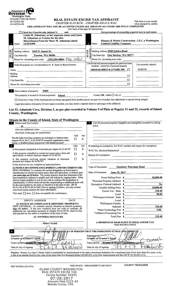
Property
Account |
| Property ID: | 809460 | Abbreviated Legal Description: | CLOVER COURT - BSP NO. 3 AMENDED AF#4400374 - THE HIGHLANDS PUD LOT 45 |
| Geographic ID: | S8525-00-00045-0 | Agent Code: | |
| Type: | Real | | |
| Tax Area: | 700 - APPRAISER-S Whid Schl Dist, in town of Langley | Land Use Code | 11 |
| Open Space: | N | DFL | N |
| Historic Property: | N | Remodel Property: | N |
| Multi-Family Redevelopment: | N | | |
| Township: | | Section: | |
| Range: | |
Location |
| Address: | 240 CLOVER CT LANGLEY, WA 98260 | Mapsco: | |
| Neighborhood: | City of Langley | Map ID: | 726 |
| Neighborhood CD: | 04-L |
Owner |
| Name: | TOMIC TTEE, SUSAN A | Owner ID: | 284495 |
| Mailing Address: | KATHLEEN M O'MALLEY 240 CLOVER CT LANGLEY, WA 98260 | % Ownership: | 100.0000000000% |
| | | Exemptions: | |
Taxes and Assessment Details
Values
| (+) Improvement Homesite Value: | + | $0 | |
| (+) Improvement Non-Homesite Value: | + | $307,458 | |
| (+) Land Homesite Value: | + | $0 | |
| (+) Land Non-Homesite Value: | + | $390,000 | |
| (+) Curr Use (HS): | + | $0 | $0 |
| (+) Curr Use (NHS): | + | $0 | $0 |
| | | -------------------------- | |
| (=) Market Value: | = | $697,458 | |
| (–) Productivity Loss: | – | $0 | |
| | | -------------------------- | |
| (=) Subtotal: | = | $697,458 | |
| (+) Senior Appraised Value: | + | $0 | |
| (+) Non-Senior Appraised Value: | + | $697,458 | |
| | | -------------------------- | |
| (=) Total Appraised Value: | = | $697,458 | |
| (–) Senior Exemption Loss: | – | $0 | |
| (–) Exemption Loss: | – | $0 | |
| | | -------------------------- | |
| (=) Taxable Value: | = | $697,458 | |
Taxing Jurisdiction
| Owner: | TOMIC TTEE, SUSAN A | | |
| % Ownership: | 100.0000000000% | | |
| Total Value: | $697,458 | | |
| Tax Area: | 700 - APPRAISER-S Whid Schl Dist, in town of Langley |
| CF | Conservation Futures | 0.0316035091 | $697,458 | $697,458 | $22.04 | | |
| LANG | City of Langley | 1.0093520762 | $697,458 | $697,458 | $703.98 | | |
| LANGBOND | City of Langley BOND | 1.0326110892 | $697,458 | $697,458 | $720.20 | | |
| FIRE3 | Fire & Rescue Dist #3 S Whidbey GEN | 1.2004855531 | $697,458 | $697,458 | $837.29 | | |
| HOBOND | Hospital BOND | 0.1910887512 | $697,458 | $697,458 | $133.28 | | |
| HOGEN | Hospital GEN | 0.3902502903 | $697,458 | $697,458 | $272.18 | | |
| CE | County Current Expense | 0.3708482477 | $697,458 | $697,458 | $258.65 | | |
| ISLANDEMS | Hospital GEN (EMS) | 0.5000000000 | $697,458 | $697,458 | $348.73 | | |
| LIB | Library Sno-Isle GEN | 0.3153421757 | $697,458 | $697,458 | $219.94 | | |
| PORTWHID | Port of S Whidbey GEN | 0.1094540357 | $697,458 | $697,458 | $76.34 | | |
| SCH206BOND | School 206 BOND | 0.3161759235 | $697,458 | $697,458 | $220.52 | | |
| SCH206MO | School 206 Enrichment | 0.4547169547 | $697,458 | $697,458 | $317.15 | | |
| ST | State School | 1.3035497053 | $697,458 | $697,458 | $909.17 | | |
| ST2 | State School Part 2 | 0.8169543533 | $697,458 | $697,458 | $569.79 | | |
| SWHIDPRBD | P & R S Whidbey BOND | 0.0152817568 | $697,458 | $697,458 | $10.66 | | |
| SWHIDPRBD2 | P & R S Whidbey BOND2 | 0.0138911264 | $697,458 | $697,458 | $9.69 | | |
| SWHIDPRMT | P & R S Whidbey GEN | 0.2053334452 | $697,458 | $697,458 | $143.21 | | |
| | Total Tax Rate: | 8.2769389934 | | | | | |
| | | | | Taxes w/Current Exemptions: | $5,772.82 | | |
| | | | | Taxes w/o Exemptions: | $5,772.82 | | |
Improvement / Building
| Improvement #1: | RESIDENTIAL | State Code: | Y | 1482.7 sqft | Value: | $307,458 |
| Bathrooms: | 2 | Bedrooms: | 2 | | Ceiling: | DRYWALL PAINTED | Cooling: | HEAT PUMP/CONV/V | | Exterior Wall/Cover: | CEMENT FIBER | Floor Covering: | HARDWOOD 100% | | Floor Structure: | WOOD W/SUBFLOOR | Foundation: | CONCRETE | | Interior Finish: | DRYWALL PAINT | Plumbing Fixture Cnt: | 9 | | Roof Slope: | 5" IN 12" | Roof Structure/Cover: | CJ ASPHALT |
|
| | Type | Description | Class CD | Sub Class CD | Year Built | Area |
| | BAS | BASE/MAIN FLOOR | 3 | 0 | 2016 | 930.0 |
| | UPS | UPPER STORY | 3 | 0 | 2016 | 552.7 |
| | AGR | ATTACHED GARAGE | 3 | 0 | 2016 | 286.0 |
Sketch
Property Image
Land
| 1 | 12 | SQ (00000-06000) | 0.0000 | 0.00 | 0.00 | 0.00 | 1.00 | $390,000 | $0 |
Roll Value History
| 2026 | N/A | N/A | N/A | N/A | N/A |
| 2025 | $307,458 | $390,000 | $0 | $697,458 | $697,458 |
| 2024 | $309,828 | $390,000 | $0 | $699,828 | $699,828 |
| 2023 | $312,367 | $380,000 | $0 | $692,367 | $692,367 |
| 2022 | $285,152 | $325,000 | $0 | $610,152 | $610,152 |
| 2021 | $249,949 | $300,000 | $0 | $549,949 | $549,949 |
| 2020 | $242,685 | $300,000 | $0 | $542,685 | $542,685 |
| 2019 | $180,038 | $225,000 | $0 | $405,038 | $405,038 |
| 2018 | $180,500 | $225,000 | $0 | $405,500 | $405,500 |
| 2017 | $181,426 | $225,000 | $0 | $406,426 | $406,426 |
| 2016 | $11,049 | $90,000 | $0 | $101,049 | $101,049 |
| 2015 | $0 | $90,000 | $0 | $90,000 | $90,000 |
| 2014 | $0 | $90,000 | $0 | $90,000 | $90,000 |
| 2013 | $0 | $90,000 | $0 | $90,000 | $90,000 |
| 2012 | $0 | $90,000 | $0 | $90,000 | $90,000 |
| 2011 | $0 | $90,000 | $0 | $90,000 | $90,000 |
| 2010 | $0 | $90,000 | $0 | $90,000 | $90,000 |
| 2009 | $0 | $90,000 | $0 | $90,000 | $90,000 |
| 2008 | $0 | $0 | $0 | $6,981 | $6,981 |
Deed and Sales History
| 1 | 04/04/2018 | QCD | Quit Claim Deed | TOMIC, SUSAN A | TOMIC TTEE, SUSAN A | | | $0.00 | 33571 | 4442066 |
| 2 | 04/04/2018 | QCD | Quit Claim Deed | TOMIC, JTWROS, SUSAN A | TOMIC, SUSAN A | | | $0.00 | 33570 | 4442065 |
| 3 | 01/23/2017 | WD | Warranty Deed | THE HIGHLANDS AT LANGLEY | TOMIC, JTWROS, SUSAN A | | | $417,408.00 | 28149 | 4417526 |
| 4 | 01/01/1900 | OTHER | Other - Misc. Documents | Unknown | THE HIGHLANDS AT LANGLEY, | | | $0.00 | 0 | 0 |
Payout Agreement
| No payout information available.. |