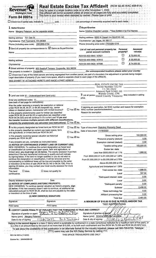
Property
Account |
| Property ID: | 809466 | Abbreviated Legal Description: | IN N/2 SEC 2: BG NECR PLAT OF MARINERS COVE #3 S01*W160' N73*E426.85' N01*E256.56' TPB S80*W78.58' S62*W187' S33*W24.55' N01*E357.24' S89*E253.30' S01*W234' TPB TGW & SUB EZ (TRACT B SP 77-93) |
| Geographic ID: | R23202-424-3000 | Agent Code: | |
| Type: | Real | | |
| Tax Area: | 112 - APPRAISER-OH Schl Dist, outside OH, improved, greater than 1 acre | Land Use Code | 11 |
| Open Space: | N | DFL | N |
| Historic Property: | N | Remodel Property: | N |
| Multi-Family Redevelopment: | N | | |
| Township: | 32 | Section: | 02 |
| Range: | R2 |
Location |
| Address: | | Mapsco: | |
| Neighborhood: | Cycle 6 | Map ID: | 539 |
| Neighborhood CD: | 6 |
Owner |
| Name: | MILES TTEE, NANCY J | Owner ID: | 304533 |
| Mailing Address: | 1815 WATERFORD PL OAK HARBOR, WA 98277 | % Ownership: | 100.0000000000% |
| | | Exemptions: | |
Taxes and Assessment Details
Values
| (+) Improvement Homesite Value: | + | $0 | |
| (+) Improvement Non-Homesite Value: | + | $404,603 | |
| (+) Land Homesite Value: | + | $0 | |
| (+) Land Non-Homesite Value: | + | $300,000 | |
| (+) Curr Use (HS): | + | $0 | $0 |
| (+) Curr Use (NHS): | + | $0 | $0 |
| | | -------------------------- | |
| (=) Market Value: | = | $704,603 | |
| (–) Productivity Loss: | – | $0 | |
| | | -------------------------- | |
| (=) Subtotal: | = | $704,603 | |
| (+) Senior Appraised Value: | + | $0 | |
| (+) Non-Senior Appraised Value: | + | $704,603 | |
| | | -------------------------- | |
| (=) Total Appraised Value: | = | $704,603 | |
| (–) Senior Exemption Loss: | – | $0 | |
| (–) Exemption Loss: | – | $0 | |
| | | -------------------------- | |
| (=) Taxable Value: | = | $704,603 | |
Taxing Jurisdiction
| Owner: | MILES TTEE, NANCY J | | |
| % Ownership: | 100.0000000000% | | |
| Total Value: | $704,603 | | |
| Tax Area: | 112 - APPRAISER-OH Schl Dist, outside OH, improved, greater than 1 acre |
| CF | Conservation Futures | 0.0316035091 | $704,603 | $704,603 | $22.27 | | |
| CEM1 | Cemetery #1 | 0.0040320932 | $704,603 | $704,603 | $2.84 | | |
| FIRE2 | Fire & Rescue Dist #2 N Whidbey GEN | 0.5475949600 | $704,603 | $704,603 | $385.84 | | |
| HOBOND | Hospital BOND | 0.1910887512 | $704,603 | $704,603 | $134.64 | | |
| HOGEN | Hospital GEN | 0.3902502903 | $704,603 | $704,603 | $274.97 | | |
| CE | County Current Expense | 0.3708482477 | $704,603 | $704,603 | $261.30 | | |
| CR | County Roads | 0.4584763726 | $704,603 | $704,603 | $323.04 | | |
| ISLANDEMS | Hospital GEN (EMS) | 0.5000000000 | $704,603 | $704,603 | $352.30 | | |
| LIB | Library Sno-Isle GEN | 0.3153421757 | $704,603 | $704,603 | $222.19 | | |
| NWHIDPRMT | P & R N Whidbey GEN | 0.2004466701 | $704,603 | $704,603 | $141.24 | | |
| SCH201MO | School 201 Enrichment | 1.8559231640 | $704,603 | $704,603 | $1,307.69 | | |
| ST | State School | 1.3035497053 | $704,603 | $704,603 | $918.49 | | |
| ST2 | State School Part 2 | 0.8169543533 | $704,603 | $704,603 | $575.63 | | |
| | Total Tax Rate: | 6.9861102925 | | | | | |
| | | | | Taxes w/Current Exemptions: | $4,922.44 | | |
| | | | | Taxes w/o Exemptions: | $4,922.44 | | |
Improvement / Building
| Improvement #1: | RESIDENTIAL | State Code: | Y | 2519.6 sqft | Value: | $404,603 |
| Bathrooms: | 2.5 | Bedrooms: | 3 | | Ceiling: | DRYWALL PAINTED | Cooling: | HEAT PUMP/CONV/V | | Exterior Wall/Cover: | WOOD SIDING | Floor Covering: | CARPET/VINYL 80-20 | | Floor Structure: | WOOD W/SUBFLOOR | Foundation: | CONCRETE | | Interior Finish: | DRYWALL PAINT | Plumbing Fixture Cnt: | 12 | | Roof Slope: | 5" IN 12" | Roof Structure/Cover: | BEAM ASPHALT |
|
| | Type | Description | Class CD | Sub Class CD | Year Built | Area |
| | BAS | BASE/MAIN FLOOR | 4 | 0 | 1976 | 1567.6 |
| | BGR | BASEMENT GARAGE | 4 | 0 | 1976 | 672.0 |
| | OWP | OPEN WOOD PORCH W/STEPS | 4 | 0 | 1976 | 797.5 |
| | OWP | OPEN WOOD PORCH W/STEPS | 4 | 0 | 1976 | 32.3 |
| | OP4 | OPEN PORCH W/CEILING-ROOF | 4 | 0 | 1976 | 13.4 |
| | DWN | DOWNSTAIRS LIVING AREA | 4 | 0 | 1976 | 952.0 |
| | OP3 | OPEN PORCH W/ROOF | 4 | 0 | 1976 | 240.0 |
Sketch
Property Image
Land
| 1 | 17 | AC (01.01-02.00) | 1.6200 | 70567.20 | 0.00 | 0.00 | 1.00 | $300,000 | $0 |
Roll Value History
| 2026 | N/A | N/A | N/A | N/A | N/A |
| 2025 | $404,603 | $300,000 | $0 | $704,603 | $704,603 |
| 2024 | $410,530 | $280,000 | $0 | $690,530 | $690,530 |
| 2023 | $416,457 | $270,000 | $0 | $686,457 | $686,457 |
| 2022 | $338,741 | $250,000 | $0 | $588,741 | $588,741 |
| 2021 | $298,864 | $200,000 | $0 | $498,864 | $498,864 |
| 2020 | $292,239 | $200,000 | $0 | $492,239 | $492,239 |
| 2019 | $219,306 | $260,000 | $0 | $479,306 | $479,306 |
| 2018 | $220,077 | $250,000 | $0 | $470,077 | $470,077 |
| 2017 | $221,615 | $250,000 | $0 | $471,615 | $471,615 |
| 2016 | $194,828 | $150,000 | $0 | $344,828 | $344,828 |
| 2015 | $197,922 | $150,000 | $0 | $347,922 | $347,922 |
| 2014 | $201,012 | $167,400 | $0 | $368,412 | $368,412 |
| 2013 | $204,104 | $167,400 | $0 | $371,504 | $371,504 |
| 2012 | $207,198 | $167,400 | $0 | $374,598 | $374,598 |
| 2011 | $210,290 | $186,000 | $0 | $396,290 | $396,290 |
| 2010 | $216,721 | $186,000 | $0 | $402,721 | $402,721 |
| 2009 | $226,283 | $155,000 | $0 | $381,283 | $381,283 |
| 2008 | $0 | $0 | $0 | $320,543 | $320,543 |
Deed and Sales History
| 1 | 03/29/2022 | QCD | Quit Claim Deed | MILES, NANCY J | MILES TTEE, NANCY J | | | $0.00 | 52508 | 4542418 |
| 2 | 03/29/2022 | PRD | Personal Representatives Deed | MILES, ROBERT W | MILES TTEE, NANCY J | | | $0.00 | 52506 | 4542417 |
| 3 | 10/30/2008 | SEG | DNU - Segregation | Unknown | MILES, ROBERT W | | | $0.00 | 80991 | 0 |
Payout Agreement
| No payout information available.. |