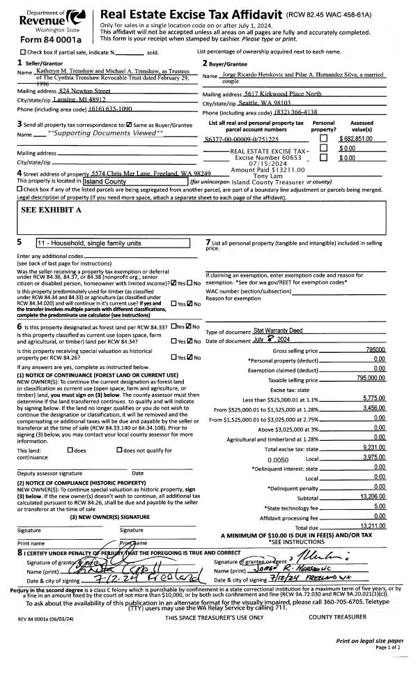
Property
Account |
| Property ID: | 809482 | Abbreviated Legal Description: | ELY 408.15' FOLL DESC: NW SE EX FOLL DESC TR: BG SWCR SD NW SE N ALG WLN NW SE 30' E PARA/W SD SLN NW SE 530' NLY PARA/W WLN SD NW SE 220' ELN PARA/W SLN SD NW SE 808' M/L TO ELN SD NW SE S ALG SD ELN 250' M/L TO SE CR SD NW SE W TPB |
| Geographic ID: | R13205-212-3760 | Agent Code: | |
| Type: | Real | | |
| Tax Area: | 112 - APPRAISER-OH Schl Dist, outside OH, improved, greater than 1 acre | Land Use Code | 83 |
| Open Space: | Y | DFL | N |
| Historic Property: | N | Remodel Property: | N |
| Multi-Family Redevelopment: | N | | |
| Township: | 32 | Section: | 05 |
| Range: | R1 |
Location |
| Address: | 2400 ZYLSTRA RD OAK HARBOR, WA 98277 | Mapsco: | |
| Neighborhood: | Cycle 1 | Map ID: | 99 |
| Neighborhood CD: | 1 |
Owner |
| Name: | JONES, BRIAN T | Owner ID: | 252335 |
| Mailing Address: | DONNA A JONES 2390 ZYLSTRA RD OAK HARBOR, WA 98277 | % Ownership: | 100.0000000000% |
| | | Exemptions: | |
Taxes and Assessment Details
Values
| (+) Improvement Homesite Value: | + | $0 | |
| (+) Improvement Non-Homesite Value: | + | $709,357 | |
| (+) Land Homesite Value: | + | $0 | |
| (+) Land Non-Homesite Value: | + | $277,778 | |
| (+) Curr Use (HS): | + | $0 | $0 |
| (+) Curr Use (NHS): | + | $72,222 | $3,055 |
| | | -------------------------- | |
| (=) Market Value: | = | $1,059,357 | |
| (–) Productivity Loss: | – | $69,167 | |
| | | -------------------------- | |
| (=) Subtotal: | = | $990,190 | |
| (+) Senior Appraised Value: | + | $0 | |
| (+) Non-Senior Appraised Value: | + | $990,190 | |
| | | -------------------------- | |
| (=) Total Appraised Value: | = | $990,190 | |
| (–) Senior Exemption Loss: | – | $0 | |
| (–) Exemption Loss: | – | $0 | |
| | | -------------------------- | |
| (=) Taxable Value: | = | $990,190 | |
Taxing Jurisdiction
| Owner: | JONES, BRIAN T | | |
| % Ownership: | 100.0000000000% | | |
| Total Value: | $1,059,357 | | |
| Tax Area: | 112 - APPRAISER-OH Schl Dist, outside OH, improved, greater than 1 acre |
| CF | Conservation Futures | 0.0316035091 | $990,190 | $990,190 | $31.29 | | |
| CEM1 | Cemetery #1 | 0.0040320932 | $990,190 | $990,190 | $3.99 | | |
| FIRE2 | Fire & Rescue Dist #2 N Whidbey GEN | 0.5475949600 | $990,190 | $990,190 | $542.22 | | |
| HOBOND | Hospital BOND | 0.1910887512 | $990,190 | $990,190 | $189.21 | | |
| HOGEN | Hospital GEN | 0.3902502903 | $990,190 | $990,190 | $386.42 | | |
| CE | County Current Expense | 0.3708482477 | $990,190 | $990,190 | $367.21 | | |
| CR | County Roads | 0.4584763726 | $990,190 | $990,190 | $453.98 | | |
| ISLANDEMS | Hospital GEN (EMS) | 0.5000000000 | $990,190 | $990,190 | $495.10 | | |
| LIB | Library Sno-Isle GEN | 0.3153421757 | $990,190 | $990,190 | $312.25 | | |
| NWHIDPRMT | P & R N Whidbey GEN | 0.2004466701 | $990,190 | $990,190 | $198.48 | | |
| SCH201MO | School 201 Enrichment | 1.8559231640 | $990,190 | $990,190 | $1,837.72 | | |
| ST | State School | 1.3035497053 | $990,190 | $990,190 | $1,290.76 | | |
| ST2 | State School Part 2 | 0.8169543533 | $990,190 | $990,190 | $808.94 | | |
| | Total Tax Rate: | 6.9861102925 | | | | | |
| | | | | Taxes w/Current Exemptions: | $6,917.57 | | |
| | | | | Taxes w/o Exemptions: | $6,917.57 | | |
Improvement / Building
| Improvement #1: | RESIDENTIAL | State Code: | Y | 3383.0 sqft | Value: | $709,357 |
| Bathrooms: | 3.5 | Bedrooms: | 4 | | Ceiling: | DRYWALL PAINTED | Cooling: | FHA AND AC | | Exterior Wall/Cover: | CEMENT FIBER | Floor Covering: | HARDWOOD/CARP 80-20 | | Floor Structure: | WOOD W/SUBFLOOR | Foundation: | CONCRETE | | Interior Finish: | DRYWALL PAINT | Plumbing Fixture Cnt: | 16 | | Roof Slope: | 8" IN 12" | Roof Structure/Cover: | CJ ALUMINIUM HEAVY |
|
| | Type | Description | Class CD | Sub Class CD | Year Built | Area |
| | BAS | BASE/MAIN FLOOR | 4 | 0 | 2002 | 1895.0 |
| | OWP | OPEN WOOD PORCH W/STEPS | 4 | 0 | 2002 | 254.0 |
| | OP4 | OPEN PORCH W/CEILING-ROOF | 4 | 0 | 2002 | 64.0 |
| | BIG | BUILT IN GARAGE | 4 | 0 | 2002 | 407.0 |
| | OWP | OPEN WOOD PORCH W/STEPS | 4 | 0 | 2002 | 36.0 |
| | DWN | DOWNSTAIRS LIVING AREA | 4 | 0 | 2002 | 1488.0 |
| | OP4 | OPEN PORCH W/CEILING-ROOF | 4 | 0 | 2002 | 180.0 |
| | UTY | STORAGE/UTILITY | 4 | 0 | 2002 | 216.0 |
Sketch
Property Image
Land
| 1 | HS | HOMESITE | 1.0000 | 43560.00 | 0.00 | 0.00 | 1.00 | $220,000 | $0 |
| 2 | 83 | OPEN AGRICULTURE | 5.0000 | 217800.00 | 0.00 | 0.00 | 1.00 | $72,222 | $3,055 |
| 3 | 91 | UNDEVELOPED LAND-METES AND BOUNDS | 4.0000 | 174240.00 | 0.00 | 0.00 | 1.00 | $57,778 | $0 |
Roll Value History
| 2026 | N/A | N/A | N/A | N/A | N/A |
| 2025 | $709,357 | $350,000 | $3,055 | $990,190 | $990,190 |
| 2024 | $715,318 | $310,000 | $3,055 | $967,262 | $967,262 |
| 2023 | $677,565 | $290,000 | $3,055 | $825,620 | $825,620 |
| 2022 | $620,716 | $270,000 | $3,055 | $758,771 | $758,771 |
| 2021 | $546,011 | $255,000 | $3,055 | $676,566 | $676,566 |
| 2020 | $532,712 | $200,000 | $3,055 | $635,767 | $635,767 |
| 2019 | $427,324 | $230,000 | $3,055 | $545,379 | $545,379 |
| 2018 | $428,522 | $170,000 | $3,055 | $516,577 | $516,577 |
| 2017 | $415,903 | $160,000 | $3,055 | $498,958 | $498,958 |
| 2016 | $420,855 | $160,000 | $6,109 | $426,964 | $426,964 |
| 2015 | $425,807 | $150,000 | $6,109 | $431,916 | $431,916 |
| 2014 | $430,758 | $150,000 | $6,109 | $436,867 | $436,867 |
| 2013 | $435,708 | $127,500 | $6,109 | $441,817 | $441,817 |
| 2012 | $440,660 | $127,500 | $6,109 | $446,769 | $446,769 |
| 2011 | $468,273 | $150,000 | $6,109 | $474,382 | $474,382 |
| 2010 | $407,300 | $150,000 | $6,109 | $413,409 | $413,409 |
| 2009 | $420,113 | $200,000 | $6,109 | $426,222 | $426,222 |
| 2008 | $0 | $0 | $0 | $431,014 | $431,014 |
Deed and Sales History
| 1 | 08/20/2010 | WD | Warranty Deed | VANDERSTOEP, JAMES | JONES, BRIAN T | | | $550,000.00 | 2156 | 4279863 |
| 2 | 11/07/2008 | SEG | DNU - Segregation | Unknown | VANDERSTOEP, JAMES | | | $0.00 | 81016 | 0 |
Payout Agreement
| No payout information available.. |