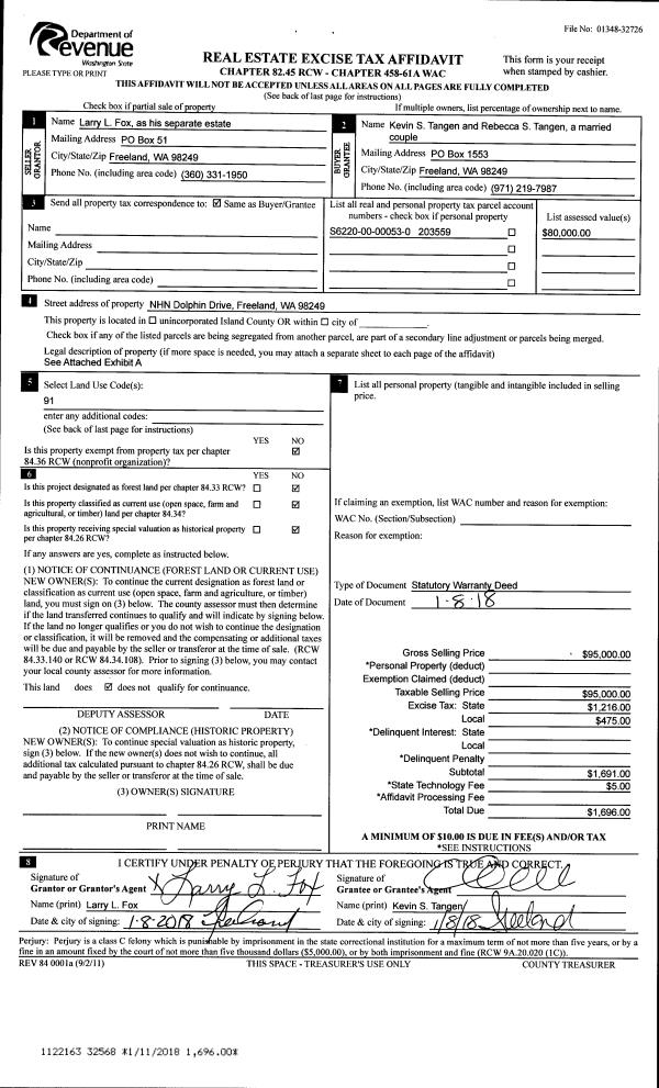
Property
Account |
| Property ID: | 809501 | Abbreviated Legal Description: | LOT 1 SP 156-00.32909.182-0250 AF#4239603 |
| Geographic ID: | R32909-197-0300 | Agent Code: | |
| Type: | Real | | |
| Tax Area: | 712 - APPRAISER-S Whid Schl Dist, outside Langley, improved, greater than 1 acre | Land Use Code | 11 |
| Open Space: | N | DFL | N |
| Historic Property: | N | Remodel Property: | N |
| Multi-Family Redevelopment: | N | | |
| Township: | 29 | Section: | 09 |
| Range: | R3 |
Location |
| Address: | 5453 CRAWFORD RD LANGLEY, WA 98260 | Mapsco: | |
| Neighborhood: | Cycle 4 | Map ID: | 750 |
| Neighborhood CD: | 4 |
Owner |
| Name: | IZETT, CRAIG | Owner ID: | 192851 |
| Mailing Address: | KATHLEEN IZETT PO BOX 752 LANGLEY, WA 98260-0752 | % Ownership: | 100.0000000000% |
| | | Exemptions: | |
Taxes and Assessment Details
Values
| (+) Improvement Homesite Value: | + | $0 | |
| (+) Improvement Non-Homesite Value: | + | $250,372 | |
| (+) Land Homesite Value: | + | $0 | |
| (+) Land Non-Homesite Value: | + | $380,000 | |
| (+) Curr Use (HS): | + | $0 | $0 |
| (+) Curr Use (NHS): | + | $0 | $0 |
| | | -------------------------- | |
| (=) Market Value: | = | $630,372 | |
| (–) Productivity Loss: | – | $0 | |
| | | -------------------------- | |
| (=) Subtotal: | = | $630,372 | |
| (+) Senior Appraised Value: | + | $0 | |
| (+) Non-Senior Appraised Value: | + | $630,372 | |
| | | -------------------------- | |
| (=) Total Appraised Value: | = | $630,372 | |
| (–) Senior Exemption Loss: | – | $0 | |
| (–) Exemption Loss: | – | $0 | |
| | | -------------------------- | |
| (=) Taxable Value: | = | $630,372 | |
Taxing Jurisdiction
| Owner: | IZETT, CRAIG | | |
| % Ownership: | 100.0000000000% | | |
| Total Value: | $630,372 | | |
| Tax Area: | 712 - APPRAISER-S Whid Schl Dist, outside Langley, improved, greater than 1 acre |
| CF | Conservation Futures | 0.0316035091 | $630,372 | $630,372 | $19.92 | | |
| FIRE3 | Fire & Rescue Dist #3 S Whidbey GEN | 1.2004855531 | $630,372 | $630,372 | $756.75 | | |
| HOBOND | Hospital BOND | 0.1910887512 | $630,372 | $630,372 | $120.46 | | |
| HOGEN | Hospital GEN | 0.3902502903 | $630,372 | $630,372 | $246.00 | | |
| CE | County Current Expense | 0.3708482477 | $630,372 | $630,372 | $233.77 | | |
| CR | County Roads | 0.4584763726 | $630,372 | $630,372 | $289.01 | | |
| ISLANDEMS | Hospital GEN (EMS) | 0.5000000000 | $630,372 | $630,372 | $315.19 | | |
| LIB | Library Sno-Isle GEN | 0.3153421757 | $630,372 | $630,372 | $198.78 | | |
| PORTWHID | Port of S Whidbey GEN | 0.1094540357 | $630,372 | $630,372 | $69.00 | | |
| SCH206BOND | School 206 BOND | 0.3161759235 | $630,372 | $630,372 | $199.31 | | |
| SCH206MO | School 206 Enrichment | 0.4547169547 | $630,372 | $630,372 | $286.64 | | |
| ST | State School | 1.3035497053 | $630,372 | $630,372 | $821.72 | | |
| ST2 | State School Part 2 | 0.8169543533 | $630,372 | $630,372 | $514.99 | | |
| SWHIDPRBD | P & R S Whidbey BOND | 0.0152817568 | $630,372 | $630,372 | $9.63 | | |
| SWHIDPRBD2 | P & R S Whidbey BOND2 | 0.0138911264 | $630,372 | $630,372 | $8.76 | | |
| SWHIDPRMT | P & R S Whidbey GEN | 0.2053334452 | $630,372 | $630,372 | $129.44 | | |
| | Total Tax Rate: | 6.6934522006 | | | | | |
| | | | | Taxes w/Current Exemptions: | $4,219.37 | | |
| | | | | Taxes w/o Exemptions: | $4,219.37 | | |
Improvement / Building
| Improvement #1: | RESIDENTIAL | State Code: | Y | 846.0 sqft | Value: | $250,372 |
| Bathrooms: | 1 | Bedrooms: | 1 | | Ceiling: | DRYWALL PAINTED | Exterior Wall/Cover: | VINYL | | Floor Covering: | CARPET/VINYL 80-20 | Floor Structure: | SLAB ON GRADE | | Foundation: | SLAB | Heating: | WALL HEAT ELECTRIC | | Interior Finish: | DRYWALL PAINT | Plumbing Fixture Cnt: | 6 | | Roof Slope: | 4" IN 12" | Roof Structure/Cover: | STEEL TERNE |
|
| | Type | Description | Class CD | Sub Class CD | Year Built | Area |
| | BAS | BASE/MAIN FLOOR | 3 | 0 | 2000 | 846.0 |
| | oPOL | POLE BARN | 3 | 0 | 2000 | 0.0 |
| | oCB2 | CABIN FIN | 3 | 0 | 2000 | 0.0 |
| | OWP | OPEN WOOD PORCH W/STEPS | 3 | 0 | 2000 | 192.0 |
| Improvement #2: | RESIDENTIAL | State Code: | Y | 0.0 sqft | Value: | $0 |
| | Type | Description | Class CD | Sub Class CD | Year Built | Area |
| | BAS | BASE/MAIN FLOOR | 3 | 0 | 2024 | 0.0 |
| | UPS | UPPER STORY | 3 | 0 | 2024 | 0.0 |
| | AGR | ATTACHED GARAGE | 3 | 0 | 2024 | 0.0 |
| | DWN | DOWNSTAIRS LIVING AREA | 3 | 0 | 2024 | 0.0 |
| | OWP | OPEN WOOD PORCH W/STEPS | 3 | 0 | 2024 | 0.0 |
| | OWR | OPEN WOOD PORCH W/STEPS/ROOF | 3 | 0 | 2024 | 0.0 |
Sketch
Property Image
Land
| 1 | 32 | AC (03.01-09.99) | 4.6900 | 0.00 | 0.00 | 0.00 | 1.00 | $380,000 | $0 |
Roll Value History
| 2026 | N/A | N/A | N/A | N/A | N/A |
| 2025 | $250,372 | $380,000 | $0 | $630,372 | $630,372 |
| 2024 | $252,345 | $350,000 | $0 | $602,345 | $602,345 |
| 2023 | $254,317 | $330,000 | $0 | $584,317 | $584,317 |
| 2022 | $240,960 | $290,000 | $0 | $530,960 | $530,960 |
| 2021 | $223,348 | $230,000 | $0 | $453,348 | $453,348 |
| 2020 | $220,265 | $190,000 | $0 | $410,265 | $410,265 |
| 2019 | $183,428 | $250,000 | $0 | $433,428 | $433,428 |
| 2018 | $183,691 | $210,000 | $0 | $393,691 | $393,691 |
| 2017 | $180,908 | $190,000 | $0 | $370,908 | $370,908 |
| 2016 | $181,930 | $135,000 | $0 | $316,930 | $316,930 |
| 2015 | $182,951 | $135,000 | $0 | $317,951 | $317,951 |
| 2014 | $183,972 | $126,630 | $0 | $310,602 | $310,602 |
| 2013 | $184,993 | $150,080 | $0 | $335,073 | $335,073 |
| 2012 | $186,014 | $150,080 | $0 | $336,094 | $336,094 |
| 2011 | $187,036 | $150,080 | $0 | $337,116 | $337,116 |
| 2010 | $188,834 | $150,080 | $0 | $338,914 | $338,914 |
| 2009 | $196,314 | $206,360 | $0 | $402,674 | $402,674 |
| 2008 | $0 | $0 | $0 | $295,880 | $295,880 |
Deed and Sales History
| 1 | 04/29/2021 | WD | Warranty Deed | DOWDELL, JON-PAUL | IZETT, CRAIG | | | $500,000.00 | 48060 | 4518044 |
| 2 | 10/02/2017 | WD | Warranty Deed | ENGH, DAVID & CAROLE | DOWDELL, JON-PAUL | | | $450,000.00 | 31371 | 4431363 |
| 3 | 01/01/1900 | OTHER | Other - Misc. Documents | Unknown | ENGH, DAVID & CAROLE | | | $0.00 | 0 | 0 |
Payout Agreement
| No payout information available.. |