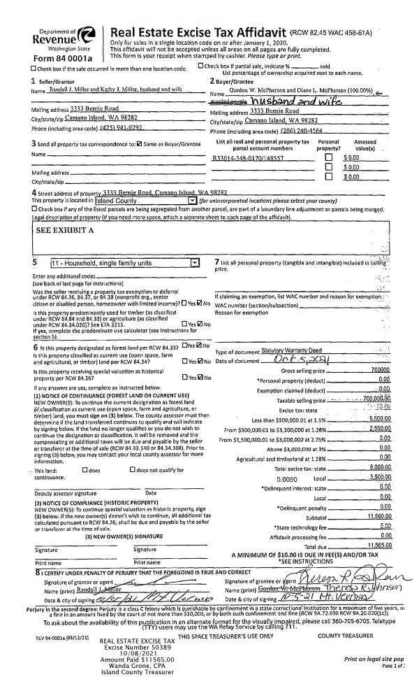
Property
Account |
| Property ID: | 809513 | Abbreviated Legal Description: | LANGLEY GARDEN BUNGALOWS - BSP LOT 10 |
| Geographic ID: | S8520-00-00010-0 | Agent Code: | |
| Type: | Real | | |
| Tax Area: | 700 - APPRAISER-S Whid Schl Dist, in town of Langley | Land Use Code | 11 |
| Open Space: | N | DFL | N |
| Historic Property: | N | Remodel Property: | N |
| Multi-Family Redevelopment: | N | | |
| Township: | | Section: | |
| Range: | |
Location |
| Address: | 637 ARBOR CREST LN LANGLEY, WA 98260 | Mapsco: | |
| Neighborhood: | City of Langley | Map ID: | 727 |
| Neighborhood CD: | 04-L |
Owner |
| Name: | ALLEN, GREG | Owner ID: | 290824 |
| Mailing Address: | JASMINE ALLEN 2811 EUCLID AVE VANCOUVER, BC VSR5C2 | % Ownership: | 100.0000000000% |
| | | Exemptions: | |
Taxes and Assessment Details
Values
| (+) Improvement Homesite Value: | + | $0 | |
| (+) Improvement Non-Homesite Value: | + | $281,421 | |
| (+) Land Homesite Value: | + | $0 | |
| (+) Land Non-Homesite Value: | + | $370,000 | |
| (+) Curr Use (HS): | + | $0 | $0 |
| (+) Curr Use (NHS): | + | $0 | $0 |
| | | -------------------------- | |
| (=) Market Value: | = | $651,421 | |
| (–) Productivity Loss: | – | $0 | |
| | | -------------------------- | |
| (=) Subtotal: | = | $651,421 | |
| (+) Senior Appraised Value: | + | $0 | |
| (+) Non-Senior Appraised Value: | + | $651,421 | |
| | | -------------------------- | |
| (=) Total Appraised Value: | = | $651,421 | |
| (–) Senior Exemption Loss: | – | $0 | |
| (–) Exemption Loss: | – | $0 | |
| | | -------------------------- | |
| (=) Taxable Value: | = | $651,421 | |
Taxing Jurisdiction
| Owner: | ALLEN, GREG | | |
| % Ownership: | 100.0000000000% | | |
| Total Value: | $651,421 | | |
| Tax Area: | 700 - APPRAISER-S Whid Schl Dist, in town of Langley |
| CF | Conservation Futures | 0.0316035091 | $651,421 | $651,421 | $20.59 | | |
| LANG | City of Langley | 1.0093520762 | $651,421 | $651,421 | $657.51 | | |
| LANGBOND | City of Langley BOND | 1.0326110892 | $651,421 | $651,421 | $672.66 | | |
| FIRE3 | Fire & Rescue Dist #3 S Whidbey GEN | 1.2004855531 | $651,421 | $651,421 | $782.02 | | |
| HOBOND | Hospital BOND | 0.1910887512 | $651,421 | $651,421 | $124.48 | | |
| HOGEN | Hospital GEN | 0.3902502903 | $651,421 | $651,421 | $254.22 | | |
| CE | County Current Expense | 0.3708482477 | $651,421 | $651,421 | $241.58 | | |
| ISLANDEMS | Hospital GEN (EMS) | 0.5000000000 | $651,421 | $651,421 | $325.71 | | |
| LIB | Library Sno-Isle GEN | 0.3153421757 | $651,421 | $651,421 | $205.42 | | |
| PORTWHID | Port of S Whidbey GEN | 0.1094540357 | $651,421 | $651,421 | $71.30 | | |
| SCH206BOND | School 206 BOND | 0.3161759235 | $651,421 | $651,421 | $205.96 | | |
| SCH206MO | School 206 Enrichment | 0.4547169547 | $651,421 | $651,421 | $296.21 | | |
| ST | State School | 1.3035497053 | $651,421 | $651,421 | $849.16 | | |
| ST2 | State School Part 2 | 0.8169543533 | $651,421 | $651,421 | $532.18 | | |
| SWHIDPRBD | P & R S Whidbey BOND | 0.0152817568 | $651,421 | $651,421 | $9.95 | | |
| SWHIDPRBD2 | P & R S Whidbey BOND2 | 0.0138911264 | $651,421 | $651,421 | $9.05 | | |
| SWHIDPRMT | P & R S Whidbey GEN | 0.2053334452 | $651,421 | $651,421 | $133.76 | | |
| | Total Tax Rate: | 8.2769389934 | | | | | |
| | | | | Taxes w/Current Exemptions: | $5,391.76 | | |
| | | | | Taxes w/o Exemptions: | $5,391.76 | | |
Improvement / Building
| Improvement #1: | RESIDENTIAL | State Code: | Y | 1352.0 sqft | Value: | $281,421 |
| Bathrooms: | 2 | Bedrooms: | 2 | | Ceiling: | DRYWALL PAINTED | Exterior Wall/Cover: | WOOD SIDING | | Floor Covering: | HARDWOOD/CARP 60-40 | Floor Structure: | WOOD W/SUBFLOOR | | Foundation: | CONCRETE | Heating: | RADIANT FLOOR | | Interior Finish: | DRYWALL PAINT | Plumbing Fixture Cnt: | 11 | | Roof Slope: | 8" IN 12" | Roof Structure/Cover: | CJ ASPHALT |
|
| | Type | Description | Class CD | Sub Class CD | Year Built | Area |
| | BAS | BASE/MAIN FLOOR | 3 | 0 | 2007 | 912.0 |
| | OP4 | OPEN PORCH W/CEILING-ROOF | 3 | 0 | 2007 | 60.0 |
| | UPS | UPPER STORY | 3 | 0 | 2007 | 440.0 |
| | BAW | BALCONY WOOD RAIL | 3 | 0 | 2007 | 100.0 |
Sketch
Property Image
Land
| 1 | 12 | SQ (00000-06000) | 0.0000 | 0.00 | 0.00 | 0.00 | 1.00 | $370,000 | $0 |
Roll Value History
| 2026 | N/A | N/A | N/A | N/A | N/A |
| 2025 | $281,421 | $370,000 | $0 | $651,421 | $651,421 |
| 2024 | $284,646 | $370,000 | $0 | $654,646 | $654,646 |
| 2023 | $287,872 | $370,000 | $0 | $657,872 | $657,872 |
| 2022 | $262,860 | $240,000 | $0 | $502,860 | $502,860 |
| 2021 | $230,614 | $200,000 | $0 | $430,614 | $430,614 |
| 2020 | $219,688 | $200,000 | $0 | $419,688 | $419,688 |
| 2019 | $159,239 | $210,000 | $0 | $369,239 | $369,239 |
| 2018 | $159,675 | $190,000 | $0 | $349,675 | $349,675 |
| 2017 | $160,387 | $175,000 | $0 | $335,387 | $335,387 |
| 2016 | $162,130 | $130,000 | $0 | $292,130 | $292,130 |
| 2015 | $163,873 | $130,000 | $0 | $293,873 | $293,873 |
| 2014 | $157,736 | $140,000 | $0 | $297,736 | $297,736 |
| 2013 | $159,451 | $140,000 | $0 | $299,451 | $299,451 |
| 2012 | $161,165 | $161,000 | $0 | $322,165 | $322,165 |
| 2011 | $162,880 | $175,000 | $0 | $337,880 | $337,880 |
| 2010 | $168,639 | $183,000 | $0 | $351,639 | $351,639 |
| 2009 | $175,613 | $200,000 | $0 | $375,613 | $375,613 |
Deed and Sales History
| 1 | 06/20/2019 | WD | Warranty Deed | PYLE, CHARLYNE B | ALLEN, GREG | | | $429,000.00 | 39303 | 4466710 |
| 2 | 11/10/2008 | WD | Warranty Deed | VERITAS INVESTMENT PARTNERS LL | PYLE, CHARLYNE B | | | $431,150.00 | 82996 | 4240358 |
| 3 | 01/01/1900 | OTHER | Other - Misc. Documents | Unknown | VERITAS INVESTMENT PARTNERS LL | | | $0.00 | 0 | 0 |
Payout Agreement
| No payout information available.. |