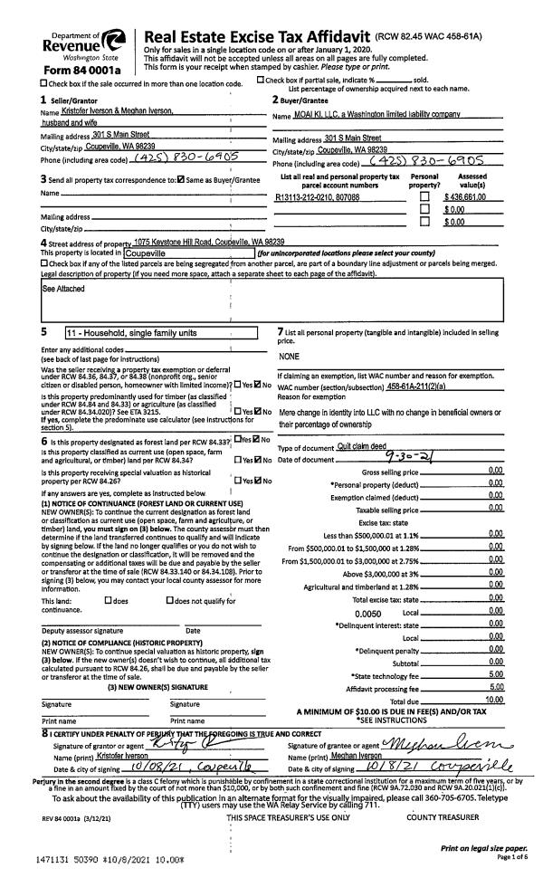
Property
Account |
| Property ID: | 809515 | Abbreviated Legal Description: | LANGLEY GARDEN BUNGALOWS - BSP LOT 3 |
| Geographic ID: | S8520-00-00003-0 | Agent Code: | |
| Type: | Real | | |
| Tax Area: | 700 - APPRAISER-S Whid Schl Dist, in town of Langley | Land Use Code | 11 |
| Open Space: | N | DFL | N |
| Historic Property: | N | Remodel Property: | N |
| Multi-Family Redevelopment: | N | | |
| Township: | | Section: | |
| Range: | |
Location |
| Address: | 649 ARBOR CREST LN LANGLEY, WA 98260 | Mapsco: | |
| Neighborhood: | City of Langley | Map ID: | 727 |
| Neighborhood CD: | 04-L |
Owner |
| Name: | KROLL, KEEVA | Owner ID: | 263378 |
| Mailing Address: | 649 ARBOR CREST LN LANGLEY, WA 98236 | % Ownership: | 100.0000000000% |
| | | Exemptions: | |
Taxes and Assessment Details
Values
| (+) Improvement Homesite Value: | + | $0 | |
| (+) Improvement Non-Homesite Value: | + | $267,939 | |
| (+) Land Homesite Value: | + | $0 | |
| (+) Land Non-Homesite Value: | + | $370,000 | |
| (+) Curr Use (HS): | + | $0 | $0 |
| (+) Curr Use (NHS): | + | $0 | $0 |
| | | -------------------------- | |
| (=) Market Value: | = | $637,939 | |
| (–) Productivity Loss: | – | $0 | |
| | | -------------------------- | |
| (=) Subtotal: | = | $637,939 | |
| (+) Senior Appraised Value: | + | $0 | |
| (+) Non-Senior Appraised Value: | + | $637,939 | |
| | | -------------------------- | |
| (=) Total Appraised Value: | = | $637,939 | |
| (–) Senior Exemption Loss: | – | $0 | |
| (–) Exemption Loss: | – | $0 | |
| | | -------------------------- | |
| (=) Taxable Value: | = | $637,939 | |
Taxing Jurisdiction
| Owner: | KROLL, KEEVA | | |
| % Ownership: | 100.0000000000% | | |
| Total Value: | $637,939 | | |
| Tax Area: | 700 - APPRAISER-S Whid Schl Dist, in town of Langley |
| CF | Conservation Futures | 0.0316035091 | $637,939 | $637,939 | $20.16 | | |
| LANG | City of Langley | 1.0093520762 | $637,939 | $637,939 | $643.91 | | |
| LANGBOND | City of Langley BOND | 1.0326110892 | $637,939 | $637,939 | $658.74 | | |
| FIRE3 | Fire & Rescue Dist #3 S Whidbey GEN | 1.2004855531 | $637,939 | $637,939 | $765.84 | | |
| HOBOND | Hospital BOND | 0.1910887512 | $637,939 | $637,939 | $121.90 | | |
| HOGEN | Hospital GEN | 0.3902502903 | $637,939 | $637,939 | $248.96 | | |
| CE | County Current Expense | 0.3708482477 | $637,939 | $637,939 | $236.58 | | |
| ISLANDEMS | Hospital GEN (EMS) | 0.5000000000 | $637,939 | $637,939 | $318.97 | | |
| LIB | Library Sno-Isle GEN | 0.3153421757 | $637,939 | $637,939 | $201.17 | | |
| PORTWHID | Port of S Whidbey GEN | 0.1094540357 | $637,939 | $637,939 | $69.82 | | |
| SCH206BOND | School 206 BOND | 0.3161759235 | $637,939 | $637,939 | $201.70 | | |
| SCH206MO | School 206 Enrichment | 0.4547169547 | $637,939 | $637,939 | $290.08 | | |
| ST | State School | 1.3035497053 | $637,939 | $637,939 | $831.59 | | |
| ST2 | State School Part 2 | 0.8169543533 | $637,939 | $637,939 | $521.17 | | |
| SWHIDPRBD | P & R S Whidbey BOND | 0.0152817568 | $637,939 | $637,939 | $9.75 | | |
| SWHIDPRBD2 | P & R S Whidbey BOND2 | 0.0138911264 | $637,939 | $637,939 | $8.86 | | |
| SWHIDPRMT | P & R S Whidbey GEN | 0.2053334452 | $637,939 | $637,939 | $130.99 | | |
| | Total Tax Rate: | 8.2769389934 | | | | | |
| | | | | Taxes w/Current Exemptions: | $5,280.19 | | |
| | | | | Taxes w/o Exemptions: | $5,280.19 | | |
Improvement / Building
| Improvement #1: | RESIDENTIAL | State Code: | Y | 1236.0 sqft | Value: | $267,939 |
| Bathrooms: | 2 | Bedrooms: | 2 | | Ceiling: | DRYWALL PAINTED | Cooling: | HEAT PUMP/CONV/V | | Exterior Wall/Cover: | SHINGLE | Floor Covering: | HARDWOOD/CARP 60-40 | | Floor Structure: | WOOD W/SUBFLOOR | Foundation: | CONCRETE | | Interior Finish: | DRYWALL PAINT | Plumbing Fixture Cnt: | 11 | | Roof Slope: | 8" IN 12" | Roof Structure/Cover: | CJ ASPHALT |
|
| | Type | Description | Class CD | Sub Class CD | Year Built | Area |
| | BAS | BASE/MAIN FLOOR | 3 | 0 | 2013 | 816.0 |
| | UPS | UPPER STORY | 3 | 0 | 2013 | 420.0 |
| | OP4 | OPEN PORCH W/CEILING-ROOF | 3 | 0 | 2013 | 40.0 |
Sketch
Property Image
Land
| 1 | 12 | SQ (00000-06000) | 0.0000 | 0.00 | 0.00 | 0.00 | 1.00 | $370,000 | $0 |
Roll Value History
| 2026 | N/A | N/A | N/A | N/A | N/A |
| 2025 | $267,939 | $370,000 | $0 | $637,939 | $637,939 |
| 2024 | $270,975 | $370,000 | $0 | $640,975 | $640,975 |
| 2023 | $273,252 | $370,000 | $0 | $643,252 | $167,500 |
| 2022 | $249,633 | $240,000 | $0 | $489,633 | $418,750 |
| 2021 | $218,750 | $200,000 | $0 | $418,750 | $418,750 |
| 2020 | $209,883 | $200,000 | $0 | $409,883 | $409,883 |
| 2019 | $149,902 | $210,000 | $0 | $359,902 | $359,902 |
| 2018 | $150,300 | $190,000 | $0 | $340,300 | $340,300 |
| 2017 | $151,095 | $175,000 | $0 | $326,095 | $326,095 |
| 2016 | $152,685 | $130,000 | $0 | $282,685 | $282,685 |
| 2015 | $154,276 | $130,000 | $0 | $284,276 | $284,276 |
| 2014 | $186,242 | $140,000 | $0 | $326,242 | $326,242 |
| 2013 | $116,452 | $90,000 | $0 | $206,452 | $206,452 |
| 2012 | $0 | $90,000 | $0 | $90,000 | $90,000 |
| 2011 | $0 | $90,000 | $0 | $90,000 | $90,000 |
| 2010 | $0 | $90,000 | $0 | $90,000 | $90,000 |
| 2009 | $0 | $100,000 | $0 | $100,000 | $100,000 |
| 2008 | $0 | $0 | $0 | $27,454 | $27,454 |
Deed and Sales History
| 1 | 08/02/2013 | WD | Warranty Deed | VERITAS INVESTMENT PARTNERS LLC | KROLL, KEEVA | | | $319,000.00 | 12369 | 4346219 |
| 2 | 01/01/1900 | OTHER | Other - Misc. Documents | Unknown | VERITAS INVESTMENT PARTNERS LL | | | $0.00 | 0 | 0 |
Payout Agreement
| No payout information available.. |