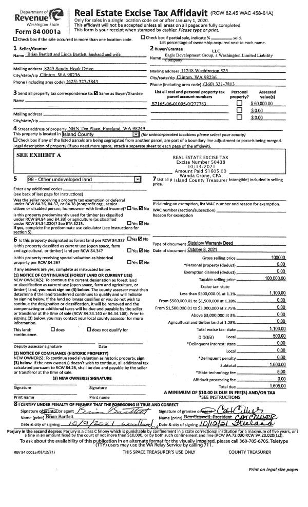
Property
Account |
| Property ID: | 809534 | Abbreviated Legal Description: | LOT 1 SP 317-07.32908.296-4540 AF#4240327 |
| Geographic ID: | R32908-295-4870 | Agent Code: | |
| Type: | Real | | |
| Tax Area: | 712 - APPRAISER-S Whid Schl Dist, outside Langley, improved, greater than 1 acre | Land Use Code | 11 |
| Open Space: | N | DFL | N |
| Historic Property: | N | Remodel Property: | N |
| Multi-Family Redevelopment: | N | | |
| Township: | 29 | Section: | 08 |
| Range: | R3 |
Location |
| Address: | 5350 CRAWFORD RD LANGLEY, WA 98260 | Mapsco: | |
| Neighborhood: | Cycle 4 | Map ID: | 749 |
| Neighborhood CD: | 4 |
Owner |
| Name: | PERKINS, CHELSIE ALLYCE | Owner ID: | 298778 |
| Mailing Address: | TALMADGE JAMES HICKMAN III 5350 CRAWFORD RD LANGLEY, WA 98260 | % Ownership: | 100.0000000000% |
| | | Exemptions: | |
Taxes and Assessment Details
Values
| (+) Improvement Homesite Value: | + | $0 | |
| (+) Improvement Non-Homesite Value: | + | $283,390 | |
| (+) Land Homesite Value: | + | $0 | |
| (+) Land Non-Homesite Value: | + | $380,000 | |
| (+) Curr Use (HS): | + | $0 | $0 |
| (+) Curr Use (NHS): | + | $0 | $0 |
| | | -------------------------- | |
| (=) Market Value: | = | $663,390 | |
| (–) Productivity Loss: | – | $0 | |
| | | -------------------------- | |
| (=) Subtotal: | = | $663,390 | |
| (+) Senior Appraised Value: | + | $0 | |
| (+) Non-Senior Appraised Value: | + | $663,390 | |
| | | -------------------------- | |
| (=) Total Appraised Value: | = | $663,390 | |
| (–) Senior Exemption Loss: | – | $0 | |
| (–) Exemption Loss: | – | $0 | |
| | | -------------------------- | |
| (=) Taxable Value: | = | $663,390 | |
Taxing Jurisdiction
| Owner: | PERKINS, CHELSIE ALLYCE | | |
| % Ownership: | 100.0000000000% | | |
| Total Value: | $663,390 | | |
| Tax Area: | 712 - APPRAISER-S Whid Schl Dist, outside Langley, improved, greater than 1 acre |
| CF | Conservation Futures | 0.0316035091 | $663,390 | $663,390 | $20.97 | | |
| FIRE3 | Fire & Rescue Dist #3 S Whidbey GEN | 1.2004855531 | $663,390 | $663,390 | $796.39 | | |
| HOBOND | Hospital BOND | 0.1910887512 | $663,390 | $663,390 | $126.77 | | |
| HOGEN | Hospital GEN | 0.3902502903 | $663,390 | $663,390 | $258.89 | | |
| CE | County Current Expense | 0.3708482477 | $663,390 | $663,390 | $246.02 | | |
| CR | County Roads | 0.4584763726 | $663,390 | $663,390 | $304.15 | | |
| ISLANDEMS | Hospital GEN (EMS) | 0.5000000000 | $663,390 | $663,390 | $331.70 | | |
| LIB | Library Sno-Isle GEN | 0.3153421757 | $663,390 | $663,390 | $209.19 | | |
| PORTWHID | Port of S Whidbey GEN | 0.1094540357 | $663,390 | $663,390 | $72.61 | | |
| SCH206BOND | School 206 BOND | 0.3161759235 | $663,390 | $663,390 | $209.75 | | |
| SCH206MO | School 206 Enrichment | 0.4547169547 | $663,390 | $663,390 | $301.65 | | |
| ST | State School | 1.3035497053 | $663,390 | $663,390 | $864.76 | | |
| ST2 | State School Part 2 | 0.8169543533 | $663,390 | $663,390 | $541.96 | | |
| SWHIDPRBD | P & R S Whidbey BOND | 0.0152817568 | $663,390 | $663,390 | $10.14 | | |
| SWHIDPRBD2 | P & R S Whidbey BOND2 | 0.0138911264 | $663,390 | $663,390 | $9.22 | | |
| SWHIDPRMT | P & R S Whidbey GEN | 0.2053334452 | $663,390 | $663,390 | $136.22 | | |
| | Total Tax Rate: | 6.6934522006 | | | | | |
| | | | | Taxes w/Current Exemptions: | $4,440.39 | | |
| | | | | Taxes w/o Exemptions: | $4,440.39 | | |
Improvement / Building
| Improvement #1: | RESIDENTIAL | State Code: | Y | 1909.7 sqft | Value: | $283,390 |
| Bathrooms: | 2 | Bedrooms: | 1 | | Ceiling: | DRYWALL PAINTED | Exterior Wall/Cover: | CEMENT FIBER | | Floor Covering: | CARPET/VINYL 60-40 | Floor Structure: | WOOD W/SUBFLOOR | | Foundation: | SLAB | Heating: | FHA GAS | | Interior Finish: | DRYWALL PAINT | Plumbing Fixture Cnt: | 9 | | Roof Slope: | 4" IN 12" | Roof Structure/Cover: | CJ ASPHALT |
|
| | Type | Description | Class CD | Sub Class CD | Year Built | Area |
| | BAS | BASE/MAIN FLOOR | 3 | 0 | 2004 | 926.0 |
| | DWN | DOWNSTAIRS LIVING AREA | 3 | 0 | 2004 | 983.7 |
| | ENP | ENCLOSED PORCH | 3 | 0 | 2004 | 603.0 |
| | OWP | OPEN WOOD PORCH W/STEPS | 3 | 0 | 2004 | 482.0 |
| | oPOL | POLE BARN | 3 | 0 | 2004 | 0.0 |
Sketch
Property Image
Land
| 1 | 32 | AC (03.01-09.99) | 4.8700 | 0.00 | 0.00 | 0.00 | 1.00 | $380,000 | $0 |
Roll Value History
| 2026 | N/A | N/A | N/A | N/A | N/A |
| 2025 | $283,390 | $380,000 | $0 | $663,390 | $663,390 |
| 2024 | $286,753 | $350,000 | $0 | $636,753 | $636,753 |
| 2023 | $290,118 | $330,000 | $0 | $620,118 | $620,118 |
| 2022 | $266,708 | $290,000 | $0 | $556,708 | $556,708 |
| 2021 | $235,895 | $230,000 | $0 | $465,895 | $465,895 |
| 2020 | $213,331 | $190,000 | $0 | $403,331 | $403,331 |
| 2019 | $164,931 | $250,000 | $0 | $414,931 | $414,931 |
| 2018 | $165,375 | $210,000 | $0 | $375,375 | $375,375 |
| 2017 | $166,262 | $190,000 | $0 | $356,262 | $356,262 |
| 2016 | $173,830 | $135,000 | $0 | $308,830 | $308,830 |
| 2015 | $175,670 | $135,000 | $0 | $310,670 | $310,670 |
| 2014 | $172,468 | $121,750 | $0 | $294,218 | $294,218 |
| 2013 | $174,293 | $131,490 | $0 | $305,783 | $305,783 |
| 2012 | $176,116 | $165,580 | $0 | $341,696 | $341,696 |
| 2011 | $177,940 | $165,580 | $0 | $343,520 | $343,520 |
| 2010 | $184,084 | $165,580 | $0 | $349,664 | $349,664 |
| 2009 | $193,431 | $214,280 | $0 | $407,711 | $407,711 |
| 2008 | $0 | $0 | $0 | $286,323 | $286,323 |
Deed and Sales History
| 1 | 04/01/2021 | WD | Warranty Deed | WOOD, DONALD V | PERKINS, CHELSIE ALLYCE | | | $639,000.00 | 47638 | 4515491 |
| 2 | 01/01/1900 | OTHER | Other - Misc. Documents | Unknown | WOOD, DONALD V | | | $0.00 | 0 | 0 |
Payout Agreement
| No payout information available.. |