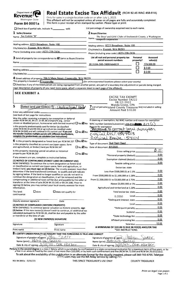
Property
Account |
| Property ID: | 809538 | Abbreviated Legal Description: | PT GL3 DESC: BG SECR SEC 14 N01*W ALG ELN 187.69' TP ON CL E CAMANO DR N33*W ALG SD CL 904.97' S89*W 743.34' N599.67' N44*E 37.08' TPB N61*W 148.65' TO WLN SD GL3 N01*W ALG SD WLN 324.03' TP ON SLY LN E CAMANO DR S53*E ALG SD SLY LN 298.90' TO BG CUR/R AL |
| Geographic ID: | R33014-180-4100 | Agent Code: | |
| Type: | Real | | |
| Tax Area: | 542 - APPRAISER-Stan/Cam Schl Dist, Special Dist, improved, greater than 1 acre | Land Use Code | 11 |
| Open Space: | N | DFL | N |
| Historic Property: | N | Remodel Property: | N |
| Multi-Family Redevelopment: | N | | |
| Township: | 30 | Section: | 14 |
| Range: | R3 |
Location |
| Address: | CAMANO ISLAND, WA 98282 | Mapsco: | |
| Neighborhood: | 58SofTamarackS | Map ID: | 870 |
| Neighborhood CD: | 58RstamS |
Owner |
| Name: | SAWHILL, TERRY F | Owner ID: | 203071 |
| Mailing Address: | KIM M SAWHILL 3452 SE CAMANO DR CAMANO ISLAND, WA 98282 | % Ownership: | 100.0000000000% |
| | | Exemptions: | |
Taxes and Assessment Details
Values
| (+) Improvement Homesite Value: | + | $0 | |
| (+) Improvement Non-Homesite Value: | + | $3,000 | |
| (+) Land Homesite Value: | + | $0 | |
| (+) Land Non-Homesite Value: | + | $130,000 | |
| (+) Curr Use (HS): | + | $0 | $0 |
| (+) Curr Use (NHS): | + | $0 | $0 |
| | | -------------------------- | |
| (=) Market Value: | = | $133,000 | |
| (–) Productivity Loss: | – | $0 | |
| | | -------------------------- | |
| (=) Subtotal: | = | $133,000 | |
| (+) Senior Appraised Value: | + | $0 | |
| (+) Non-Senior Appraised Value: | + | $133,000 | |
| | | -------------------------- | |
| (=) Total Appraised Value: | = | $133,000 | |
| (–) Senior Exemption Loss: | – | $0 | |
| (–) Exemption Loss: | – | $0 | |
| | | -------------------------- | |
| (=) Taxable Value: | = | $133,000 | |
Taxing Jurisdiction
| Owner: | SAWHILL, TERRY F | | |
| % Ownership: | 100.0000000000% | | |
| Total Value: | $133,000 | | |
| Tax Area: | 542 - APPRAISER-Stan/Cam Schl Dist, Special Dist, improved, greater than 1 acre |
| CF | Conservation Futures | 0.0316035091 | $133,000 | $133,000 | $4.20 | | |
| EMS1 | Fire & Rescue Dist #1 Camano GEN (EMS) | 0.3677864386 | $133,000 | $133,000 | $48.92 | | |
| FIRE1 | Fire & Rescue Dist #1 Camano GEN | 1.2502910536 | $133,000 | $133,000 | $166.29 | | |
| FIRE1BOND | Fire & Rescue Dist #1 Camano BOND | 0.1570001679 | $133,000 | $133,000 | $20.88 | | |
| CE | County Current Expense | 0.3708482477 | $133,000 | $133,000 | $49.32 | | |
| CR | County Roads | 0.4584763726 | $133,000 | $133,000 | $60.98 | | |
| LCIB | Library Sno-Isle BOND (Camano Island) | 0.0396325772 | $133,000 | $133,000 | $5.27 | | |
| LIB | Library Sno-Isle GEN | 0.3153421757 | $133,000 | $133,000 | $41.94 | | |
| SCH205_401 | School 205-401 Enrichment | 1.2698420524 | $133,000 | $133,000 | $168.89 | | |
| SCH205BOND | School 205-401 BOND | 0.9396497583 | $133,000 | $133,000 | $124.97 | | |
| ST | State School | 1.3035497053 | $133,000 | $133,000 | $173.37 | | |
| ST2 | State School Part 2 | 0.8169543533 | $133,000 | $133,000 | $108.65 | | |
| | Total Tax Rate: | 7.3209764117 | | | | | |
| | | | | Taxes w/Current Exemptions: | $973.68 | | |
| | | | | Taxes w/o Exemptions: | $973.68 | | |
Improvement / Building
| Improvement #1: | RESIDENTIAL | State Code: | Y | 0.0 sqft | Value: | $3,000 |
Sketch
| No sketches available for this property. |
Property Image
Land
| 1 | 17 | AC (01.01-02.00) | 1.5000 | 65340.00 | 0.00 | 0.00 | 1.00 | $130,000 | $0 |
Roll Value History
| 2026 | N/A | N/A | N/A | N/A | N/A |
| 2025 | $3,000 | $130,000 | $0 | $133,000 | $133,000 |
| 2024 | $3,000 | $100,000 | $0 | $103,000 | $103,000 |
| 2023 | $3,000 | $90,000 | $0 | $93,000 | $93,000 |
| 2022 | $3,000 | $80,000 | $0 | $83,000 | $83,000 |
| 2021 | $3,000 | $70,000 | $0 | $73,000 | $73,000 |
| 2020 | $3,000 | $65,000 | $0 | $68,000 | $68,000 |
| 2019 | $3,000 | $65,000 | $0 | $68,000 | $68,000 |
| 2018 | $3,000 | $65,000 | $0 | $68,000 | $68,000 |
| 2017 | $3,000 | $65,000 | $0 | $68,000 | $68,000 |
| 2016 | $3,000 | $50,000 | $0 | $53,000 | $53,000 |
| 2015 | $0 | $40,000 | $0 | $40,000 | $40,000 |
| 2014 | $0 | $40,000 | $0 | $40,000 | $40,000 |
| 2013 | $0 | $40,000 | $0 | $40,000 | $40,000 |
| 2012 | $0 | $55,800 | $0 | $55,800 | $55,800 |
| 2011 | $0 | $55,800 | $0 | $55,800 | $55,800 |
| 2010 | $0 | $55,800 | $0 | $55,800 | $55,800 |
| 2009 | $0 | $80,400 | $0 | $80,400 | $80,400 |
| 2008 | $0 | $0 | $0 | $46,895 | $46,895 |
Deed and Sales History
| 1 | 05/04/2010 | WD | Warranty Deed | NELSON, DAVID | SAWHILL, TERRY F | | | $93,000.00 | 1219 | 4274242 |
| 2 | 12/01/2008 | BLA | DNU - Boundary Line Adjustment | Unknown | NELSON, DAVID | | | $0.00 | 81054 | 4172956 |
Payout Agreement
| No payout information available.. |