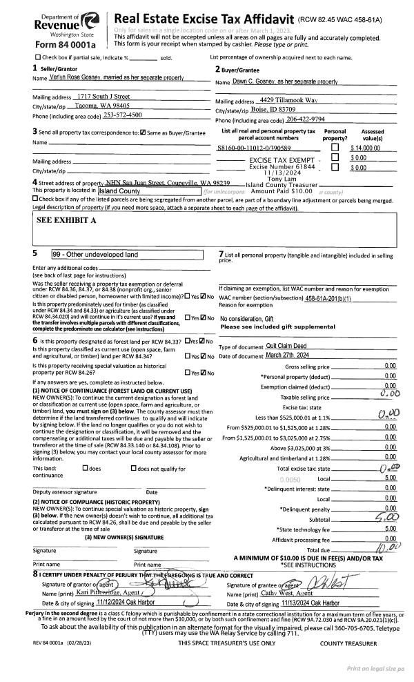
Property
Account |
| Property ID: | 809696 | Abbreviated Legal Description: | KETTLECOVE TOWNHOMES CONDO UNIT C-1 |
| Geographic ID: | S8533-00-0000C-1 | Agent Code: | |
| Type: | Real | | |
| Tax Area: | 100 - APPRAISER-OH Schl Dist, in OH | Land Use Code | 14 |
| Open Space: | N | DFL | N |
| Historic Property: | N | Remodel Property: | N |
| Multi-Family Redevelopment: | N | | |
| Township: | | Section: | |
| Range: | |
Location |
| Address: | 563 NE KETTLE ST UNIT C1 OAK HARBOR, WA 98277 | Mapsco: | |
| Neighborhood: | 6A*OH-kettle cove | Map ID: | 257 |
| Neighborhood CD: | 6A*OHktlcv |
Owner |
| Name: | MILAM, AARON | Owner ID: | 311410 |
| Mailing Address: | 563 NE KETTLE ST UNIT C1 OAK HARBOR, WA 98277 | % Ownership: | 100.0000000000% |
| | | Exemptions: | |
Taxes and Assessment Details
Values
| (+) Improvement Homesite Value: | + | $0 | |
| (+) Improvement Non-Homesite Value: | + | $227,474 | |
| (+) Land Homesite Value: | + | $0 | |
| (+) Land Non-Homesite Value: | + | $110,000 | |
| (+) Curr Use (HS): | + | $0 | $0 |
| (+) Curr Use (NHS): | + | $0 | $0 |
| | | -------------------------- | |
| (=) Market Value: | = | $337,474 | |
| (–) Productivity Loss: | – | $0 | |
| | | -------------------------- | |
| (=) Subtotal: | = | $337,474 | |
| (+) Senior Appraised Value: | + | $0 | |
| (+) Non-Senior Appraised Value: | + | $337,474 | |
| | | -------------------------- | |
| (=) Total Appraised Value: | = | $337,474 | |
| (–) Senior Exemption Loss: | – | $0 | |
| (–) Exemption Loss: | – | $0 | |
| | | -------------------------- | |
| (=) Taxable Value: | = | $337,474 | |
Taxing Jurisdiction
| Owner: | MILAM, AARON | | |
| % Ownership: | 100.0000000000% | | |
| Total Value: | $337,474 | | |
| Tax Area: | 100 - APPRAISER-OH Schl Dist, in OH |
| CF | Conservation Futures | 0.0316035091 | $337,474 | $337,474 | $10.67 | | |
| CEM1 | Cemetery #1 | 0.0040320932 | $337,474 | $337,474 | $1.36 | | |
| COH | City of Oak Harbor | 2.3001546061 | $337,474 | $337,474 | $776.24 | | |
| OAKBOND | City of Oak Harbor BOND | 0.1926904192 | $337,474 | $337,474 | $65.03 | | |
| HOBOND | Hospital BOND | 0.1910887512 | $337,474 | $337,474 | $64.49 | | |
| HOGEN | Hospital GEN | 0.3902502903 | $337,474 | $337,474 | $131.70 | | |
| CE | County Current Expense | 0.3708482477 | $337,474 | $337,474 | $125.15 | | |
| ISLANDEMS | Hospital GEN (EMS) | 0.5000000000 | $337,474 | $337,474 | $168.74 | | |
| LIB | Library Sno-Isle GEN | 0.3153421757 | $337,474 | $337,474 | $106.42 | | |
| NWHIDPRMT | P & R N Whidbey GEN | 0.2004466701 | $337,474 | $337,474 | $67.65 | | |
| SCH201MO | School 201 Enrichment | 1.8559231640 | $337,474 | $337,474 | $626.33 | | |
| ST | State School | 1.3035497053 | $337,474 | $337,474 | $439.91 | | |
| ST2 | State School Part 2 | 0.8169543533 | $337,474 | $337,474 | $275.70 | | |
| | Total Tax Rate: | 8.4728839852 | | | | | |
| | | | | Taxes w/Current Exemptions: | $2,859.39 | | |
| | | | | Taxes w/o Exemptions: | $2,859.39 | | |
Improvement / Building
| Improvement #1: | RESIDENTIAL | State Code: | A1 | 1133.4 sqft | Value: | $227,474 |
| Bathrooms: | 1.5 | Bedrooms: | 2 | | Ceiling: | DRYWALL PAINTED | Exterior Wall/Cover: | CEMENT FIBER | | Floor Covering: | HARDWOOD/CARP 20-80 | Floor Structure: | WOOD W/SUBFLOOR | | Foundation: | CONCRETE | Heating: | FHA ELECTRIC | | Interior Finish: | DRYWALL PAINT | Plumbing Fixture Cnt: | 9 | | Roof Slope: | 6" IN 12" | Roof Structure/Cover: | CJ ASPHALT |
|
| | Type | Description | Class CD | Sub Class CD | Year Built | Area |
| | BAS | BASE/MAIN FLOOR | 3 | 0 | 2007 | 474.2 |
| | UPS | UPPER STORY | 3 | 0 | 2007 | 659.2 |
| | BIG | BUILT IN GARAGE | 3 | 0 | 2007 | 161.0 |
| | AGR | ATTACHED GARAGE | 3 | 0 | 2007 | 69.0 |
| | OP3 | OPEN PORCH W/ROOF | 3 | 0 | 2007 | 30.0 |
| | OWP | OPEN WOOD PORCH W/STEPS | 3 | 0 | 2007 | 48.0 |
| | oSIT | Site Improvements | 3 | 0 | 2007 | 0.0 |
Sketch
Property Image
Land
| 1 | 61 | MULTIPLE RESIDENCES | 0.0000 | 565.00 | 0.00 | 0.00 | 1.00 | $110,000 | $0 |
Roll Value History
| 2026 | N/A | N/A | N/A | N/A | N/A |
| 2025 | $227,474 | $110,000 | $0 | $337,474 | $337,474 |
| 2024 | $229,379 | $90,000 | $0 | $319,379 | $319,379 |
| 2023 | $231,413 | $90,000 | $0 | $321,413 | $321,413 |
| 2022 | $203,749 | $100,000 | $0 | $303,749 | $303,749 |
| 2021 | $179,260 | $65,000 | $0 | $244,260 | $244,260 |
| 2020 | $173,690 | $55,000 | $0 | $228,690 | $228,690 |
| 2019 | $123,444 | $95,000 | $0 | $218,444 | $218,444 |
| 2018 | $123,781 | $65,000 | $0 | $188,781 | $188,781 |
| 2017 | $124,452 | $47,065 | $0 | $171,517 | $171,517 |
| 2016 | $114,011 | $47,065 | $0 | $161,076 | $161,076 |
| 2015 | $115,278 | $47,065 | $0 | $162,343 | $162,343 |
| 2014 | $116,545 | $47,065 | $0 | $163,610 | $163,610 |
| 2013 | $117,812 | $47,065 | $0 | $164,877 | $164,877 |
| 2012 | $120,345 | $47,065 | $0 | $167,410 | $167,410 |
| 2011 | $120,345 | $47,065 | $0 | $167,410 | $167,410 |
| 2010 | $122,436 | $23,922 | $0 | $146,358 | $146,358 |
| 2009 | $127,485 | $23,165 | $0 | $150,650 | $150,650 |
| 2008 | $0 | $0 | $0 | $170,258 | $170,258 |
Deed and Sales History
| 1 | 01/16/2024 | WD | Warranty Deed | O'NEILL, CHRISTOPHER JAMES | MILAM, AARON | | | $360,000.00 | 59187 | 4569313 |
| 2 | 04/23/2019 | WD | Warranty Deed | DUMBAULD, JAMES HOUSTON | O'NEILL, CHRISTOPHER JAMES | | | $226,000.00 | 38490 | 4463280 |
| 3 | 04/13/2016 | WD | Warranty Deed | LONGHURST, ERIC | DUMBAULD, JAMES HOUSTON | | | $181,400.00 | 23902 | 4397585 |
| 4 | 06/30/2009 | WD | Warranty Deed | KETTLE COVE LLC, | LONGHURST, ERIC | | | $164,500.00 | 91540 | 4255798 |
| 5 | 01/01/1900 | OTHER | Other - Misc. Documents | Unknown | KETTLE COVE LLC, | | | $0.00 | 0 | 0 |
Payout Agreement
| No payout information available.. |