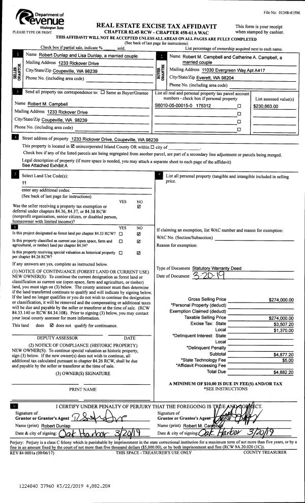
Property
Account |
| Property ID: | 809732 | Abbreviated Legal Description: | SAN DE FUCA LOTS 1 & 3 BLK 96; ALL OF BLK 97; LOTS 9, 10, 11, 12, 13, 14, 15 & 16 BLK 86; LOTS 1, 3, 5, 7, 9, 11, 13 & 15 BLK 87 TGW ADJ VAC STREETS & ALLEYS IF ANY |
| Geographic ID: | S8060-00-87001-0 | Agent Code: | |
| Type: | Real | | |
| Tax Area: | 332 - APPRAISER-Cpvl Schl Dist, Special Dist, improved, greater than 1 acre | Land Use Code | 11 |
| Open Space: | N | DFL | N |
| Historic Property: | N | Remodel Property: | N |
| Multi-Family Redevelopment: | N | | |
| Township: | | Section: | |
| Range: | |
Location |
| Address: | 26987 SR20 OAK HARBOR, WA 98277 | Mapsco: | |
| Neighborhood: | Cycle 2 | Map ID: | 145 |
| Neighborhood CD: | 2 |
Owner |
| Name: | DOVGAN, MICHAEL | Owner ID: | 283480 |
| Mailing Address: | 23348 LA COSTA COURT AUBURN, CA 95602 | % Ownership: | 100.0000000000% |
| | | Exemptions: | |
Taxes and Assessment Details
Values
| (+) Improvement Homesite Value: | + | $0 | |
| (+) Improvement Non-Homesite Value: | + | $384,726 | |
| (+) Land Homesite Value: | + | $0 | |
| (+) Land Non-Homesite Value: | + | $280,000 | |
| (+) Curr Use (HS): | + | $0 | $0 |
| (+) Curr Use (NHS): | + | $0 | $0 |
| | | -------------------------- | |
| (=) Market Value: | = | $664,726 | |
| (–) Productivity Loss: | – | $0 | |
| | | -------------------------- | |
| (=) Subtotal: | = | $664,726 | |
| (+) Senior Appraised Value: | + | $0 | |
| (+) Non-Senior Appraised Value: | + | $664,726 | |
| | | -------------------------- | |
| (=) Total Appraised Value: | = | $664,726 | |
| (–) Senior Exemption Loss: | – | $0 | |
| (–) Exemption Loss: | – | $0 | |
| | | -------------------------- | |
| (=) Taxable Value: | = | $664,726 | |
Taxing Jurisdiction
| Owner: | DOVGAN, MICHAEL | | |
| % Ownership: | 100.0000000000% | | |
| Total Value: | $664,726 | | |
| Tax Area: | 332 - APPRAISER-Cpvl Schl Dist, Special Dist, improved, greater than 1 acre |
| CF | Conservation Futures | 0.0316035091 | $664,726 | $664,726 | $21.01 | | |
| CEM2 | Cemetery #2 | 0.0095056933 | $664,726 | $664,726 | $6.32 | | |
| FIRE2 | Fire & Rescue Dist #2 N Whidbey GEN | 0.5475949600 | $664,726 | $664,726 | $364.00 | | |
| HOBOND | Hospital BOND | 0.1910887512 | $664,726 | $664,726 | $127.02 | | |
| HOGEN | Hospital GEN | 0.3902502903 | $664,726 | $664,726 | $259.41 | | |
| CE | County Current Expense | 0.3708482477 | $664,726 | $664,726 | $246.51 | | |
| CR | County Roads | 0.4584763726 | $664,726 | $664,726 | $304.76 | | |
| ISLANDEMS | Hospital GEN (EMS) | 0.5000000000 | $664,726 | $664,726 | $332.36 | | |
| LIB | Library Sno-Isle GEN | 0.3153421757 | $664,726 | $664,726 | $209.62 | | |
| LIBCAP | Library Sno-Isle BOND (Cap Fac Imp Area) | 0.0543427938 | $664,726 | $664,726 | $36.12 | | |
| POCOUP | Port of Coupeville GEN | 0.1093371703 | $664,726 | $664,726 | $72.68 | | |
| POCOUPIDD | Port of Coupeville IDD | 0.3409740022 | $664,726 | $664,726 | $226.65 | | |
| COUPSDTECH | School 204 CP (TECH) | 0.7545480007 | $664,726 | $664,726 | $501.57 | | |
| SCH204MO | School 204 Enrichment | 0.6716186034 | $664,726 | $664,726 | $446.44 | | |
| ST | State School | 1.3035497053 | $664,726 | $664,726 | $866.50 | | |
| ST2 | State School Part 2 | 0.8169543533 | $664,726 | $664,726 | $543.05 | | |
| | Total Tax Rate: | 6.8660346289 | | | | | |
| | | | | Taxes w/Current Exemptions: | $4,564.02 | | |
| | | | | Taxes w/o Exemptions: | $4,564.02 | | |
Improvement / Building
| Improvement #1: | RESIDENTIAL | State Code: | Y | 2196.0 sqft | Value: | $384,726 |
| Bathrooms: | 2.5 | Bedrooms: | 3 | | Ceiling: | DRYWALL PAINTED | Exterior Wall/Cover: | WOOD SIDING | | Floor Covering: | HARDWOOD/CARP 20-80 | Floor Structure: | WOOD W/SUBFLOOR | | Foundation: | CONCRETE | Heating: | FHA GAS | | Interior Finish: | DRYWALL PAINT | Plumbing Fixture Cnt: | 11 | | Roof Slope: | 6" IN 12" | Roof Structure/Cover: | CJ ALUMINIUM HEAVY |
|
| | Type | Description | Class CD | Sub Class CD | Year Built | Area |
| | BAS | BASE/MAIN FLOOR | 4 | 0 | 1996 | 1243.0 |
| | UPS | UPPER STORY | 4 | 0 | 1996 | 753.0 |
| | OWP | OPEN WOOD PORCH W/STEPS | 4 | 0 | 1996 | 416.3 |
| | OWP | OPEN WOOD PORCH W/STEPS | 4 | 0 | 1996 | 292.0 |
| | OWP | OPEN WOOD PORCH W/STEPS | 4 | 0 | 1996 | 202.0 |
| | OWP | OPEN WOOD PORCH W/STEPS | 4 | 0 | 1996 | 480.9 |
| | LOF | LOFT | 4 | 0 | 1996 | 200.0 |
Sketch
| No sketches available for this property. |
Property Image
Land
| 1 | 32 | AC (03.01-09.99) | 5.2700 | 0.00 | 0.00 | 0.00 | 1.00 | $280,000 | $0 |
Roll Value History
| 2026 | N/A | N/A | N/A | N/A | N/A |
| 2025 | $384,726 | $280,000 | $0 | $664,726 | $664,726 |
| 2024 | $324,204 | $280,000 | $0 | $604,204 | $604,204 |
| 2023 | $328,456 | $280,000 | $0 | $608,456 | $608,456 |
| 2022 | $301,268 | $260,000 | $0 | $561,268 | $561,268 |
| 2021 | $265,322 | $160,000 | $0 | $425,322 | $425,322 |
| 2020 | $259,121 | $160,000 | $0 | $419,121 | $419,121 |
| 2019 | $199,693 | $190,000 | $0 | $389,693 | $389,693 |
| 2018 | $185,684 | $170,000 | $0 | $355,684 | $355,684 |
| 2017 | $186,898 | $170,000 | $0 | $356,898 | $356,898 |
| 2016 | $189,293 | $160,000 | $0 | $349,293 | $349,293 |
| 2015 | $191,690 | $135,000 | $0 | $326,690 | $326,690 |
| 2014 | $194,087 | $135,000 | $0 | $329,087 | $329,087 |
| 2013 | $196,483 | $175,491 | $0 | $371,974 | $371,974 |
| 2012 | $198,879 | $175,491 | $0 | $374,370 | $374,370 |
| 2011 | $201,274 | $194,990 | $0 | $396,264 | $396,264 |
| 2010 | $208,601 | $194,990 | $0 | $403,591 | $403,591 |
| 2009 | $222,720 | $205,588 | $0 | $428,308 | $428,308 |
| 2008 | $0 | $0 | $0 | $423,735 | $423,735 |
| 2007 | $0 | $0 | $0 | $363,857 | $363,857 |
Deed and Sales History
| 1 | 01/09/2019 | TTAXD | Treasurer's Tax Deed | ISLAND COUNTY TREASURER | DOVGAN, MICHAEL | | | $0.00 | 37248 | 4457685 |
| 2 | 12/10/2009 | ESTSEPPROP | Establish Separate Property | KELLER, JAYLA | KELLER, JAYLA | | | $0.00 | 93101 | 4265582 |
| 3 | 04/23/2009 | BLA | DNU - Boundary Line Adjustment | Unknown | MADDEX, JAMES A | | | $0.00 | 81160 | 4164115 |
| 4 | 03/25/2005 | REC | Real Estate Contract | STIDHAM, THOMAS G | KELLER, JAYLA | | | $399,500.00 | 81462 | 4129190 |
| 5 | 07/10/2004 | REC | Real Estate Contract | MADDEX, JAMES A | STIDHAM, THOMAS G | | | $0.00 | 60984 | 4164119 |
Payout Agreement
| No payout information available.. |