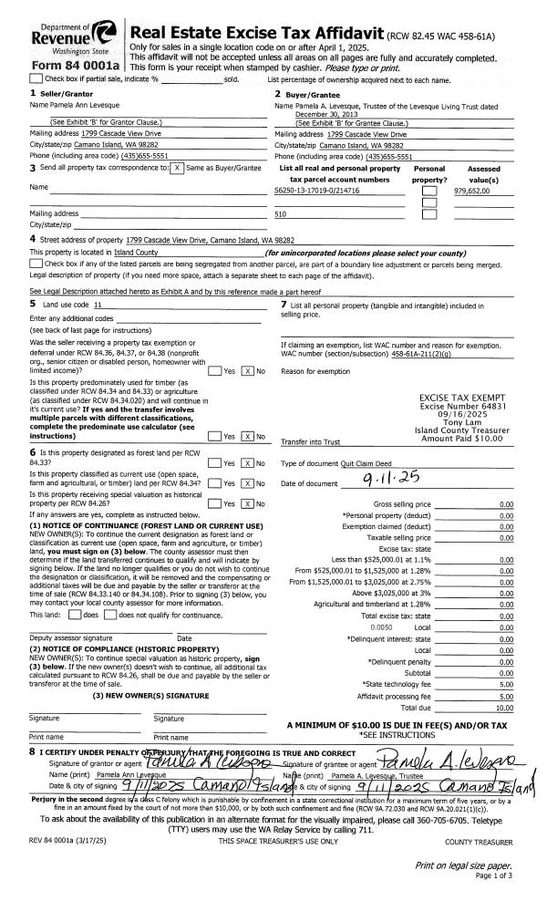
Property
Account |
| Property ID: | 809733 | Abbreviated Legal Description: | SAN DE FUCA ALL OF BLK 98; LOTS 11, 12, 13, 14, 15 & 16 BLK 84; ALL OF BLK 85 TGW ADJ VAC STREETS & ALLEYS IF ANY |
| Geographic ID: | S8060-00-84011-0 | Agent Code: | |
| Type: | Real | | |
| Tax Area: | 339 - APPRAISER-Cpvl Schl Dist, Special Dist, vacant & 50 acres or less | Land Use Code | 99 |
| Open Space: | N | DFL | N |
| Historic Property: | N | Remodel Property: | N |
| Multi-Family Redevelopment: | N | | |
| Township: | | Section: | |
| Range: | |
Location |
| Address: | | Mapsco: | |
| Neighborhood: | Cycle 2 | Map ID: | 145 |
| Neighborhood CD: | 2 |
Owner |
| Name: | WHIDBEY RE VENTURES LLC | Owner ID: | 196101 |
| Mailing Address: | 316 SE PIONEER WAY #194 OAK HARBOR, WA 98277 | % Ownership: | 100.0000000000% |
| | | Exemptions: | |
Taxes and Assessment Details
Values
| (+) Improvement Homesite Value: | + | $0 | |
| (+) Improvement Non-Homesite Value: | + | $0 | |
| (+) Land Homesite Value: | + | $0 | |
| (+) Land Non-Homesite Value: | + | $250,000 | |
| (+) Curr Use (HS): | + | $0 | $0 |
| (+) Curr Use (NHS): | + | $0 | $0 |
| | | -------------------------- | |
| (=) Market Value: | = | $250,000 | |
| (–) Productivity Loss: | – | $0 | |
| | | -------------------------- | |
| (=) Subtotal: | = | $250,000 | |
| (+) Senior Appraised Value: | + | $0 | |
| (+) Non-Senior Appraised Value: | + | $250,000 | |
| | | -------------------------- | |
| (=) Total Appraised Value: | = | $250,000 | |
| (–) Senior Exemption Loss: | – | $0 | |
| (–) Exemption Loss: | – | $0 | |
| | | -------------------------- | |
| (=) Taxable Value: | = | $250,000 | |
Taxing Jurisdiction
| Owner: | WHIDBEY RE VENTURES LLC | | |
| % Ownership: | 100.0000000000% | | |
| Total Value: | $250,000 | | |
| Tax Area: | 339 - APPRAISER-Cpvl Schl Dist, Special Dist, vacant & 50 acres or less |
| CF | Conservation Futures | 0.0316035091 | $250,000 | $250,000 | $7.90 | | |
| CEM2 | Cemetery #2 | 0.0095056933 | $250,000 | $250,000 | $2.38 | | |
| HOBOND | Hospital BOND | 0.1910887512 | $250,000 | $250,000 | $47.77 | | |
| HOGEN | Hospital GEN | 0.3902502903 | $250,000 | $250,000 | $97.56 | | |
| CE | County Current Expense | 0.3708482477 | $250,000 | $250,000 | $92.71 | | |
| CR | County Roads | 0.4584763726 | $250,000 | $250,000 | $114.62 | | |
| ISLANDEMS | Hospital GEN (EMS) | 0.5000000000 | $250,000 | $250,000 | $125.00 | | |
| LIB | Library Sno-Isle GEN | 0.3153421757 | $250,000 | $250,000 | $78.84 | | |
| LIBCAP | Library Sno-Isle BOND (Cap Fac Imp Area) | 0.0543427938 | $250,000 | $250,000 | $13.59 | | |
| POCOUP | Port of Coupeville GEN | 0.1093371703 | $250,000 | $250,000 | $27.33 | | |
| POCOUPIDD | Port of Coupeville IDD | 0.3409740022 | $250,000 | $250,000 | $85.24 | | |
| COUPSDTECH | School 204 CP (TECH) | 0.7545480007 | $250,000 | $250,000 | $188.64 | | |
| SCH204MO | School 204 Enrichment | 0.6716186034 | $250,000 | $250,000 | $167.90 | | |
| ST | State School | 1.3035497053 | $250,000 | $250,000 | $325.89 | | |
| ST2 | State School Part 2 | 0.8169543533 | $250,000 | $250,000 | $204.24 | | |
| | Total Tax Rate: | 6.3184396689 | | | | | |
| | | | | Taxes w/Current Exemptions: | $1,579.61 | | |
| | | | | Taxes w/o Exemptions: | $1,579.61 | | |
Improvement / Building
Sketch
| No sketches available for this property. |
Property Image
Land
| 1 | 32 | AC (03.01-09.99) | 6.2000 | 0.00 | 0.00 | 0.00 | 1.00 | $250,000 | $0 |
Roll Value History
| 2026 | N/A | N/A | N/A | N/A | N/A |
| 2025 | $0 | $250,000 | $0 | $250,000 | $250,000 |
| 2024 | $0 | $250,000 | $0 | $250,000 | $250,000 |
| 2023 | $0 | $250,000 | $0 | $250,000 | $250,000 |
| 2022 | $0 | $240,000 | $0 | $240,000 | $240,000 |
| 2021 | $0 | $220,000 | $0 | $220,000 | $220,000 |
| 2020 | $0 | $220,000 | $0 | $220,000 | $220,000 |
| 2019 | $0 | $200,000 | $0 | $200,000 | $200,000 |
| 2018 | $0 | $170,000 | $0 | $170,000 | $170,000 |
| 2017 | $0 | $170,000 | $0 | $170,000 | $170,000 |
| 2016 | $0 | $170,000 | $0 | $170,000 | $170,000 |
| 2015 | $0 | $130,000 | $0 | $130,000 | $130,000 |
| 2014 | $0 | $130,000 | $0 | $130,000 | $130,000 |
| 2013 | $0 | $167,400 | $0 | $167,400 | $167,400 |
| 2012 | $0 | $167,400 | $0 | $167,400 | $167,400 |
| 2011 | $0 | $167,400 | $0 | $167,400 | $167,400 |
| 2010 | $0 | $167,400 | $0 | $167,400 | $167,400 |
| 2009 | $0 | $217,000 | $0 | $217,000 | $217,000 |
| 2008 | $0 | $0 | $0 | $312,239 | $312,239 |
| 2007 | $0 | $0 | $0 | $231,224 | $231,224 |
Deed and Sales History
| 1 | 04/15/2025 | WD | Warranty Deed | YONKMAN, SCOTT | WHIDBEY RE VENTURES LLC | | | $250,000.00 | 63142 | 4584528 |
| 2 | 12/28/2020 | QCD | Quit Claim Deed | YONKMAN CONST. INC | YONKMAN, SCOTT | | | $0.00 | 46342 | 4506597 |
| 3 | 04/23/2009 | BLA | DNU - Boundary Line Adjustment | Unknown | MADDEX, SHARON A / JAMES A | | | $0.00 | 81160 | 4164115 |
| 4 | 02/27/2006 | WD | Warranty Deed | MADDEX, SHARON A / JAMES A | YONKMAN CONST. INC, | | | $138,650.00 | 60983 | 4164118 |
Payout Agreement
| No payout information available.. |