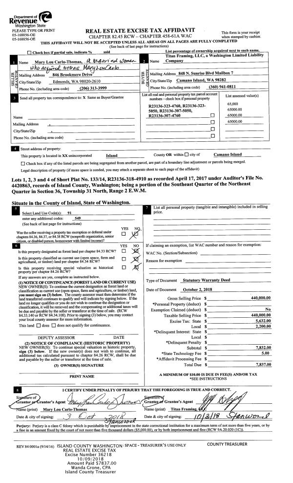
Property
Account |
| Property ID: | 809750 | Abbreviated Legal Description: | LOT 1 SP 199-08.03213.097-4300 AF#4249623 EX W25' OF N MST 189.06' |
| Geographic ID: | R03213-094-4410 | Agent Code: | |
| Type: | Real | | |
| Tax Area: | 112 - APPRAISER-OH Schl Dist, outside OH, improved, greater than 1 acre | Land Use Code | 11 |
| Open Space: | N | DFL | N |
| Historic Property: | N | Remodel Property: | N |
| Multi-Family Redevelopment: | N | | |
| Township: | 32 | Section: | 13 |
| Range: | R0 |
Location |
| Address: | 1258 WEST BEACH RD OAK HARBOR, WA 98277 | Mapsco: | |
| Neighborhood: | Cycle 2 | Map ID: | 1 |
| Neighborhood CD: | 2 |
Owner |
| Name: | JONES, PATRICIA A | Owner ID: | 309232 |
| Mailing Address: | 1258 WEST BEACH RD OAK HARBOR, WA 98277 | % Ownership: | 100.0000000000% |
| | | Exemptions: | |
Taxes and Assessment Details
Values
| (+) Improvement Homesite Value: | + | $0 | |
| (+) Improvement Non-Homesite Value: | + | $617,936 | |
| (+) Land Homesite Value: | + | $0 | |
| (+) Land Non-Homesite Value: | + | $343,976 | |
| (+) Curr Use (HS): | + | $0 | $0 |
| (+) Curr Use (NHS): | + | $0 | $0 |
| | | -------------------------- | |
| (=) Market Value: | = | $961,912 | |
| (–) Productivity Loss: | – | $0 | |
| | | -------------------------- | |
| (=) Subtotal: | = | $961,912 | |
| (+) Senior Appraised Value: | + | $0 | |
| (+) Non-Senior Appraised Value: | + | $961,912 | |
| | | -------------------------- | |
| (=) Total Appraised Value: | = | $961,912 | |
| (–) Senior Exemption Loss: | – | $0 | |
| (–) Exemption Loss: | – | $0 | |
| | | -------------------------- | |
| (=) Taxable Value: | = | $961,912 | |
Taxing Jurisdiction
| Owner: | JONES, PATRICIA A | | |
| % Ownership: | 100.0000000000% | | |
| Total Value: | $961,912 | | |
| Tax Area: | 112 - APPRAISER-OH Schl Dist, outside OH, improved, greater than 1 acre |
| CF | Conservation Futures | 0.0316035091 | $961,912 | $961,912 | $30.40 | | |
| CEM1 | Cemetery #1 | 0.0040320932 | $961,912 | $961,912 | $3.88 | | |
| FIRE2 | Fire & Rescue Dist #2 N Whidbey GEN | 0.5475949600 | $961,912 | $961,912 | $526.74 | | |
| HOBOND | Hospital BOND | 0.1910887512 | $961,912 | $961,912 | $183.81 | | |
| HOGEN | Hospital GEN | 0.3902502903 | $961,912 | $961,912 | $375.39 | | |
| CE | County Current Expense | 0.3708482477 | $961,912 | $961,912 | $356.72 | | |
| CR | County Roads | 0.4584763726 | $961,912 | $961,912 | $441.01 | | |
| ISLANDEMS | Hospital GEN (EMS) | 0.5000000000 | $961,912 | $961,912 | $480.96 | | |
| LIB | Library Sno-Isle GEN | 0.3153421757 | $961,912 | $961,912 | $303.33 | | |
| NWHIDPRMT | P & R N Whidbey GEN | 0.2004466701 | $961,912 | $961,912 | $192.81 | | |
| SCH201MO | School 201 Enrichment | 1.8559231640 | $961,912 | $961,912 | $1,785.23 | | |
| ST | State School | 1.3035497053 | $961,912 | $961,912 | $1,253.90 | | |
| ST2 | State School Part 2 | 0.8169543533 | $961,912 | $961,912 | $785.84 | | |
| | Total Tax Rate: | 6.9861102925 | | | | | |
| | | | | Taxes w/Current Exemptions: | $6,720.02 | | |
| | | | | Taxes w/o Exemptions: | $6,720.02 | | |
Improvement / Building
| Improvement #1: | RESIDENTIAL | State Code: | Y | 2808.4 sqft | Value: | $617,936 |
| Bathrooms: | 3.75 | Bedrooms: | 2 | | Ceiling: | DRYWALL PAINTED | Exterior Wall/Cover: | CEMENT FIBER | | Floor Covering: | HARDWOOD/CARP 60-40 | Floor Structure: | WOOD W/SUBFLOOR | | Foundation: | CONCRETE | Heating: | FHA GAS | | Interior Finish: | DRYWALL PAINT | Plumbing Fixture Cnt: | 15 | | Roof Slope: | 6" IN 12" | Roof Structure/Cover: | CJ ASPHALT |
|
| | Type | Description | Class CD | Sub Class CD | Year Built | Area |
| | BAS | BASE/MAIN FLOOR | 4 | 0 | 1995 | 1681.3 |
| | OP4 | OPEN PORCH W/CEILING-ROOF | 4 | 0 | 1995 | 48.6 |
| | AGR | ATTACHED GARAGE | 4 | 0 | 1995 | 738.2 |
| | UPS | UPPER STORY | 4 | 0 | 1995 | 999.1 |
| | OWR | OPEN WOOD PORCH W/STEPS/ROOF | 4 | 0 | 1995 | 200.0 |
| | OWP | OPEN WOOD PORCH W/STEPS | 4 | 0 | 1995 | 1007.4 |
| | LOF | LOFT | 4 | 0 | 1995 | 128.0 |
| | ENP | ENCLOSED PORCH | 4 | 0 | 1995 | 336.0 |
| | CPD | OPEN CARPORT DIRT FLOOR | 4 | 0 | 1995 | 1317.0 |
Sketch
Property Image
Land
| 1 | HS | HOMESITE | 1.0000 | 43560.00 | 0.00 | 0.00 | 1.00 | $220,000 | $0 |
| 2 | 91 | UNDEVELOPED LAND-METES AND BOUNDS | 5.9500 | 259182.00 | 0.00 | 0.00 | 1.00 | $123,976 | $0 |
Roll Value History
| 2026 | N/A | N/A | N/A | N/A | N/A |
| 2025 | $617,936 | $343,976 | $0 | $961,912 | $961,912 |
| 2024 | $596,192 | $300,000 | $0 | $896,192 | $896,192 |
| 2023 | $603,439 | $280,000 | $0 | $883,439 | $883,439 |
| 2022 | $552,975 | $260,000 | $0 | $812,975 | $812,975 |
| 2021 | $486,563 | $170,000 | $0 | $656,563 | $656,563 |
| 2020 | $474,240 | $160,000 | $0 | $634,240 | $634,240 |
| 2019 | $365,061 | $210,000 | $0 | $575,061 | $575,061 |
| 2018 | $321,061 | $180,000 | $0 | $501,061 | $501,061 |
| 2017 | $322,930 | $170,000 | $0 | $492,930 | $492,930 |
| 2016 | $326,624 | $170,000 | $0 | $496,624 | $496,624 |
| 2015 | $330,317 | $170,000 | $0 | $500,317 | $500,317 |
| 2014 | $334,012 | $171,558 | $0 | $505,570 | $505,570 |
| 2013 | $337,706 | $171,558 | $0 | $509,264 | $509,264 |
| 2012 | $341,401 | $171,558 | $0 | $512,959 | $512,959 |
| 2011 | $363,307 | $190,620 | $0 | $553,927 | $553,927 |
| 2010 | $372,570 | $190,620 | $0 | $563,190 | $563,190 |
| 2009 | $388,764 | $253,760 | $0 | $642,524 | $642,524 |
Deed and Sales History
| 1 | 06/27/2023 | PRD | Personal Representatives Deed | JONES, ROBERT S / PATRICIA A | JONES, PATRICIA A | | | $0.00 | 57244 | 4561999 |
| 2 | 01/01/1900 | OTHER | Other - Misc. Documents | Unknown | JONES, ROBERT S / PATRICIA | | | $0.00 | 0 | 0 |
Payout Agreement
| No payout information available.. |