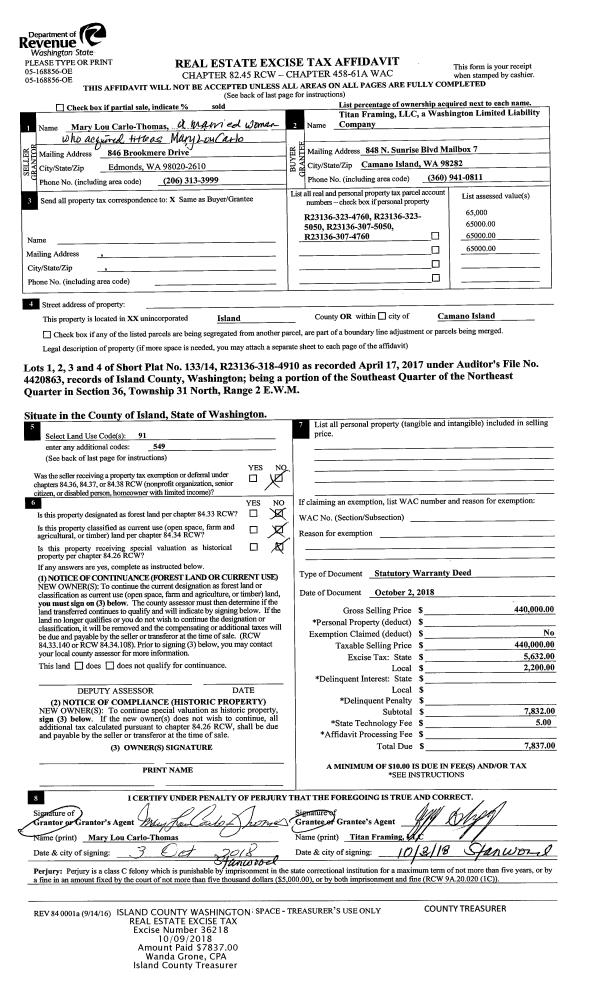
Property
Account |
| Property ID: | 809751 | Abbreviated Legal Description: | LOT 2 SP 199-08.03213.097-4300 AF#4249623 TGW W25' OF N MST 189.06' OF LOT 1 SD SHORT PLAT |
| Geographic ID: | R03213-113-4100 | Agent Code: | |
| Type: | Real | | |
| Tax Area: | 112 - APPRAISER-OH Schl Dist, outside OH, improved, greater than 1 acre | Land Use Code | 11 |
| Open Space: | N | DFL | N |
| Historic Property: | N | Remodel Property: | N |
| Multi-Family Redevelopment: | N | | |
| Township: | 32 | Section: | 13 |
| Range: | R0 |
Location |
| Address: | 1262 WEST BEACH RD OAK HARBOR, WA 98277 | Mapsco: | |
| Neighborhood: | Cycle 2 | Map ID: | 1 |
| Neighborhood CD: | 2 |
Owner |
| Name: | JONES, JAY P | Owner ID: | 255419 |
| Mailing Address: | ASHLEY R JONES 1262 WEST BEACH RD OAK HARBOR, WA 98277 | % Ownership: | 100.0000000000% |
| | | Exemptions: | |
Taxes and Assessment Details
Values
| (+) Improvement Homesite Value: | + | $0 | |
| (+) Improvement Non-Homesite Value: | + | $446,249 | |
| (+) Land Homesite Value: | + | $0 | |
| (+) Land Non-Homesite Value: | + | $311,369 | |
| (+) Curr Use (HS): | + | $0 | $0 |
| (+) Curr Use (NHS): | + | $0 | $0 |
| | | -------------------------- | |
| (=) Market Value: | = | $757,618 | |
| (–) Productivity Loss: | – | $0 | |
| | | -------------------------- | |
| (=) Subtotal: | = | $757,618 | |
| (+) Senior Appraised Value: | + | $0 | |
| (+) Non-Senior Appraised Value: | + | $757,618 | |
| | | -------------------------- | |
| (=) Total Appraised Value: | = | $757,618 | |
| (–) Senior Exemption Loss: | – | $0 | |
| (–) Exemption Loss: | – | $0 | |
| | | -------------------------- | |
| (=) Taxable Value: | = | $757,618 | |
Taxing Jurisdiction
| Owner: | JONES, JAY P | | |
| % Ownership: | 100.0000000000% | | |
| Total Value: | $757,618 | | |
| Tax Area: | 112 - APPRAISER-OH Schl Dist, outside OH, improved, greater than 1 acre |
| CF | Conservation Futures | 0.0316035091 | $757,618 | $757,618 | $23.94 | | |
| CEM1 | Cemetery #1 | 0.0040320932 | $757,618 | $757,618 | $3.05 | | |
| FIRE2 | Fire & Rescue Dist #2 N Whidbey GEN | 0.5475949600 | $757,618 | $757,618 | $414.87 | | |
| HOBOND | Hospital BOND | 0.1910887512 | $757,618 | $757,618 | $144.77 | | |
| HOGEN | Hospital GEN | 0.3902502903 | $757,618 | $757,618 | $295.66 | | |
| CE | County Current Expense | 0.3708482477 | $757,618 | $757,618 | $280.96 | | |
| CR | County Roads | 0.4584763726 | $757,618 | $757,618 | $347.35 | | |
| ISLANDEMS | Hospital GEN (EMS) | 0.5000000000 | $757,618 | $757,618 | $378.81 | | |
| LIB | Library Sno-Isle GEN | 0.3153421757 | $757,618 | $757,618 | $238.91 | | |
| NWHIDPRMT | P & R N Whidbey GEN | 0.2004466701 | $757,618 | $757,618 | $151.86 | | |
| SCH201MO | School 201 Enrichment | 1.8559231640 | $757,618 | $757,618 | $1,406.08 | | |
| ST | State School | 1.3035497053 | $757,618 | $757,618 | $987.59 | | |
| ST2 | State School Part 2 | 0.8169543533 | $757,618 | $757,618 | $618.94 | | |
| | Total Tax Rate: | 6.9861102925 | | | | | |
| | | | | Taxes w/Current Exemptions: | $5,292.79 | | |
| | | | | Taxes w/o Exemptions: | $5,292.79 | | |
Improvement / Building
| Improvement #1: | RESIDENTIAL | State Code: | Y | 2347.0 sqft | Value: | $446,249 |
| Bathrooms: | 2.5 | Bedrooms: | 4 | | Ceiling: | DRYWALL PAINTED | Cooling: | HEAT PUMP/CONV/V | | Exterior Wall/Cover: | CEMENT FIBER | Floor Covering: | HARDWOOD/CARP 20-80 | | Floor Structure: | WOOD W/SUBFLOOR | Foundation: | CONCRETE | | Interior Finish: | DRYWALL PAINT | Plumbing Fixture Cnt: | 14 | | Roof Slope: | 5" IN 12" | Roof Structure/Cover: | CJ ASPHALT |
|
| | Type | Description | Class CD | Sub Class CD | Year Built | Area |
| | BAS | BASE/MAIN FLOOR | 3 | 0 | 2016 | 1642.0 |
| | UPS | UPPER STORY | 3 | 0 | 2016 | 705.0 |
| | AGR | ATTACHED GARAGE | 3 | 0 | 2016 | 504.0 |
| | OP4 | OPEN PORCH W/CEILING-ROOF | 3 | 0 | 2016 | 153.5 |
| | OWP | OPEN WOOD PORCH W/STEPS | 3 | 0 | 2016 | 288.0 |
| | OP1 | OPEN PORCH SLAB | 3 | 0 | 2016 | 684.0 |
Sketch
Property Image
Land
| 1 | HS | HOMESITE | 1.0000 | 43560.00 | 0.00 | 0.00 | 1.00 | $220,000 | $0 |
| 2 | 91 | UNDEVELOPED LAND-METES AND BOUNDS | 1.6500 | 71874.00 | 0.00 | 0.00 | 1.00 | $91,369 | $0 |
Roll Value History
| 2026 | N/A | N/A | N/A | N/A | N/A |
| 2025 | $446,249 | $311,369 | $0 | $757,618 | $757,618 |
| 2024 | $435,541 | $280,000 | $0 | $715,541 | $715,541 |
| 2023 | $439,111 | $270,000 | $0 | $709,111 | $709,111 |
| 2022 | $400,864 | $250,000 | $0 | $650,864 | $650,864 |
| 2021 | $351,379 | $150,000 | $0 | $501,379 | $501,379 |
| 2020 | $341,034 | $150,000 | $0 | $491,034 | $491,034 |
| 2019 | $265,682 | $180,000 | $0 | $445,682 | $445,682 |
| 2018 | $266,367 | $160,000 | $0 | $426,367 | $426,367 |
| 2017 | $267,731 | $150,000 | $0 | $417,731 | $417,731 |
| 2016 | $273,195 | $120,000 | $0 | $393,195 | $393,195 |
| 2015 | $0 | $100,000 | $0 | $100,000 | $100,000 |
| 2014 | $0 | $93,000 | $0 | $93,000 | $93,000 |
| 2013 | $0 | $93,000 | $0 | $93,000 | $93,000 |
| 2012 | $0 | $93,000 | $0 | $93,000 | $93,000 |
| 2011 | $0 | $93,000 | $0 | $93,000 | $93,000 |
| 2010 | $0 | $93,000 | $0 | $93,000 | $93,000 |
| 2009 | $0 | $93,000 | $0 | $93,000 | $93,000 |
Deed and Sales History
| 1 | 06/15/2015 | WD | Warranty Deed | JONES, JAY P | JONES, JAY P | | | $0.00 | 20035 | 4380328 |
| 2 | 04/24/2015 | QCD | Quit Claim Deed | JONES, JAY P | JONES, JAY P | | | $0.00 | 19299 | 4377166 |
| 3 | 08/27/2011 | WD | Warranty Deed | JONES, ROBERT S / PATRICIA A | JONES, JAY P | | | $115,000.00 | 5418 | 4300552 |
| 4 | 01/01/1900 | OTHER | Other - Misc. Documents | Unknown | JONES, ROBERT S / PATRICIA | | | $0.00 | 0 | 0 |
Payout Agreement
| No payout information available.. |