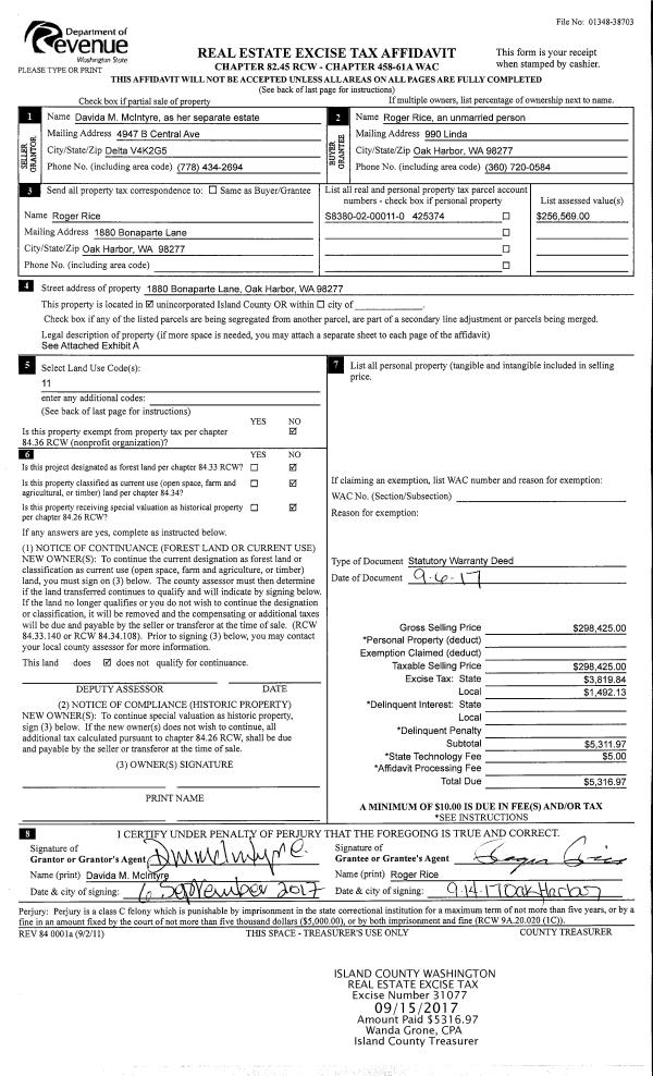
Property
Account |
| Property ID: | 80977 | Abbreviated Legal Description: | 33 - E450' OF N/2 NW NW EX CO RD |
| Geographic ID: | R23114-492-1150 | Agent Code: | |
| Type: | Real | | |
| Tax Area: | 512 - APPRAISER-Stan/Cam Schl Dist, improved, greater than 1 acre | Land Use Code | 11 |
| Open Space: | N | DFL | N |
| Historic Property: | N | Remodel Property: | N |
| Multi-Family Redevelopment: | N | | |
| Township: | 31 | Section: | 14 |
| Range: | R2 |
Location |
| Address: | 715 CAMANO HILL RD CAMANO ISLAND, WA 98282 | Mapsco: | |
| Neighborhood: | Cycle 5 | Map ID: | 483 |
| Neighborhood CD: | 5 |
Owner |
| Name: | MILLHOUSE, JOSEPH | Owner ID: | 280355 |
| Mailing Address: | VICKIE MILLHOUSE 715 W CAMANO HILL RD CAMANO ISLAND, WA 98282 | % Ownership: | 100.0000000000% |
| | | Exemptions: | |
Taxes and Assessment Details
Values
| (+) Improvement Homesite Value: | + | $0 | |
| (+) Improvement Non-Homesite Value: | + | $630,646 | |
| (+) Land Homesite Value: | + | $0 | |
| (+) Land Non-Homesite Value: | + | $410,000 | |
| (+) Curr Use (HS): | + | $0 | $0 |
| (+) Curr Use (NHS): | + | $0 | $0 |
| | | -------------------------- | |
| (=) Market Value: | = | $1,040,646 | |
| (–) Productivity Loss: | – | $0 | |
| | | -------------------------- | |
| (=) Subtotal: | = | $1,040,646 | |
| (+) Senior Appraised Value: | + | $0 | |
| (+) Non-Senior Appraised Value: | + | $1,040,646 | |
| | | -------------------------- | |
| (=) Total Appraised Value: | = | $1,040,646 | |
| (–) Senior Exemption Loss: | – | $0 | |
| (–) Exemption Loss: | – | $0 | |
| | | -------------------------- | |
| (=) Taxable Value: | = | $1,040,646 | |
Taxing Jurisdiction
| Owner: | MILLHOUSE, JOSEPH | | |
| % Ownership: | 100.0000000000% | | |
| Total Value: | $1,040,646 | | |
| Tax Area: | 512 - APPRAISER-Stan/Cam Schl Dist, improved, greater than 1 acre |
| CF | Conservation Futures | 0.0316035091 | $1,040,646 | $1,040,646 | $32.89 | | |
| EMS1 | Fire & Rescue Dist #1 Camano GEN (EMS) | 0.3677864386 | $1,040,646 | $1,040,646 | $382.74 | | |
| FIRE1 | Fire & Rescue Dist #1 Camano GEN | 1.2502910536 | $1,040,646 | $1,040,646 | $1,301.11 | | |
| FIRE1BOND | Fire & Rescue Dist #1 Camano BOND | 0.1570001679 | $1,040,646 | $1,040,646 | $163.38 | | |
| CE | County Current Expense | 0.3708482477 | $1,040,646 | $1,040,646 | $385.92 | | |
| CR | County Roads | 0.4584763726 | $1,040,646 | $1,040,646 | $477.11 | | |
| LCIB | Library Sno-Isle BOND (Camano Island) | 0.0396325772 | $1,040,646 | $1,040,646 | $41.24 | | |
| LIB | Library Sno-Isle GEN | 0.3153421757 | $1,040,646 | $1,040,646 | $328.16 | | |
| SCH205_401 | School 205-401 Enrichment | 1.2698420524 | $1,040,646 | $1,040,646 | $1,321.46 | | |
| SCH205BOND | School 205-401 BOND | 0.9396497583 | $1,040,646 | $1,040,646 | $977.84 | | |
| ST | State School | 1.3035497053 | $1,040,646 | $1,040,646 | $1,356.53 | | |
| ST2 | State School Part 2 | 0.8169543533 | $1,040,646 | $1,040,646 | $850.16 | | |
| | Total Tax Rate: | 7.3209764117 | | | | | |
| | | | | Taxes w/Current Exemptions: | $7,618.54 | | |
| | | | | Taxes w/o Exemptions: | $7,618.54 | | |
Improvement / Building
| Improvement #1: | RESIDENTIAL | State Code: | Y | 3275.0 sqft | Value: | $630,646 |
| Bathrooms: | 2.5 | Bedrooms: | 2 | | Ceiling: | DRYWALL PAINTED | Exterior Wall/Cover: | WOOD SIDING | | Floor Covering: | HARDWOOD/CARP 60-40 | Floor Structure: | WOOD W/SUBFLOOR | | Foundation: | CONCRETE | Heating: | WALL HEAT ELECTRIC | | Interior Finish: | DRYWALL PAINT | Plumbing Fixture Cnt: | 14 | | Roof Slope: | 4" IN 12" | Roof Structure/Cover: | BEAM ALUMINUM HEAVY |
|
| | Type | Description | Class CD | Sub Class CD | Year Built | Area |
| | BAS | BASE/MAIN FLOOR | 3 | 0 | 1989 | 1645.5 |
| | DWN | DOWNSTAIRS LIVING AREA | 3 | 0 | 1989 | 1629.5 |
| | OWP | OPEN WOOD PORCH W/STEPS | 3 | 0 | 1989 | 392.0 |
| | OWP | OPEN WOOD PORCH W/STEPS | 3 | 0 | 1989 | 184.8 |
| | OWP | OPEN WOOD PORCH W/STEPS | 3 | 0 | 1989 | 96.0 |
| | OWC | OPEN WOOD PORCH W/STEPS/ROOF/C | 3 | 0 | 1989 | 218.5 |
| | OCP | OPEN CARPORT | 3 | 0 | 1989 | 345.0 |
| | OCP | OPEN CARPORT | 3 | 0 | 1989 | 345.0 |
| | DGR | DETACHED GARAGE | 3 | 0 | 1989 | 720.0 |
| | UTY | STORAGE/UTILITY | 3 | 0 | 1989 | 256.0 |
| | DGR | DETACHED GARAGE | 3 | 0 | 1989 | 960.0 |
| | OCP | OPEN CARPORT | 3 | 0 | 1989 | 240.0 |
| | DGR | DETACHED GARAGE | 3 | 0 | 1989 | 1813.0 |
| | OCP | OPEN CARPORT | 3 | 0 | 1989 | 3600.0 |
Sketch
Property Image
Land
| 1 | 32 | AC (03.01-09.99) | 6.6200 | 0.00 | 0.00 | 0.00 | 1.00 | $410,000 | $0 |
Roll Value History
| 2026 | N/A | N/A | N/A | N/A | N/A |
| 2025 | $630,646 | $410,000 | $0 | $1,040,646 | $1,040,646 |
| 2024 | $638,605 | $390,000 | $0 | $1,028,605 | $1,028,605 |
| 2023 | $646,560 | $380,000 | $0 | $1,026,560 | $1,026,560 |
| 2022 | $592,637 | $350,000 | $0 | $942,637 | $942,637 |
| 2021 | $521,627 | $210,000 | $0 | $731,627 | $731,627 |
| 2020 | $509,507 | $200,000 | $0 | $709,507 | $709,507 |
| 2019 | $413,968 | $250,000 | $0 | $663,968 | $663,968 |
| 2018 | $415,181 | $220,000 | $0 | $635,181 | $635,181 |
| 2017 | $295,826 | $200,000 | $0 | $495,826 | $495,826 |
| 2016 | $299,661 | $160,000 | $0 | $459,661 | $459,661 |
| 2015 | $293,563 | $185,360 | $0 | $478,923 | $478,923 |
| 2014 | $296,538 | $185,360 | $0 | $481,898 | $481,898 |
| 2013 | $299,514 | $185,360 | $0 | $484,874 | $484,874 |
| 2012 | $302,489 | $185,360 | $0 | $487,849 | $487,849 |
| 2011 | $305,466 | $231,700 | $0 | $537,166 | $537,166 |
| 2010 | $317,285 | $231,700 | $0 | $548,985 | $548,985 |
| 2009 | $320,223 | $211,840 | $0 | $532,063 | $532,063 |
| 2008 | $325,185 | $214,091 | $0 | $539,276 | $539,276 |
| 2007 | $330,449 | $214,091 | $0 | $544,540 | $544,540 |
Deed and Sales History
| 1 | 06/07/2017 | WD | Warranty Deed | EVANS, JAMES P | MILLHOUSE, JOSEPH | | | $600,000.00 | 29708 | 4424136 |
| 2 | 05/01/1987 | WD | Warranty Deed | JENSEN, ROBERT M | EVANS, JAMES P | | | $48,000.00 | 71285 | 87006351 |
| 3 | 01/01/1900 | OTHER | Other - Misc. Documents | Unknown | JENSEN, ROBERT M | | | $0.00 | 0 | 0 |
Payout Agreement
| No payout information available.. |