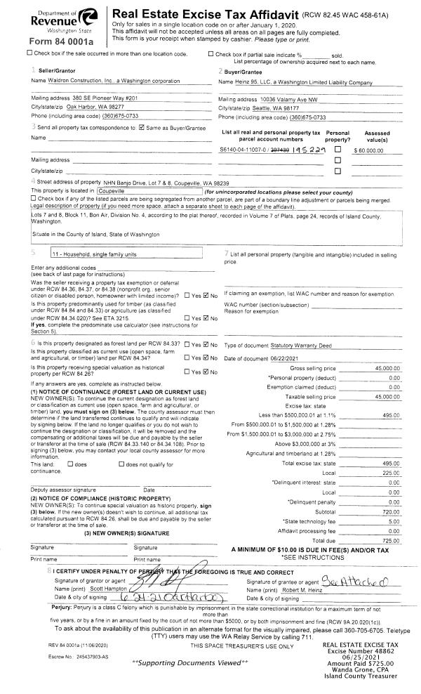
Property
Account |
| Property ID: | 809790 | Abbreviated Legal Description: | LYLE RIDGE LOT 12 |
| Geographic ID: | S7414-00-00012-0 | Agent Code: | |
| Type: | Real | | |
| Tax Area: | 120 - APPRAISER-OH Schl Dist, Special Dist, improved & 1 acre or less | Land Use Code | 11 |
| Open Space: | N | DFL | N |
| Historic Property: | N | Remodel Property: | N |
| Multi-Family Redevelopment: | N | | |
| Township: | | Section: | |
| Range: | |
Location |
| Address: | 978 LYLE RIDGE CIR OAK HARBOR, WA 98277 | Mapsco: | |
| Neighborhood: | Cycle 2 | Map ID: | 154 |
| Neighborhood CD: | 2 |
Owner |
| Name: | HEARD, RICHARD DEAN | Owner ID: | 297608 |
| Mailing Address: | JUNGWOOK HEARD 978 LYLE RIDGE CIR OAK HARBOR, WA 98277 | % Ownership: | 100.0000000000% |
| | | Exemptions: | |
Taxes and Assessment Details
Values
| (+) Improvement Homesite Value: | + | $0 | |
| (+) Improvement Non-Homesite Value: | + | $520,935 | |
| (+) Land Homesite Value: | + | $0 | |
| (+) Land Non-Homesite Value: | + | $225,000 | |
| (+) Curr Use (HS): | + | $0 | $0 |
| (+) Curr Use (NHS): | + | $0 | $0 |
| | | -------------------------- | |
| (=) Market Value: | = | $745,935 | |
| (–) Productivity Loss: | – | $0 | |
| | | -------------------------- | |
| (=) Subtotal: | = | $745,935 | |
| (+) Senior Appraised Value: | + | $0 | |
| (+) Non-Senior Appraised Value: | + | $745,935 | |
| | | -------------------------- | |
| (=) Total Appraised Value: | = | $745,935 | |
| (–) Senior Exemption Loss: | – | $0 | |
| (–) Exemption Loss: | – | $0 | |
| | | -------------------------- | |
| (=) Taxable Value: | = | $745,935 | |
Taxing Jurisdiction
| Owner: | HEARD, RICHARD DEAN | | |
| % Ownership: | 100.0000000000% | | |
| Total Value: | $745,935 | | |
| Tax Area: | 120 - APPRAISER-OH Schl Dist, Special Dist, improved & 1 acre or less |
| CF | Conservation Futures | 0.0316035091 | $745,935 | $745,935 | $23.57 | | |
| CEM1 | Cemetery #1 | 0.0040320932 | $745,935 | $745,935 | $3.01 | | |
| FIRE2 | Fire & Rescue Dist #2 N Whidbey GEN | 0.5475949600 | $745,935 | $745,935 | $408.47 | | |
| HOBOND | Hospital BOND | 0.1910887512 | $745,935 | $745,935 | $142.54 | | |
| HOGEN | Hospital GEN | 0.3902502903 | $745,935 | $745,935 | $291.10 | | |
| CE | County Current Expense | 0.3708482477 | $745,935 | $745,935 | $276.63 | | |
| CR | County Roads | 0.4584763726 | $745,935 | $745,935 | $341.99 | | |
| ISLANDEMS | Hospital GEN (EMS) | 0.5000000000 | $745,935 | $745,935 | $372.97 | | |
| LIB | Library Sno-Isle GEN | 0.3153421757 | $745,935 | $745,935 | $235.22 | | |
| NWHIDPRMT | P & R N Whidbey GEN | 0.2004466701 | $745,935 | $745,935 | $149.52 | | |
| SCH201MO | School 201 Enrichment | 1.8559231640 | $745,935 | $745,935 | $1,384.40 | | |
| ST | State School | 1.3035497053 | $745,935 | $745,935 | $972.36 | | |
| ST2 | State School Part 2 | 0.8169543533 | $745,935 | $745,935 | $609.39 | | |
| | Total Tax Rate: | 6.9861102925 | | | | | |
| | | | | Taxes w/Current Exemptions: | $5,211.17 | | |
| | | | | Taxes w/o Exemptions: | $5,211.17 | | |
Improvement / Building
| Improvement #1: | RESIDENTIAL | State Code: | Y | 3815.0 sqft | Value: | $520,935 |
| Bathrooms: | 2.75 | Bedrooms: | 4 | | Ceiling: | DRYWALL PAINTED | Cooling: | HEAT PUMP/CONV/V | | Exterior Wall/Cover: | PLY/HARDBOARD T-111 | Floor Covering: | HARDWOOD/CARP 20-80 | | Floor Structure: | WOOD W/SUBFLOOR | Foundation: | CONCRETE | | Interior Finish: | DRYWALL PAINT | Plumbing Fixture Cnt: | 12 | | Roof Slope: | 6" IN 12" | Roof Structure/Cover: | CJ ASPHALT |
|
| | Type | Description | Class CD | Sub Class CD | Year Built | Area |
| | BAS | BASE/MAIN FLOOR | 3 | 0 | 2013 | 1641.5 |
| | UPS | UPPER STORY | 3 | 0 | 2013 | 2173.5 |
| | BIG | BUILT IN GARAGE | 3 | 0 | 2013 | 777.0 |
| | OP4 | OPEN PORCH W/CEILING-ROOF | 3 | 0 | 2013 | 56.2 |
| | OP1 | OPEN PORCH SLAB | 3 | 0 | 2013 | 420.0 |
Sketch
| No sketches available for this property. |
Property Image
Land
| 1 | 15 | SQ (12001-21780) | 0.4400 | 19166.40 | 0.00 | 0.00 | 1.00 | $225,000 | $0 |
Roll Value History
| 2026 | N/A | N/A | N/A | N/A | N/A |
| 2025 | $520,935 | $225,000 | $0 | $745,935 | $745,935 |
| 2024 | $515,218 | $225,000 | $0 | $740,218 | $740,218 |
| 2023 | $519,548 | $200,000 | $0 | $719,548 | $719,548 |
| 2022 | $468,397 | $210,000 | $0 | $678,397 | $678,397 |
| 2021 | $410,471 | $130,000 | $0 | $540,471 | $540,471 |
| 2020 | $399,867 | $100,000 | $0 | $499,867 | $499,867 |
| 2019 | $339,164 | $170,000 | $0 | $509,164 | $509,164 |
| 2018 | $319,691 | $170,000 | $0 | $489,691 | $489,691 |
| 2017 | $321,384 | $115,000 | $0 | $436,384 | $436,384 |
| 2016 | $324,766 | $80,000 | $0 | $404,766 | $404,766 |
| 2015 | $328,148 | $70,000 | $0 | $398,148 | $398,148 |
| 2014 | $331,531 | $60,000 | $0 | $391,531 | $391,531 |
| 2013 | $338,298 | $60,000 | $0 | $398,298 | $398,298 |
| 2012 | $0 | $63,750 | $0 | $63,750 | $63,750 |
| 2011 | $0 | $75,000 | $0 | $75,000 | $75,000 |
| 2010 | $0 | $75,000 | $0 | $75,000 | $75,000 |
| 2009 | $0 | $18,000 | $0 | $18,000 | $18,000 |
Deed and Sales History
| 1 | 12/28/2020 | QCD | Quit Claim Deed | HEARD, RICHARD D | HEARD, RICHARD DEAN | | | $0.00 | 46431 | 4507008 |
| 2 | 04/01/2013 | WD | Warranty Deed | SEATTLE PACIFIC HOMES, INC | HEARD, RICHARD D | | | $394,950.00 | 10970 | 4337389 |
| 3 | 10/09/2012 | WD | Warranty Deed | RSM DEVELOPMENT INC | SEATTLE PACIFIC HOMES, INC | | | $60,000.00 | 9170 | 4325285 |
| 4 | 01/01/1900 | OTHER | Other - Misc. Documents | Unknown | RSM DEVELOPMENT INC, | | | $0.00 | 0 | 0 |
Payout Agreement
| No payout information available.. |