Property
Account |
| Property ID: | 809792 | Abbreviated Legal Description: | LYLE RIDGE LOT 14 |
| Geographic ID: | S7414-00-00014-0 | Agent Code: | |
| Type: | Real | | |
| Tax Area: | 120 - APPRAISER-OH Schl Dist, Special Dist, improved & 1 acre or less | Land Use Code | 11 |
| Open Space: | N | DFL | N |
| Historic Property: | N | Remodel Property: | N |
| Multi-Family Redevelopment: | N | | |
| Township: | | Section: | |
| Range: | |
Location |
| Address: | 980 LYLE RIDGE CIR OAK HARBOR, WA 98277 | Mapsco: | |
| Neighborhood: | Cycle 2 | Map ID: | 154 |
| Neighborhood CD: | 2 |
Owner |
| Name: | TIMPOG, JOY C | Owner ID: | 309152 |
| Mailing Address: | JUDY E TIMPOG 980 LYLE RIDGE CIR OAK HARBOR, WA 98277 | % Ownership: | 100.0000000000% |
| | | Exemptions: | |
Taxes and Assessment Details
Values
| (+) Improvement Homesite Value: | + | $0 | |
| (+) Improvement Non-Homesite Value: | + | $559,279 | |
| (+) Land Homesite Value: | + | $0 | |
| (+) Land Non-Homesite Value: | + | $225,000 | |
| (+) Curr Use (HS): | + | $0 | $0 |
| (+) Curr Use (NHS): | + | $0 | $0 |
| | | -------------------------- | |
| (=) Market Value: | = | $784,279 | |
| (–) Productivity Loss: | – | $0 | |
| | | -------------------------- | |
| (=) Subtotal: | = | $784,279 | |
| (+) Senior Appraised Value: | + | $0 | |
| (+) Non-Senior Appraised Value: | + | $784,279 | |
| | | -------------------------- | |
| (=) Total Appraised Value: | = | $784,279 | |
| (–) Senior Exemption Loss: | – | $0 | |
| (–) Exemption Loss: | – | $0 | |
| | | -------------------------- | |
| (=) Taxable Value: | = | $784,279 | |
Taxing Jurisdiction
| Owner: | TIMPOG, JOY C | | |
| % Ownership: | 100.0000000000% | | |
| Total Value: | $784,279 | | |
| Tax Area: | 120 - APPRAISER-OH Schl Dist, Special Dist, improved & 1 acre or less |
| CF | Conservation Futures | 0.0316035091 | $784,279 | $784,279 | $24.79 | | |
| CEM1 | Cemetery #1 | 0.0040320932 | $784,279 | $784,279 | $3.16 | | |
| FIRE2 | Fire & Rescue Dist #2 N Whidbey GEN | 0.5475949600 | $784,279 | $784,279 | $429.47 | | |
| HOBOND | Hospital BOND | 0.1910887512 | $784,279 | $784,279 | $149.87 | | |
| HOGEN | Hospital GEN | 0.3902502903 | $784,279 | $784,279 | $306.07 | | |
| CE | County Current Expense | 0.3708482477 | $784,279 | $784,279 | $290.85 | | |
| CR | County Roads | 0.4584763726 | $784,279 | $784,279 | $359.57 | | |
| ISLANDEMS | Hospital GEN (EMS) | 0.5000000000 | $784,279 | $784,279 | $392.14 | | |
| LIB | Library Sno-Isle GEN | 0.3153421757 | $784,279 | $784,279 | $247.32 | | |
| NWHIDPRMT | P & R N Whidbey GEN | 0.2004466701 | $784,279 | $784,279 | $157.21 | | |
| SCH201MO | School 201 Enrichment | 1.8559231640 | $784,279 | $784,279 | $1,455.56 | | |
| ST | State School | 1.3035497053 | $784,279 | $784,279 | $1,022.35 | | |
| ST2 | State School Part 2 | 0.8169543533 | $784,279 | $784,279 | $640.72 | | |
| | Total Tax Rate: | 6.9861102925 | | | | | |
| | | | | Taxes w/Current Exemptions: | $5,479.08 | | |
| | | | | Taxes w/o Exemptions: | $5,479.08 | | |
Improvement / Building
| Improvement #1: | RESIDENTIAL | State Code: | A1 | 4116.1 sqft | Value: | $559,279 |
| Bathrooms: | 3.5 | Bedrooms: | 5 | | Ceiling: | DRYWALL PAINTED | Exterior Wall/Cover: | CEMENT FIBER | | Floor Covering: | CARPET/VINYL 60-40 | Floor Structure: | WOOD W/SUBFLOOR | | Foundation: | CONCRETE | Heating: | FHA GAS | | Interior Finish: | DRYWALL PAINT | Plumbing Fixture Cnt: | 16 | | Roof Slope: | 6" IN 12" | Roof Structure/Cover: | CJ ASPHALT |
|
| | Type | Description | Class CD | Sub Class CD | Year Built | Area |
| | BAS | BASE/MAIN FLOOR | 3 | 0 | 2014 | 1800.0 |
| | UPS | UPPER STORY | 3 | 0 | 2014 | 2316.1 |
| | BIG | BUILT IN GARAGE | 3 | 0 | 2014 | 678.0 |
| | OP4 | OPEN PORCH W/CEILING-ROOF | 3 | 0 | 2014 | 93.0 |
| | OP2 | OPEN PORCH W/STEPS | 3 | 0 | 2014 | 240.0 |
| | UTY | STORAGE/UTILITY | 3 | 0 | 2014 | 200.0 |
Sketch
| No sketches available for this property. |
Property Image
Land
| 1 | 15 | SQ (12001-21780) | 0.3200 | 13939.20 | 0.00 | 0.00 | 1.00 | $225,000 | $0 |
Roll Value History
| 2026 | N/A | N/A | N/A | N/A | N/A |
| 2025 | $559,279 | $225,000 | $0 | $784,279 | $784,279 |
| 2024 | $619,432 | $225,000 | $0 | $844,432 | $844,432 |
| 2023 | $624,937 | $200,000 | $0 | $824,937 | $824,937 |
| 2022 | $570,238 | $210,000 | $0 | $780,238 | $780,238 |
| 2021 | $499,934 | $130,000 | $0 | $629,934 | $629,934 |
| 2020 | $408,801 | $100,000 | $0 | $508,801 | $508,801 |
| 2019 | $349,608 | $170,000 | $0 | $519,608 | $519,608 |
| 2018 | $342,000 | $170,000 | $0 | $512,000 | $512,000 |
| 2017 | $343,790 | $115,000 | $0 | $458,790 | $458,790 |
| 2016 | $347,370 | $80,000 | $0 | $427,370 | $427,370 |
| 2015 | $350,951 | $70,000 | $0 | $420,951 | $420,951 |
| 2014 | $280,797 | $55,000 | $0 | $335,797 | $335,797 |
| 2013 | $0 | $60,000 | $0 | $60,000 | $60,000 |
| 2012 | $0 | $63,750 | $0 | $63,750 | $63,750 |
| 2011 | $0 | $75,000 | $0 | $75,000 | $75,000 |
| 2010 | $0 | $75,000 | $0 | $75,000 | $75,000 |
| 2009 | $0 | $18,000 | $0 | $18,000 | $18,000 |
Deed and Sales History
| 1 | 06/27/2023 | WD | Warranty Deed | AUSTIN, DEREK A | TIMPOG, JOY C | | | $820,000.00 | 57175 | 4561753 |
| 2 | 07/02/2020 | WD | Warranty Deed | WIESE, CHRISTINE | AUSTIN, DEREK A | | | $600,000.00 | 43636 | 4490411 |
| 3 | 06/28/2018 | WD | Warranty Deed | MACMILLAN, WILLIAM | WIESE, CHRISTINE | | | $515,000.00 | 34847 | 4447363 |
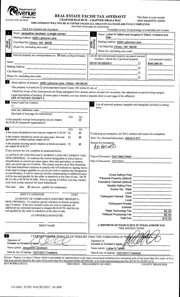
| 4 | 08/14/2017 | QCD | Quit Claim Deed | MACMILLAN, WILLIAM | MACMILLAN, WILLIAM | | | $0.00 | 30714 | 4428481 |
| 5 | 11/12/2014 | WD | Warranty Deed | SEATTLE PACIFIC HOMES, INC | MACMILLAN, WILLIAM | | | $399,950.00 | 17573 | 4368639 |
| 6 | 04/10/2014 | WD | Warranty Deed | RSM DEVELOPMENT INC | SEATTLE PACIFIC HOMES, INC | | | $120,000.00 | 15042 | 4358344 |
|   | |
| 7 | 01/01/1900 | OTHER | Other - Misc. Documents | Unknown | RSM DEVELOPMENT INC, | | | $0.00 | 0 | 0 |
Payout Agreement
| No payout information available.. |