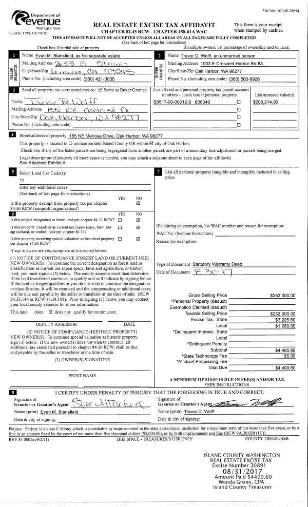
Property
Account |
| Property ID: | 809798 | Abbreviated Legal Description: | LYLE RIDGE LOT 20 |
| Geographic ID: | S7414-00-00020-0 | Agent Code: | |
| Type: | Real | | |
| Tax Area: | 120 - APPRAISER-OH Schl Dist, Special Dist, improved & 1 acre or less | Land Use Code | 11 |
| Open Space: | N | DFL | N |
| Historic Property: | N | Remodel Property: | N |
| Multi-Family Redevelopment: | N | | |
| Township: | | Section: | |
| Range: | |
Location |
| Address: | 1016 LYLE RIDGE CIR OAK HARBOR, WA 98277 | Mapsco: | |
| Neighborhood: | Cycle 2 | Map ID: | 154 |
| Neighborhood CD: | 2 |
Owner |
| Name: | GREAVES, MARK W | Owner ID: | 280487 |
| Mailing Address: | SUZANNE L GREAVES 1016 LYLE RIDGE CIRCLE OAK HARBOR, WA 98277 | % Ownership: | 100.0000000000% |
| | | Exemptions: | |
Taxes and Assessment Details
Values
| (+) Improvement Homesite Value: | + | $0 | |
| (+) Improvement Non-Homesite Value: | + | $545,040 | |
| (+) Land Homesite Value: | + | $0 | |
| (+) Land Non-Homesite Value: | + | $225,000 | |
| (+) Curr Use (HS): | + | $0 | $0 |
| (+) Curr Use (NHS): | + | $0 | $0 |
| | | -------------------------- | |
| (=) Market Value: | = | $770,040 | |
| (–) Productivity Loss: | – | $0 | |
| | | -------------------------- | |
| (=) Subtotal: | = | $770,040 | |
| (+) Senior Appraised Value: | + | $0 | |
| (+) Non-Senior Appraised Value: | + | $770,040 | |
| | | -------------------------- | |
| (=) Total Appraised Value: | = | $770,040 | |
| (–) Senior Exemption Loss: | – | $0 | |
| (–) Exemption Loss: | – | $0 | |
| | | -------------------------- | |
| (=) Taxable Value: | = | $770,040 | |
Taxing Jurisdiction
| Owner: | GREAVES, MARK W | | |
| % Ownership: | 100.0000000000% | | |
| Total Value: | $770,040 | | |
| Tax Area: | 120 - APPRAISER-OH Schl Dist, Special Dist, improved & 1 acre or less |
| CF | Conservation Futures | 0.0316035091 | $770,040 | $770,040 | $24.34 | | |
| CEM1 | Cemetery #1 | 0.0040320932 | $770,040 | $770,040 | $3.10 | | |
| FIRE2 | Fire & Rescue Dist #2 N Whidbey GEN | 0.5475949600 | $770,040 | $770,040 | $421.67 | | |
| HOBOND | Hospital BOND | 0.1910887512 | $770,040 | $770,040 | $147.15 | | |
| HOGEN | Hospital GEN | 0.3902502903 | $770,040 | $770,040 | $300.51 | | |
| CE | County Current Expense | 0.3708482477 | $770,040 | $770,040 | $285.57 | | |
| CR | County Roads | 0.4584763726 | $770,040 | $770,040 | $353.05 | | |
| ISLANDEMS | Hospital GEN (EMS) | 0.5000000000 | $770,040 | $770,040 | $385.02 | | |
| LIB | Library Sno-Isle GEN | 0.3153421757 | $770,040 | $770,040 | $242.83 | | |
| NWHIDPRMT | P & R N Whidbey GEN | 0.2004466701 | $770,040 | $770,040 | $154.35 | | |
| SCH201MO | School 201 Enrichment | 1.8559231640 | $770,040 | $770,040 | $1,429.14 | | |
| ST | State School | 1.3035497053 | $770,040 | $770,040 | $1,003.79 | | |
| ST2 | State School Part 2 | 0.8169543533 | $770,040 | $770,040 | $629.09 | | |
| | Total Tax Rate: | 6.9861102925 | | | | | |
| | | | | Taxes w/Current Exemptions: | $5,379.61 | | |
| | | | | Taxes w/o Exemptions: | $5,379.61 | | |
Improvement / Building
| Improvement #1: | RESIDENTIAL | State Code: | Y | 3815.0 sqft | Value: | $545,040 |
| Bathrooms: | 2.75 | Bedrooms: | 4 | | Ceiling: | DRYWALL PAINTED | Cooling: | HEAT PUMP/CONV/V | | Exterior Wall/Cover: | PLY/HARDBOARD T-111 | Floor Covering: | HARDWOOD/CARP 60-40 | | Floor Structure: | WOOD W/SUBFLOOR | Foundation: | CONCRETE | | Interior Finish: | DRYWALL PAINT | Plumbing Fixture Cnt: | 15 | | Roof Slope: | 6" IN 12" | Roof Structure/Cover: | CJ ASPHALT |
|
| | Type | Description | Class CD | Sub Class CD | Year Built | Area |
| | BAS | BASE/MAIN FLOOR | 3 | 0 | 2013 | 1641.5 |
| | UPS | UPPER STORY | 3 | 0 | 2013 | 2173.5 |
| | BIG | BUILT IN GARAGE | 3 | 0 | 2013 | 789.0 |
| | OP4 | OPEN PORCH W/CEILING-ROOF | 3 | 0 | 2013 | 56.2 |
| | OP1 | OPEN PORCH SLAB | 3 | 0 | 2013 | 120.0 |
Sketch
Property Image
Land
| 1 | 15 | SQ (12001-21780) | 0.3800 | 16552.80 | 1.00 | 0.00 | 1.00 | $225,000 | $0 |
Roll Value History
| 2026 | N/A | N/A | N/A | N/A | N/A |
| 2025 | $545,040 | $225,000 | $0 | $770,040 | $770,040 |
| 2024 | $534,513 | $225,000 | $0 | $759,513 | $759,513 |
| 2023 | $539,005 | $200,000 | $0 | $739,005 | $739,005 |
| 2022 | $492,421 | $210,000 | $0 | $702,421 | $702,421 |
| 2021 | $431,464 | $130,000 | $0 | $561,464 | $561,464 |
| 2020 | $420,006 | $100,000 | $0 | $520,006 | $520,006 |
| 2019 | $354,124 | $170,000 | $0 | $524,124 | $524,124 |
| 2018 | $354,319 | $170,000 | $0 | $524,319 | $524,319 |
| 2017 | $356,194 | $115,000 | $0 | $471,194 | $471,194 |
| 2016 | $359,944 | $80,000 | $0 | $439,944 | $439,944 |
| 2015 | $363,693 | $70,000 | $0 | $433,693 | $433,693 |
| 2014 | $367,442 | $60,000 | $0 | $427,442 | $427,442 |
| 2013 | $99,720 | $60,000 | $0 | $159,720 | $159,720 |
| 2012 | $0 | $63,750 | $0 | $63,750 | $63,750 |
| 2011 | $0 | $75,000 | $0 | $75,000 | $75,000 |
| 2010 | $0 | $75,000 | $0 | $75,000 | $75,000 |
| 2009 | $0 | $18,000 | $0 | $18,000 | $18,000 |
Deed and Sales History
| 1 | 06/19/2017 | WD | Warranty Deed | GUILLOTY, JORGE A | GREAVES, MARK W | | | $490,000.00 | 29831 | 4424630 |
| 2 | 10/10/2013 | WD | Warranty Deed | SEATTLE PACIFIC HOMES INC | GUILLOTY, JORGE A | | | $435,272.00 | 13145 | 4349993 |
| 3 | 05/15/2013 | WD | Warranty Deed | RSM DEVELOPMENT INC | SEATTLE PACIFIC HOMES INC | | | $60,000.00 | 11457 | 4340880 |
| 4 | 01/01/1900 | OTHER | Other - Misc. Documents | Unknown | RSM DEVELOPMENT INC, | | | $0.00 | 0 | 0 |
Payout Agreement
| No payout information available.. |