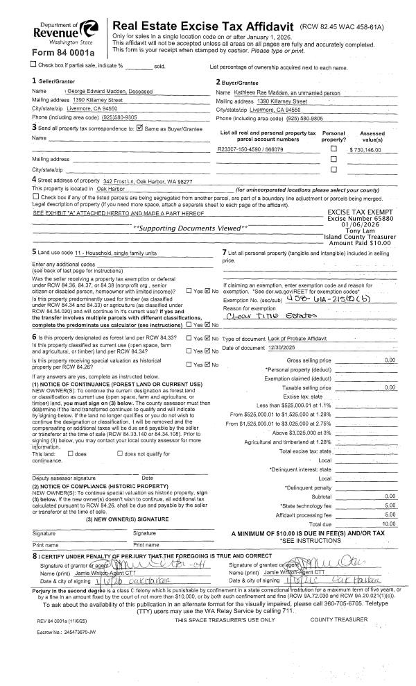
Property
Account |
| Property ID: | 809809 | Abbreviated Legal Description: | LYLE RIDGE LOT 29 |
| Geographic ID: | S7414-00-00029-0 | Agent Code: | |
| Type: | Real | | |
| Tax Area: | 120 - APPRAISER-OH Schl Dist, Special Dist, improved & 1 acre or less | Land Use Code | 11 |
| Open Space: | N | DFL | N |
| Historic Property: | N | Remodel Property: | N |
| Multi-Family Redevelopment: | N | | |
| Township: | | Section: | |
| Range: | |
Location |
| Address: | 1052 LYLE RIDGE CIR OAK HARBOR, WA 98277 | Mapsco: | |
| Neighborhood: | Cycle 2 | Map ID: | 154 |
| Neighborhood CD: | 2 |
Owner |
| Name: | GLIENKE, KALVIN CHARLES | Owner ID: | 268745 |
| Mailing Address: | KELLIJO FEINBERG GLIENKE 1052 LYLE RIDGE CIR OAK HARBOR, WA 98277 | % Ownership: | 100.0000000000% |
| | | Exemptions: | |
Taxes and Assessment Details
Values
| (+) Improvement Homesite Value: | + | $0 | |
| (+) Improvement Non-Homesite Value: | + | $565,151 | |
| (+) Land Homesite Value: | + | $0 | |
| (+) Land Non-Homesite Value: | + | $225,000 | |
| (+) Curr Use (HS): | + | $0 | $0 |
| (+) Curr Use (NHS): | + | $0 | $0 |
| | | -------------------------- | |
| (=) Market Value: | = | $790,151 | |
| (–) Productivity Loss: | – | $0 | |
| | | -------------------------- | |
| (=) Subtotal: | = | $790,151 | |
| (+) Senior Appraised Value: | + | $0 | |
| (+) Non-Senior Appraised Value: | + | $790,151 | |
| | | -------------------------- | |
| (=) Total Appraised Value: | = | $790,151 | |
| (–) Senior Exemption Loss: | – | $0 | |
| (–) Exemption Loss: | – | $0 | |
| | | -------------------------- | |
| (=) Taxable Value: | = | $790,151 | |
Taxing Jurisdiction
| Owner: | GLIENKE, KALVIN CHARLES | | |
| % Ownership: | 100.0000000000% | | |
| Total Value: | $790,151 | | |
| Tax Area: | 120 - APPRAISER-OH Schl Dist, Special Dist, improved & 1 acre or less |
| CF | Conservation Futures | 0.0316035091 | $790,151 | $790,151 | $24.97 | | |
| CEM1 | Cemetery #1 | 0.0040320932 | $790,151 | $790,151 | $3.19 | | |
| FIRE2 | Fire & Rescue Dist #2 N Whidbey GEN | 0.5475949600 | $790,151 | $790,151 | $432.68 | | |
| HOBOND | Hospital BOND | 0.1910887512 | $790,151 | $790,151 | $150.99 | | |
| HOGEN | Hospital GEN | 0.3902502903 | $790,151 | $790,151 | $308.36 | | |
| CE | County Current Expense | 0.3708482477 | $790,151 | $790,151 | $293.03 | | |
| CR | County Roads | 0.4584763726 | $790,151 | $790,151 | $362.27 | | |
| ISLANDEMS | Hospital GEN (EMS) | 0.5000000000 | $790,151 | $790,151 | $395.08 | | |
| LIB | Library Sno-Isle GEN | 0.3153421757 | $790,151 | $790,151 | $249.17 | | |
| NWHIDPRMT | P & R N Whidbey GEN | 0.2004466701 | $790,151 | $790,151 | $158.38 | | |
| SCH201MO | School 201 Enrichment | 1.8559231640 | $790,151 | $790,151 | $1,466.46 | | |
| ST | State School | 1.3035497053 | $790,151 | $790,151 | $1,030.00 | | |
| ST2 | State School Part 2 | 0.8169543533 | $790,151 | $790,151 | $645.52 | | |
| | Total Tax Rate: | 6.9861102925 | | | | | |
| | | | | Taxes w/Current Exemptions: | $5,520.10 | | |
| | | | | Taxes w/o Exemptions: | $5,520.10 | | |
Improvement / Building
| Improvement #1: | RESIDENTIAL | State Code: | Y | 4312.5 sqft | Value: | $565,151 |
| Bathrooms: | 3.5 | Bedrooms: | 5 | | Ceiling: | DRYWALL PAINTED | Cooling: | HEAT PUMP/CONV/V | | Exterior Wall/Cover: | CEMENT FIBER | Floor Covering: | CARPET/VINYL 60-40 | | Floor Structure: | WOOD W/SUBFLOOR | Foundation: | CONCRETE | | Interior Finish: | DRYWALL PAINT | Plumbing Fixture Cnt: | 16 | | Roof Slope: | 6" IN 12" | Roof Structure/Cover: | CJ ASPHALT |
|
| | Type | Description | Class CD | Sub Class CD | Year Built | Area |
| | BAS | BASE/MAIN FLOOR | 3 | 0 | 2014 | 2198.5 |
| | DWN | DOWNSTAIRS LIVING AREA | 3 | 0 | 2014 | 2114.0 |
| | AGR | ATTACHED GARAGE | 3 | 0 | 2014 | 722.0 |
| | OP1 | OPEN PORCH SLAB | 3 | 0 | 2014 | 600.0 |
| | OP4 | OPEN PORCH W/CEILING-ROOF | 3 | 0 | 2014 | 96.0 |
| | OWP | OPEN WOOD PORCH W/STEPS | 3 | 0 | 2014 | 144.0 |
| | OWC | OPEN WOOD PORCH W/STEPS/ROOF/C | 3 | 0 | 2014 | 80.0 |
Sketch
| No sketches available for this property. |
Property Image
Land
| 1 | 15 | SQ (12001-21780) | 0.4800 | 20908.80 | 0.00 | 0.00 | 1.00 | $225,000 | $0 |
Roll Value History
| 2026 | N/A | N/A | N/A | N/A | N/A |
| 2025 | $565,151 | $225,000 | $0 | $790,151 | $790,151 |
| 2024 | $560,172 | $225,000 | $0 | $785,172 | $785,172 |
| 2023 | $565,151 | $200,000 | $0 | $765,151 | $765,151 |
| 2022 | $515,686 | $210,000 | $0 | $725,686 | $725,686 |
| 2021 | $452,122 | $130,000 | $0 | $582,122 | $582,122 |
| 2020 | $440,076 | $100,000 | $0 | $540,076 | $540,076 |
| 2019 | $379,915 | $170,000 | $0 | $549,915 | $549,915 |
| 2018 | $380,910 | $170,000 | $0 | $550,910 | $550,910 |
| 2017 | $382,906 | $115,000 | $0 | $497,906 | $497,906 |
| 2016 | $386,894 | $80,000 | $0 | $466,894 | $466,894 |
| 2015 | $390,882 | $70,000 | $0 | $460,882 | $460,882 |
| 2014 | $0 | $55,000 | $0 | $55,000 | $55,000 |
| 2013 | $0 | $60,000 | $0 | $60,000 | $60,000 |
| 2012 | $0 | $63,750 | $0 | $63,750 | $63,750 |
| 2011 | $0 | $75,000 | $0 | $75,000 | $75,000 |
| 2010 | $0 | $75,000 | $0 | $75,000 | $75,000 |
| 2009 | $0 | $18,000 | $0 | $18,000 | $18,000 |
Deed and Sales History
| 1 | 11/26/2014 | WD | Warranty Deed | WALDRON CONSTRUCTION INC | GLIENKE, KALVIN CHARLES | | | $0.00 | 17900 | 4370212 |
| 2 | 11/25/2014 | WD | Warranty Deed | RSM DEVELOPMENT INC | WALDRON CONSTRUCTION INC | | | $65,000.00 | 17899 | 4370211 |
| 3 | 01/01/1900 | OTHER | Other - Misc. Documents | Unknown | RSM DEVELOPMENT INC, | | | $0.00 | 0 | 0 |
Payout Agreement
| No payout information available.. |