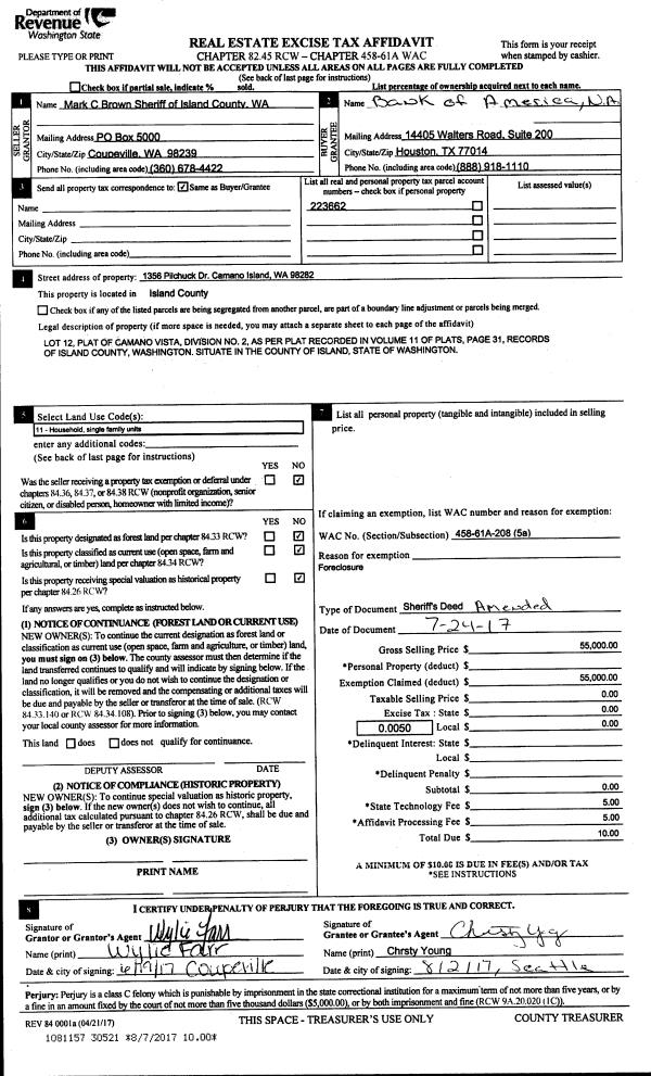
Property
Account |
| Property ID: | 809829 | Abbreviated Legal Description: | NW SE SW |
| Geographic ID: | R13301-098-1640 | Agent Code: | |
| Type: | Real | | |
| Tax Area: | 112 - APPRAISER-OH Schl Dist, outside OH, improved, greater than 1 acre | Land Use Code | 11 |
| Open Space: | N | DFL | N |
| Historic Property: | N | Remodel Property: | N |
| Multi-Family Redevelopment: | N | | |
| Township: | 33 | Section: | 01 |
| Range: | R1 |
Location |
| Address: | 258 AZALEA PLACE OAK HARBOR, WA 98277 | Mapsco: | |
| Neighborhood: | Cycle 6 | Map ID: | 189 |
| Neighborhood CD: | 6 |
Owner |
| Name: | HOLMES, SCOTT R | Owner ID: | 281587 |
| Mailing Address: | SHELLY J MOMBERG 258 AZALEA PLACE OAK HARBOR, WA 98277 | % Ownership: | 100.0000000000% |
| | | Exemptions: | SNR/DSBL |
Taxes and Assessment Details
Values
| (+) Improvement Homesite Value: | + | $438,540 | |
| (+) Improvement Non-Homesite Value: | + | $0 | |
| (+) Land Homesite Value: | + | $170,000 | |
| (+) Land Non-Homesite Value: | + | $170,000 | |
| (+) Curr Use (HS): | + | $0 | $0 |
| (+) Curr Use (NHS): | + | $0 | $0 |
| | | -------------------------- | |
| (=) Market Value: | = | $778,540 | |
| (–) Productivity Loss: | – | $0 | |
| | | -------------------------- | |
| (=) Subtotal: | = | $778,540 | |
| (+) Senior Appraised Value: | + | $464,022 | |
| (+) Non-Senior Appraised Value: | + | $170,000 | |
| | | -------------------------- | |
| (=) Total Appraised Value: | = | $634,022 | |
| (–) Senior Exemption Loss: | – | $278,413 | |
| (–) Exemption Loss: | – | $0 | |
| | | -------------------------- | |
| (=) Taxable Value: | = | $355,609 | |
Taxing Jurisdiction
| Owner: | HOLMES, SCOTT R | | |
| % Ownership: | 100.0000000000% | | |
| Total Value: | $778,540 | | |
| Tax Area: | 112 - APPRAISER-OH Schl Dist, outside OH, improved, greater than 1 acre |
| CF | Conservation Futures | 0.0316035091 | $778,540 | $355,609 | $11.24 | | |
| CEM1 | Cemetery #1 | 0.0040320932 | $778,540 | $355,609 | $1.43 | | |
| FIRE2 | Fire & Rescue Dist #2 N Whidbey GEN | 0.5475949600 | $778,540 | $355,609 | $194.73 | | |
| HOBOND | Hospital BOND | 0.0000000000 | $778,540 | $170,000 | $32.49 | | |
| HOGEN | Hospital GEN | 0.3902502903 | $778,540 | $355,609 | $138.78 | | |
| CE | County Current Expense | 0.3708482477 | $778,540 | $355,609 | $131.88 | | |
| CR | County Roads | 0.4584763726 | $778,540 | $355,609 | $163.04 | | |
| ISLANDEMS | Hospital GEN (EMS) | 0.5000000000 | $778,540 | $355,609 | $177.80 | | |
| LIB | Library Sno-Isle GEN | 0.3153421757 | $778,540 | $355,609 | $112.14 | | |
| NWHIDPRMT | P & R N Whidbey GEN | 0.2004466701 | $778,540 | $355,609 | $71.28 | | |
| SCH201MO | School 201 Enrichment | 0.0000000000 | $778,540 | $170,000 | $315.51 | | |
| ST | State School | 1.3035497053 | $778,540 | $355,609 | $463.55 | | |
| ST2 | State School Part 2 | 0.0000000000 | $778,540 | $170,000 | $138.88 | | |
| | Total Tax Rate: | 4.1221440240 | | | | | |
| | | | | Taxes w/Current Exemptions: | $1,952.75 | | |
| | | | | Taxes w/o Exemptions: | $5,438.97 | | |
Improvement / Building
| Improvement #1: | RESIDENTIAL | State Code: | Y | 1827.2 sqft | Value: | $438,540 |
| Bathrooms: | 1.75 | Bedrooms: | 2 | | Ceiling: | DRYWALL PAINTED | Cooling: | HEAT PUMP/CONV/V | | Exterior Wall/Cover: | CEMENT FIBER | Floor Covering: | SOFTWOOD 100% | | Floor Structure: | WOOD W/SUBFLOOR | Foundation: | CONCRETE | | Interior Finish: | DRYWALL PAINT | Plumbing Fixture Cnt: | 10 | | Roof Slope: | 3" IN 12" | Roof Structure/Cover: | CJ ALUMINIUM HEAVY |
|
| | Type | Description | Class CD | Sub Class CD | Year Built | Area |
| | BAS | BASE/MAIN FLOOR | 4 | 0 | 2020 | 1827.2 |
| | OWP | OPEN WOOD PORCH W/STEPS | 4 | 0 | 2020 | 721.0 |
| | CPD | OPEN CARPORT DIRT FLOOR | 4 | 0 | 2020 | 288.0 |
| | UTY | STORAGE/UTILITY | 4 | 0 | 2020 | 144.0 |
| | CPD | OPEN CARPORT DIRT FLOOR | 4 | 0 | 2020 | 240.0 |
Sketch
Property Image
Land
| 1 | 35 | AC (10.00-30.99) | 10.0000 | 435600.00 | 0.00 | 0.00 | 1.00 | $340,000 | $0 |
Roll Value History
| 2026 | N/A | N/A | N/A | N/A | N/A |
| 2025 | $438,540 | $340,000 | $0 | $778,540 | $355,609 |
| 2024 | $442,019 | $300,000 | $0 | $742,019 | $335,609 |
| 2023 | $446,662 | $280,000 | $0 | $726,662 | $325,609 |
| 2022 | $329,022 | $270,000 | $0 | $599,022 | $320,609 |
| 2021 | $157,024 | $210,000 | $0 | $367,024 | $367,024 |
| 2020 | $116,628 | $190,000 | $0 | $306,628 | $306,628 |
| 2019 | $0 | $160,000 | $0 | $160,000 | $160,000 |
| 2018 | $0 | $140,000 | $0 | $140,000 | $140,000 |
| 2017 | $0 | $130,000 | $0 | $130,000 | $130,000 |
| 2016 | $0 | $110,000 | $0 | $110,000 | $110,000 |
| 2015 | $0 | $110,000 | $0 | $110,000 | $110,000 |
| 2014 | $0 | $100,000 | $0 | $100,000 | $100,000 |
| 2013 | $0 | $100,000 | $0 | $100,000 | $100,000 |
| 2012 | $0 | $100,000 | $0 | $100,000 | $100,000 |
| 2011 | $0 | $100,000 | $0 | $100,000 | $100,000 |
| 2010 | $0 | $100,000 | $0 | $100,000 | $100,000 |
| 2009 | $0 | $185,000 | $0 | $185,000 | $185,000 |
Deed and Sales History
| 1 | 08/22/2017 | WD | Warranty Deed | VICKERS, CARL | HOLMES, SCOTT R | | | $150,000.00 | 30787 | 4428866 |
| 2 | 06/22/2009 | BLA | DNU - Boundary Line Adjustment | Unknown | VICKERS, CARL | | | $0.00 | 81211 | 4240794 |
Payout Agreement
| No payout information available.. |