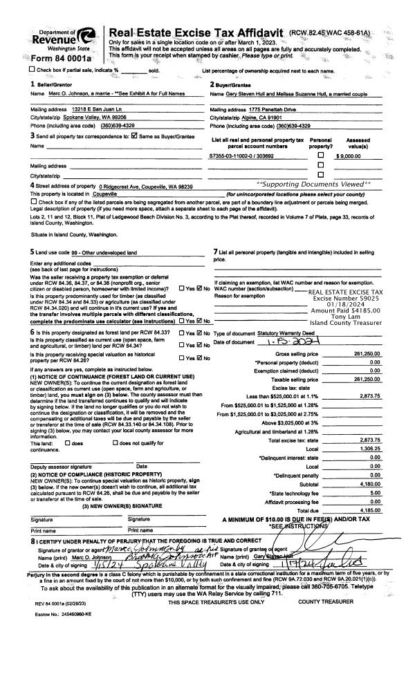
Property
Account |
| Property ID: | 809858 | Abbreviated Legal Description: | E/2 E/2 NW NE EX N40' RD & EX S639' OF E/2 E/2 NW NE |
| Geographic ID: | R13208-493-3810 | Agent Code: | |
| Type: | Real | | |
| Tax Area: | 112 - APPRAISER-OH Schl Dist, outside OH, improved, greater than 1 acre | Land Use Code | 11 |
| Open Space: | N | DFL | N |
| Historic Property: | N | Remodel Property: | N |
| Multi-Family Redevelopment: | N | | |
| Township: | 32 | Section: | 08 |
| Range: | R1 |
Location |
| Address: | | Mapsco: | |
| Neighborhood: | Cycle 1 | Map ID: | 111 |
| Neighborhood CD: | 1 |
Owner |
| Name: | NEW AGE MEDIA LTD | Owner ID: | 272023 |
| Mailing Address: | 250 H ST PMB UNIT 807 BLAINE, WA 98230 | % Ownership: | 100.0000000000% |
| | | Exemptions: | |
Taxes and Assessment Details
Values
| (+) Improvement Homesite Value: | + | $0 | |
| (+) Improvement Non-Homesite Value: | + | $6,445 | |
| (+) Land Homesite Value: | + | $0 | |
| (+) Land Non-Homesite Value: | + | $170,000 | |
| (+) Curr Use (HS): | + | $0 | $0 |
| (+) Curr Use (NHS): | + | $0 | $0 |
| | | -------------------------- | |
| (=) Market Value: | = | $176,445 | |
| (–) Productivity Loss: | – | $0 | |
| | | -------------------------- | |
| (=) Subtotal: | = | $176,445 | |
| (+) Senior Appraised Value: | + | $0 | |
| (+) Non-Senior Appraised Value: | + | $176,445 | |
| | | -------------------------- | |
| (=) Total Appraised Value: | = | $176,445 | |
| (–) Senior Exemption Loss: | – | $0 | |
| (–) Exemption Loss: | – | $0 | |
| | | -------------------------- | |
| (=) Taxable Value: | = | $176,445 | |
Taxing Jurisdiction
| Owner: | NEW AGE MEDIA LTD | | |
| % Ownership: | 100.0000000000% | | |
| Total Value: | $176,445 | | |
| Tax Area: | 112 - APPRAISER-OH Schl Dist, outside OH, improved, greater than 1 acre |
| CF | Conservation Futures | 0.0316035091 | $176,445 | $176,445 | $5.58 | | |
| CEM1 | Cemetery #1 | 0.0040320932 | $176,445 | $176,445 | $0.71 | | |
| FIRE2 | Fire & Rescue Dist #2 N Whidbey GEN | 0.5475949600 | $176,445 | $176,445 | $96.62 | | |
| HOBOND | Hospital BOND | 0.1910887512 | $176,445 | $176,445 | $33.72 | | |
| HOGEN | Hospital GEN | 0.3902502903 | $176,445 | $176,445 | $68.86 | | |
| CE | County Current Expense | 0.3708482477 | $176,445 | $176,445 | $65.43 | | |
| CR | County Roads | 0.4584763726 | $176,445 | $176,445 | $80.90 | | |
| ISLANDEMS | Hospital GEN (EMS) | 0.5000000000 | $176,445 | $176,445 | $88.22 | | |
| LIB | Library Sno-Isle GEN | 0.3153421757 | $176,445 | $176,445 | $55.64 | | |
| NWHIDPRMT | P & R N Whidbey GEN | 0.2004466701 | $176,445 | $176,445 | $35.37 | | |
| SCH201MO | School 201 Enrichment | 1.8559231640 | $176,445 | $176,445 | $327.47 | | |
| ST | State School | 1.3035497053 | $176,445 | $176,445 | $230.00 | | |
| ST2 | State School Part 2 | 0.8169543533 | $176,445 | $176,445 | $144.15 | | |
| | Total Tax Rate: | 6.9861102925 | | | | | |
| | | | | Taxes w/Current Exemptions: | $1,232.67 | | |
| | | | | Taxes w/o Exemptions: | $1,232.67 | | |
Improvement / Building
| Improvement #1: | RESIDENTIAL | State Code: | Y | 0.0 sqft | Value: | $6,445 |
Sketch
Property Image
Land
| 1 | 32 | AC (03.01-09.99) | 5.0000 | 217800.00 | 0.00 | 0.00 | 1.00 | $170,000 | $0 |
Roll Value History
| 2026 | N/A | N/A | N/A | N/A | N/A |
| 2025 | $6,445 | $170,000 | $0 | $176,445 | $176,445 |
| 2024 | $6,276 | $150,000 | $0 | $156,276 | $156,276 |
| 2023 | $2,916 | $150,000 | $0 | $152,916 | $152,916 |
| 2022 | $2,916 | $140,000 | $0 | $142,916 | $142,916 |
| 2021 | $2,916 | $140,000 | $0 | $142,916 | $142,916 |
| 2020 | $2,916 | $140,000 | $0 | $142,916 | $142,916 |
| 2019 | $2,916 | $200,000 | $0 | $202,916 | $202,916 |
| 2018 | $2,916 | $170,000 | $0 | $172,916 | $172,916 |
| 2017 | $1,266 | $150,000 | $0 | $151,266 | $151,266 |
| 2016 | $1,266 | $130,000 | $0 | $131,266 | $131,266 |
| 2015 | $1,266 | $100,000 | $0 | $101,266 | $101,266 |
| 2014 | $1,266 | $100,000 | $0 | $101,266 | $101,266 |
| 2013 | $1,266 | $76,500 | $0 | $77,766 | $77,766 |
| 2012 | $1,266 | $76,500 | $0 | $77,766 | $77,766 |
| 2011 | $1,266 | $85,000 | $0 | $86,266 | $86,266 |
| 2010 | $1,266 | $85,000 | $0 | $86,266 | $86,266 |
| 2009 | $477 | $47,180 | $0 | $47,657 | $47,657 |
Deed and Sales History
| 1 | 08/21/2015 | WD | Warranty Deed | SATNAM HOLDINGS INC | NEW AGE MEDIA LTD | | | $101,266.00 | 21226 | 4385348 |
| 2 | 03/01/2012 | WD | Warranty Deed | IMPACT DIRECTORIES OF NORTHWEST | SATNAM HOLDINGS INC | | | $90,000.00 | 7034 | 4310983 |
| 3 | 07/28/2009 | WD | Warranty Deed | NOEL, LAURA | IMPACT DIRECTORIES OF NORTHWES | | | $46,500.00 | 91755 | 4257524 |
| 4 | 07/27/2009 | BLA | DNU - Boundary Line Adjustment | Unknown | NOEL, LAURA | | | $0.00 | 81336 | 4252603 |
Payout Agreement
| No payout information available.. |