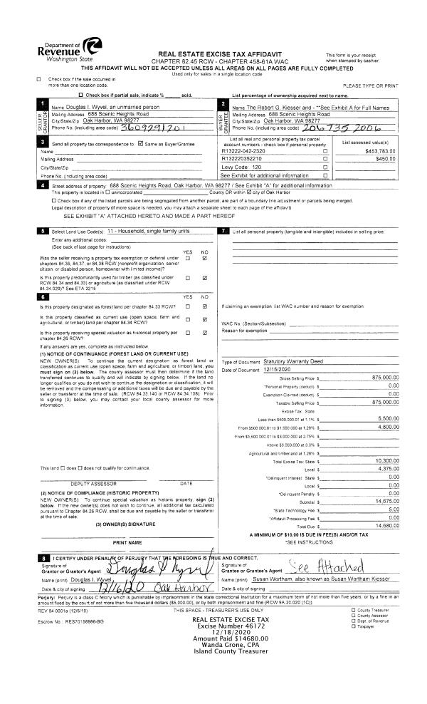
Property
Account |
| Property ID: | 809865 | Abbreviated Legal Description: | REEDER BAY PRD LOT 1 |
| Geographic ID: | S8535-00-00001-0 | Agent Code: | |
| Type: | Real | | |
| Tax Area: | 312 - APPRAISER-Cpvl Schl Dist, outside Cpvl, improved, greater than 1 acre | Land Use Code | 11 |
| Open Space: | N | DFL | N |
| Historic Property: | N | Remodel Property: | N |
| Multi-Family Redevelopment: | N | | |
| Township: | | Section: | |
| Range: | |
Location |
| Address: | 336 REEDER BAY LN COUPEVILLE, WA 98239 | Mapsco: | |
| Neighborhood: | Cycle 2 | Map ID: | 187 |
| Neighborhood CD: | 2 |
Owner |
| Name: | JUETTEN TTEE, PHILIP S. | Owner ID: | 306731 |
| Mailing Address: | MARY E. JUETTEN TTEE 336 REEDER BAY LANE COUPEVILLE, WA 98239 | % Ownership: | 100.0000000000% |
| | | Exemptions: | |
Taxes and Assessment Details
Values
| (+) Improvement Homesite Value: | + | $0 | |
| (+) Improvement Non-Homesite Value: | + | $1,065,157 | |
| (+) Land Homesite Value: | + | $0 | |
| (+) Land Non-Homesite Value: | + | $540,000 | |
| (+) Curr Use (HS): | + | $0 | $0 |
| (+) Curr Use (NHS): | + | $0 | $0 |
| | | -------------------------- | |
| (=) Market Value: | = | $1,605,157 | |
| (–) Productivity Loss: | – | $0 | |
| | | -------------------------- | |
| (=) Subtotal: | = | $1,605,157 | |
| (+) Senior Appraised Value: | + | $0 | |
| (+) Non-Senior Appraised Value: | + | $1,605,157 | |
| | | -------------------------- | |
| (=) Total Appraised Value: | = | $1,605,157 | |
| (–) Senior Exemption Loss: | – | $0 | |
| (–) Exemption Loss: | – | $0 | |
| | | -------------------------- | |
| (=) Taxable Value: | = | $1,605,157 | |
Taxing Jurisdiction
| Owner: | JUETTEN TTEE, PHILIP S. | | |
| % Ownership: | 100.0000000000% | | |
| Total Value: | $1,605,157 | | |
| Tax Area: | 312 - APPRAISER-Cpvl Schl Dist, outside Cpvl, improved, greater than 1 acre |
| CF | Conservation Futures | 0.0316035091 | $1,605,157 | $1,605,157 | $50.73 | | |
| CEM2 | Cemetery #2 | 0.0095056933 | $1,605,157 | $1,605,157 | $15.26 | | |
| FIRE5 | Fire & Rescue Dist #5 C Whidbey GEN | 1.2008080668 | $1,605,157 | $1,605,157 | $1,927.49 | | |
| FIRE5BOND | Fire & Rescue Dist #5 C Whidbey BOND | 0.1400090713 | $1,605,157 | $1,605,157 | $224.74 | | |
| HOBOND | Hospital BOND | 0.1910887512 | $1,605,157 | $1,605,157 | $306.73 | | |
| HOGEN | Hospital GEN | 0.3902502903 | $1,605,157 | $1,605,157 | $626.41 | | |
| CE | County Current Expense | 0.3708482477 | $1,605,157 | $1,605,157 | $595.27 | | |
| CR | County Roads | 0.4584763726 | $1,605,157 | $1,605,157 | $735.93 | | |
| ISLANDEMS | Hospital GEN (EMS) | 0.5000000000 | $1,605,157 | $1,605,157 | $802.58 | | |
| LIB | Library Sno-Isle GEN | 0.3153421757 | $1,605,157 | $1,605,157 | $506.17 | | |
| LIBCAP | Library Sno-Isle BOND (Cap Fac Imp Area) | 0.0543427938 | $1,605,157 | $1,605,157 | $87.23 | | |
| POCOUP | Port of Coupeville GEN | 0.1093371703 | $1,605,157 | $1,605,157 | $175.50 | | |
| POCOUPIDD | Port of Coupeville IDD | 0.3409740022 | $1,605,157 | $1,605,157 | $547.32 | | |
| COUPSDTECH | School 204 CP (TECH) | 0.7545480007 | $1,605,157 | $1,605,157 | $1,211.17 | | |
| SCH204MO | School 204 Enrichment | 0.6716186034 | $1,605,157 | $1,605,157 | $1,078.05 | | |
| ST | State School | 1.3035497053 | $1,605,157 | $1,605,157 | $2,092.40 | | |
| ST2 | State School Part 2 | 0.8169543533 | $1,605,157 | $1,605,157 | $1,311.34 | | |
| | Total Tax Rate: | 7.6592568070 | | | | | |
| | | | | Taxes w/Current Exemptions: | $12,294.32 | | |
| | | | | Taxes w/o Exemptions: | $12,294.32 | | |
Improvement / Building
| Improvement #1: | RESIDENTIAL | State Code: | Y | 4499.0 sqft | Value: | $1,065,157 |
| Bathrooms: | 2.5 | Bedrooms: | 2 | | Ceiling: | DRYWALL PAINTED | Exterior Wall/Cover: | CEMENT FIBER | | Floor Covering: | COLORED CONCRETE | Floor Structure: | SLAB ON GRADE | | Foundation: | CONCRETE | Heating: | RADIANT FLOOR | | Interior Finish: | DRYWALL PAINT | Plumbing Fixture Cnt: | 13 | | Roof Slope: | 6" IN 12" | Roof Structure/Cover: | CJ ASPHALT |
|
| | Type | Description | Class CD | Sub Class CD | Year Built | Area |
| | BAS | BASE/MAIN FLOOR | 6 | 0 | 2023 | 2364.0 |
| | UPS | UPPER STORY | 6 | 0 | 2023 | 1263.0 |
| | AGR | ATTACHED GARAGE | 6 | 0 | 2023 | 825.0 |
| | OWC | OPEN WOOD PORCH W/STEPS/ROOF/C | 6 | 0 | 2023 | 244.0 |
| | ENP | ENCLOSED PORCH | 6 | 0 | 2023 | 358.0 |
| | OWP | OPEN WOOD PORCH W/STEPS | 6 | 0 | 2023 | 1895.0 |
| | UPS | UPPER STORY | 6 | 0 | 2023 | 285.0 |
| | LOF | LOFT | 6 | 0 | 2023 | 587.0 |
| | OWP | OPEN WOOD PORCH W/STEPS | 6 | 0 | 2023 | 160.0 |
Sketch
| No sketches available for this property. |
Property Image
Land
| 1 | 17 | AC (01.01-02.00) | 1.6200 | 70567.20 | 0.00 | 0.00 | 1.00 | $540,000 | $0 |
Roll Value History
| 2026 | N/A | N/A | N/A | N/A | N/A |
| 2025 | $1,065,157 | $540,000 | $0 | $1,605,157 | $1,605,157 |
| 2024 | $1,047,097 | $520,000 | $0 | $1,567,097 | $1,567,097 |
| 2023 | $599,650 | $400,000 | $0 | $999,650 | $999,650 |
| 2022 | $0 | $420,000 | $0 | $420,000 | $420,000 |
| 2021 | $0 | $390,000 | $0 | $390,000 | $390,000 |
| 2020 | $0 | $350,000 | $0 | $350,000 | $350,000 |
| 2019 | $0 | $350,000 | $0 | $350,000 | $350,000 |
| 2018 | $0 | $230,000 | $0 | $230,000 | $230,000 |
| 2017 | $0 | $230,000 | $0 | $230,000 | $230,000 |
| 2016 | $0 | $100,000 | $0 | $100,000 | $100,000 |
| 2015 | $0 | $95,000 | $0 | $95,000 | $95,000 |
| 2014 | $0 | $95,000 | $0 | $95,000 | $95,000 |
| 2013 | $0 | $95,000 | $0 | $95,000 | $95,000 |
| 2012 | $0 | $125,000 | $0 | $125,000 | $125,000 |
| 2011 | $0 | $125,000 | $0 | $125,000 | $125,000 |
| 2010 | $0 | $125,000 | $0 | $125,000 | $125,000 |
| 2009 | $0 | $0 | $0 | $120,000 | $120,000 |
Deed and Sales History
| 1 | 11/10/2022 | QCD | Quit Claim Deed | JUETTEN, MARY ELLEN | JUETTEN TTEE, PHILIP S. | | | $0.00 | 55222 | 4554178 |
| 2 | 09/10/2020 | WD | Warranty Deed | HEYDUCK, KURT | JUETTEN, MARY ELLEN | | | $380,000.00 | 44882 | 4497444 |
| 3 | 06/18/2018 | WD | Warranty Deed | REEDER BAY LLC | HEYDUCK, KURT | | | $345,000.00 | 34572 | 4446347 |
| 4 | 01/01/1900 | OTHER | Other - Misc. Documents | Unknown | REEDER BAY LLC, | | | $0.00 | 0 | 0 |
Payout Agreement
| No payout information available.. |