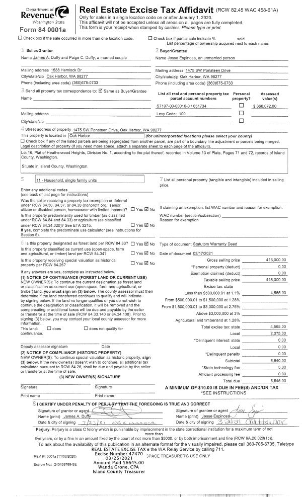
Property
Account |
| Property ID: | 809866 | Abbreviated Legal Description: | REEDER BAY PRD LOT 2 |
| Geographic ID: | S8535-00-00002-0 | Agent Code: | |
| Type: | Real | | |
| Tax Area: | 319 - APPRAISER-Cpvl Schl Dist, outside Cpvl, vacant & 50 acres or less | Land Use Code | 99 |
| Open Space: | N | DFL | N |
| Historic Property: | N | Remodel Property: | N |
| Multi-Family Redevelopment: | N | | |
| Township: | | Section: | |
| Range: | |
Location |
| Address: | 388 REEDER BAY RD COUPEVILLE, WA 98239 | Mapsco: | |
| Neighborhood: | Cycle 2 | Map ID: | 187 |
| Neighborhood CD: | 2 |
Owner |
| Name: | LOLAND, CYNTHIA L | Owner ID: | 311175 |
| Mailing Address: | HANS PETTER LOLAND 21516 NE 159TH ST WOODINVILLE, WA 98077 | % Ownership: | 100.0000000000% |
| | | Exemptions: | |
Taxes and Assessment Details
Values
| (+) Improvement Homesite Value: | + | $0 | |
| (+) Improvement Non-Homesite Value: | + | $0 | |
| (+) Land Homesite Value: | + | $0 | |
| (+) Land Non-Homesite Value: | + | $500,000 | |
| (+) Curr Use (HS): | + | $0 | $0 |
| (+) Curr Use (NHS): | + | $0 | $0 |
| | | -------------------------- | |
| (=) Market Value: | = | $500,000 | |
| (–) Productivity Loss: | – | $0 | |
| | | -------------------------- | |
| (=) Subtotal: | = | $500,000 | |
| (+) Senior Appraised Value: | + | $0 | |
| (+) Non-Senior Appraised Value: | + | $500,000 | |
| | | -------------------------- | |
| (=) Total Appraised Value: | = | $500,000 | |
| (–) Senior Exemption Loss: | – | $0 | |
| (–) Exemption Loss: | – | $0 | |
| | | -------------------------- | |
| (=) Taxable Value: | = | $500,000 | |
Taxing Jurisdiction
| Owner: | LOLAND, CYNTHIA L | | |
| % Ownership: | 100.0000000000% | | |
| Total Value: | $500,000 | | |
| Tax Area: | 319 - APPRAISER-Cpvl Schl Dist, outside Cpvl, vacant & 50 acres or less |
| CF | Conservation Futures | 0.0316035091 | $500,000 | $500,000 | $15.80 | | |
| CEM2 | Cemetery #2 | 0.0095056933 | $500,000 | $500,000 | $4.75 | | |
| HOBOND | Hospital BOND | 0.1910887512 | $500,000 | $500,000 | $95.54 | | |
| HOGEN | Hospital GEN | 0.3902502903 | $500,000 | $500,000 | $195.13 | | |
| CE | County Current Expense | 0.3708482477 | $500,000 | $500,000 | $185.42 | | |
| CR | County Roads | 0.4584763726 | $500,000 | $500,000 | $229.24 | | |
| ISLANDEMS | Hospital GEN (EMS) | 0.5000000000 | $500,000 | $500,000 | $250.00 | | |
| LIB | Library Sno-Isle GEN | 0.3153421757 | $500,000 | $500,000 | $157.67 | | |
| LIBCAP | Library Sno-Isle BOND (Cap Fac Imp Area) | 0.0543427938 | $500,000 | $500,000 | $27.17 | | |
| POCOUP | Port of Coupeville GEN | 0.1093371703 | $500,000 | $500,000 | $54.67 | | |
| POCOUPIDD | Port of Coupeville IDD | 0.3409740022 | $500,000 | $500,000 | $170.49 | | |
| COUPSDTECH | School 204 CP (TECH) | 0.7545480007 | $500,000 | $500,000 | $377.27 | | |
| SCH204MO | School 204 Enrichment | 0.6716186034 | $500,000 | $500,000 | $335.81 | | |
| ST | State School | 1.3035497053 | $500,000 | $500,000 | $651.77 | | |
| ST2 | State School Part 2 | 0.8169543533 | $500,000 | $500,000 | $408.48 | | |
| | Total Tax Rate: | 6.3184396689 | | | | | |
| | | | | Taxes w/Current Exemptions: | $3,159.21 | | |
| | | | | Taxes w/o Exemptions: | $3,159.21 | | |
Improvement / Building
Sketch
| No sketches available for this property. |
Property Image
Land
| 1 | 17 | AC (01.01-02.00) | 1.6600 | 72309.60 | 0.00 | 0.00 | 1.00 | $500,000 | $0 |
Roll Value History
| 2026 | N/A | N/A | N/A | N/A | N/A |
| 2025 | $0 | $500,000 | $0 | $500,000 | $500,000 |
| 2024 | $0 | $500,000 | $0 | $500,000 | $500,000 |
| 2023 | $0 | $400,000 | $0 | $400,000 | $400,000 |
| 2022 | $0 | $420,000 | $0 | $420,000 | $420,000 |
| 2021 | $0 | $390,000 | $0 | $390,000 | $390,000 |
| 2020 | $0 | $350,000 | $0 | $350,000 | $350,000 |
| 2019 | $0 | $350,000 | $0 | $350,000 | $350,000 |
| 2018 | $0 | $230,000 | $0 | $230,000 | $230,000 |
| 2017 | $0 | $230,000 | $0 | $230,000 | $230,000 |
| 2016 | $0 | $100,000 | $0 | $100,000 | $100,000 |
| 2015 | $0 | $95,000 | $0 | $95,000 | $95,000 |
| 2014 | $0 | $95,000 | $0 | $95,000 | $95,000 |
| 2013 | $0 | $95,000 | $0 | $95,000 | $95,000 |
| 2012 | $0 | $125,000 | $0 | $125,000 | $125,000 |
| 2011 | $0 | $125,000 | $0 | $125,000 | $125,000 |
| 2010 | $0 | $125,000 | $0 | $125,000 | $125,000 |
| 2009 | $0 | $0 | $0 | $120,000 | $120,000 |
Deed and Sales History
| 1 | 01/08/2024 | WD | Warranty Deed | SHERIDAN, GARY D | LOLAND, CYNTHIA L | | | $520,000.00 | 58985 | 4568494 |
| 2 | 11/25/2020 | WD | Warranty Deed | FRUITION INVESTMENTS GROUP, LLC | SHERIDAN, GARY D | | | $420,000.00 | 46201 | 4505783 |
| 3 | 07/19/2016 | WD | Warranty Deed | REEDER BAY LLC | FRUITION INVESTMENTS GROUP, LLC | | | $315,000.00 | 25316 | 4403514 |
| 4 | 01/01/1900 | OTHER | Other - Misc. Documents | Unknown | REEDER BAY LLC, | | | $0.00 | 0 | 0 |
Payout Agreement
| No payout information available.. |