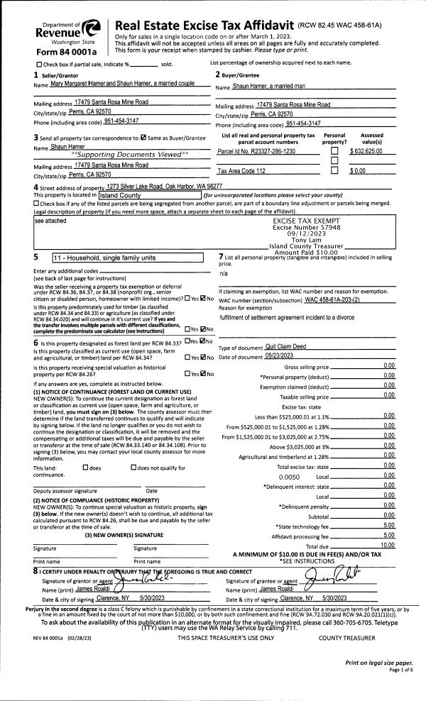
Property
Account |
| Property ID: | 809869 | Abbreviated Legal Description: | REEDER BAY PRD LOT 5 |
| Geographic ID: | S8535-00-00005-0 | Agent Code: | |
| Type: | Real | | |
| Tax Area: | 319 - APPRAISER-Cpvl Schl Dist, outside Cpvl, vacant & 50 acres or less | Land Use Code | 99 |
| Open Space: | N | DFL | N |
| Historic Property: | N | Remodel Property: | N |
| Multi-Family Redevelopment: | N | | |
| Township: | | Section: | |
| Range: | |
Location |
| Address: | 434 REEDER BAY RD COUPEVILLE, WA 98239 | Mapsco: | |
| Neighborhood: | Cycle 2 | Map ID: | 187 |
| Neighborhood CD: | 2 |
Owner |
| Name: | CAPPS, LISSA | Owner ID: | 307781 |
| Mailing Address: | BRIAN CAPPS 2459 1ST AVE WEST SEATTLE, WA 98119 | % Ownership: | 100.0000000000% |
| | | Exemptions: | |
Taxes and Assessment Details
Values
| (+) Improvement Homesite Value: | + | $0 | |
| (+) Improvement Non-Homesite Value: | + | $0 | |
| (+) Land Homesite Value: | + | $0 | |
| (+) Land Non-Homesite Value: | + | $455,000 | |
| (+) Curr Use (HS): | + | $0 | $0 |
| (+) Curr Use (NHS): | + | $0 | $0 |
| | | -------------------------- | |
| (=) Market Value: | = | $455,000 | |
| (–) Productivity Loss: | – | $0 | |
| | | -------------------------- | |
| (=) Subtotal: | = | $455,000 | |
| (+) Senior Appraised Value: | + | $0 | |
| (+) Non-Senior Appraised Value: | + | $455,000 | |
| | | -------------------------- | |
| (=) Total Appraised Value: | = | $455,000 | |
| (–) Senior Exemption Loss: | – | $0 | |
| (–) Exemption Loss: | – | $0 | |
| | | -------------------------- | |
| (=) Taxable Value: | = | $455,000 | |
Taxing Jurisdiction
| Owner: | CAPPS, LISSA | | |
| % Ownership: | 100.0000000000% | | |
| Total Value: | $455,000 | | |
| Tax Area: | 319 - APPRAISER-Cpvl Schl Dist, outside Cpvl, vacant & 50 acres or less |
| CF | Conservation Futures | 0.0316035091 | $455,000 | $455,000 | $14.38 | | |
| CEM2 | Cemetery #2 | 0.0095056933 | $455,000 | $455,000 | $4.33 | | |
| HOBOND | Hospital BOND | 0.1910887512 | $455,000 | $455,000 | $86.95 | | |
| HOGEN | Hospital GEN | 0.3902502903 | $455,000 | $455,000 | $177.56 | | |
| CE | County Current Expense | 0.3708482477 | $455,000 | $455,000 | $168.74 | | |
| CR | County Roads | 0.4584763726 | $455,000 | $455,000 | $208.61 | | |
| ISLANDEMS | Hospital GEN (EMS) | 0.5000000000 | $455,000 | $455,000 | $227.50 | | |
| LIB | Library Sno-Isle GEN | 0.3153421757 | $455,000 | $455,000 | $143.48 | | |
| LIBCAP | Library Sno-Isle BOND (Cap Fac Imp Area) | 0.0543427938 | $455,000 | $455,000 | $24.73 | | |
| POCOUP | Port of Coupeville GEN | 0.1093371703 | $455,000 | $455,000 | $49.75 | | |
| POCOUPIDD | Port of Coupeville IDD | 0.3409740022 | $455,000 | $455,000 | $155.14 | | |
| COUPSDTECH | School 204 CP (TECH) | 0.7545480007 | $455,000 | $455,000 | $343.32 | | |
| SCH204MO | School 204 Enrichment | 0.6716186034 | $455,000 | $455,000 | $305.59 | | |
| ST | State School | 1.3035497053 | $455,000 | $455,000 | $593.12 | | |
| ST2 | State School Part 2 | 0.8169543533 | $455,000 | $455,000 | $371.71 | | |
| | Total Tax Rate: | 6.3184396689 | | | | | |
| | | | | Taxes w/Current Exemptions: | $2,874.91 | | |
| | | | | Taxes w/o Exemptions: | $2,874.91 | | |
Improvement / Building
Sketch
| No sketches available for this property. |
Property Image
Land
| 1 | MB | MEDIUM BANK | 0.0000 | 0.00 | 201.36 | 0.00 | 1.00 | $455,000 | $0 |
Roll Value History
| 2026 | N/A | N/A | N/A | N/A | N/A |
| 2025 | $0 | $455,000 | $0 | $455,000 | $455,000 |
| 2024 | $0 | $440,000 | $0 | $440,000 | $440,000 |
| 2023 | $0 | $440,000 | $0 | $440,000 | $440,000 |
| 2022 | $0 | $500,000 | $0 | $500,000 | $500,000 |
| 2021 | $0 | $420,000 | $0 | $420,000 | $420,000 |
| 2020 | $0 | $375,000 | $0 | $375,000 | $375,000 |
| 2019 | $0 | $350,000 | $0 | $350,000 | $350,000 |
| 2018 | $0 | $350,000 | $0 | $350,000 | $350,000 |
| 2017 | $0 | $350,000 | $0 | $350,000 | $350,000 |
| 2016 | $0 | $350,000 | $0 | $350,000 | $350,000 |
| 2015 | $0 | $350,000 | $0 | $350,000 | $350,000 |
| 2014 | $0 | $350,000 | $0 | $350,000 | $350,000 |
| 2013 | $0 | $378,535 | $0 | $378,535 | $378,535 |
| 2012 | $0 | $378,535 | $0 | $378,535 | $378,535 |
| 2011 | $0 | $378,535 | $0 | $378,535 | $378,535 |
| 2010 | $0 | $378,835 | $0 | $378,835 | $378,835 |
| 2009 | $0 | $0 | $0 | $317,429 | $317,429 |
Deed and Sales History
| 1 | 02/24/2023 | WD | Warranty Deed | UFFELMAN, DAVID | CAPPS, LISSA | | | $440,000.00 | 55968 | 4557194 |
| 2 | 08/06/2020 | WD | Warranty Deed | REEDER BAY LLC | UFFELMAN, DAVID | | | $430,000.00 | 44130 | 4493212 |
| 3 | 01/01/1900 | OTHER | Other - Misc. Documents | Unknown | REEDER BAY LLC, | | | $0.00 | 0 | 0 |
Payout Agreement
| No payout information available.. |