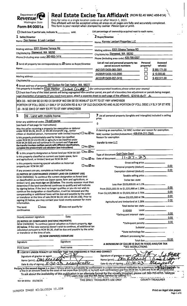
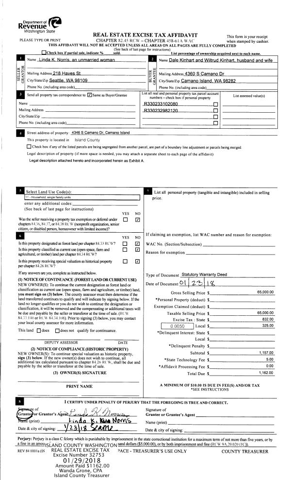
Property
Account |
| Property ID: | 809886 | Abbreviated Legal Description: | ON FROSTAD POND LOT 15 |
| Geographic ID: | S8536-00-00015-0 | Agent Code: | |
| Type: | Real | | |
| Tax Area: | 100 - APPRAISER-OH Schl Dist, in OH | Land Use Code | 11 |
| Open Space: | N | DFL | N |
| Historic Property: | N | Remodel Property: | N |
| Multi-Family Redevelopment: | N | | |
| Township: | | Section: | |
| Range: | |
Location |
| Address: | 2460 SW NAVIGATOR LOOP OAK HARBOR, WA 98277 | Mapsco: | |
| Neighborhood: | Cycle 1 | Map ID: | 118 |
| Neighborhood CD: | 1 |
Owner |
| Name: | MANAOR, VICTORE A | Owner ID: | 312007 |
| Mailing Address: | KRISSA GRACE ELLIMA MANAOR 2460 SW NAVIGATOR LOOP OAK HARBOR, WA 98277 | % Ownership: | 100.0000000000% |
| | | Exemptions: | |
Taxes and Assessment Details
Values
| (+) Improvement Homesite Value: | + | $0 | |
| (+) Improvement Non-Homesite Value: | + | $308,901 | |
| (+) Land Homesite Value: | + | $0 | |
| (+) Land Non-Homesite Value: | + | $170,000 | |
| (+) Curr Use (HS): | + | $0 | $0 |
| (+) Curr Use (NHS): | + | $0 | $0 |
| | | -------------------------- | |
| (=) Market Value: | = | $478,901 | |
| (–) Productivity Loss: | – | $0 | |
| | | -------------------------- | |
| (=) Subtotal: | = | $478,901 | |
| (+) Senior Appraised Value: | + | $0 | |
| (+) Non-Senior Appraised Value: | + | $478,901 | |
| | | -------------------------- | |
| (=) Total Appraised Value: | = | $478,901 | |
| (–) Senior Exemption Loss: | – | $0 | |
| (–) Exemption Loss: | – | $0 | |
| | | -------------------------- | |
| (=) Taxable Value: | = | $478,901 | |
Taxing Jurisdiction
| Owner: | MANAOR, VICTORE A | | |
| % Ownership: | 100.0000000000% | | |
| Total Value: | $478,901 | | |
| Tax Area: | 100 - APPRAISER-OH Schl Dist, in OH |
| CF | Conservation Futures | 0.0316035091 | $478,901 | $478,901 | $15.13 | | |
| CEM1 | Cemetery #1 | 0.0040320932 | $478,901 | $478,901 | $1.93 | | |
| COH | City of Oak Harbor | 2.3001546061 | $478,901 | $478,901 | $1,101.55 | | |
| OAKBOND | City of Oak Harbor BOND | 0.1926904192 | $478,901 | $478,901 | $92.28 | | |
| HOBOND | Hospital BOND | 0.1910887512 | $478,901 | $478,901 | $91.51 | | |
| HOGEN | Hospital GEN | 0.3902502903 | $478,901 | $478,901 | $186.89 | | |
| CE | County Current Expense | 0.3708482477 | $478,901 | $478,901 | $177.60 | | |
| ISLANDEMS | Hospital GEN (EMS) | 0.5000000000 | $478,901 | $478,901 | $239.45 | | |
| LIB | Library Sno-Isle GEN | 0.3153421757 | $478,901 | $478,901 | $151.02 | | |
| NWHIDPRMT | P & R N Whidbey GEN | 0.2004466701 | $478,901 | $478,901 | $95.99 | | |
| SCH201MO | School 201 Enrichment | 1.8559231640 | $478,901 | $478,901 | $888.80 | | |
| ST | State School | 1.3035497053 | $478,901 | $478,901 | $624.27 | | |
| ST2 | State School Part 2 | 0.8169543533 | $478,901 | $478,901 | $391.24 | | |
| | Total Tax Rate: | 8.4728839852 | | | | | |
| | | | | Taxes w/Current Exemptions: | $4,057.66 | | |
| | | | | Taxes w/o Exemptions: | $4,057.66 | | |
Improvement / Building
| Improvement #1: | RESIDENTIAL | State Code: | Y | 1446.0 sqft | Value: | $308,901 |
| Bathrooms: | 2.5 | Bedrooms: | 3 | | Ceiling: | DRYWALL PAINTED | Exterior Wall/Cover: | CEMENT FIBER | | Floor Covering: | CARPET/VINYL 60-40 | Floor Structure: | WOOD W/SUBFLOOR | | Foundation: | CONCRETE | Heating: | FHA GAS | | Interior Finish: | DRYWALL PAINT | Plumbing Fixture Cnt: | 13 | | Roof Slope: | 6" IN 12" | Roof Structure/Cover: | CJ ASPHALT |
|
| | Type | Description | Class CD | Sub Class CD | Year Built | Area |
| | BAS | BASE/MAIN FLOOR | 3 | 0 | 2010 | 716.0 |
| | OP4 | OPEN PORCH W/CEILING-ROOF | 3 | 0 | 2010 | 96.0 |
| | AGR | ATTACHED GARAGE | 3 | 0 | 2010 | 400.0 |
| | UPS | UPPER STORY | 3 | 0 | 2010 | 730.0 |
Sketch
Property Image
Land
| 1 | 12 | SQ (00000-06000) | 0.0000 | 0.00 | 0.00 | 0.00 | 1.00 | $170,000 | $0 |
Roll Value History
| 2026 | N/A | N/A | N/A | N/A | N/A |
| 2025 | $308,901 | $170,000 | $0 | $478,901 | $478,901 |
| 2024 | $311,498 | $170,000 | $0 | $481,498 | $481,498 |
| 2023 | $305,440 | $150,000 | $0 | $455,440 | $455,440 |
| 2022 | $279,712 | $150,000 | $0 | $429,712 | $429,712 |
| 2021 | $245,273 | $120,000 | $0 | $365,273 | $365,273 |
| 2020 | $237,441 | $80,000 | $0 | $317,441 | $317,441 |
| 2019 | $169,239 | $145,000 | $0 | $314,239 | $314,239 |
| 2018 | $169,699 | $135,000 | $0 | $304,699 | $304,699 |
| 2017 | $164,204 | $80,000 | $0 | $244,204 | $244,204 |
| 2016 | $165,970 | $80,000 | $0 | $245,970 | $245,970 |
| 2015 | $167,736 | $70,000 | $0 | $237,736 | $237,736 |
| 2014 | $169,502 | $60,000 | $0 | $229,502 | $229,502 |
| 2013 | $171,267 | $50,000 | $0 | $221,267 | $221,267 |
| 2012 | $173,032 | $60,000 | $0 | $233,032 | $233,032 |
| 2011 | $183,921 | $50,000 | $0 | $233,921 | $233,921 |
| 2010 | $0 | $50,000 | $0 | $50,000 | $50,000 |
| 2009 | $0 | $0 | $0 | $28,846 | $28,846 |
Deed and Sales History
| 1 | 04/12/2024 | WD | Warranty Deed | SLATER, JUSTIN | MANAOR, VICTORE A | | | $490,000.00 | 59676 | 4571330 |
| 2 | 12/19/2017 | WD | Warranty Deed | JUDD, JARIS B | SLATER, JUSTIN | | | $318,000.00 | 32376 | 4436238 |
| 3 | 03/26/2015 | WD | Warranty Deed | POWERS, JACK ROBERT | JUDD, JARIS B | | | $253,500.00 | 18968 | 4375699 |
| 4 | 03/10/2011 | WD | Warranty Deed | SEATTLE PACIFIC HOMES INC | POWERS, JACK ROBERT | | | $229,000.00 | 3856 | 4292253 |
| 5 | 02/11/2010 | TRUSTEED | Trustee's Deed | FRONTIER BANK, | SEATTLE PACIFIC HOMES INC, | | | $0.00 | 367 | 4268990 |
| 6 | 02/11/2010 | TRUSTEED | Trustee's Deed | ON FROSTAD POND LLC, | FRONTIER BANK, | | | $0.00 | 307 | 4268634 |
| 7 | 01/01/1900 | OTHER | Other - Misc. Documents | Unknown | ON FROSTAD POND LLC, | | | $0.00 | 0 | 0 |
Payout Agreement
| No payout information available.. |