Property
Account |
| Property ID: | 809914 | Abbreviated Legal Description: | ON FROSTAD POND LOT 43 |
| Geographic ID: | S8536-00-00043-0 | Agent Code: | |
| Type: | Real | | |
| Tax Area: | 100 - APPRAISER-OH Schl Dist, in OH | Land Use Code | 11 |
| Open Space: | N | DFL | N |
| Historic Property: | N | Remodel Property: | N |
| Multi-Family Redevelopment: | N | | |
| Township: | | Section: | |
| Range: | |
Location |
| Address: | | Mapsco: | |
| Neighborhood: | Cycle 1 | Map ID: | 118 |
| Neighborhood CD: | 1 |
Owner |
| Name: | CUNNINGHAM TTEE, LARRY A | Owner ID: | 312231 |
| Mailing Address: | NANCY F CUNNINGHAM TTEE 1041 KIWI ACRES LN OAK HARBOR, WA 98277 | % Ownership: | 100.0000000000% |
| | | Exemptions: | |
Taxes and Assessment Details
Values
| (+) Improvement Homesite Value: | + | $0 | |
| (+) Improvement Non-Homesite Value: | + | $335,090 | |
| (+) Land Homesite Value: | + | $0 | |
| (+) Land Non-Homesite Value: | + | $170,000 | |
| (+) Curr Use (HS): | + | $0 | $0 |
| (+) Curr Use (NHS): | + | $0 | $0 |
| | | -------------------------- | |
| (=) Market Value: | = | $505,090 | |
| (–) Productivity Loss: | – | $0 | |
| | | -------------------------- | |
| (=) Subtotal: | = | $505,090 | |
| (+) Senior Appraised Value: | + | $0 | |
| (+) Non-Senior Appraised Value: | + | $505,090 | |
| | | -------------------------- | |
| (=) Total Appraised Value: | = | $505,090 | |
| (–) Senior Exemption Loss: | – | $0 | |
| (–) Exemption Loss: | – | $0 | |
| | | -------------------------- | |
| (=) Taxable Value: | = | $505,090 | |
Taxing Jurisdiction
| Owner: | CUNNINGHAM TTEE, LARRY A | | |
| % Ownership: | 100.0000000000% | | |
| Total Value: | $505,090 | | |
| Tax Area: | 100 - APPRAISER-OH Schl Dist, in OH |
| CF | Conservation Futures | 0.0316035091 | $505,090 | $505,090 | $15.96 | | |
| CEM1 | Cemetery #1 | 0.0040320932 | $505,090 | $505,090 | $2.04 | | |
| COH | City of Oak Harbor | 2.3001546061 | $505,090 | $505,090 | $1,161.79 | | |
| OAKBOND | City of Oak Harbor BOND | 0.1926904192 | $505,090 | $505,090 | $97.33 | | |
| HOBOND | Hospital BOND | 0.1910887512 | $505,090 | $505,090 | $96.52 | | |
| HOGEN | Hospital GEN | 0.3902502903 | $505,090 | $505,090 | $197.11 | | |
| CE | County Current Expense | 0.3708482477 | $505,090 | $505,090 | $187.31 | | |
| ISLANDEMS | Hospital GEN (EMS) | 0.5000000000 | $505,090 | $505,090 | $252.55 | | |
| LIB | Library Sno-Isle GEN | 0.3153421757 | $505,090 | $505,090 | $159.28 | | |
| NWHIDPRMT | P & R N Whidbey GEN | 0.2004466701 | $505,090 | $505,090 | $101.24 | | |
| SCH201MO | School 201 Enrichment | 1.8559231640 | $505,090 | $505,090 | $937.41 | | |
| ST | State School | 1.3035497053 | $505,090 | $505,090 | $658.41 | | |
| ST2 | State School Part 2 | 0.8169543533 | $505,090 | $505,090 | $412.64 | | |
| | Total Tax Rate: | 8.4728839852 | | | | | |
| | | | | Taxes w/Current Exemptions: | $4,279.59 | | |
| | | | | Taxes w/o Exemptions: | $4,279.59 | | |
Improvement / Building
| Improvement #1: | RESIDENTIAL | State Code: | Y | 1723.7 sqft | Value: | $335,090 |
| Bathrooms: | 2.5 | Bedrooms: | 4 | | Ceiling: | DRYWALL PAINTED | Exterior Wall/Cover: | CEMENT FIBER | | Floor Covering: | CARPET/VINYL 60-40 | Floor Structure: | WOOD W/SUBFLOOR | | Foundation: | CONCRETE | Heating: | FHA GAS | | Interior Finish: | DRYWALL PAINT | Plumbing Fixture Cnt: | 12 | | Roof Slope: | 6" IN 12" | Roof Structure/Cover: | CJ ASPHALT |
|
| | Type | Description | Class CD | Sub Class CD | Year Built | Area |
| | BAS | BASE/MAIN FLOOR | 3 | 0 | 2010 | 737.2 |
| | OP1 | OPEN PORCH SLAB | 3 | 0 | 2010 | 100.0 |
| | OP4 | OPEN PORCH W/CEILING-ROOF | 3 | 0 | 2010 | 67.5 |
| | AGR | ATTACHED GARAGE | 3 | 0 | 2010 | 633.0 |
| | UPS | UPPER STORY | 3 | 0 | 2010 | 986.5 |
Sketch
Property Image
Land
| 1 | 14 | SQ (08001-12000) | 0.0000 | 0.00 | 0.00 | 0.00 | 1.00 | $170,000 | $0 |
Roll Value History
| 2026 | N/A | N/A | N/A | N/A | N/A |
| 2025 | $335,090 | $170,000 | $0 | $505,090 | $505,090 |
| 2024 | $337,907 | $170,000 | $0 | $507,907 | $507,907 |
| 2023 | $347,594 | $150,000 | $0 | $497,594 | $497,594 |
| 2022 | $317,180 | $150,000 | $0 | $467,180 | $467,180 |
| 2021 | $277,091 | $120,000 | $0 | $397,091 | $397,091 |
| 2020 | $268,486 | $80,000 | $0 | $348,486 | $348,486 |
| 2019 | $194,653 | $145,000 | $0 | $339,653 | $339,653 |
| 2018 | $195,181 | $135,000 | $0 | $330,181 | $330,181 |
| 2017 | $193,945 | $80,000 | $0 | $273,945 | $273,945 |
| 2016 | $196,030 | $80,000 | $0 | $276,030 | $276,030 |
| 2015 | $198,114 | $70,000 | $0 | $268,114 | $268,114 |
| 2014 | $200,198 | $60,000 | $0 | $260,198 | $260,198 |
| 2013 | $202,283 | $50,000 | $0 | $252,283 | $252,283 |
| 2012 | $204,371 | $60,000 | $0 | $264,371 | $264,371 |
| 2011 | $130,321 | $50,000 | $0 | $180,321 | $180,321 |
| 2010 | $0 | $50,000 | $0 | $50,000 | $50,000 |
| 2009 | $0 | $0 | $0 | $28,845 | $28,845 |
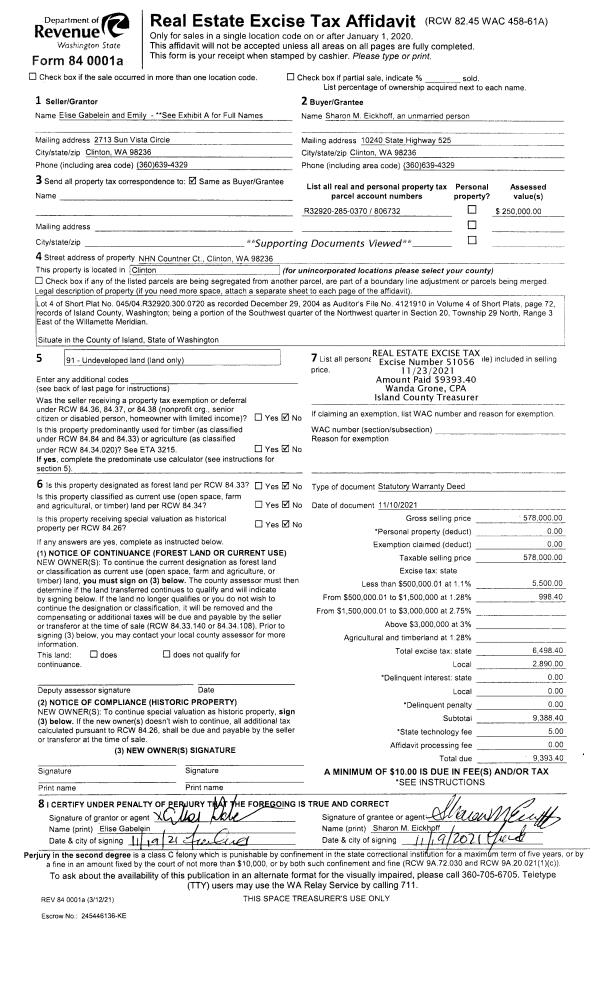
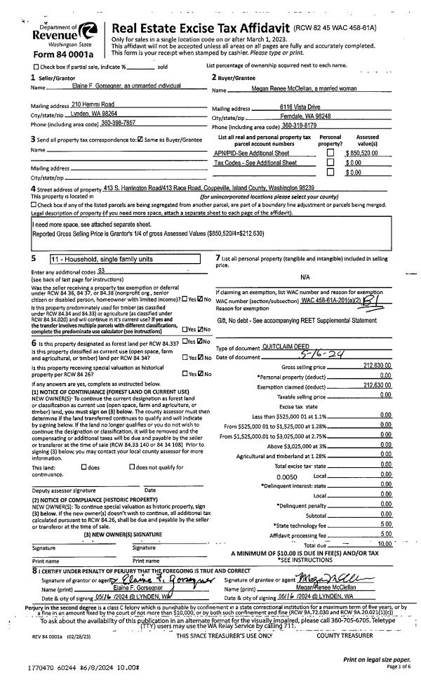
Deed and Sales History
| 1 | 04/29/2024 | QCD | Quit Claim Deed | CUNNINGHAM, LARRY | CUNNINGHAM TTEE, LARRY A | | | $0.00 | 59858 | 4571986 |
| 2 | 04/08/2021 | WD | Warranty Deed | SELIGMAN, RYAN S | CUNNINGHAM, LARRY | | | $481,000.00 | 47809 | 4516616 |
| 3 | 08/06/2018 | WD | Warranty Deed | AITKINS, TODD J | SELIGMAN, RYAN S | | | $348,000.00 | 35380 | 4449611 |
| 4 | 12/08/2011 | WD | Warranty Deed | SEATTLE PACIFIC HOMES INC | AITKINS, TODD J | | | $239,950.00 | 6406 | 4306468 |
| 5 | 02/11/2010 | TRUSTEED | Trustee's Deed | FRONTIER BANK, | SEATTLE PACIFIC HOMES INC, | | | $0.00 | 367 | 4268990 |
| 6 | 02/11/2010 | TRUSTEED | Trustee's Deed | ON FROSTAD POND LLC, | FRONTIER BANK, | | | $0.00 | 307 | 4268634 |
| 7 | 01/01/1900 | OTHER | Other - Misc. Documents | Unknown | ON FROSTAD POND LLC, | | | $0.00 | 0 | 0 |
Payout Agreement
| No payout information available.. |