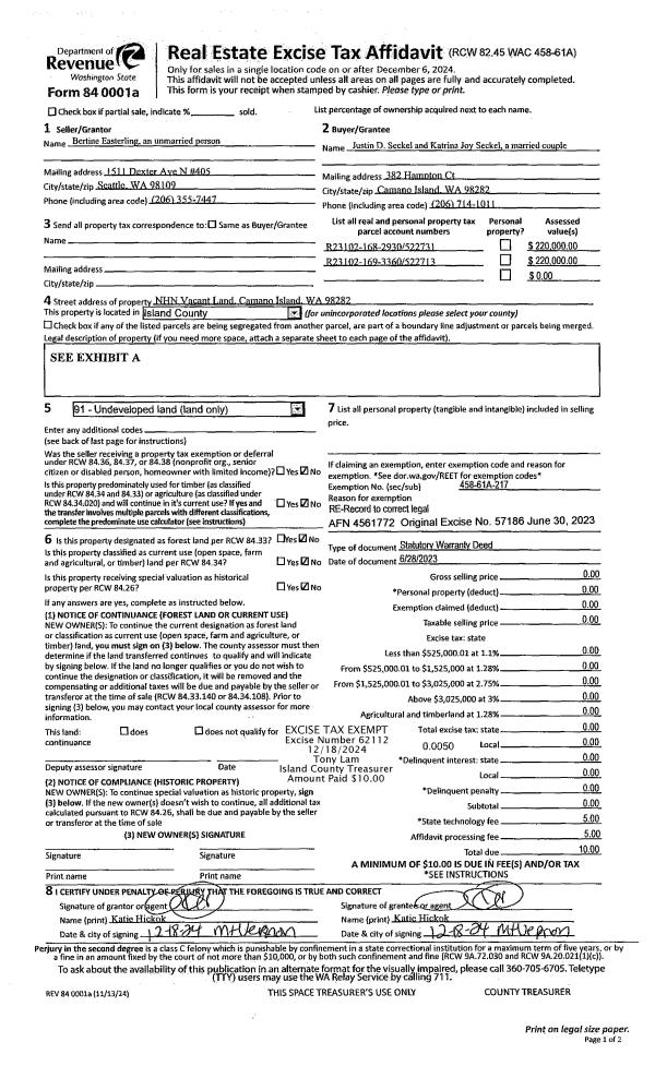
Property
Account |
| Property ID: | 809921 | Abbreviated Legal Description: | AMENDED PATTERSON PLAT AF#4370570 LOT 2 |
| Geographic ID: | S8538-00-00002-0 | Agent Code: | |
| Type: | Real | | |
| Tax Area: | 760 - APPRAISER-S Whid Schl Dist, Special District, improved & less than 1 acre | Land Use Code | 11 |
| Open Space: | N | DFL | N |
| Historic Property: | N | Remodel Property: | N |
| Multi-Family Redevelopment: | N | | |
| Township: | | Section: | |
| Range: | |
Location |
| Address: | 5436 HARBORSIDE LN FREELAND, WA 98249 | Mapsco: | |
| Neighborhood: | Cycle 3 | Map ID: | 310 |
| Neighborhood CD: | 3 |
Owner |
| Name: | HOGARTH, GLEN W | Owner ID: | 287583 |
| Mailing Address: | SARAH HOGARTH PO BOX 771 FREELAND, WA 98249 | % Ownership: | 100.0000000000% |
| | | Exemptions: | |
Taxes and Assessment Details
Values
| (+) Improvement Homesite Value: | + | $0 | |
| (+) Improvement Non-Homesite Value: | + | $389,911 | |
| (+) Land Homesite Value: | + | $0 | |
| (+) Land Non-Homesite Value: | + | $340,000 | |
| (+) Curr Use (HS): | + | $0 | $0 |
| (+) Curr Use (NHS): | + | $0 | $0 |
| | | -------------------------- | |
| (=) Market Value: | = | $729,911 | |
| (–) Productivity Loss: | – | $0 | |
| | | -------------------------- | |
| (=) Subtotal: | = | $729,911 | |
| (+) Senior Appraised Value: | + | $0 | |
| (+) Non-Senior Appraised Value: | + | $729,911 | |
| | | -------------------------- | |
| (=) Total Appraised Value: | = | $729,911 | |
| (–) Senior Exemption Loss: | – | $0 | |
| (–) Exemption Loss: | – | $0 | |
| | | -------------------------- | |
| (=) Taxable Value: | = | $729,911 | |
Taxing Jurisdiction
| Owner: | HOGARTH, GLEN W | | |
| % Ownership: | 100.0000000000% | | |
| Total Value: | $729,911 | | |
| Tax Area: | 760 - APPRAISER-S Whid Schl Dist, Special District, improved & less than 1 acre |
| CF | Conservation Futures | 0.0316035091 | $729,911 | $729,911 | $23.07 | | |
| FIRE3 | Fire & Rescue Dist #3 S Whidbey GEN | 1.2004855531 | $729,911 | $729,911 | $876.25 | | |
| HOBOND | Hospital BOND | 0.1910887512 | $729,911 | $729,911 | $139.48 | | |
| HOGEN | Hospital GEN | 0.3902502903 | $729,911 | $729,911 | $284.85 | | |
| CE | County Current Expense | 0.3708482477 | $729,911 | $729,911 | $270.69 | | |
| CR | County Roads | 0.4584763726 | $729,911 | $729,911 | $334.65 | | |
| ISLANDEMS | Hospital GEN (EMS) | 0.5000000000 | $729,911 | $729,911 | $364.96 | | |
| LIB | Library Sno-Isle GEN | 0.3153421757 | $729,911 | $729,911 | $230.17 | | |
| PORTWHID | Port of S Whidbey GEN | 0.1094540357 | $729,911 | $729,911 | $79.89 | | |
| SCH206BOND | School 206 BOND | 0.3161759235 | $729,911 | $729,911 | $230.78 | | |
| SCH206MO | School 206 Enrichment | 0.4547169547 | $729,911 | $729,911 | $331.90 | | |
| ST | State School | 1.3035497053 | $729,911 | $729,911 | $951.48 | | |
| ST2 | State School Part 2 | 0.8169543533 | $729,911 | $729,911 | $596.30 | | |
| SWHIDPRBD | P & R S Whidbey BOND | 0.0152817568 | $729,911 | $729,911 | $11.15 | | |
| SWHIDPRBD2 | P & R S Whidbey BOND2 | 0.0138911264 | $729,911 | $729,911 | $10.14 | | |
| SWHIDPRMT | P & R S Whidbey GEN | 0.2053334452 | $729,911 | $729,911 | $149.88 | | |
| | Total Tax Rate: | 6.6934522006 | | | | | |
| | | | | Taxes w/Current Exemptions: | $4,885.64 | | |
| | | | | Taxes w/o Exemptions: | $4,885.64 | | |
Improvement / Building
| Improvement #1: | RESIDENTIAL | State Code: | Y | 1952.0 sqft | Value: | $389,911 |
| Bathrooms: | 2 | Bedrooms: | 3 | | Ceiling: | DRYWALL PAINTED | Cooling: | HEAT PUMP/CONV/V | | Exterior Wall/Cover: | CEMENT FIBER | Floor Covering: | CARPET/VINYL 60-40 | | Floor Structure: | WOOD W/SUBFLOOR | Foundation: | CONCRETE | | Interior Finish: | DRYWALL PAINT | Plumbing Fixture Cnt: | 11 | | Roof Slope: | 4" IN 12" | Roof Structure/Cover: | CJ ASPHALT |
|
| | Type | Description | Class CD | Sub Class CD | Year Built | Area |
| | BAS | BASE/MAIN FLOOR | 3 | 0 | 2023 | 1952.0 |
| | AGR | ATTACHED GARAGE | 3 | 0 | 2023 | 484.0 |
| | OWP | OPEN WOOD PORCH W/STEPS | 3 | 0 | 2023 | 80.0 |
| | OWP | OPEN WOOD PORCH W/STEPS | 3 | 0 | 2023 | 409.0 |
Sketch
Property Image
Land
| 1 | 15 | SQ (12001-21780) | 0.3900 | 16988.40 | 0.00 | 0.00 | 1.00 | $340,000 | $0 |
Roll Value History
| 2026 | N/A | N/A | N/A | N/A | N/A |
| 2025 | $389,911 | $340,000 | $0 | $729,911 | $729,911 |
| 2024 | $397,000 | $320,000 | $0 | $717,000 | $717,000 |
| 2023 | $97,751 | $120,000 | $0 | $217,751 | $217,751 |
| 2022 | $0 | $100,000 | $0 | $100,000 | $100,000 |
| 2021 | $0 | $90,000 | $0 | $90,000 | $90,000 |
| 2020 | $0 | $90,000 | $0 | $90,000 | $90,000 |
| 2019 | $0 | $80,000 | $0 | $80,000 | $80,000 |
| 2018 | $0 | $80,000 | $0 | $80,000 | $80,000 |
| 2017 | $0 | $80,000 | $0 | $80,000 | $80,000 |
| 2016 | $0 | $80,000 | $0 | $80,000 | $80,000 |
| 2015 | $0 | $80,000 | $0 | $80,000 | $80,000 |
| 2014 | $0 | $80,000 | $0 | $80,000 | $80,000 |
| 2013 | $0 | $80,000 | $0 | $80,000 | $80,000 |
| 2012 | $0 | $81,000 | $0 | $81,000 | $81,000 |
| 2011 | $0 | $81,000 | $0 | $81,000 | $81,000 |
| 2010 | $0 | $81,000 | $0 | $81,000 | $81,000 |
| 2009 | $0 | $0 | $0 | $41,666 | $41,666 |
Deed and Sales History
| 1 | 10/15/2018 | WD | Warranty Deed | AINOA, IAN S | HOGARTH, GLEN W | | | $81,500.00 | 36361 | 4453709 |
| 2 | 12/11/2015 | QCD | Quit Claim Deed | PATTERSON, JAMES W | AINOA, IAN S | | | $0.00 | 22542 | 4391293 |
| 3 | 07/23/2015 | TRUSTEED | Trustee's Deed | PATTERSON TTEE, CAROLYN C | PATTERSON, JAMES W | | | $0.00 | 20650 | 4382971 |
| 4 | 01/01/1900 | OTHER | Other - Misc. Documents | Unknown | PATTERSON TTEE, CAROLYN C | | | $0.00 | 0 | 0 |
Payout Agreement
| No payout information available.. |