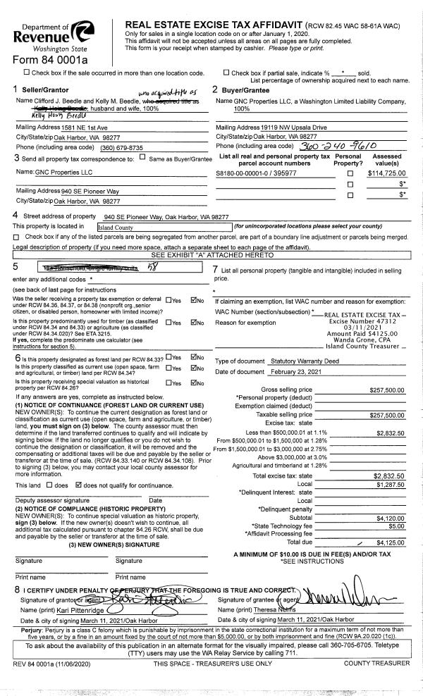
Property
Account |
| Property ID: | 809931 | Abbreviated Legal Description: | TWO TOTEMS CONDO UNIT 304 FIRST ST #101 (RESIDENTIAL UNIT 1) 26.09% INT |
| Geographic ID: | S8537-00-04101-0 | Agent Code: | |
| Type: | Real | | |
| Tax Area: | 700 - APPRAISER-S Whid Schl Dist, in town of Langley | Land Use Code | 14 |
| Open Space: | N | DFL | N |
| Historic Property: | N | Remodel Property: | N |
| Multi-Family Redevelopment: | N | | |
| Township: | | Section: | |
| Range: | |
Location |
| Address: | 304 1ST ST UNIT 101 LANGLEY, WA 98260 | Mapsco: | |
| Neighborhood: | 42*LG-2 totems | Map ID: | 912 |
| Neighborhood CD: | 42*LG2totm |
Owner |
| Name: | PHILP, KENNETH | Owner ID: | 312502 |
| Mailing Address: | 5183 NIGHTHAWK RD LANGLEY, WA 98260 | % Ownership: | 100.0000000000% |
| | | Exemptions: | |
Taxes and Assessment Details
Values
| (+) Improvement Homesite Value: | + | $0 | |
| (+) Improvement Non-Homesite Value: | + | $432,256 | |
| (+) Land Homesite Value: | + | $0 | |
| (+) Land Non-Homesite Value: | + | $700,100 | |
| (+) Curr Use (HS): | + | $0 | $0 |
| (+) Curr Use (NHS): | + | $0 | $0 |
| | | -------------------------- | |
| (=) Market Value: | = | $1,132,356 | |
| (–) Productivity Loss: | – | $0 | |
| | | -------------------------- | |
| (=) Subtotal: | = | $1,132,356 | |
| (+) Senior Appraised Value: | + | $0 | |
| (+) Non-Senior Appraised Value: | + | $1,132,356 | |
| | | -------------------------- | |
| (=) Total Appraised Value: | = | $1,132,356 | |
| (–) Senior Exemption Loss: | – | $0 | |
| (–) Exemption Loss: | – | $0 | |
| | | -------------------------- | |
| (=) Taxable Value: | = | $1,132,356 | |
Taxing Jurisdiction
| Owner: | PHILP, KENNETH | | |
| % Ownership: | 100.0000000000% | | |
| Total Value: | $1,132,356 | | |
| Tax Area: | 700 - APPRAISER-S Whid Schl Dist, in town of Langley |
| CF | Conservation Futures | 0.0316035091 | $1,132,356 | $1,132,356 | $35.79 | | |
| LANG | City of Langley | 1.0093520762 | $1,132,356 | $1,132,356 | $1,142.95 | | |
| LANGBOND | City of Langley BOND | 1.0326110892 | $1,132,356 | $1,132,356 | $1,169.28 | | |
| FIRE3 | Fire & Rescue Dist #3 S Whidbey GEN | 1.2004855531 | $1,132,356 | $1,132,356 | $1,359.38 | | |
| HOBOND | Hospital BOND | 0.1910887512 | $1,132,356 | $1,132,356 | $216.38 | | |
| HOGEN | Hospital GEN | 0.3902502903 | $1,132,356 | $1,132,356 | $441.90 | | |
| CE | County Current Expense | 0.3708482477 | $1,132,356 | $1,132,356 | $419.93 | | |
| ISLANDEMS | Hospital GEN (EMS) | 0.5000000000 | $1,132,356 | $1,132,356 | $566.18 | | |
| LIB | Library Sno-Isle GEN | 0.3153421757 | $1,132,356 | $1,132,356 | $357.08 | | |
| PORTWHID | Port of S Whidbey GEN | 0.1094540357 | $1,132,356 | $1,132,356 | $123.94 | | |
| SCH206BOND | School 206 BOND | 0.3161759235 | $1,132,356 | $1,132,356 | $358.02 | | |
| SCH206MO | School 206 Enrichment | 0.4547169547 | $1,132,356 | $1,132,356 | $514.90 | | |
| ST | State School | 1.3035497053 | $1,132,356 | $1,132,356 | $1,476.08 | | |
| ST2 | State School Part 2 | 0.8169543533 | $1,132,356 | $1,132,356 | $925.08 | | |
| SWHIDPRBD | P & R S Whidbey BOND | 0.0152817568 | $1,132,356 | $1,132,356 | $17.30 | | |
| SWHIDPRBD2 | P & R S Whidbey BOND2 | 0.0138911264 | $1,132,356 | $1,132,356 | $15.73 | | |
| SWHIDPRMT | P & R S Whidbey GEN | 0.2053334452 | $1,132,356 | $1,132,356 | $232.51 | | |
| | Total Tax Rate: | 8.2769389934 | | | | | |
| | | | | Taxes w/Current Exemptions: | $9,372.43 | | |
| | | | | Taxes w/o Exemptions: | $9,372.43 | | |
Improvement / Building
| Improvement #1: | RESIDENTIAL | State Code: | A1 | 1908.0 sqft | Value: | $432,256 |
| Bathrooms: | 2 | Bedrooms: | 3 | | Ceiling: | DRYWALL PAINTED | Exterior Wall/Cover: | WOOD SIDING | | Floor Covering: | HARDWOOD/CARP 80-20 | Floor Structure: | WOOD W/SUBFLOOR | | Foundation: | CONCRETE | Heating: | HEAT PUMP | | Interior Finish: | DRYWALL PAINT | Plumbing Fixture Cnt: | 12 | | Roof Slope: | FLAT | Roof Structure/Cover: | ALUM LIGHT |
|
| | Type | Description | Class CD | Sub Class CD | Year Built | Area |
| | BAS | BASE/MAIN FLOOR | 5 | 0 | 2007 | 588.0 |
| | OP3 | OPEN PORCH W/ROOF | 5 | 0 | 2007 | 56.0 |
| | UTY | STORAGE/UTILITY | 5 | 0 | 2007 | 28.0 |
| | OWR | OPEN WOOD PORCH W/STEPS/ROOF | 5 | 0 | 2007 | 72.0 |
| | DWN | DOWNSTAIRS LIVING AREA | 5 | 0 | 2007 | 660.0 |
| | DWN | DOWNSTAIRS LIVING AREA | 5 | 0 | 2007 | 660.0 |
| | COMA | Common Area Improvement | 5 | 0 | 2007 | 0.0 |
Sketch
Property Image
Land
| 1 | 61 | MULTIPLE RESIDENCES | 0.0002 | 10.00 | 5.00 | 0.00 | 1.00 | $700,000 | $0 |
| 2 | 55 | TIDES | 0.0000 | 0.00 | 5.00 | 0.00 | 1.00 | $100 | $0 |
Roll Value History
| 2026 | N/A | N/A | N/A | N/A | N/A |
| 2025 | $432,256 | $700,100 | $0 | $1,132,356 | $1,132,356 |
| 2024 | $432,401 | $700,100 | $0 | $1,132,501 | $1,132,501 |
| 2023 | $437,580 | $700,100 | $0 | $1,137,680 | $1,137,680 |
| 2022 | $401,050 | $700,100 | $0 | $1,101,150 | $1,101,150 |
| 2021 | $352,983 | $640,100 | $0 | $993,083 | $993,083 |
| 2020 | $339,540 | $418,898 | $0 | $758,438 | $758,438 |
| 2019 | $264,937 | $418,898 | $0 | $683,835 | $683,835 |
| 2018 | $265,686 | $418,898 | $0 | $684,584 | $684,584 |
| 2017 | $267,180 | $418,898 | $0 | $686,078 | $686,078 |
| 2016 | $270,171 | $418,898 | $0 | $689,069 | $689,069 |
| 2015 | $273,161 | $418,898 | $0 | $692,059 | $692,059 |
| 2014 | $285,124 | $418,898 | $0 | $704,022 | $704,022 |
| 2013 | $285,124 | $418,898 | $216,000 | $510,554 | $510,554 |
| 2012 | $285,124 | $418,898 | $216,000 | $510,554 | $510,554 |
| 2011 | $285,124 | $418,898 | $216,000 | $510,554 | $510,554 |
| 2010 | $315,924 | $361,449 | $216,000 | $677,373 | $677,373 |
| 2009 | $236,390 | $116,431 | $0 | $352,821 | $352,821 |
| 2008 | $0 | $0 | $0 | $355,642 | $355,642 |
Deed and Sales History
| 1 | 05/28/2024 | WD | Warranty Deed | ELLIS, MARK E | PHILP, KENNETH | | | $1,380,000.00 | 60084 | 4572736 |
| 2 | 07/23/2009 | WD | Warranty Deed | BEHR, MARTIN/VIRGINIA | ELLIS, MARK E | | | $750,000.00 | 91737 | 4257405 |
| 3 | 07/16/2008 | QCD | Quit Claim Deed | TWO TOTEMS LLC, | BEHR, MARTIN/VIRGINIA | | | $0.00 | 81902 | 4233242 |
| 4 | 01/01/1900 | OTHER | Other - Misc. Documents | Unknown | TWO TOTEMS LLC, | | | $0.00 | 0 | 0 |
Payout Agreement
| No payout information available.. |