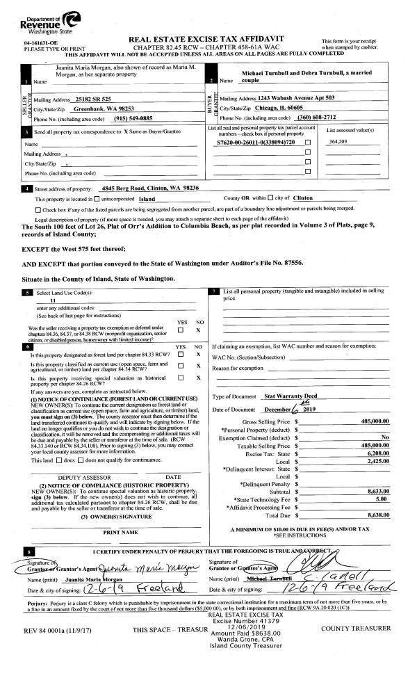
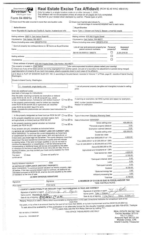
Property
Account |
| Property ID: | 809932 | Abbreviated Legal Description: | TWO TOTEMS CONDO UNIT 304 FIRST ST #102 (RESIDENTIAL UNIT 2) 26.09% INT |
| Geographic ID: | S8537-00-04102-0 | Agent Code: | |
| Type: | Real | | |
| Tax Area: | 700 - APPRAISER-S Whid Schl Dist, in town of Langley | Land Use Code | 14 |
| Open Space: | N | DFL | N |
| Historic Property: | N | Remodel Property: | N |
| Multi-Family Redevelopment: | N | | |
| Township: | | Section: | |
| Range: | |
Location |
| Address: | 304 1ST ST UNIT 102 LANGLEY, WA 98260 | Mapsco: | |
| Neighborhood: | 42*LG-2 totems | Map ID: | 912 |
| Neighborhood CD: | 42*LG2totm |
Owner |
| Name: | HANSEROTH, HANNA | Owner ID: | 292100 |
| Mailing Address: | TIMOTHY HANSEROTH c/o FBMM 12 W 37TH ST 10TH FLOOR NEW YORK, NY 10018 | % Ownership: | 100.0000000000% |
| | | Exemptions: | |
Taxes and Assessment Details
Values
| (+) Improvement Homesite Value: | + | $0 | |
| (+) Improvement Non-Homesite Value: | + | $451,748 | |
| (+) Land Homesite Value: | + | $0 | |
| (+) Land Non-Homesite Value: | + | $700,100 | |
| (+) Curr Use (HS): | + | $0 | $0 |
| (+) Curr Use (NHS): | + | $0 | $0 |
| | | -------------------------- | |
| (=) Market Value: | = | $1,151,848 | |
| (–) Productivity Loss: | – | $0 | |
| | | -------------------------- | |
| (=) Subtotal: | = | $1,151,848 | |
| (+) Senior Appraised Value: | + | $0 | |
| (+) Non-Senior Appraised Value: | + | $1,151,848 | |
| | | -------------------------- | |
| (=) Total Appraised Value: | = | $1,151,848 | |
| (–) Senior Exemption Loss: | – | $0 | |
| (–) Exemption Loss: | – | $0 | |
| | | -------------------------- | |
| (=) Taxable Value: | = | $1,151,848 | |
Taxing Jurisdiction
| Owner: | HANSEROTH, HANNA | | |
| % Ownership: | 100.0000000000% | | |
| Total Value: | $1,151,848 | | |
| Tax Area: | 700 - APPRAISER-S Whid Schl Dist, in town of Langley |
| CF | Conservation Futures | 0.0316035091 | $1,151,848 | $1,151,848 | $36.40 | | |
| LANG | City of Langley | 1.0093520762 | $1,151,848 | $1,151,848 | $1,162.62 | | |
| LANGBOND | City of Langley BOND | 1.0326110892 | $1,151,848 | $1,151,848 | $1,189.41 | | |
| FIRE3 | Fire & Rescue Dist #3 S Whidbey GEN | 1.2004855531 | $1,151,848 | $1,151,848 | $1,382.78 | | |
| HOBOND | Hospital BOND | 0.1910887512 | $1,151,848 | $1,151,848 | $220.11 | | |
| HOGEN | Hospital GEN | 0.3902502903 | $1,151,848 | $1,151,848 | $449.51 | | |
| CE | County Current Expense | 0.3708482477 | $1,151,848 | $1,151,848 | $427.16 | | |
| ISLANDEMS | Hospital GEN (EMS) | 0.5000000000 | $1,151,848 | $1,151,848 | $575.92 | | |
| LIB | Library Sno-Isle GEN | 0.3153421757 | $1,151,848 | $1,151,848 | $363.23 | | |
| PORTWHID | Port of S Whidbey GEN | 0.1094540357 | $1,151,848 | $1,151,848 | $126.07 | | |
| SCH206BOND | School 206 BOND | 0.3161759235 | $1,151,848 | $1,151,848 | $364.19 | | |
| SCH206MO | School 206 Enrichment | 0.4547169547 | $1,151,848 | $1,151,848 | $523.76 | | |
| ST | State School | 1.3035497053 | $1,151,848 | $1,151,848 | $1,501.49 | | |
| ST2 | State School Part 2 | 0.8169543533 | $1,151,848 | $1,151,848 | $941.01 | | |
| SWHIDPRBD | P & R S Whidbey BOND | 0.0152817568 | $1,151,848 | $1,151,848 | $17.60 | | |
| SWHIDPRBD2 | P & R S Whidbey BOND2 | 0.0138911264 | $1,151,848 | $1,151,848 | $16.00 | | |
| SWHIDPRMT | P & R S Whidbey GEN | 0.2053334452 | $1,151,848 | $1,151,848 | $236.51 | | |
| | Total Tax Rate: | 8.2769389934 | | | | | |
| | | | | Taxes w/Current Exemptions: | $9,533.77 | | |
| | | | | Taxes w/o Exemptions: | $9,533.77 | | |
Improvement / Building
| Improvement #1: | RESIDENTIAL | State Code: | A1 | 1860.0 sqft | Value: | $451,748 |
| Bathrooms: | 2 | Bedrooms: | 3 | | Ceiling: | DRYWALL PAINTED | Exterior Wall/Cover: | WOOD SIDING | | Floor Covering: | HARDWOOD/CARP 80-20 | Floor Structure: | WOOD W/SUBFLOOR | | Foundation: | CONCRETE | Heating: | FHA GAS | | Interior Finish: | DRYWALL PAINT | Plumbing Fixture Cnt: | 12 | | Roof Slope: | FLAT | Roof Structure/Cover: | ALUM LIGHT |
|
| | Type | Description | Class CD | Sub Class CD | Year Built | Area |
| | BAS | BASE/MAIN FLOOR | 5 | 0 | 2007 | 588.0 |
| | OP2 | OPEN PORCH W/STEPS | 5 | 0 | 2007 | 88.0 |
| | UTY | STORAGE/UTILITY | 5 | 0 | 2007 | 28.0 |
| | OP3 | OPEN PORCH W/ROOF | 5 | 0 | 2007 | 24.0 |
| | OWR | OPEN WOOD PORCH W/STEPS/ROOF | 5 | 0 | 2007 | 110.0 |
| | DWN | DOWNSTAIRS LIVING AREA | 5 | 0 | 2007 | 636.0 |
| | DWN | DOWNSTAIRS LIVING AREA | 5 | 0 | 2007 | 636.0 |
| | COMA | Common Area Improvement | 5 | 0 | 2007 | 0.0 |
Sketch
Property Image
Land
| 1 | 61 | MULTIPLE RESIDENCES | 0.0000 | 0.00 | 5.00 | 0.00 | 1.00 | $700,000 | $0 |
| 2 | 55 | TIDES | 0.0000 | 0.00 | 5.00 | 0.00 | 1.00 | $100 | $0 |
Roll Value History
| 2026 | N/A | N/A | N/A | N/A | N/A |
| 2025 | $451,748 | $700,100 | $0 | $1,151,848 | $1,151,848 |
| 2024 | $456,911 | $700,100 | $0 | $1,157,011 | $1,157,011 |
| 2023 | $462,074 | $700,100 | $0 | $1,162,174 | $1,162,174 |
| 2022 | $422,031 | $700,100 | $0 | $1,122,131 | $1,122,131 |
| 2021 | $370,412 | $640,100 | $0 | $1,010,512 | $1,010,512 |
| 2020 | $339,960 | $216,125 | $0 | $556,085 | $556,085 |
| 2019 | $265,395 | $216,125 | $0 | $481,520 | $481,520 |
| 2018 | $266,144 | $216,125 | $0 | $482,269 | $482,269 |
| 2017 | $267,641 | $216,125 | $0 | $483,766 | $483,766 |
| 2016 | $270,638 | $216,125 | $0 | $486,763 | $486,763 |
| 2015 | $273,633 | $216,125 | $0 | $489,758 | $489,758 |
| 2014 | $285,617 | $216,125 | $0 | $501,742 | $501,742 |
| 2013 | $285,617 | $216,125 | $0 | $501,742 | $501,742 |
| 2012 | $285,617 | $216,125 | $0 | $501,742 | $501,742 |
| 2011 | $285,617 | $216,125 | $0 | $501,742 | $501,742 |
| 2010 | $310,967 | $216,125 | $0 | $527,092 | $527,092 |
| 2009 | $204,027 | $114,765 | $0 | $318,792 | $318,792 |
| 2008 | $0 | $0 | $0 | $321,298 | $321,298 |
Deed and Sales History
| 1 | 09/24/2019 | WD | Warranty Deed | L 3 TIMES LLC | HANSEROTH, HANNA | | | $1,050,000.00 | 40562 | 4472723 |
| 2 | 12/01/2011 | WD | Warranty Deed | BEHR, MARTIN | L 3 TIMES LLC | | | $655,000.00 | 6439 | 4306751 |
| 3 | 07/16/2008 | QCD | Quit Claim Deed | TWO TOTEMS LLC, | BEHR, MARTIN | | | $0.00 | 81900 | 4233244 |
| 4 | 01/01/1900 | OTHER | Other - Misc. Documents | Unknown | TWO TOTEMS LLC, | | | $0.00 | 0 | 0 |
Payout Agreement
| No payout information available.. |