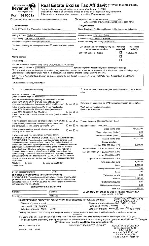
Property
Account |
| Property ID: | 809934 | Abbreviated Legal Description: | TWO TOTEMS CONDO UNIT 306 FIRST ST #101 (COMMERCIAL UNIT 2) 3.62% INT |
| Geographic ID: | S8537-00-06101-0 | Agent Code: | |
| Type: | Real | | |
| Tax Area: | 700 - APPRAISER-S Whid Schl Dist, in town of Langley | Land Use Code | 50 |
| Open Space: | N | DFL | N |
| Historic Property: | N | Remodel Property: | N |
| Multi-Family Redevelopment: | N | | |
| Township: | | Section: | |
| Range: | |
Location |
| Address: | 306 1ST ST UNIT 101 LANGLEY, WA 98260 | Mapsco: | |
| Neighborhood: | 42cLG-north | Map ID: | 912 |
| Neighborhood CD: | 42cLGnorth |
Owner |
| Name: | KELLY, M DOUGLAS | Owner ID: | 201793 |
| Mailing Address: | DANA KELLY 3700 E REDTAIL LN CLINTON, WA 98236 | % Ownership: | 100.0000000000% |
| | | Exemptions: | |
Taxes and Assessment Details
Values
| (+) Improvement Homesite Value: | + | $0 | |
| (+) Improvement Non-Homesite Value: | + | $80,729 | |
| (+) Land Homesite Value: | + | $0 | |
| (+) Land Non-Homesite Value: | + | $120,000 | |
| (+) Curr Use (HS): | + | $0 | $0 |
| (+) Curr Use (NHS): | + | $0 | $0 |
| | | -------------------------- | |
| (=) Market Value: | = | $200,729 | |
| (–) Productivity Loss: | – | $0 | |
| | | -------------------------- | |
| (=) Subtotal: | = | $200,729 | |
| (+) Senior Appraised Value: | + | $0 | |
| (+) Non-Senior Appraised Value: | + | $200,729 | |
| | | -------------------------- | |
| (=) Total Appraised Value: | = | $200,729 | |
| (–) Senior Exemption Loss: | – | $0 | |
| (–) Exemption Loss: | – | $0 | |
| | | -------------------------- | |
| (=) Taxable Value: | = | $200,729 | |
Taxing Jurisdiction
| Owner: | KELLY, M DOUGLAS | | |
| % Ownership: | 100.0000000000% | | |
| Total Value: | $200,729 | | |
| Tax Area: | 700 - APPRAISER-S Whid Schl Dist, in town of Langley |
| CF | Conservation Futures | 0.0316035091 | $200,729 | $200,729 | $6.34 | | |
| LANG | City of Langley | 1.0093520762 | $200,729 | $200,729 | $202.61 | | |
| LANGBOND | City of Langley BOND | 1.0326110892 | $200,729 | $200,729 | $207.27 | | |
| FIRE3 | Fire & Rescue Dist #3 S Whidbey GEN | 1.2004855531 | $200,729 | $200,729 | $240.97 | | |
| HOBOND | Hospital BOND | 0.1910887512 | $200,729 | $200,729 | $38.36 | | |
| HOGEN | Hospital GEN | 0.3902502903 | $200,729 | $200,729 | $78.33 | | |
| CE | County Current Expense | 0.3708482477 | $200,729 | $200,729 | $74.44 | | |
| ISLANDEMS | Hospital GEN (EMS) | 0.5000000000 | $200,729 | $200,729 | $100.36 | | |
| LIB | Library Sno-Isle GEN | 0.3153421757 | $200,729 | $200,729 | $63.30 | | |
| PORTWHID | Port of S Whidbey GEN | 0.1094540357 | $200,729 | $200,729 | $21.97 | | |
| SCH206BOND | School 206 BOND | 0.3161759235 | $200,729 | $200,729 | $63.47 | | |
| SCH206MO | School 206 Enrichment | 0.4547169547 | $200,729 | $200,729 | $91.27 | | |
| ST | State School | 1.3035497053 | $200,729 | $200,729 | $261.66 | | |
| ST2 | State School Part 2 | 0.8169543533 | $200,729 | $200,729 | $163.99 | | |
| SWHIDPRBD | P & R S Whidbey BOND | 0.0152817568 | $200,729 | $200,729 | $3.07 | | |
| SWHIDPRBD2 | P & R S Whidbey BOND2 | 0.0138911264 | $200,729 | $200,729 | $2.79 | | |
| SWHIDPRMT | P & R S Whidbey GEN | 0.2053334452 | $200,729 | $200,729 | $41.22 | | |
| | Total Tax Rate: | 8.2769389934 | | | | | |
| | | | | Taxes w/Current Exemptions: | $1,661.42 | | |
| | | | | Taxes w/o Exemptions: | $1,661.42 | | |
Improvement / Building
| Improvement #1: | COMMERCIAL | State Code: | F1 | 448.0 sqft | Value: | $80,729 |
| Bathrooms: | 1 | Ceiling: | DRY WALL SPRAYED | | Exterior Wall/Cover: | PLYWD/WD OR ST STUDS | Floor Covering: | CARPET 100% | | Floor Structure: | WOOD ON WOOD JOIST | Foundation: | CONCRETE | | Heating: | FHA ELECTRIC | Interior Finish: | RETAIL | | Plumbing Fixture Cnt: | 2 | Roof Structure/Cover: | CJ ALUMINIUM HEAVY |
|
| | Type | Description | Class CD | Sub Class CD | Year Built | Area |
| | BAS | BASE/MAIN FLOOR | 3 | 0 | 1938 | 448.0 |
| | OP4 | OPEN PORCH W/CEILING-ROOF | 3 | 0 | 1938 | 12.0 |
| | OP2 | OPEN PORCH W/STEPS | 3 | 0 | 1938 | 80.0 |
| | COMA | Common Area Improvement | 3 | 0 | 1938 | 0.0 |
Sketch
Property Image
Land
| 1 | 68 | COMMERCIAL RETAIL | 0.2528 | 11011.97 | 0.00 | 0.00 | 1.00 | $120,000 | $0 |
Roll Value History
| 2026 | N/A | N/A | N/A | N/A | N/A |
| 2025 | $80,729 | $120,000 | $0 | $200,729 | $200,729 |
| 2024 | $81,694 | $120,000 | $0 | $201,694 | $201,694 |
| 2023 | $82,660 | $79,336 | $0 | $161,996 | $161,996 |
| 2022 | $75,849 | $79,336 | $0 | $155,185 | $155,185 |
| 2021 | $66,883 | $79,336 | $0 | $146,219 | $146,219 |
| 2020 | $60,040 | $79,367 | $0 | $139,407 | $139,407 |
| 2019 | $47,989 | $79,367 | $0 | $127,356 | $127,356 |
| 2018 | $48,146 | $79,367 | $0 | $127,513 | $127,513 |
| 2017 | $48,460 | $79,367 | $0 | $127,827 | $127,827 |
| 2016 | $49,087 | $79,367 | $0 | $128,454 | $128,454 |
| 2015 | $49,714 | $79,367 | $0 | $129,081 | $129,081 |
| 2014 | $44,089 | $79,367 | $0 | $123,456 | $123,456 |
| 2013 | $44,089 | $79,367 | $0 | $123,456 | $123,456 |
| 2012 | $44,089 | $79,367 | $0 | $123,456 | $123,456 |
| 2011 | $44,089 | $79,367 | $0 | $123,456 | $123,456 |
| 2010 | $38,961 | $79,367 | $0 | $118,328 | $118,328 |
| 2009 | $72,800 | $52,717 | $0 | $125,517 | $125,517 |
| 2008 | $0 | $0 | $0 | $126,619 | $126,619 |
Deed and Sales History
| 1 | 07/16/2008 | QCD | Quit Claim Deed | TWO TOTEMS LLC, | KELLY, M DOUGLAS | | | $0.00 | 81903 | 4233241 |
| 2 | 01/01/1900 | OTHER | Other - Misc. Documents | Unknown | TWO TOTEMS LLC, | | | $0.00 | 0 | 0 |
Payout Agreement
| No payout information available.. |