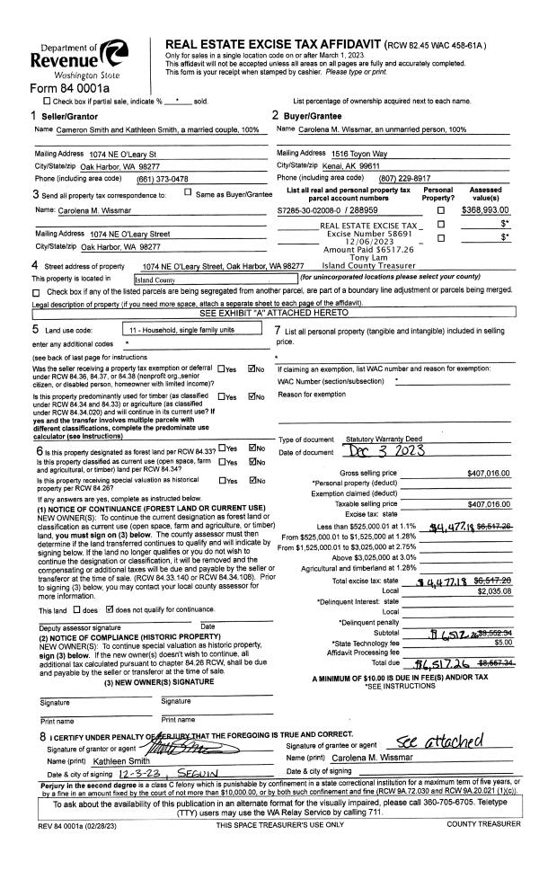
Property
Account |
| Property ID: | 809940 | Abbreviated Legal Description: | N/2 N/2 NW SW EX W30' TGW: PT S/2 N/2 NW SW DESC BG SECR S/2 N/2 W ALG SLN 543' NW STRT LN TP ON NLN S/2 N/2 777' FROM NECR S/2 N/2 E ALG NLN 777' TO NECR S ALG ELN TPB |
| Geographic ID: | R23319-249-0830 | Agent Code: | |
| Type: | Real | | |
| Tax Area: | 112 - APPRAISER-OH Schl Dist, outside OH, improved, greater than 1 acre | Land Use Code | 11 |
| Open Space: | N | DFL | N |
| Historic Property: | N | Remodel Property: | N |
| Multi-Family Redevelopment: | N | | |
| Township: | 33 | Section: | 19 |
| Range: | R2 |
Location |
| Address: | 3382 WILSON RD OAK HARBOR, WA 98277 | Mapsco: | |
| Neighborhood: | Cycle 6 | Map ID: | 608 |
| Neighborhood CD: | 6 |
Owner |
| Name: | WISNIESKI, KEITH A | Owner ID: | 27430 |
| Mailing Address: | KAREN R WISNIESKI 3382 WILSON RD OAK HARBOR, WA 98277-9221 | % Ownership: | 100.0000000000% |
| | | Exemptions: | |
Taxes and Assessment Details
Values
| (+) Improvement Homesite Value: | + | $0 | |
| (+) Improvement Non-Homesite Value: | + | $198,060 | |
| (+) Land Homesite Value: | + | $0 | |
| (+) Land Non-Homesite Value: | + | $340,000 | |
| (+) Curr Use (HS): | + | $0 | $0 |
| (+) Curr Use (NHS): | + | $0 | $0 |
| | | -------------------------- | |
| (=) Market Value: | = | $538,060 | |
| (–) Productivity Loss: | – | $0 | |
| | | -------------------------- | |
| (=) Subtotal: | = | $538,060 | |
| (+) Senior Appraised Value: | + | $0 | |
| (+) Non-Senior Appraised Value: | + | $538,060 | |
| | | -------------------------- | |
| (=) Total Appraised Value: | = | $538,060 | |
| (–) Senior Exemption Loss: | – | $0 | |
| (–) Exemption Loss: | – | $0 | |
| | | -------------------------- | |
| (=) Taxable Value: | = | $538,060 | |
Taxing Jurisdiction
| Owner: | WISNIESKI, KEITH A | | |
| % Ownership: | 100.0000000000% | | |
| Total Value: | $538,060 | | |
| Tax Area: | 112 - APPRAISER-OH Schl Dist, outside OH, improved, greater than 1 acre |
| CF | Conservation Futures | 0.0316035091 | $538,060 | $538,060 | $17.00 | | |
| CEM1 | Cemetery #1 | 0.0040320932 | $538,060 | $538,060 | $2.17 | | |
| FIRE2 | Fire & Rescue Dist #2 N Whidbey GEN | 0.5475949600 | $538,060 | $538,060 | $294.64 | | |
| HOBOND | Hospital BOND | 0.1910887512 | $538,060 | $538,060 | $102.82 | | |
| HOGEN | Hospital GEN | 0.3902502903 | $538,060 | $538,060 | $209.98 | | |
| CE | County Current Expense | 0.3708482477 | $538,060 | $538,060 | $199.54 | | |
| CR | County Roads | 0.4584763726 | $538,060 | $538,060 | $246.69 | | |
| ISLANDEMS | Hospital GEN (EMS) | 0.5000000000 | $538,060 | $538,060 | $269.03 | | |
| LIB | Library Sno-Isle GEN | 0.3153421757 | $538,060 | $538,060 | $169.67 | | |
| NWHIDPRMT | P & R N Whidbey GEN | 0.2004466701 | $538,060 | $538,060 | $107.85 | | |
| SCH201MO | School 201 Enrichment | 1.8559231640 | $538,060 | $538,060 | $998.60 | | |
| ST | State School | 1.3035497053 | $538,060 | $538,060 | $701.39 | | |
| ST2 | State School Part 2 | 0.8169543533 | $538,060 | $538,060 | $439.57 | | |
| | Total Tax Rate: | 6.9861102925 | | | | | |
| | | | | Taxes w/Current Exemptions: | $3,758.95 | | |
| | | | | Taxes w/o Exemptions: | $3,758.95 | | |
Improvement / Building
| Improvement #1: | MANUFACTURED HOME | State Code: | Y | 1960.0 sqft | Value: | $198,060 |
| Bathrooms: | 1 | Bedrooms: | 2 | | Ceiling: | PLASTER PAINTED | Cooling: | EVAP NO DUCT | | Exterior Wall/Cover: | VINYL | Floor Covering: | CARPET 100% | | Floor Structure: | SLAB ON GRADE | Foundation: | SLAB | | Heating: | FHA ELECTRIC | Interior Finish: | PLASTER | | Roof Slope: | FLAT | Roof Structure/Cover: | CJ ALUMINIUM HEAVY |
|
| | Type | Description | Class CD | Sub Class CD | Year Built | Area |
| | BAS | BASE/MAIN FLOOR | 4 | 0 | 2021 | 1960.0 |
| | OWR | OPEN WOOD PORCH W/STEPS/ROOF | 4 | 0 | 2021 | 100.0 |
| | oOBD | Out Buildings | 4 | 0 | 2021 | 672.0 |
Sketch
Property Image
Land
| 1 | 35 | AC (10.00-30.99) | 14.7100 | 640767.60 | 0.00 | 0.00 | 1.00 | $340,000 | $0 |
Roll Value History
| 2026 | N/A | N/A | N/A | N/A | N/A |
| 2025 | $198,060 | $340,000 | $0 | $538,060 | $538,060 |
| 2024 | $200,053 | $300,000 | $0 | $500,053 | $500,053 |
| 2023 | $176,568 | $280,000 | $0 | $456,568 | $456,568 |
| 2022 | $162,105 | $270,000 | $0 | $432,105 | $432,105 |
| 2021 | $141,825 | $210,000 | $0 | $351,825 | $351,825 |
| 2020 | $33,861 | $200,000 | $0 | $233,861 | $233,861 |
| 2019 | $28,392 | $240,000 | $0 | $268,392 | $268,392 |
| 2018 | $30,111 | $240,000 | $0 | $270,111 | $270,111 |
| 2017 | $32,694 | $240,000 | $0 | $272,694 | $272,694 |
| 2016 | $29,227 | $240,000 | $0 | $269,227 | $269,227 |
| 2015 | $29,227 | $240,000 | $0 | $269,227 | $269,227 |
| 2014 | $29,227 | $250,070 | $0 | $279,297 | $279,297 |
| 2013 | $29,227 | $250,070 | $0 | $279,297 | $279,297 |
| 2012 | $29,227 | $88,290 | $0 | $117,517 | $117,517 |
| 2011 | $29,227 | $98,100 | $0 | $127,327 | $127,327 |
| 2010 | $46,608 | $98,100 | $0 | $144,708 | $144,708 |
| 2009 | $89,349 | $299,126 | $0 | $388,475 | $388,475 |
Deed and Sales History
| 1 | 08/17/2009 | BLA | DNU - Boundary Line Adjustment | Unknown | WISNIESKI, KEITH A | | | $0.00 | 81353 | 4167617 |
| 2 | 04/19/2006 | QCD | Quit Claim Deed | WISNIESKI, KEITH A | WISNIESKI, KEITH A | | | $85,000.00 | 61735 | 4168258 |
Payout Agreement
| No payout information available.. |