| 1 | 01/13/2022 | QCD | Quit Claim Deed | SO MAIN COBBLESTONE COTTAGES LLC | NORTHWEST MANAGEMENT WA, LLC | | | $0.00 | 51808 | 7538771 |
| 2 | 06/12/2018 | QCD | Quit Claim Deed | TILSON, WAYNE | SO MAIN COBBLESTONE COTTAGES LLC | | | $0.00 | 34591 | 4446444 |
| 3 | 01/05/2018 | QCD | Quit Claim Deed | TILSON, WAYNE | TILSON, WAYNE | | | $0.00 | 32542 | 4437103 |
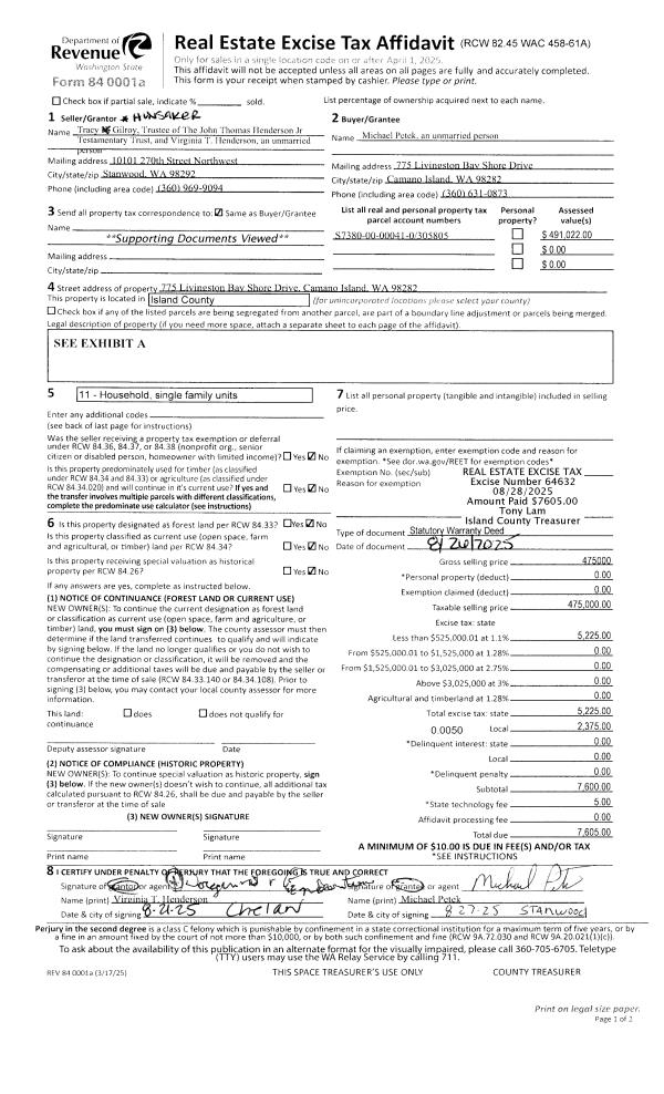
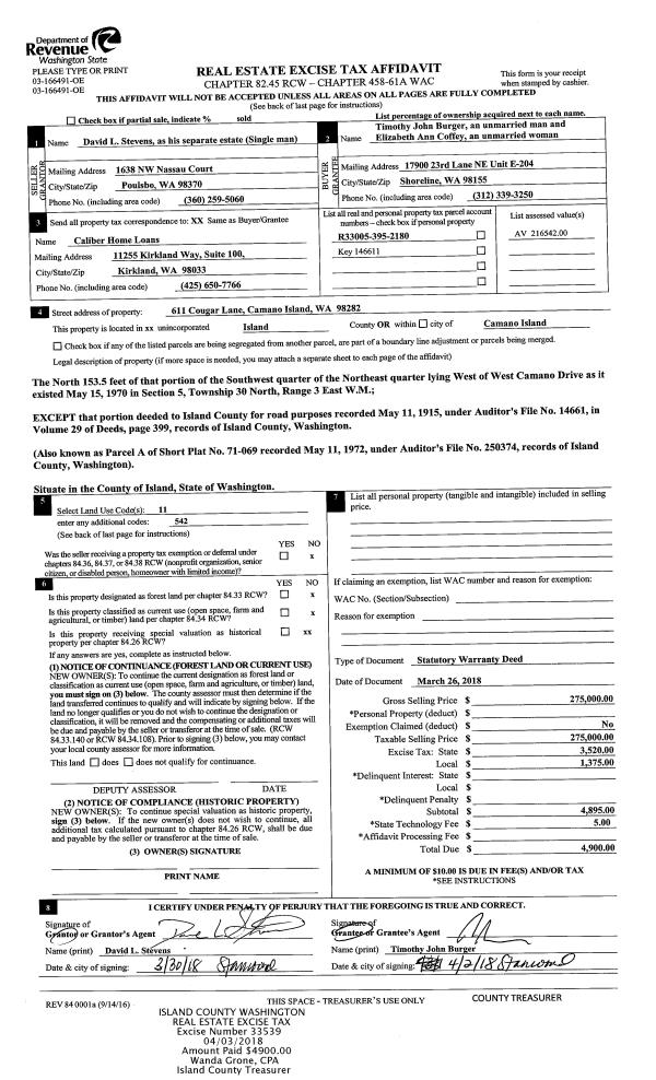
| 4 | 01/04/2018 | WD | Warranty Deed | VARGA, JOHN T | TILSON, WAYNE | | | $855,000.00 | 32519 | 4436951 |
|   | |
| 5 | 01/04/2018 | QCD | Quit Claim Deed | VARGA, JOHN T | VARGA, JOHN T | | | $0.00 | 32521 | 4436950 |
| 6 | 07/02/2009 | QCD | Quit Claim Deed | S. MAIN COBBLESTONE COTTAGES L | VARGA, JOHN T | | | $0.00 | 91466 | 4255188 |
| 7 | 01/01/1900 | OTHER | Other - Misc. Documents | Unknown | S. MAIN COBBLESTONE COTTAGES L | | | $0.00 | 0 | 0 |