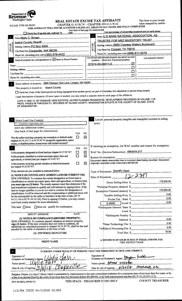
Property
Account |
| Property ID: | 809945 | Abbreviated Legal Description: | COBBLESTONE COTTAGES CONDO UNIT 3 BLDG A |
| Geographic ID: | S8543-00-000A3-0 | Agent Code: | |
| Type: | Real | | |
| Tax Area: | 300 - APPRAISER-Cpvl Schl Dist, in Cpvl | Land Use Code | 14 |
| Open Space: | N | DFL | N |
| Historic Property: | N | Remodel Property: | N |
| Multi-Family Redevelopment: | N | | |
| Township: | | Section: | |
| Range: | |
Location |
| Address: | 306 S MAIN ST UNIT 3 COUPEVILLE, WA 98239 | Mapsco: | |
| Neighborhood: | Cycle 2 | Map ID: | 32 |
| Neighborhood CD: | 2 |
Owner |
| Name: | SO MAIN COBBLESTONE COTTAGES LLC | Owner ID: | 289059 |
| Mailing Address: | PO BOX 8377 SPOKANE, WA 99203 | % Ownership: | 100.0000000000% |
| | | Exemptions: | |
Taxes and Assessment Details
Values
| (+) Improvement Homesite Value: | + | $0 | |
| (+) Improvement Non-Homesite Value: | + | $157,227 | |
| (+) Land Homesite Value: | + | $0 | |
| (+) Land Non-Homesite Value: | + | $110,000 | |
| (+) Curr Use (HS): | + | $0 | $0 |
| (+) Curr Use (NHS): | + | $0 | $0 |
| | | -------------------------- | |
| (=) Market Value: | = | $267,227 | |
| (–) Productivity Loss: | – | $0 | |
| | | -------------------------- | |
| (=) Subtotal: | = | $267,227 | |
| (+) Senior Appraised Value: | + | $0 | |
| (+) Non-Senior Appraised Value: | + | $267,227 | |
| | | -------------------------- | |
| (=) Total Appraised Value: | = | $267,227 | |
| (–) Senior Exemption Loss: | – | $0 | |
| (–) Exemption Loss: | – | $0 | |
| | | -------------------------- | |
| (=) Taxable Value: | = | $267,227 | |
Taxing Jurisdiction
| Owner: | SO MAIN COBBLESTONE COTTAGES LLC | | |
| % Ownership: | 100.0000000000% | | |
| Total Value: | $267,227 | | |
| Tax Area: | 300 - APPRAISER-Cpvl Schl Dist, in Cpvl |
| CF | Conservation Futures | 0.0316035091 | $267,227 | $267,227 | $8.45 | | |
| CEM2 | Cemetery #2 | 0.0095056933 | $267,227 | $267,227 | $2.54 | | |
| COUP | City: Town of Coupeville | 0.8426414490 | $267,227 | $267,227 | $225.18 | | |
| FIRE5 | Fire & Rescue Dist #5 C Whidbey GEN | 1.2008080668 | $267,227 | $267,227 | $320.89 | | |
| FIRE5BOND | Fire & Rescue Dist #5 C Whidbey BOND | 0.1400090713 | $267,227 | $267,227 | $37.41 | | |
| HOBOND | Hospital BOND | 0.1910887512 | $267,227 | $267,227 | $51.06 | | |
| HOGEN | Hospital GEN | 0.3902502903 | $267,227 | $267,227 | $104.29 | | |
| CE | County Current Expense | 0.3708482477 | $267,227 | $267,227 | $99.10 | | |
| ISLANDEMS | Hospital GEN (EMS) | 0.5000000000 | $267,227 | $267,227 | $133.61 | | |
| LIB | Library Sno-Isle GEN | 0.3153421757 | $267,227 | $267,227 | $84.27 | | |
| LIBCAP | Library Sno-Isle BOND (Cap Fac Imp Area) | 0.0543427938 | $267,227 | $267,227 | $14.52 | | |
| POCOUP | Port of Coupeville GEN | 0.1093371703 | $267,227 | $267,227 | $29.22 | | |
| POCOUPIDD | Port of Coupeville IDD | 0.3409740022 | $267,227 | $267,227 | $91.12 | | |
| COUPSDTECH | School 204 CP (TECH) | 0.7545480007 | $267,227 | $267,227 | $201.64 | | |
| SCH204MO | School 204 Enrichment | 0.6716186034 | $267,227 | $267,227 | $179.47 | | |
| ST | State School | 1.3035497053 | $267,227 | $267,227 | $348.34 | | |
| ST2 | State School Part 2 | 0.8169543533 | $267,227 | $267,227 | $218.31 | | |
| | Total Tax Rate: | 8.0434218834 | | | | | |
| | | | | Taxes w/Current Exemptions: | $2,149.42 | | |
| | | | | Taxes w/o Exemptions: | $2,149.42 | | |
Improvement / Building
| Improvement #1: | RESIDENTIAL | State Code: | A1 | 720.0 sqft | Value: | $157,227 |
| Bathrooms: | 1 | Bedrooms: | 1 | | Ceiling: | DRYWALL PAINTED | Exterior Wall/Cover: | CEMENT FIBER | | Floor Covering: | CARPET/VINYL 80-20 | Floor Structure: | SLAB ON GRADE | | Foundation: | CONCRETE | Heating: | RADIANT FLOOR | | Interior Finish: | DRYWALL PAINT | Plumbing Fixture Cnt: | 7 | | Roof Slope: | 6" IN 12" | Roof Structure/Cover: | CJ ASPHALT |
|
| | Type | Description | Class CD | Sub Class CD | Year Built | Area |
| | BAS | BASE/MAIN FLOOR | 3 | 0 | 2002 | 720.0 |
| | OP3 | OPEN PORCH W/ROOF | 3 | 0 | 2002 | 60.0 |
| | oPV1 | PV/ASPH 2" | 3 | 0 | 2002 | 544.0 |
| | COMA | Common Area Improvement | 3 | 0 | 2002 | 0.0 |
Sketch
Property Image
Land
| 1 | 61 | MULTIPLE RESIDENCES | 0.0153 | 665.00 | 665.50 | 0.00 | 1.00 | $110,000 | $0 |
Roll Value History
| 2026 | N/A | N/A | N/A | N/A | N/A |
| 2025 | $157,227 | $110,000 | $0 | $267,227 | $267,227 |
| 2024 | $151,950 | $110,000 | $0 | $261,950 | $261,950 |
| 2023 | $153,710 | $110,000 | $0 | $263,710 | $263,710 |
| 2022 | $141,137 | $130,000 | $0 | $271,137 | $271,137 |
| 2021 | $124,600 | $95,000 | $0 | $219,600 | $219,600 |
| 2020 | $120,892 | $74,000 | $0 | $194,892 | $194,892 |
| 2019 | $85,076 | $100,000 | $0 | $185,076 | $185,076 |
| 2018 | $85,304 | $30,000 | $0 | $115,304 | $115,304 |
| 2017 | $81,754 | $4,323 | $0 | $86,077 | $86,077 |
| 2016 | $82,725 | $4,323 | $0 | $87,048 | $87,048 |
| 2015 | $83,695 | $4,323 | $0 | $88,018 | $88,018 |
| 2014 | $84,666 | $4,323 | $0 | $88,989 | $88,989 |
| 2013 | $85,638 | $4,323 | $0 | $89,961 | $89,961 |
| 2012 | $87,579 | $3,647 | $0 | $91,226 | $91,226 |
| 2011 | $87,579 | $3,647 | $0 | $91,226 | $91,226 |
| 2010 | $85,242 | $3,647 | $0 | $88,889 | $88,889 |
| 2009 | $84,482 | $2,613 | $0 | $87,095 | $87,095 |
| 2008 | $0 | $0 | $0 | $87,999 | $87,999 |
Deed and Sales History
| 1 | 06/12/2018 | QCD | Quit Claim Deed | TILSON, WAYNE | SO MAIN COBBLESTONE COTTAGES LLC | | | $0.00 | 34591 | 4446444 |
| 2 | 01/05/2018 | QCD | Quit Claim Deed | TILSON, WAYNE | TILSON, WAYNE | | | $0.00 | 32542 | 4437103 |
| 3 | 01/04/2018 | WD | Warranty Deed | VARGA, JOHN T | TILSON, WAYNE | | | $855,000.00 | 32519 | 4436951 |
|   | |
| 4 | 01/04/2018 | QCD | Quit Claim Deed | VARGA, JOHN T | VARGA, JOHN T | | | $0.00 | 32521 | 4436950 |
| 5 | 07/02/2009 | QCD | Quit Claim Deed | S. MAIN COBBLESTONE COTTAGES L | VARGA, JOHN T | | | $0.00 | 91466 | 4255188 |
| 6 | 01/01/1900 | OTHER | Other - Misc. Documents | Unknown | S. MAIN COBBLESTONE COTTAGES L | | | $0.00 | 0 | 0 |
Payout Agreement
| No payout information available.. |