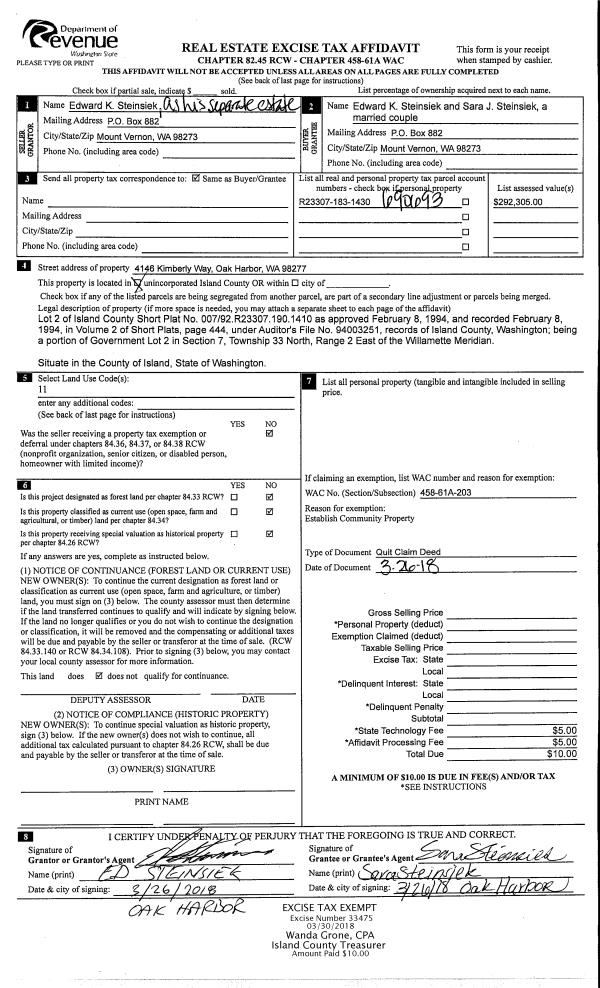
Property
Account |
| Property ID: | 809951 | Abbreviated Legal Description: | LOT 1 SP 325-06.23235.459-3640 AF # 4258467 |
| Geographic ID: | R23235-486-3530 | Agent Code: | |
| Type: | Real | | |
| Tax Area: | 512 - APPRAISER-Stan/Cam Schl Dist, improved, greater than 1 acre | Land Use Code | 11 |
| Open Space: | N | DFL | N |
| Historic Property: | N | Remodel Property: | N |
| Multi-Family Redevelopment: | N | | |
| Township: | 32 | Section: | 35 |
| Range: | R2 |
Location |
| Address: | 535 W CROSS ISLAND RD CAMANO ISLAND, wa 98282 | Mapsco: | |
| Neighborhood: | North Camano | Map ID: | 578 |
| Neighborhood CD: | 06-C |
Owner |
| Name: | RICE, SHAUGHN P | Owner ID: | 284673 |
| Mailing Address: | AMY L RICE 28602 74TH DR NW STANWOOD, WA 98292 | % Ownership: | 100.0000000000% |
| | | Exemptions: | |
Taxes and Assessment Details
Values
| (+) Improvement Homesite Value: | + | $0 | |
| (+) Improvement Non-Homesite Value: | + | $549,621 | |
| (+) Land Homesite Value: | + | $0 | |
| (+) Land Non-Homesite Value: | + | $360,000 | |
| (+) Curr Use (HS): | + | $0 | $0 |
| (+) Curr Use (NHS): | + | $0 | $0 |
| | | -------------------------- | |
| (=) Market Value: | = | $909,621 | |
| (–) Productivity Loss: | – | $0 | |
| | | -------------------------- | |
| (=) Subtotal: | = | $909,621 | |
| (+) Senior Appraised Value: | + | $0 | |
| (+) Non-Senior Appraised Value: | + | $909,621 | |
| | | -------------------------- | |
| (=) Total Appraised Value: | = | $909,621 | |
| (–) Senior Exemption Loss: | – | $0 | |
| (–) Exemption Loss: | – | $0 | |
| | | -------------------------- | |
| (=) Taxable Value: | = | $909,621 | |
Taxing Jurisdiction
| Owner: | RICE, SHAUGHN P | | |
| % Ownership: | 100.0000000000% | | |
| Total Value: | $909,621 | | |
| Tax Area: | 512 - APPRAISER-Stan/Cam Schl Dist, improved, greater than 1 acre |
| CF | Conservation Futures | 0.0316035091 | $909,621 | $909,621 | $28.75 | | |
| EMS1 | Fire & Rescue Dist #1 Camano GEN (EMS) | 0.3677864386 | $909,621 | $909,621 | $334.55 | | |
| FIRE1 | Fire & Rescue Dist #1 Camano GEN | 1.2502910536 | $909,621 | $909,621 | $1,137.29 | | |
| FIRE1BOND | Fire & Rescue Dist #1 Camano BOND | 0.1570001679 | $909,621 | $909,621 | $142.81 | | |
| CE | County Current Expense | 0.3708482477 | $909,621 | $909,621 | $337.33 | | |
| CR | County Roads | 0.4584763726 | $909,621 | $909,621 | $417.04 | | |
| LCIB | Library Sno-Isle BOND (Camano Island) | 0.0396325772 | $909,621 | $909,621 | $36.05 | | |
| LIB | Library Sno-Isle GEN | 0.3153421757 | $909,621 | $909,621 | $286.84 | | |
| SCH205_401 | School 205-401 Enrichment | 1.2698420524 | $909,621 | $909,621 | $1,155.07 | | |
| SCH205BOND | School 205-401 BOND | 0.9396497583 | $909,621 | $909,621 | $854.73 | | |
| ST | State School | 1.3035497053 | $909,621 | $909,621 | $1,185.74 | | |
| ST2 | State School Part 2 | 0.8169543533 | $909,621 | $909,621 | $743.12 | | |
| | Total Tax Rate: | 7.3209764117 | | | | | |
| | | | | Taxes w/Current Exemptions: | $6,659.32 | | |
| | | | | Taxes w/o Exemptions: | $6,659.32 | | |
Improvement / Building
| Improvement #1: | RESIDENTIAL | State Code: | Y | 2593.0 sqft | Value: | $549,621 |
| Bathrooms: | 3 | Bedrooms: | 3 | | Ceiling: | DRYWALL PAINTED | Exterior Wall/Cover: | CEMENT FIBER | | Floor Covering: | CARPET/VINYL 20-80 | Floor Structure: | WOOD W/SUBFLOOR | | Foundation: | CONCRETE | Interior Finish: | DRYWALL PAINT | | Plumbing Fixture Cnt: | 16 | Roof Slope: | 5" IN 12" | | Roof Structure/Cover: | CJ ASPHALT |   |   |
|
| | Type | Description | Class CD | Sub Class CD | Year Built | Area |
| | BAS | BASE/MAIN FLOOR | 4 | 0 | 2019 | 2593.0 |
| | AGR | ATTACHED GARAGE | 4 | 0 | 2019 | 720.0 |
| | OP4 | OPEN PORCH W/CEILING-ROOF | 4 | 0 | 2019 | 198.0 |
| | OP4 | OPEN PORCH W/CEILING-ROOF | 4 | 0 | 2019 | 304.0 |
| | OP2 | OPEN PORCH W/STEPS | 4 | 0 | 2019 | 140.0 |
Sketch
Property Image
Land
| 1 | 32 | AC (03.01-09.99) | 7.5000 | 0.00 | 0.00 | 0.00 | 1.00 | $360,000 | $0 |
Roll Value History
| 2026 | N/A | N/A | N/A | N/A | N/A |
| 2025 | $549,621 | $360,000 | $0 | $909,621 | $909,621 |
| 2024 | $554,054 | $340,000 | $0 | $894,054 | $894,054 |
| 2023 | $558,485 | $320,000 | $0 | $878,485 | $878,485 |
| 2022 | $504,637 | $300,000 | $0 | $804,637 | $804,637 |
| 2021 | $443,396 | $230,000 | $0 | $673,396 | $673,396 |
| 2020 | $434,308 | $190,000 | $0 | $624,308 | $624,308 |
| 2019 | $235,014 | $220,000 | $0 | $455,014 | $455,014 |
| 2018 | $0 | $120,000 | $0 | $120,000 | $120,000 |
| 2017 | $0 | $90,000 | $0 | $90,000 | $90,000 |
| 2016 | $0 | $90,000 | $0 | $90,000 | $90,000 |
| 2015 | $0 | $96,000 | $0 | $96,000 | $96,000 |
| 2014 | $0 | $96,000 | $0 | $96,000 | $96,000 |
| 2013 | $0 | $96,000 | $0 | $96,000 | $96,000 |
| 2012 | $0 | $96,000 | $0 | $96,000 | $96,000 |
| 2011 | $0 | $120,000 | $0 | $120,000 | $120,000 |
| 2010 | $0 | $120,000 | $0 | $120,000 | $120,000 |
| 2009 | $0 | $0 | $0 | $149,389 | $149,389 |
Deed and Sales History
| 1 | 04/19/2018 | WD | Warranty Deed | BARTLETT, DONALD | RICE, SHAUGHN P | | | $164,336.00 | 33751 | 4442936 |
| 2 | 01/31/2012 | REC | Real Estate Contract | LITTLE, THOMAS A | BARTLETT, DONALD | | | $143,500.00 | 6787 | 4309298 |
| 3 | 01/01/1900 | OTHER | Other - Misc. Documents | Unknown | LITTLE, THOMAS A | | | $0.00 | 0 | 0 |
Payout Agreement
| No payout information available.. |