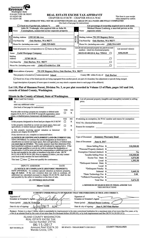
Property
Account |
| Property ID: | 809953 | Abbreviated Legal Description: | LOT 3 SP 325-06.23235.459-3640 AF # 4258467 |
| Geographic ID: | R23235-421-3800 | Agent Code: | |
| Type: | Real | | |
| Tax Area: | 512 - APPRAISER-Stan/Cam Schl Dist, improved, greater than 1 acre | Land Use Code | 11 |
| Open Space: | N | DFL | N |
| Historic Property: | N | Remodel Property: | N |
| Multi-Family Redevelopment: | N | | |
| Township: | 32 | Section: | 35 |
| Range: | R2 |
Location |
| Address: | 527 W CROSS ISLAND RD CAMANO ISLAND, WA 98282 | Mapsco: | |
| Neighborhood: | North Camano | Map ID: | 578 |
| Neighborhood CD: | 06-C |
Owner |
| Name: | WOOFENDEN, ALEXANDER | Owner ID: | 292985 |
| Mailing Address: | 1996 FRIDAY CREEK RD BURLINGTON, WA 98233 | % Ownership: | 100.0000000000% |
| | | Exemptions: | |
Taxes and Assessment Details
Values
| (+) Improvement Homesite Value: | + | $0 | |
| (+) Improvement Non-Homesite Value: | + | $448,425 | |
| (+) Land Homesite Value: | + | $0 | |
| (+) Land Non-Homesite Value: | + | $360,000 | |
| (+) Curr Use (HS): | + | $0 | $0 |
| (+) Curr Use (NHS): | + | $0 | $0 |
| | | -------------------------- | |
| (=) Market Value: | = | $808,425 | |
| (–) Productivity Loss: | – | $0 | |
| | | -------------------------- | |
| (=) Subtotal: | = | $808,425 | |
| (+) Senior Appraised Value: | + | $0 | |
| (+) Non-Senior Appraised Value: | + | $808,425 | |
| | | -------------------------- | |
| (=) Total Appraised Value: | = | $808,425 | |
| (–) Senior Exemption Loss: | – | $0 | |
| (–) Exemption Loss: | – | $0 | |
| | | -------------------------- | |
| (=) Taxable Value: | = | $808,425 | |
Taxing Jurisdiction
| Owner: | WOOFENDEN, ALEXANDER | | |
| % Ownership: | 100.0000000000% | | |
| Total Value: | $808,425 | | |
| Tax Area: | 512 - APPRAISER-Stan/Cam Schl Dist, improved, greater than 1 acre |
| CF | Conservation Futures | 0.0316035091 | $808,425 | $808,425 | $25.55 | | |
| EMS1 | Fire & Rescue Dist #1 Camano GEN (EMS) | 0.3677864386 | $808,425 | $808,425 | $297.33 | | |
| FIRE1 | Fire & Rescue Dist #1 Camano GEN | 1.2502910536 | $808,425 | $808,425 | $1,010.77 | | |
| FIRE1BOND | Fire & Rescue Dist #1 Camano BOND | 0.1570001679 | $808,425 | $808,425 | $126.92 | | |
| CE | County Current Expense | 0.3708482477 | $808,425 | $808,425 | $299.80 | | |
| CR | County Roads | 0.4584763726 | $808,425 | $808,425 | $370.64 | | |
| LCIB | Library Sno-Isle BOND (Camano Island) | 0.0396325772 | $808,425 | $808,425 | $32.04 | | |
| LIB | Library Sno-Isle GEN | 0.3153421757 | $808,425 | $808,425 | $254.93 | | |
| SCH205_401 | School 205-401 Enrichment | 1.2698420524 | $808,425 | $808,425 | $1,026.57 | | |
| SCH205BOND | School 205-401 BOND | 0.9396497583 | $808,425 | $808,425 | $759.64 | | |
| ST | State School | 1.3035497053 | $808,425 | $808,425 | $1,053.82 | | |
| ST2 | State School Part 2 | 0.8169543533 | $808,425 | $808,425 | $660.45 | | |
| | Total Tax Rate: | 7.3209764117 | | | | | |
| | | | | Taxes w/Current Exemptions: | $5,918.46 | | |
| | | | | Taxes w/o Exemptions: | $5,918.46 | | |
Improvement / Building
| Improvement #1: | RESIDENTIAL | State Code: | Y | 1701.0 sqft | Value: | $448,425 |
| Bathrooms: | 1.75 | Bedrooms: | 3 | | Ceiling: | DRYWALL PAINTED | Cooling: | HEAT PUMP/CONV/V | | Exterior Wall/Cover: | CEMENT FIBER | Floor Covering: | CARPET/VINYL 60-40 | | Floor Structure: | WOOD W/SUBFLOOR | Foundation: | CONCRETE | | Interior Finish: | DRYWALL PAINT | Plumbing Fixture Cnt: | 10 | | Roof Slope: | 4" IN 12" | Roof Structure/Cover: | CJ ASPHALT |
|
| | Type | Description | Class CD | Sub Class CD | Year Built | Area |
| | BAS | BASE/MAIN FLOOR | 3 | 0 | 2020 | 1701.0 |
| | AGR | ATTACHED GARAGE | 3 | 0 | 2020 | 528.0 |
| | OWR | OPEN WOOD PORCH W/STEPS/ROOF | 3 | 0 | 2020 | 372.0 |
| | OWR | OPEN WOOD PORCH W/STEPS/ROOF | 3 | 0 | 2020 | 39.0 |
| | DGR | DETACHED GARAGE | 3 | 0 | 2020 | 1584.0 |
| | ENP | ENCLOSED PORCH | 3 | 0 | 2020 | 825.0 |
Sketch
Property Image
Land
| 1 | HS | HOMESITE | 1.0000 | 43560.00 | 0.00 | 0.00 | 1.00 | $140,000 | $0 |
| 2 | 91 | UNDEVELOPED LAND-METES AND BOUNDS | 3.0000 | 130680.00 | 0.00 | 0.00 | 1.00 | $220,000 | $0 |
Roll Value History
| 2026 | N/A | N/A | N/A | N/A | N/A |
| 2025 | $448,425 | $360,000 | $0 | $808,425 | $808,425 |
| 2024 | $349,743 | $340,000 | $0 | $689,743 | $689,743 |
| 2023 | $352,519 | $320,000 | $0 | $672,519 | $672,519 |
| 2022 | $315,742 | $300,000 | $0 | $615,742 | $615,742 |
| 2021 | $279,554 | $230,000 | $0 | $509,554 | $509,554 |
| 2020 | $274,672 | $190,000 | $0 | $464,672 | $464,672 |
| 2019 | $0 | $140,000 | $0 | $140,000 | $140,000 |
| 2018 | $0 | $120,000 | $0 | $120,000 | $120,000 |
| 2017 | $0 | $90,000 | $0 | $90,000 | $90,000 |
| 2016 | $0 | $90,000 | $0 | $90,000 | $90,000 |
| 2015 | $0 | $76,800 | $0 | $76,800 | $76,800 |
| 2014 | $0 | $76,800 | $0 | $76,800 | $76,800 |
| 2013 | $0 | $76,800 | $0 | $76,800 | $76,800 |
| 2012 | $0 | $76,800 | $0 | $76,800 | $76,800 |
| 2011 | $0 | $96,000 | $0 | $96,000 | $96,000 |
| 2010 | $0 | $96,000 | $0 | $96,000 | $96,000 |
| 2009 | $0 | $0 | $0 | $79,674 | $79,674 |
Deed and Sales History
| 1 | 12/17/2019 | WD | Warranty Deed | LITTLE, THOMAS A | WOOFENDEN, ALEXANDER | | | $172,500.00 | 41574 | 4478022 |
| 2 | 06/26/2017 | EZ | Easement | LITTLE, THOMAS A | LITTLE, THOMAS A | | | $0.00 | 30604 | 4428010 |
| 3 | 01/01/1900 | OTHER | Other - Misc. Documents | Unknown | LITTLE, THOMAS A | | | $0.00 | 0 | 0 |
Payout Agreement
| No payout information available.. |