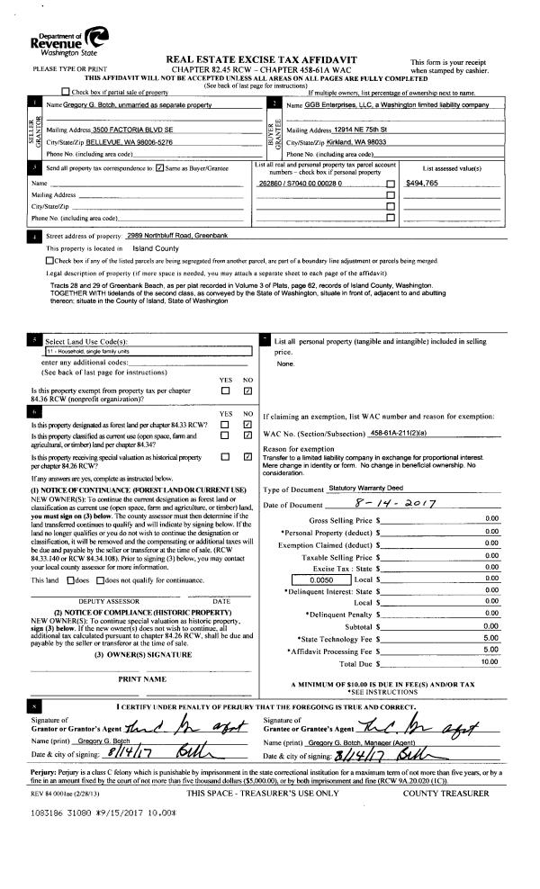
Property
Account |
| Property ID: | 809954 | Abbreviated Legal Description: | LOT 4 SP 325-06.23235.459-3640 AF # 4258467 |
| Geographic ID: | R23235-421-3470 | Agent Code: | |
| Type: | Real | | |
| Tax Area: | 512 - APPRAISER-Stan/Cam Schl Dist, improved, greater than 1 acre | Land Use Code | 11 |
| Open Space: | N | DFL | N |
| Historic Property: | N | Remodel Property: | N |
| Multi-Family Redevelopment: | N | | |
| Township: | 32 | Section: | 35 |
| Range: | R2 |
Location |
| Address: | 531 W CROSS ISLAND RD CAMANO ISLAND, WA 98282 | Mapsco: | |
| Neighborhood: | North Camano | Map ID: | 578 |
| Neighborhood CD: | 06-C |
Owner |
| Name: | BONNIFIELD, MICHAEL JAY | Owner ID: | 280352 |
| Mailing Address: | TESSA L BONNIFIELD 531 W CROSS ISLAND RD CAMANO ISLAND, WA 98282 | % Ownership: | 100.0000000000% |
| | | Exemptions: | |
Taxes and Assessment Details
Values
| (+) Improvement Homesite Value: | + | $0 | |
| (+) Improvement Non-Homesite Value: | + | $427,628 | |
| (+) Land Homesite Value: | + | $0 | |
| (+) Land Non-Homesite Value: | + | $360,000 | |
| (+) Curr Use (HS): | + | $0 | $0 |
| (+) Curr Use (NHS): | + | $0 | $0 |
| | | -------------------------- | |
| (=) Market Value: | = | $787,628 | |
| (–) Productivity Loss: | – | $0 | |
| | | -------------------------- | |
| (=) Subtotal: | = | $787,628 | |
| (+) Senior Appraised Value: | + | $0 | |
| (+) Non-Senior Appraised Value: | + | $787,628 | |
| | | -------------------------- | |
| (=) Total Appraised Value: | = | $787,628 | |
| (–) Senior Exemption Loss: | – | $0 | |
| (–) Exemption Loss: | – | $0 | |
| | | -------------------------- | |
| (=) Taxable Value: | = | $787,628 | |
Taxing Jurisdiction
| Owner: | BONNIFIELD, MICHAEL JAY | | |
| % Ownership: | 100.0000000000% | | |
| Total Value: | $787,628 | | |
| Tax Area: | 512 - APPRAISER-Stan/Cam Schl Dist, improved, greater than 1 acre |
| CF | Conservation Futures | 0.0316035091 | $787,628 | $787,628 | $24.89 | | |
| EMS1 | Fire & Rescue Dist #1 Camano GEN (EMS) | 0.3677864386 | $787,628 | $787,628 | $289.68 | | |
| FIRE1 | Fire & Rescue Dist #1 Camano GEN | 1.2502910536 | $787,628 | $787,628 | $984.76 | | |
| FIRE1BOND | Fire & Rescue Dist #1 Camano BOND | 0.1570001679 | $787,628 | $787,628 | $123.66 | | |
| CE | County Current Expense | 0.3708482477 | $787,628 | $787,628 | $292.09 | | |
| CR | County Roads | 0.4584763726 | $787,628 | $787,628 | $361.11 | | |
| LCIB | Library Sno-Isle BOND (Camano Island) | 0.0396325772 | $787,628 | $787,628 | $31.22 | | |
| LIB | Library Sno-Isle GEN | 0.3153421757 | $787,628 | $787,628 | $248.37 | | |
| SCH205_401 | School 205-401 Enrichment | 1.2698420524 | $787,628 | $787,628 | $1,000.16 | | |
| SCH205BOND | School 205-401 BOND | 0.9396497583 | $787,628 | $787,628 | $740.09 | | |
| ST | State School | 1.3035497053 | $787,628 | $787,628 | $1,026.71 | | |
| ST2 | State School Part 2 | 0.8169543533 | $787,628 | $787,628 | $643.46 | | |
| | Total Tax Rate: | 7.3209764117 | | | | | |
| | | | | Taxes w/Current Exemptions: | $5,766.20 | | |
| | | | | Taxes w/o Exemptions: | $5,766.20 | | |
Improvement / Building
| Improvement #1: | RESIDENTIAL | State Code: | Y | 2378.2 sqft | Value: | $427,628 |
| Bathrooms: | 2.5 | Bedrooms: | 3 | | Ceiling: | DRYWALL PAINTED | Cooling: | HEAT PUMP/CONV/V | | Exterior Wall/Cover: | CEMENT FIBER | Floor Covering: | CARPET/VINYL 60-40 | | Floor Structure: | WOOD W/SUBFLOOR | Foundation: | CONCRETE | | Interior Finish: | DRYWALL PAINT | Plumbing Fixture Cnt: | 15 | | Roof Slope: | 6" IN 12" | Roof Structure/Cover: | (NONE) |
|
| | Type | Description | Class CD | Sub Class CD | Year Built | Area |
| | BAS | BASE/MAIN FLOOR | 3 | 0 | 2018 | 2378.2 |
| | OWR | OPEN WOOD PORCH W/STEPS/ROOF | 3 | 0 | 2018 | 127.8 |
| | AGR | ATTACHED GARAGE | 3 | 0 | 2018 | 484.0 |
| | OP4 | OPEN PORCH W/CEILING-ROOF | 3 | 0 | 2018 | 24.0 |
Sketch
Property Image
Land
| 1 | 32 | AC (03.01-09.99) | 4.0000 | 0.00 | 0.00 | 0.00 | 1.00 | $360,000 | $0 |
Roll Value History
| 2026 | N/A | N/A | N/A | N/A | N/A |
| 2025 | $427,628 | $360,000 | $0 | $787,628 | $787,628 |
| 2024 | $431,105 | $340,000 | $0 | $771,105 | $771,105 |
| 2023 | $434,582 | $320,000 | $0 | $754,582 | $754,582 |
| 2022 | $395,803 | $300,000 | $0 | $695,803 | $695,803 |
| 2021 | $346,915 | $230,000 | $0 | $576,915 | $576,915 |
| 2020 | $337,124 | $190,000 | $0 | $527,124 | $527,124 |
| 2019 | $261,193 | $220,000 | $0 | $481,193 | $481,193 |
| 2018 | $263,167 | $120,000 | $0 | $383,167 | $383,167 |
| 2017 | $0 | $90,000 | $0 | $90,000 | $90,000 |
| 2016 | $0 | $90,000 | $0 | $90,000 | $90,000 |
| 2015 | $0 | $76,800 | $0 | $76,800 | $76,800 |
| 2014 | $0 | $76,800 | $0 | $76,800 | $76,800 |
| 2013 | $0 | $76,800 | $0 | $76,800 | $76,800 |
| 2012 | $0 | $76,800 | $0 | $76,800 | $76,800 |
| 2011 | $0 | $96,000 | $0 | $96,000 | $96,000 |
| 2010 | $0 | $96,000 | $0 | $96,000 | $96,000 |
| 2009 | $0 | $0 | $0 | $79,674 | $79,674 |
Deed and Sales History
| 1 | 06/08/2017 | WD | Warranty Deed | LITTLE, THOMAS A | BONNIFIELD, MICHAEL JAY | | | $135,000.00 | 29701 | 4424118 |
| 2 | 01/01/1900 | OTHER | Other - Misc. Documents | Unknown | LITTLE, THOMAS A | | | $0.00 | 0 | 0 |
Payout Agreement
| No payout information available.. |