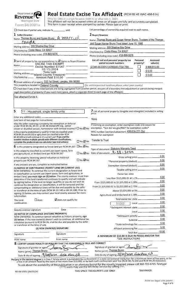
Property
Account |
| Property ID: | 809958 | Abbreviated Legal Description: | UTSALADY TOWNHOMES - CONDO UNIT 3 BLDG B 20% INT |
| Geographic ID: | S8539-00-000B3-0 | Agent Code: | |
| Type: | Real | | |
| Tax Area: | 510 - APPRAISER-Stan/Cam Schl Dist, improved & 1 acre or less | Land Use Code | 14 |
| Open Space: | N | DFL | N |
| Historic Property: | N | Remodel Property: | N |
| Multi-Family Redevelopment: | N | | |
| Township: | | Section: | |
| Range: | |
Location |
| Address: | 1095 ESSEX ST UNIT 3 CAMANO ISLAND, WA 98282 | Mapsco: | |
| Neighborhood: | 52*RR-utsalady tn | Map ID: | 962 |
| Neighborhood CD: | 52*RRutstn |
Owner |
| Name: | METZGER, MARCI | Owner ID: | 314210 |
| Mailing Address: | 4945 EAST BEACON RIDGE DR PAHRUMP, NV 89061 | % Ownership: | 100.0000000000% |
| | | Exemptions: | |
Taxes and Assessment Details
Values
| (+) Improvement Homesite Value: | + | $0 | |
| (+) Improvement Non-Homesite Value: | + | $487,232 | |
| (+) Land Homesite Value: | + | $0 | |
| (+) Land Non-Homesite Value: | + | $200,000 | |
| (+) Curr Use (HS): | + | $0 | $0 |
| (+) Curr Use (NHS): | + | $0 | $0 |
| | | -------------------------- | |
| (=) Market Value: | = | $687,232 | |
| (–) Productivity Loss: | – | $0 | |
| | | -------------------------- | |
| (=) Subtotal: | = | $687,232 | |
| (+) Senior Appraised Value: | + | $0 | |
| (+) Non-Senior Appraised Value: | + | $687,232 | |
| | | -------------------------- | |
| (=) Total Appraised Value: | = | $687,232 | |
| (–) Senior Exemption Loss: | – | $0 | |
| (–) Exemption Loss: | – | $0 | |
| | | -------------------------- | |
| (=) Taxable Value: | = | $687,232 | |
Taxing Jurisdiction
| Owner: | METZGER, MARCI | | |
| % Ownership: | 100.0000000000% | | |
| Total Value: | $687,232 | | |
| Tax Area: | 510 - APPRAISER-Stan/Cam Schl Dist, improved & 1 acre or less |
| CF | Conservation Futures | 0.0316035091 | $687,232 | $687,232 | $21.72 | | |
| EMS1 | Fire & Rescue Dist #1 Camano GEN (EMS) | 0.3677864386 | $687,232 | $687,232 | $252.75 | | |
| FIRE1 | Fire & Rescue Dist #1 Camano GEN | 1.2502910536 | $687,232 | $687,232 | $859.24 | | |
| FIRE1BOND | Fire & Rescue Dist #1 Camano BOND | 0.1570001679 | $687,232 | $687,232 | $107.90 | | |
| CE | County Current Expense | 0.3708482477 | $687,232 | $687,232 | $254.86 | | |
| CR | County Roads | 0.4584763726 | $687,232 | $687,232 | $315.08 | | |
| LCIB | Library Sno-Isle BOND (Camano Island) | 0.0396325772 | $687,232 | $687,232 | $27.24 | | |
| LIB | Library Sno-Isle GEN | 0.3153421757 | $687,232 | $687,232 | $216.71 | | |
| SCH205_401 | School 205-401 Enrichment | 1.2698420524 | $687,232 | $687,232 | $872.68 | | |
| SCH205BOND | School 205-401 BOND | 0.9396497583 | $687,232 | $687,232 | $645.76 | | |
| ST | State School | 1.3035497053 | $687,232 | $687,232 | $895.84 | | |
| ST2 | State School Part 2 | 0.8169543533 | $687,232 | $687,232 | $561.44 | | |
| | Total Tax Rate: | 7.3209764117 | | | | | |
| | | | | Taxes w/Current Exemptions: | $5,031.22 | | |
| | | | | Taxes w/o Exemptions: | $5,031.22 | | |
Improvement / Building
| Improvement #1: | RESIDENTIAL | State Code: | A1 | 1631.0 sqft | Value: | $487,232 |
| Bathrooms: | 2.5 | Bedrooms: | 2 | | Ceiling: | DRYWALL PAINTED | Exterior Wall/Cover: | SHINGLE | | Floor Covering: | HARDWOOD/CARP 80-20 | Floor Structure: | SLAB ON GRADE | | Foundation: | CONCRETE | Heating: | RADIANT FLOOR | | Interior Finish: | DRYWALL PAINT | Plumbing Fixture Cnt: | 12 | | Roof Slope: | 4" IN 12" | Roof Structure/Cover: | STEEL TERNE |
|
| | Type | Description | Class CD | Sub Class CD | Year Built | Area |
| | BAS | BASE/MAIN FLOOR | 5 | 0 | 2007 | 945.0 |
| | OP1 | OPEN PORCH SLAB | 5 | 0 | 2007 | 250.0 |
| | BIG | BUILT IN GARAGE | 5 | 0 | 2007 | 422.5 |
| | OWC | OPEN WOOD PORCH W/STEPS/ROOF/C | 5 | 0 | 2007 | 70.0 |
| | DWN | DOWNSTAIRS LIVING AREA | 5 | 0 | 2007 | 686.0 |
| | oPV2 | PV/ASPH 3" | 5 | 0 | 2007 | 958.4 |
Sketch
Property Image
Land
| 1 | 68 | COMMERCIAL RETAIL | 0.0000 | 1463.00 | 0.00 | 0.00 | 1.00 | $200,000 | $0 |
Roll Value History
| 2026 | N/A | N/A | N/A | N/A | N/A |
| 2025 | $487,232 | $200,000 | $0 | $687,232 | $687,232 |
| 2024 | $486,785 | $150,000 | $0 | $636,785 | $636,785 |
| 2023 | $492,172 | $150,000 | $0 | $642,172 | $642,172 |
| 2022 | $450,413 | $150,000 | $0 | $600,413 | $600,413 |
| 2021 | $348,943 | $130,000 | $0 | $478,943 | $478,943 |
| 2020 | $338,692 | $70,000 | $0 | $408,692 | $408,692 |
| 2019 | $259,344 | $180,000 | $0 | $439,344 | $439,344 |
| 2018 | $260,071 | $180,000 | $0 | $440,071 | $440,071 |
| 2017 | $261,483 | $102,030 | $0 | $363,513 | $363,513 |
| 2016 | $264,398 | $102,030 | $0 | $366,428 | $366,428 |
| 2015 | $267,309 | $102,030 | $0 | $369,339 | $369,339 |
| 2014 | $270,222 | $102,030 | $0 | $372,252 | $372,252 |
| 2013 | $273,136 | $102,030 | $0 | $375,166 | $375,166 |
| 2012 | $278,963 | $102,030 | $0 | $380,993 | $380,993 |
| 2011 | $278,963 | $102,030 | $0 | $380,993 | $380,993 |
| 2010 | $353,817 | $102,030 | $0 | $455,847 | $455,847 |
| 2009 | $370,658 | $25,500 | $0 | $396,158 | $396,158 |
| 2008 | $0 | $0 | $0 | $278,845 | $278,845 |
Deed and Sales History
| 1 | 10/14/2024 | WD | Warranty Deed | MCINTOSH, ROBERT | METZGER, MARCI | | | $845,000.00 | 61555 | 4578200 |
| 2 | 11/09/2010 | WD | Warranty Deed | RGN CONSTRUCTION LLC | MCINTOSH, ROBERT | | | $315,000.00 | 2716 | 4283827 |
| 3 | 01/01/1900 | OTHER | Other - Misc. Documents | Unknown | RGN CONSTRUCTION LLC, | | | $0.00 | 0 | 0 |
Payout Agreement
| No payout information available.. |