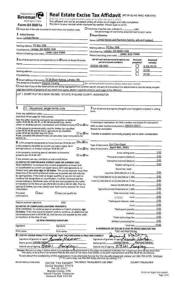
Property
Account |
| Property ID: | 809960 | Abbreviated Legal Description: | UTSALADY TOWNHOMES - CONDO UNIT 5 BLDG A 20% INT |
| Geographic ID: | S8539-00-000A5-0 | Agent Code: | |
| Type: | Real | | |
| Tax Area: | 510 - APPRAISER-Stan/Cam Schl Dist, improved & 1 acre or less | Land Use Code | 50 |
| Open Space: | N | DFL | N |
| Historic Property: | N | Remodel Property: | N |
| Multi-Family Redevelopment: | N | | |
| Township: | | Section: | |
| Range: | |
Location |
| Address: | 1095 ESSEX ST UNIT A1 CAMANO ISLAND, WA 98282 | Mapsco: | |
| Neighborhood: | 52*RR-utsalady co | Map ID: | 962 |
| Neighborhood CD: | 52*RRutsco |
Owner |
| Name: | FORTE MUSIC.DANCE.ART LLC | Owner ID: | 297352 |
| Mailing Address: | 1095 ESSEX ST UNIT A-1 & A-2 CAMANO ISLAND, WA 98282 | % Ownership: | 100.0000000000% |
| | | Exemptions: | |
Taxes and Assessment Details
Values
| (+) Improvement Homesite Value: | + | $0 | |
| (+) Improvement Non-Homesite Value: | + | $437,597 | |
| (+) Land Homesite Value: | + | $0 | |
| (+) Land Non-Homesite Value: | + | $200,000 | |
| (+) Curr Use (HS): | + | $0 | $0 |
| (+) Curr Use (NHS): | + | $0 | $0 |
| | | -------------------------- | |
| (=) Market Value: | = | $637,597 | |
| (–) Productivity Loss: | – | $0 | |
| | | -------------------------- | |
| (=) Subtotal: | = | $637,597 | |
| (+) Senior Appraised Value: | + | $0 | |
| (+) Non-Senior Appraised Value: | + | $637,597 | |
| | | -------------------------- | |
| (=) Total Appraised Value: | = | $637,597 | |
| (–) Senior Exemption Loss: | – | $0 | |
| (–) Exemption Loss: | – | $0 | |
| | | -------------------------- | |
| (=) Taxable Value: | = | $637,597 | |
Taxing Jurisdiction
| Owner: | FORTE MUSIC.DANCE.ART LLC | | |
| % Ownership: | 100.0000000000% | | |
| Total Value: | $637,597 | | |
| Tax Area: | 510 - APPRAISER-Stan/Cam Schl Dist, improved & 1 acre or less |
| CF | Conservation Futures | 0.0316035091 | $637,597 | $637,597 | $20.15 | | |
| EMS1 | Fire & Rescue Dist #1 Camano GEN (EMS) | 0.3677864386 | $637,597 | $637,597 | $234.50 | | |
| FIRE1 | Fire & Rescue Dist #1 Camano GEN | 1.2502910536 | $637,597 | $637,597 | $797.18 | | |
| FIRE1BOND | Fire & Rescue Dist #1 Camano BOND | 0.1570001679 | $637,597 | $637,597 | $100.10 | | |
| CE | County Current Expense | 0.3708482477 | $637,597 | $637,597 | $236.45 | | |
| CR | County Roads | 0.4584763726 | $637,597 | $637,597 | $292.32 | | |
| LCIB | Library Sno-Isle BOND (Camano Island) | 0.0396325772 | $637,597 | $637,597 | $25.27 | | |
| LIB | Library Sno-Isle GEN | 0.3153421757 | $637,597 | $637,597 | $201.06 | | |
| SCH205_401 | School 205-401 Enrichment | 1.2698420524 | $637,597 | $637,597 | $809.65 | | |
| SCH205BOND | School 205-401 BOND | 0.9396497583 | $637,597 | $637,597 | $599.12 | | |
| ST | State School | 1.3035497053 | $637,597 | $637,597 | $831.14 | | |
| ST2 | State School Part 2 | 0.8169543533 | $637,597 | $637,597 | $520.89 | | |
| | Total Tax Rate: | 7.3209764117 | | | | | |
| | | | | Taxes w/Current Exemptions: | $4,667.83 | | |
| | | | | Taxes w/o Exemptions: | $4,667.83 | | |
Improvement / Building
| Improvement #1: | COMMERCIAL | State Code: | F1 | 1496.0 sqft | Value: | $437,597 |
| Bathrooms: | 3 | Ceiling: | DRYWALL PAINTED | | Exterior Wall/Cover: | SHINGLE | Floor Covering: | HARDWOOD 100% | | Floor Structure: | CONCRETE ON GROUND | Foundation: | CONCRETE | | Heating: | FHA GAS | Interior Finish: | RETAIL | | Plumbing Fixture Cnt: | 12 | Roof Structure/Cover: | METAL/OPEN WOOD |
|
| | Type | Description | Class CD | Sub Class CD | Year Built | Area |
| | BAS | BASE/MAIN FLOOR | 4 | 0 | 2007 | 976.0 |
| | OP1 | OPEN PORCH SLAB | 4 | 0 | 2007 | 256.0 |
| | OP4 | OPEN PORCH W/CEILING-ROOF | 4 | 0 | 2007 | 200.0 |
| | oPV2 | PV/ASPH 3" | 4 | 0 | 2007 | 0.0 |
| | UPS | UPPER STORY | 4 | 0 | 2007 | 520.0 |
Sketch
Property Image
Land
| 1 | 68 | COMMERCIAL RETAIL | 0.0000 | 1616.00 | 0.00 | 0.00 | 1.00 | $200,000 | $0 |
Roll Value History
| 2026 | N/A | N/A | N/A | N/A | N/A |
| 2025 | $437,597 | $200,000 | $0 | $637,597 | $637,597 |
| 2024 | $445,818 | $150,000 | $0 | $595,818 | $595,818 |
| 2023 | $450,850 | $150,000 | $0 | $600,850 | $600,850 |
| 2022 | $333,038 | $150,000 | $0 | $483,038 | $483,038 |
| 2021 | $310,979 | $130,000 | $0 | $440,979 | $440,979 |
| 2020 | $310,817 | $70,000 | $0 | $380,817 | $380,817 |
| 2019 | $282,335 | $180,000 | $0 | $462,335 | $462,335 |
| 2018 | $282,355 | $180,000 | $0 | $462,355 | $462,355 |
| 2017 | $282,395 | $112,700 | $0 | $395,095 | $395,095 |
| 2016 | $282,476 | $112,700 | $0 | $395,176 | $395,176 |
| 2015 | $91,798 | $112,700 | $0 | $204,498 | $204,498 |
| 2014 | $92,756 | $112,700 | $0 | $205,456 | $205,456 |
| 2013 | $93,715 | $112,700 | $0 | $206,415 | $206,415 |
| 2012 | $90,165 | $112,700 | $0 | $202,865 | $202,865 |
| 2011 | $90,165 | $112,700 | $0 | $202,865 | $202,865 |
| 2010 | $63,010 | $112,700 | $0 | $175,710 | $175,710 |
| 2009 | $64,473 | $28,167 | $0 | $92,640 | $92,640 |
| 2008 | $0 | $0 | $0 | $100,792 | $100,792 |
Deed and Sales History
| 1 | 11/30/2020 | QCD | Quit Claim Deed | TUOHY, CHRISTOPHER L | FORTE MUSIC.DANCE.ART LLC | | | $0.00 | 46159 | 4505496 |
| 2 | 06/28/2010 | WD | Warranty Deed | RGN CONSTRUCTION LLC, | TUOHY, CHRISTOPHER L | | | $300,000.00 | 1655 | 4276634 |
| 3 | 01/01/1900 | OTHER | Other - Misc. Documents | Unknown | RGN CONSTRUCTION LLC, | | | $0.00 | 0 | 0 |
Payout Agreement
| No payout information available.. |