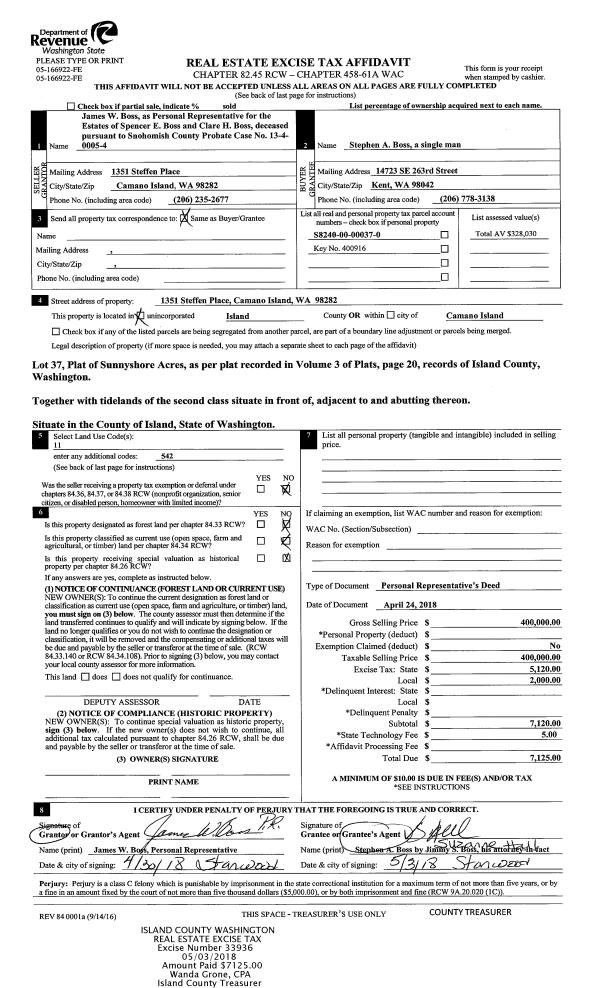
Property
Account |
| Property ID: | 810000 | Abbreviated Legal Description: | IN GL2: BG E4/CR SEC 2 N1257' TP ON ML N81*W713.9' N652.4' TO CTR CO RD FOLL SD RD N75*W685' N85*W203' N87*W155.4' S72*W104' M/L TO JUNCTION OF LANGLEY RD, SANDY PT RD & CLINTON RD S4*W ALG CTR OF CO RD 282.5' S8*W ALG CTR OF CO RD 290' M/L TP ON NLN SAND |
| Geographic ID: | R32902-398-3580 | Agent Code: | |
| Type: | Real | | |
| Tax Area: | 710 - APPRAISER-S Whid Schl Dist, outside Langley, improved & 1 acre or less | Land Use Code | 11 |
| Open Space: | N | DFL | N |
| Historic Property: | N | Remodel Property: | N |
| Multi-Family Redevelopment: | N | | |
| Township: | 29 | Section: | 02 |
| Range: | R3 |
Location |
| Address: | | Mapsco: | |
| Neighborhood: | Cycle 4 | Map ID: | 722 |
| Neighborhood CD: | 4 |
Owner |
| Name: | MANSFIELD, MARY ANN | Owner ID: | 285027 |
| Mailing Address: | PO BOX 1025 LANGLEY, WA 98260 | % Ownership: | 100.0000000000% |
| | | Exemptions: | SNR/DSBL |
Taxes and Assessment Details
Values
| (+) Improvement Homesite Value: | + | $283,780 | |
| (+) Improvement Non-Homesite Value: | + | $0 | |
| (+) Land Homesite Value: | + | $250,000 | |
| (+) Land Non-Homesite Value: | + | $0 | |
| (+) Curr Use (HS): | + | $0 | $0 |
| (+) Curr Use (NHS): | + | $0 | $0 |
| | | -------------------------- | |
| (=) Market Value: | = | $533,780 | |
| (–) Productivity Loss: | – | $0 | |
| | | -------------------------- | |
| (=) Subtotal: | = | $533,780 | |
| (+) Senior Appraised Value: | + | $413,868 | |
| (+) Non-Senior Appraised Value: | + | $0 | |
| | | -------------------------- | |
| (=) Total Appraised Value: | = | $413,868 | |
| (–) Senior Exemption Loss: | – | $248,321 | |
| (–) Exemption Loss: | – | $0 | |
| | | -------------------------- | |
| (=) Taxable Value: | = | $165,547 | |
Taxing Jurisdiction
| Owner: | MANSFIELD, MARY ANN | | |
| % Ownership: | 100.0000000000% | | |
| Total Value: | $533,780 | | |
| Tax Area: | 710 - APPRAISER-S Whid Schl Dist, outside Langley, improved & 1 acre or less |
| CF | Conservation Futures | 0.0316035091 | $533,780 | $165,547 | $5.23 | | |
| FIRE3 | Fire & Rescue Dist #3 S Whidbey GEN | 1.2004855531 | $533,780 | $165,547 | $198.74 | | |
| HOBOND | Hospital BOND | 0.0000000000 | $533,780 | $0 | $0.00 | | |
| HOGEN | Hospital GEN | 0.3902502903 | $533,780 | $165,547 | $64.60 | | |
| CE | County Current Expense | 0.3708482477 | $533,780 | $165,547 | $61.39 | | |
| CR | County Roads | 0.4584763726 | $533,780 | $165,547 | $75.90 | | |
| ISLANDEMS | Hospital GEN (EMS) | 0.5000000000 | $533,780 | $165,547 | $82.77 | | |
| LIB | Library Sno-Isle GEN | 0.3153421757 | $533,780 | $165,547 | $52.20 | | |
| PORTWHID | Port of S Whidbey GEN | 0.1094540357 | $533,780 | $165,547 | $18.12 | | |
| SCH206BOND | School 206 BOND | 0.3161759235 | $533,780 | $165,547 | $52.34 | | |
| SCH206MO | School 206 Enrichment | 0.0000000000 | $533,780 | $0 | $0.00 | | |
| ST | State School | 1.3035497053 | $533,780 | $165,547 | $215.80 | | |
| ST2 | State School Part 2 | 0.0000000000 | $533,780 | $0 | $0.00 | | |
| SWHIDPRBD | P & R S Whidbey BOND | 0.0000000000 | $533,780 | $0 | $0.00 | | |
| SWHIDPRBD2 | P & R S Whidbey BOND2 | 0.0000000000 | $533,780 | $0 | $0.00 | | |
| SWHIDPRMT | P & R S Whidbey GEN | 0.2053334452 | $533,780 | $165,547 | $33.99 | | |
| | Total Tax Rate: | 5.2015192582 | | | | | |
| | | | | Taxes w/Current Exemptions: | $861.08 | | |
| | | | | Taxes w/o Exemptions: | $3,572.83 | | |
Improvement / Building
| Improvement #1: | RESIDENTIAL | State Code: | Y | 2228.8 sqft | Value: | $283,780 |
| Bathrooms: | 2 | Bedrooms: | 2 | | Ceiling: | PLYWOOD PAINTED | Exterior Wall/Cover: | WOOD SIDING | | Floor Covering: | VINYL/HARDWOOD 60-40 | Floor Structure: | SLAB ABOVE GRADE | | Foundation: | CONCRETE | Heating: | BASEBOARD ELECTRIC | | Interior Finish: | DRYWALL PAINT | Plumbing Fixture Cnt: | 1 | | Roof Slope: | 4" IN 12" | Roof Structure/Cover: | CJ ASPHALT |
|
| | Type | Description | Class CD | Sub Class CD | Year Built | Area |
| | BAS | BASE/MAIN FLOOR | 3 | 0 | 1935 | 680.4 |
| | BAS | BASE/MAIN FLOOR | 3 | 0 | 1935 | 1548.4 |
| | UTY | STORAGE/UTILITY | 3 | 0 | 1935 | 164.8 |
| | AGR | ATTACHED GARAGE | 3 | 0 | 1935 | 648.0 |
| | OWR | OPEN WOOD PORCH W/STEPS/ROOF | 3 | 0 | 1935 | 96.0 |
| | OP1 | OPEN PORCH SLAB | 3 | 0 | 1935 | 458.4 |
| | OP1 | OPEN PORCH SLAB | 3 | 0 | 1935 | 322.8 |
Sketch
Property Image
Land
| 1 | 15 | SQ (12001-21780) | 0.0000 | 0.00 | 0.00 | 0.00 | 1.00 | $250,000 | $0 |
Roll Value History
| 2026 | N/A | N/A | N/A | N/A | N/A |
| 2025 | $283,780 | $250,000 | $0 | $533,780 | $165,547 |
| 2024 | $291,739 | $230,000 | $0 | $521,739 | $165,547 |
| 2023 | $295,893 | $230,000 | $0 | $525,893 | $165,547 |
| 2022 | $269,800 | $210,000 | $0 | $479,800 | $164,724 |
| 2021 | $237,859 | $180,000 | $0 | $417,859 | $164,724 |
| 2020 | $231,811 | $180,000 | $0 | $411,811 | $164,724 |
| 2019 | $180,049 | $200,000 | $0 | $380,049 | $380,049 |
| 2018 | $180,679 | $160,000 | $0 | $340,679 | $340,679 |
| 2017 | $181,944 | $160,000 | $0 | $341,944 | $341,944 |
| 2016 | $184,471 | $120,000 | $0 | $304,471 | $304,471 |
| 2015 | $186,998 | $139,500 | $0 | $326,498 | $326,498 |
| 2014 | $125,183 | $139,500 | $0 | $264,683 | $264,683 |
| 2013 | $127,834 | $139,500 | $0 | $267,334 | $267,334 |
| 2012 | $130,485 | $139,500 | $0 | $269,985 | $269,985 |
| 2011 | $133,138 | $155,000 | $0 | $288,138 | $288,138 |
| 2010 | $152,734 | $155,000 | $0 | $307,734 | $307,734 |
| 2009 | $92,645 | $92,645 | $0 | $185,289 | $185,289 |
| 2008 | $0 | $0 | $0 | $176,207 | $176,207 |
Deed and Sales History
| 1 | 05/11/2018 | WD | Warranty Deed | HAINES, HELEN | MANSFIELD, MARY ANN | | | $0.00 | 34089 | 4444353 |
| 2 | 09/11/2009 | ESTSEPPROP | Establish Separate Property | HAINES, HELEN | HAINES, HELEN | | | $0.00 | 92155 | 4260033 |
| 3 | 09/04/2009 | BLA | DNU - Boundary Line Adjustment | Unknown | HAINES, HELEN | | | $0.00 | 81364 | 4221638 |
Payout Agreement
| No payout information available.. |