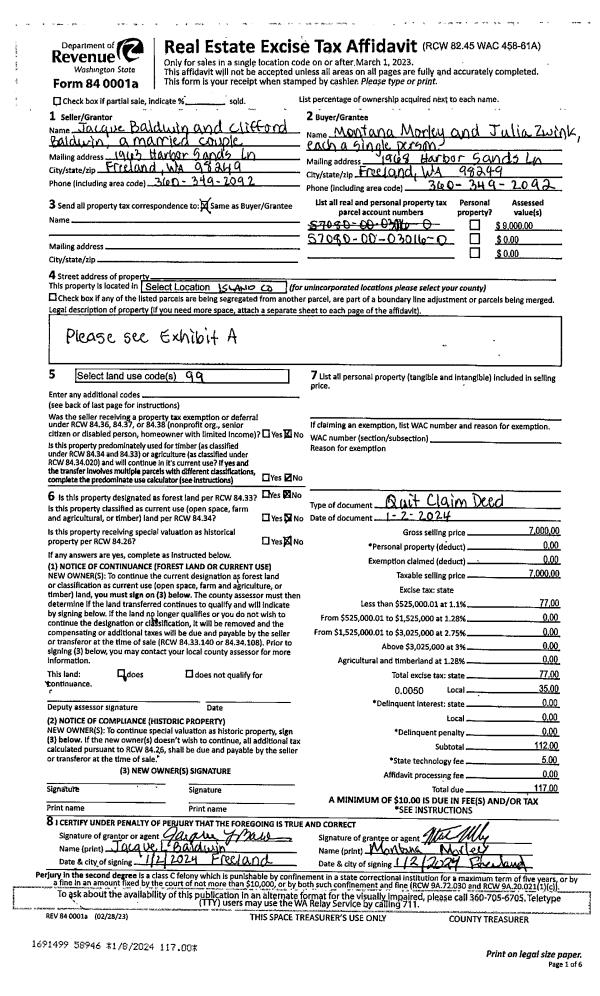
Property
Account |
| Property ID: | 810037 | Abbreviated Legal Description: | S175' OF N850' OF GL 4 E OF JONES RD |
| Geographic ID: | R23305-450-2040 | Agent Code: | |
| Type: | Real | | |
| Tax Area: | 119 - APPRAISER-OH Schl Dist, outside OH, vacant & 50 acres or less | Land Use Code | 91 |
| Open Space: | N | DFL | N |
| Historic Property: | N | Remodel Property: | N |
| Multi-Family Redevelopment: | N | | |
| Township: | 33 | Section: | 05 |
| Range: | R2 |
Location |
| Address: | | Mapsco: | |
| Neighborhood: | Cycle 6 | Map ID: | 585 |
| Neighborhood CD: | 6 |
Owner |
| Name: | BRAY, KORINA ANN | Owner ID: | 300384 |
| Mailing Address: | 9215 SE GRANDVIEW TERR HAPPY VALLEY, OR 97086 | % Ownership: | 100.0000000000% |
| | | Exemptions: | |
Taxes and Assessment Details
Values
| (+) Improvement Homesite Value: | + | $0 | |
| (+) Improvement Non-Homesite Value: | + | $0 | |
| (+) Land Homesite Value: | + | $0 | |
| (+) Land Non-Homesite Value: | + | $295,000 | |
| (+) Curr Use (HS): | + | $0 | $0 |
| (+) Curr Use (NHS): | + | $0 | $0 |
| | | -------------------------- | |
| (=) Market Value: | = | $295,000 | |
| (–) Productivity Loss: | – | $0 | |
| | | -------------------------- | |
| (=) Subtotal: | = | $295,000 | |
| (+) Senior Appraised Value: | + | $0 | |
| (+) Non-Senior Appraised Value: | + | $295,000 | |
| | | -------------------------- | |
| (=) Total Appraised Value: | = | $295,000 | |
| (–) Senior Exemption Loss: | – | $0 | |
| (–) Exemption Loss: | – | $0 | |
| | | -------------------------- | |
| (=) Taxable Value: | = | $295,000 | |
Taxing Jurisdiction
| Owner: | BRAY, KORINA ANN | | |
| % Ownership: | 100.0000000000% | | |
| Total Value: | $295,000 | | |
| Tax Area: | 119 - APPRAISER-OH Schl Dist, outside OH, vacant & 50 acres or less |
| CF | Conservation Futures | 0.0316035091 | $295,000 | $295,000 | $9.32 | | |
| CEM1 | Cemetery #1 | 0.0040320932 | $295,000 | $295,000 | $1.19 | | |
| HOBOND | Hospital BOND | 0.1910887512 | $295,000 | $295,000 | $56.37 | | |
| HOGEN | Hospital GEN | 0.3902502903 | $295,000 | $295,000 | $115.12 | | |
| CE | County Current Expense | 0.3708482477 | $295,000 | $295,000 | $109.40 | | |
| CR | County Roads | 0.4584763726 | $295,000 | $295,000 | $135.25 | | |
| ISLANDEMS | Hospital GEN (EMS) | 0.5000000000 | $295,000 | $295,000 | $147.50 | | |
| LIB | Library Sno-Isle GEN | 0.3153421757 | $295,000 | $295,000 | $93.03 | | |
| NWHIDPRMT | P & R N Whidbey GEN | 0.2004466701 | $295,000 | $295,000 | $59.13 | | |
| SCH201MO | School 201 Enrichment | 1.8559231640 | $295,000 | $295,000 | $547.50 | | |
| ST | State School | 1.3035497053 | $295,000 | $295,000 | $384.55 | | |
| ST2 | State School Part 2 | 0.8169543533 | $295,000 | $295,000 | $241.00 | | |
| | Total Tax Rate: | 6.4385153325 | | | | | |
| | | | | Taxes w/Current Exemptions: | $1,899.36 | | |
| | | | | Taxes w/o Exemptions: | $1,899.36 | | |
Improvement / Building
Sketch
| No sketches available for this property. |
Property Image
Land
| 1 | HB | HIGH BLUFF | 1.9400 | 84506.40 | 175.00 | 0.00 | 1.00 | $295,000 | $0 |
Roll Value History
| 2026 | N/A | N/A | N/A | N/A | N/A |
| 2025 | $0 | $295,000 | $0 | $295,000 | $295,000 |
| 2024 | $0 | $280,000 | $0 | $280,000 | $280,000 |
| 2023 | $0 | $255,000 | $0 | $255,000 | $255,000 |
| 2022 | $0 | $250,000 | $0 | $250,000 | $250,000 |
| 2021 | $0 | $150,000 | $0 | $150,000 | $150,000 |
| 2020 | $0 | $150,000 | $0 | $150,000 | $150,000 |
| 2019 | $0 | $150,000 | $0 | $150,000 | $150,000 |
| 2018 | $0 | $150,000 | $0 | $150,000 | $150,000 |
| 2017 | $0 | $150,000 | $0 | $150,000 | $150,000 |
| 2016 | $0 | $150,000 | $0 | $150,000 | $150,000 |
| 2015 | $0 | $200,000 | $0 | $200,000 | $200,000 |
| 2014 | $0 | $200,000 | $0 | $200,000 | $200,000 |
| 2013 | $0 | $225,936 | $0 | $225,936 | $225,936 |
| 2012 | $0 | $225,936 | $0 | $225,936 | $225,936 |
| 2011 | $0 | $225,936 | $0 | $225,936 | $225,936 |
| 2010 | $0 | $225,936 | $0 | $225,936 | $225,936 |
| 2009 | $0 | $0 | $0 | $284,284 | $284,284 |
Deed and Sales History
| 1 | 10/24/2023 | QCD | Quit Claim Deed | ESTATE OF TIMOTHY C BRAY | BRAY, KORINA ANN | | | $0.00 | 58370 | 4566203 |
| 2 | 07/25/2021 | QCD | Quit Claim Deed | BRAY, TIMOTHY C | BRAY, KORINA ANN | | | $0.00 | 49368 | 4525474 |
| 3 | 12/30/2015 | WD | Warranty Deed | BRAY, TIMOTHY C | BRAY, TIMOTHY C | | | $0.00 | 22904 | 4392917 |
| 4 | 12/30/2015 | WD | Warranty Deed | ELSPORKY LLC | BRAY, TIMOTHY C | | | $156,000.00 | 22875 | 4392783 |
| 5 | 09/23/2009 | BLA | DNU - Boundary Line Adjustment | Unknown | ELSPORKY LLC, | | | $0.00 | 81373 | 4230440 |
Payout Agreement
| No payout information available.. |