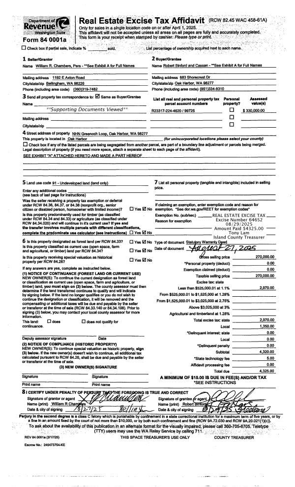
Property
Account |
| Property ID: | 810050 | Abbreviated Legal Description: | BG SWCR SEC 21 S88*E1913.50' TO LN DESC BLA AF# 241210 S1*W 15.85' M/L TO NLN PENN COVE RD N1*E 335.00' TPB N88*W PARALLEL W/SLN SEC 21 260.00' N1*E 415.64' N84*W 77.80' N1*E 316.68' TO SLN ARNOLD RD N72*E 356.90' ALG SLN S1*W 854.30' TPB |
| Geographic ID: | R13221-071-1770 | Agent Code: | |
| Type: | Real | | |
| Tax Area: | 332 - APPRAISER-Cpvl Schl Dist, Special Dist, improved, greater than 1 acre | Land Use Code | 11 |
| Open Space: | N | DFL | N |
| Historic Property: | N | Remodel Property: | N |
| Multi-Family Redevelopment: | N | | |
| Township: | 32 | Section: | 21 |
| Range: | R1 |
Location |
| Address: | 1495 ARNOLD RD OAK HARBOR, WA 98277 | Mapsco: | |
| Neighborhood: | Cycle 2 | Map ID: | 149 |
| Neighborhood CD: | 2 |
Owner |
| Name: | ROBART, JAMES L | Owner ID: | 267630 |
| Mailing Address: | 700 STEWART #14128 SEATTLE, WA 98101 | % Ownership: | 100.0000000000% |
| | | Exemptions: | |
Taxes and Assessment Details
Values
| (+) Improvement Homesite Value: | + | $0 | |
| (+) Improvement Non-Homesite Value: | + | $340,325 | |
| (+) Land Homesite Value: | + | $0 | |
| (+) Land Non-Homesite Value: | + | $341,047 | |
| (+) Curr Use (HS): | + | $0 | $0 |
| (+) Curr Use (NHS): | + | $0 | $0 |
| | | -------------------------- | |
| (=) Market Value: | = | $681,372 | |
| (–) Productivity Loss: | – | $0 | |
| | | -------------------------- | |
| (=) Subtotal: | = | $681,372 | |
| (+) Senior Appraised Value: | + | $0 | |
| (+) Non-Senior Appraised Value: | + | $681,372 | |
| | | -------------------------- | |
| (=) Total Appraised Value: | = | $681,372 | |
| (–) Senior Exemption Loss: | – | $0 | |
| (–) Exemption Loss: | – | $0 | |
| | | -------------------------- | |
| (=) Taxable Value: | = | $681,372 | |
Taxing Jurisdiction
| Owner: | ROBART, JAMES L | | |
| % Ownership: | 100.0000000000% | | |
| Total Value: | $681,372 | | |
| Tax Area: | 332 - APPRAISER-Cpvl Schl Dist, Special Dist, improved, greater than 1 acre |
| CF | Conservation Futures | 0.0316035091 | $681,372 | $681,372 | $21.53 | | |
| CEM2 | Cemetery #2 | 0.0095056933 | $681,372 | $681,372 | $6.48 | | |
| FIRE2 | Fire & Rescue Dist #2 N Whidbey GEN | 0.5475949600 | $681,372 | $681,372 | $373.12 | | |
| HOBOND | Hospital BOND | 0.1910887512 | $681,372 | $681,372 | $130.20 | | |
| HOGEN | Hospital GEN | 0.3902502903 | $681,372 | $681,372 | $265.91 | | |
| CE | County Current Expense | 0.3708482477 | $681,372 | $681,372 | $252.69 | | |
| CR | County Roads | 0.4584763726 | $681,372 | $681,372 | $312.39 | | |
| ISLANDEMS | Hospital GEN (EMS) | 0.5000000000 | $681,372 | $681,372 | $340.69 | | |
| LIB | Library Sno-Isle GEN | 0.3153421757 | $681,372 | $681,372 | $214.87 | | |
| LIBCAP | Library Sno-Isle BOND (Cap Fac Imp Area) | 0.0543427938 | $681,372 | $681,372 | $37.03 | | |
| POCOUP | Port of Coupeville GEN | 0.1093371703 | $681,372 | $681,372 | $74.50 | | |
| POCOUPIDD | Port of Coupeville IDD | 0.3409740022 | $681,372 | $681,372 | $232.33 | | |
| COUPSDTECH | School 204 CP (TECH) | 0.7545480007 | $681,372 | $681,372 | $514.13 | | |
| SCH204MO | School 204 Enrichment | 0.6716186034 | $681,372 | $681,372 | $457.62 | | |
| ST | State School | 1.3035497053 | $681,372 | $681,372 | $888.20 | | |
| ST2 | State School Part 2 | 0.8169543533 | $681,372 | $681,372 | $556.65 | | |
| | Total Tax Rate: | 6.8660346289 | | | | | |
| | | | | Taxes w/Current Exemptions: | $4,678.34 | | |
| | | | | Taxes w/o Exemptions: | $4,678.34 | | |
Improvement / Building
| Improvement #1: | RESIDENTIAL | State Code: | Y | 2392.0 sqft | Value: | $340,325 |
| Bathrooms: | 2.75 | Bedrooms: | 4 | | Ceiling: | DRY WALL SPRAYED | Exterior Wall/Cover: | WOOD SIDING | | Floor Covering: | CARPET/VINYL 80-20 | Floor Structure: | WOOD W/SUBFLOOR | | Foundation: | CONCRETE | Heating: | BASEBOARD ELECTRIC | | Interior Finish: | DRYWALL PAINT | Plumbing Fixture Cnt: | 12 | | Roof Slope: | 4" IN 12" | Roof Structure/Cover: | CJ ALUMINIUM HEAVY |
|
| | Type | Description | Class CD | Sub Class CD | Year Built | Area |
| | BAS | BASE/MAIN FLOOR | 3 | 0 | 1976 | 1536.0 |
| | BIG | BUILT IN GARAGE | 3 | 0 | 1976 | 680.0 |
| | OWP | OPEN WOOD PORCH W/STEPS | 3 | 0 | 1976 | 740.0 |
| | OWC | OPEN WOOD PORCH W/STEPS/ROOF/C | 3 | 0 | 1976 | 91.0 |
| | DWN | DOWNSTAIRS LIVING AREA | 3 | 0 | 1976 | 856.0 |
| | oSTA | STABLE | 3 | 0 | 1976 | 2400.0 |
| | oLOF | STORAGE LOFT | 3 | 0 | 1976 | 800.0 |
Sketch
| No sketches available for this property. |
Property Image
Land
| 1 | HS | HOMESITE | 1.0000 | 43560.00 | 0.00 | 0.00 | 1.00 | $220,000 | $0 |
| 2 | 91 | UNDEVELOPED LAND-METES AND BOUNDS | 4.4300 | 192970.80 | 0.00 | 0.00 | 1.00 | $121,047 | $0 |
Roll Value History
| 2026 | N/A | N/A | N/A | N/A | N/A |
| 2025 | $340,325 | $341,047 | $0 | $681,372 | $681,372 |
| 2024 | $325,163 | $300,000 | $0 | $625,163 | $625,163 |
| 2023 | $328,979 | $280,000 | $0 | $608,979 | $608,979 |
| 2022 | $305,326 | $260,000 | $0 | $565,326 | $565,326 |
| 2021 | $273,978 | $170,000 | $0 | $443,978 | $443,978 |
| 2020 | $268,487 | $170,000 | $0 | $438,487 | $438,487 |
| 2019 | $215,011 | $230,000 | $0 | $445,011 | $445,011 |
| 2018 | $214,363 | $170,000 | $0 | $384,363 | $384,363 |
| 2017 | $210,780 | $170,000 | $0 | $380,780 | $380,780 |
| 2016 | $212,921 | $160,000 | $0 | $372,921 | $372,921 |
| 2015 | $215,061 | $135,000 | $0 | $350,061 | $350,061 |
| 2014 | $200,076 | $135,000 | $0 | $335,076 | $335,076 |
| 2013 | $202,218 | $121,500 | $0 | $323,718 | $323,718 |
| 2012 | $209,015 | $121,500 | $0 | $330,515 | $330,515 |
| 2011 | $211,220 | $135,000 | $0 | $346,220 | $346,220 |
| 2010 | $225,679 | $135,000 | $0 | $360,679 | $360,679 |
| 2009 | $251,951 | $167,968 | $0 | $419,919 | $419,919 |
Deed and Sales History
| 1 | 12/17/2021 | GRANTD | Grant Deed | ROBART, JAMES L | WHIDBEY CAMANO LAND TRUST | | | $0.00 | 51424 | 4536409 |
| 2 | 08/27/2014 | ESTSEPPROP | Establish Separate Property | ROBART, JAMES L | ROBART, JAMES L | | | $0.00 | 16650 | 4364914 |
| 3 | 08/27/2014 | WD | Warranty Deed | TOMLINSON III, RALPH L | ROBART, JAMES L | | | $450,000.00 | 16649 | 4364913 |
| 4 | 09/30/2009 | BLA | DNU - Boundary Line Adjustment | Unknown | TOMLINSON III, RALPH L | | | $0.00 | 81380 | 4193759 |
| 5 | 02/26/2007 | ESTSEPPROP | Establish Separate Property | TOMLINSON III, RALPH L | TOMLINSON III, RALPH L | | | $0.00 | 70878 | 4196687 |
Payout Agreement
| No payout information available.. |