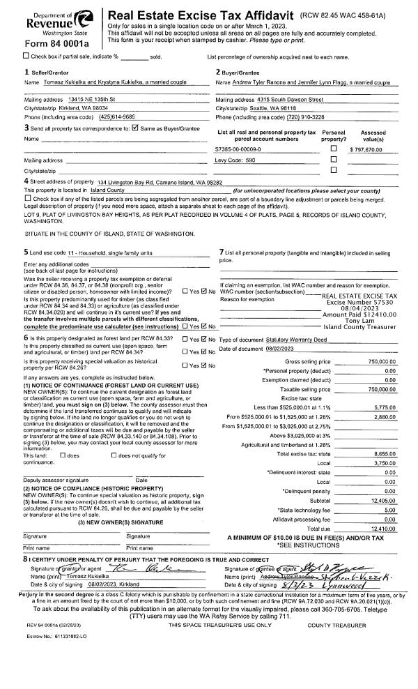
Property
Account |
| Property ID: | 810064 | Abbreviated Legal Description: | LOT 2 SP 365-06.23103.050-4320 AF# 4261451 |
| Geographic ID: | R23103-056-4390 | Agent Code: | |
| Type: | Real | | |
| Tax Area: | 512 - APPRAISER-Stan/Cam Schl Dist, improved, greater than 1 acre | Land Use Code | 11 |
| Open Space: | N | DFL | N |
| Historic Property: | N | Remodel Property: | N |
| Multi-Family Redevelopment: | N | | |
| Township: | 31 | Section: | 03 |
| Range: | R2 |
Location |
| Address: | 368 SPRUCE PLACE CAMANO ISLAND, WA 98282 | Mapsco: | |
| Neighborhood: | Cycle 5 | Map ID: | 457 |
| Neighborhood CD: | 5 |
Owner |
| Name: | STEINBERG TTEE, BENJALMIN T | Owner ID: | 317525 |
| Mailing Address: | JULIE L STEINBERG TTEE 368 SPRUCE PL CAMANO ISLAND, WA 98282 | % Ownership: | 100.0000000000% |
| | | Exemptions: | |
Taxes and Assessment Details
Values
| (+) Improvement Homesite Value: | + | $0 | |
| (+) Improvement Non-Homesite Value: | + | $719,835 | |
| (+) Land Homesite Value: | + | $0 | |
| (+) Land Non-Homesite Value: | + | $330,000 | |
| (+) Curr Use (HS): | + | $0 | $0 |
| (+) Curr Use (NHS): | + | $0 | $0 |
| | | -------------------------- | |
| (=) Market Value: | = | $1,049,835 | |
| (–) Productivity Loss: | – | $0 | |
| | | -------------------------- | |
| (=) Subtotal: | = | $1,049,835 | |
| (+) Senior Appraised Value: | + | $0 | |
| (+) Non-Senior Appraised Value: | + | $1,049,835 | |
| | | -------------------------- | |
| (=) Total Appraised Value: | = | $1,049,835 | |
| (–) Senior Exemption Loss: | – | $0 | |
| (–) Exemption Loss: | – | $0 | |
| | | -------------------------- | |
| (=) Taxable Value: | = | $1,049,835 | |
Taxing Jurisdiction
| Owner: | STEINBERG TTEE, BENJALMIN T | | |
| % Ownership: | 100.0000000000% | | |
| Total Value: | $1,049,835 | | |
| Tax Area: | 512 - APPRAISER-Stan/Cam Schl Dist, improved, greater than 1 acre |
| CF | Conservation Futures | 0.0316035091 | $1,049,835 | $1,049,835 | $33.18 | | |
| EMS1 | Fire & Rescue Dist #1 Camano GEN (EMS) | 0.3677864386 | $1,049,835 | $1,049,835 | $386.12 | | |
| FIRE1 | Fire & Rescue Dist #1 Camano GEN | 1.2502910536 | $1,049,835 | $1,049,835 | $1,312.60 | | |
| FIRE1BOND | Fire & Rescue Dist #1 Camano BOND | 0.1570001679 | $1,049,835 | $1,049,835 | $164.82 | | |
| CE | County Current Expense | 0.3708482477 | $1,049,835 | $1,049,835 | $389.33 | | |
| CR | County Roads | 0.4584763726 | $1,049,835 | $1,049,835 | $481.32 | | |
| LCIB | Library Sno-Isle BOND (Camano Island) | 0.0396325772 | $1,049,835 | $1,049,835 | $41.61 | | |
| LIB | Library Sno-Isle GEN | 0.3153421757 | $1,049,835 | $1,049,835 | $331.06 | | |
| SCH205_401 | School 205-401 Enrichment | 1.2698420524 | $1,049,835 | $1,049,835 | $1,333.12 | | |
| SCH205BOND | School 205-401 BOND | 0.9396497583 | $1,049,835 | $1,049,835 | $986.48 | | |
| ST | State School | 1.3035497053 | $1,049,835 | $1,049,835 | $1,368.51 | | |
| ST2 | State School Part 2 | 0.8169543533 | $1,049,835 | $1,049,835 | $857.67 | | |
| | Total Tax Rate: | 7.3209764117 | | | | | |
| | | | | Taxes w/Current Exemptions: | $7,685.82 | | |
| | | | | Taxes w/o Exemptions: | $7,685.82 | | |
Improvement / Building
| Improvement #1: | RESIDENTIAL | State Code: | Y | 2751.8 sqft | Value: | $719,835 |
| Bathrooms: | 3.25 | Bedrooms: | 3 | | Ceiling: | DRYWALL PAINTED | Cooling: | HEAT PUMP/CONV/V | | Exterior Wall/Cover: | CEMENT FIBER | Floor Covering: | CERAMIC TILE/HWD 40/60 | | Floor Structure: | WOOD W/SUBFLOOR | Foundation: | CONCRETE | | Interior Finish: | DRYWALL PAINT | Plumbing Fixture Cnt: | 16 | | Roof Slope: | 8" IN 12" | Roof Structure/Cover: | CJ ASPHALT |
|
| | Type | Description | Class CD | Sub Class CD | Year Built | Area |
| | BAS | BASE/MAIN FLOOR | 4 | 0 | 2018 | 2751.8 |
| | AGR | ATTACHED GARAGE | 4 | 0 | 2018 | 777.5 |
| | OWC | OPEN WOOD PORCH W/STEPS/ROOF/C | 4 | 0 | 2018 | 253.0 |
Sketch
Property Image
Land
| 1 | 32 | AC (03.01-09.99) | 5.0800 | 0.00 | 0.00 | 0.00 | 1.00 | $330,000 | $0 |
Roll Value History
| 2026 | N/A | N/A | N/A | N/A | N/A |
| 2025 | $719,835 | $330,000 | $0 | $1,049,835 | $1,049,835 |
| 2024 | $725,688 | $300,000 | $0 | $1,025,688 | $1,025,688 |
| 2023 | $731,539 | $290,000 | $0 | $1,021,539 | $1,021,539 |
| 2022 | $779,878 | $290,000 | $0 | $1,069,878 | $1,069,878 |
| 2021 | $683,550 | $190,000 | $0 | $873,550 | $873,550 |
| 2020 | $664,565 | $160,000 | $0 | $824,565 | $824,565 |
| 2019 | $550,660 | $230,000 | $0 | $780,660 | $780,660 |
| 2018 | $319,860 | $175,000 | $0 | $494,860 | $494,860 |
| 2017 | $0 | $90,000 | $0 | $90,000 | $90,000 |
| 2016 | $0 | $90,000 | $0 | $90,000 | $90,000 |
| 2015 | $0 | $121,920 | $0 | $121,920 | $121,920 |
| 2014 | $0 | $121,920 | $0 | $121,920 | $121,920 |
| 2013 | $0 | $121,920 | $0 | $121,920 | $121,920 |
| 2012 | $0 | $121,920 | $0 | $121,920 | $121,920 |
| 2011 | $0 | $121,920 | $0 | $121,920 | $121,920 |
| 2010 | $0 | $121,920 | $0 | $121,920 | $121,920 |
| 2009 | $0 | $0 | $0 | $78,533 | $78,533 |
Deed and Sales History
| 1 | 07/23/2025 | QCD | Quit Claim Deed | STEINBERG, BENJAMIN | STEINBERG TTEE, BENJALMIN T | | | $0.00 | 64280 | 4588824 |
| 2 | 03/04/2023 | WD | Warranty Deed | SWESEL TTEE, DAVID A | STEINBERG, BENJAMIN | | | $1,079,000.00 | 56044 | 4557454 |
| 3 | 02/26/2019 | WD | Warranty Deed | GLASPY TTEE, JEFFREY R | SWESEL TTEE, DAVID A | | | $850,000.00 | 37732 | 4459845 |
| 4 | 01/17/2018 | QCD | Quit Claim Deed | GLASPY, JEFF | GLASPY TTEE, JEFFREY R | | | $0.00 | 33425 | 4441461 |
| 5 | 11/02/2016 | WD | Warranty Deed | MUELLER, RAYMOND D | GLASPY, JEFF | | | $135,000.00 | 26823 | 4410990 |
| 6 | 01/09/2015 | QCD | Quit Claim Deed | D & K DEVELOPMENT | MUELLER, RAYMOND D | | | | 18069 | 4370987 |
Payout Agreement
| No payout information available.. |