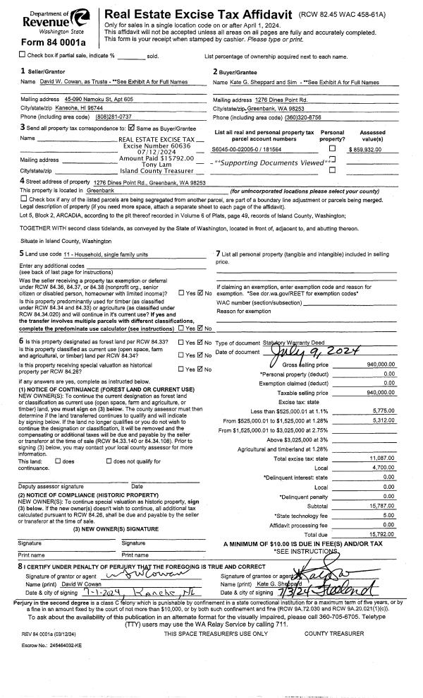
Property
Account |
| Property ID: | 810097 | Abbreviated Legal Description: | LOT 1 SP 355-07.13204-260-0350 AF#4264013 |
| Geographic ID: | R13204-269-0630 | Agent Code: | |
| Type: | Real | | |
| Tax Area: | 160 - APPRAISER-OH Schl Dist, Special Dist, improved & 1 acre or less | Land Use Code | 11 |
| Open Space: | N | DFL | N |
| Historic Property: | N | Remodel Property: | N |
| Multi-Family Redevelopment: | N | | |
| Township: | 32 | Section: | 04 |
| Range: | R1 |
Location |
| Address: | 1554 WEDGEWOOD LN OAK HARBOR, WA 98277 | Mapsco: | |
| Neighborhood: | Cycle 1 | Map ID: | 94 |
| Neighborhood CD: | 1 |
Owner |
| Name: | HOLDAAS, BENJIMAN A | Owner ID: | 282220 |
| Mailing Address: | EVA D HOLDAAS 1554 WEDGEWOOD LN OAK HARBOR, WA 98277 | % Ownership: | 100.0000000000% |
| | | Exemptions: | |
Taxes and Assessment Details
Values
| (+) Improvement Homesite Value: | + | $0 | |
| (+) Improvement Non-Homesite Value: | + | $447,036 | |
| (+) Land Homesite Value: | + | $0 | |
| (+) Land Non-Homesite Value: | + | $200,000 | |
| (+) Curr Use (HS): | + | $0 | $0 |
| (+) Curr Use (NHS): | + | $0 | $0 |
| | | -------------------------- | |
| (=) Market Value: | = | $647,036 | |
| (–) Productivity Loss: | – | $0 | |
| | | -------------------------- | |
| (=) Subtotal: | = | $647,036 | |
| (+) Senior Appraised Value: | + | $0 | |
| (+) Non-Senior Appraised Value: | + | $647,036 | |
| | | -------------------------- | |
| (=) Total Appraised Value: | = | $647,036 | |
| (–) Senior Exemption Loss: | – | $0 | |
| (–) Exemption Loss: | – | $0 | |
| | | -------------------------- | |
| (=) Taxable Value: | = | $647,036 | |
Taxing Jurisdiction
| Owner: | HOLDAAS, BENJIMAN A | | |
| % Ownership: | 100.0000000000% | | |
| Total Value: | $647,036 | | |
| Tax Area: | 160 - APPRAISER-OH Schl Dist, Special Dist, improved & 1 acre or less |
| CF | Conservation Futures | 0.0316035091 | $647,036 | $647,036 | $20.45 | | |
| CEM1 | Cemetery #1 | 0.0040320932 | $647,036 | $647,036 | $2.61 | | |
| FIRE2 | Fire & Rescue Dist #2 N Whidbey GEN | 0.5475949600 | $647,036 | $647,036 | $354.31 | | |
| HOBOND | Hospital BOND | 0.1910887512 | $647,036 | $647,036 | $123.64 | | |
| HOGEN | Hospital GEN | 0.3902502903 | $647,036 | $647,036 | $252.51 | | |
| CE | County Current Expense | 0.3708482477 | $647,036 | $647,036 | $239.95 | | |
| CR | County Roads | 0.4584763726 | $647,036 | $647,036 | $296.65 | | |
| ISLANDEMS | Hospital GEN (EMS) | 0.5000000000 | $647,036 | $647,036 | $323.52 | | |
| LIB | Library Sno-Isle GEN | 0.3153421757 | $647,036 | $647,036 | $204.04 | | |
| NWHIDPRMT | P & R N Whidbey GEN | 0.2004466701 | $647,036 | $647,036 | $129.70 | | |
| SCH201MO | School 201 Enrichment | 1.8559231640 | $647,036 | $647,036 | $1,200.85 | | |
| ST | State School | 1.3035497053 | $647,036 | $647,036 | $843.44 | | |
| ST2 | State School Part 2 | 0.8169543533 | $647,036 | $647,036 | $528.60 | | |
| | Total Tax Rate: | 6.9861102925 | | | | | |
| | | | | Taxes w/Current Exemptions: | $4,520.27 | | |
| | | | | Taxes w/o Exemptions: | $4,520.27 | | |
Improvement / Building
| Improvement #1: | RESIDENTIAL | State Code: | Y | 2276.0 sqft | Value: | $447,036 |
| Bathrooms: | 3.5 | Bedrooms: | 3 | | Ceiling: | DRYWALL PAINTED | Cooling: | HEAT PUMP/CONV/V | | Exterior Wall/Cover: | CEMENT FIBER | Floor Covering: | HARDWOOD/CARP 20-80 | | Floor Structure: | WOOD W/SUBFLOOR | Foundation: | CONCRETE | | Interior Finish: | DRYWALL PAINT | Plumbing Fixture Cnt: | 17 | | Roof Slope: | 5" IN 12" | Roof Structure/Cover: | CJ ASPHALT |
|
| | Type | Description | Class CD | Sub Class CD | Year Built | Area |
| | BAS | BASE/MAIN FLOOR | 3 | 0 | 2017 | 1154.0 |
| | UPS | UPPER STORY | 3 | 0 | 2017 | 1122.0 |
| | AGR | ATTACHED GARAGE | 3 | 0 | 2017 | 506.0 |
| | OP4 | OPEN PORCH W/CEILING-ROOF | 3 | 0 | 2017 | 416.0 |
| | OWC | OPEN WOOD PORCH W/STEPS/ROOF/C | 3 | 0 | 2017 | 120.0 |
Sketch
Property Image
Land
| 1 | 15 | SQ (12001-21780) | 0.0000 | 14810.40 | 0.00 | 0.00 | 1.00 | $200,000 | $0 |
Roll Value History
| 2026 | N/A | N/A | N/A | N/A | N/A |
| 2025 | $447,036 | $200,000 | $0 | $647,036 | $647,036 |
| 2024 | $450,643 | $190,000 | $0 | $640,643 | $640,643 |
| 2023 | $447,036 | $180,000 | $0 | $627,036 | $627,036 |
| 2022 | $408,071 | $180,000 | $0 | $588,071 | $588,071 |
| 2021 | $357,694 | $135,000 | $0 | $492,694 | $492,694 |
| 2020 | $346,512 | $100,000 | $0 | $446,512 | $446,512 |
| 2019 | $258,453 | $150,000 | $0 | $408,453 | $408,453 |
| 2018 | $259,111 | $140,000 | $0 | $399,111 | $399,111 |
| 2017 | $105,216 | $70,000 | $0 | $175,216 | $175,216 |
| 2016 | $0 | $90,000 | $0 | $90,000 | $90,000 |
| 2015 | $0 | $65,000 | $0 | $65,000 | $65,000 |
| 2014 | $0 | $60,000 | $0 | $60,000 | $60,000 |
| 2013 | $0 | $51,000 | $0 | $51,000 | $51,000 |
| 2012 | $0 | $51,000 | $0 | $51,000 | $51,000 |
| 2011 | $0 | $60,000 | $0 | $60,000 | $60,000 |
| 2010 | $0 | $60,000 | $0 | $60,000 | $60,000 |
| 2009 | $0 | $0 | $0 | $32,050 | $32,050 |
Deed and Sales History
| 1 | 09/28/2017 | WD | Warranty Deed | ENCINAS CONSTRUCTION INC | HOLDAAS, BENJIMAN A | | | $434,900.00 | 31312 | 4431133 |
| 2 | 06/27/2016 | WD | Warranty Deed | THE LINN FAMILY REVOCABLE LIVING TRUST | ENCINAS CONSTRUCTION INC | | | $76,000.00 | 25013 | 4402195 |
| 3 | 11/18/2011 | QCD | Quit Claim Deed | LINN, CLAUD O | THE LINN FAMILY REVOCABLE LIVING TRUST | | | $0.00 | 6592 | 4307797 |
| 4 | 01/01/1900 | OTHER | Other - Misc. Documents | Unknown | LINN, CLAUD O | | | $0.00 | 0 | 0 |
Payout Agreement
| No payout information available.. |