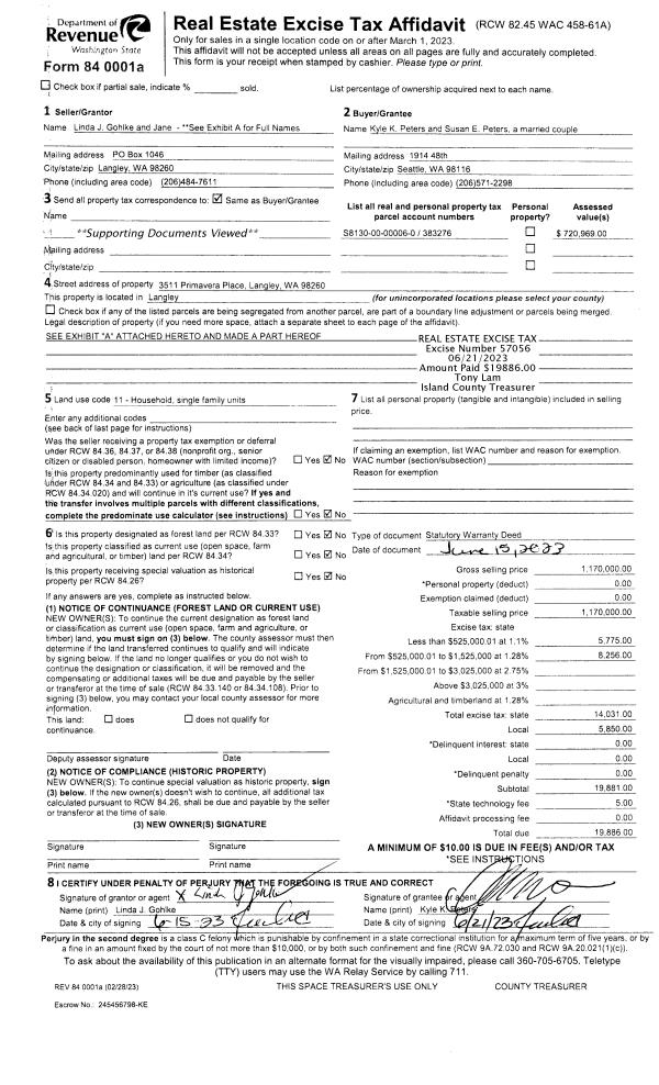
Property
Account |
| Property ID: | 810106 | Abbreviated Legal Description: | LOT 1 SP 309-04.23223-345-1640 AF#4266150 |
| Geographic ID: | R23223-337-1390 | Agent Code: | |
| Type: | Real | | |
| Tax Area: | 510 - APPRAISER-Stan/Cam Schl Dist, improved & 1 acre or less | Land Use Code | 11 |
| Open Space: | N | DFL | N |
| Historic Property: | N | Remodel Property: | N |
| Multi-Family Redevelopment: | N | | |
| Township: | 32 | Section: | 23 |
| Range: | R2 |
Location |
| Address: | 691 SEASIDE TERRACE CAMANO ISLAND, WA 98282 | Mapsco: | |
| Neighborhood: | North Camano | Map ID: | 556 |
| Neighborhood CD: | 06-C |
Owner |
| Name: | KREPELA JR, ALDRICH J | Owner ID: | 263713 |
| Mailing Address: | JOANNE J KREPELA 691 SEASIDE TERRACE CAMANO ISLAND, WA 98282 | % Ownership: | 100.0000000000% |
| | | Exemptions: | |
Taxes and Assessment Details
Values
| (+) Improvement Homesite Value: | + | $0 | |
| (+) Improvement Non-Homesite Value: | + | $344,112 | |
| (+) Land Homesite Value: | + | $0 | |
| (+) Land Non-Homesite Value: | + | $260,000 | |
| (+) Curr Use (HS): | + | $0 | $0 |
| (+) Curr Use (NHS): | + | $0 | $0 |
| | | -------------------------- | |
| (=) Market Value: | = | $604,112 | |
| (–) Productivity Loss: | – | $0 | |
| | | -------------------------- | |
| (=) Subtotal: | = | $604,112 | |
| (+) Senior Appraised Value: | + | $0 | |
| (+) Non-Senior Appraised Value: | + | $604,112 | |
| | | -------------------------- | |
| (=) Total Appraised Value: | = | $604,112 | |
| (–) Senior Exemption Loss: | – | $0 | |
| (–) Exemption Loss: | – | $0 | |
| | | -------------------------- | |
| (=) Taxable Value: | = | $604,112 | |
Taxing Jurisdiction
| Owner: | KREPELA JR, ALDRICH J | | |
| % Ownership: | 100.0000000000% | | |
| Total Value: | $604,112 | | |
| Tax Area: | 510 - APPRAISER-Stan/Cam Schl Dist, improved & 1 acre or less |
| CF | Conservation Futures | 0.0316035091 | $604,112 | $604,112 | $19.09 | | |
| EMS1 | Fire & Rescue Dist #1 Camano GEN (EMS) | 0.3677864386 | $604,112 | $604,112 | $222.18 | | |
| FIRE1 | Fire & Rescue Dist #1 Camano GEN | 1.2502910536 | $604,112 | $604,112 | $755.32 | | |
| FIRE1BOND | Fire & Rescue Dist #1 Camano BOND | 0.1570001679 | $604,112 | $604,112 | $94.85 | | |
| CE | County Current Expense | 0.3708482477 | $604,112 | $604,112 | $224.03 | | |
| CR | County Roads | 0.4584763726 | $604,112 | $604,112 | $276.97 | | |
| LCIB | Library Sno-Isle BOND (Camano Island) | 0.0396325772 | $604,112 | $604,112 | $23.94 | | |
| LIB | Library Sno-Isle GEN | 0.3153421757 | $604,112 | $604,112 | $190.50 | | |
| SCH205_401 | School 205-401 Enrichment | 1.2698420524 | $604,112 | $604,112 | $767.13 | | |
| SCH205BOND | School 205-401 BOND | 0.9396497583 | $604,112 | $604,112 | $567.65 | | |
| ST | State School | 1.3035497053 | $604,112 | $604,112 | $787.49 | | |
| ST2 | State School Part 2 | 0.8169543533 | $604,112 | $604,112 | $493.53 | | |
| | Total Tax Rate: | 7.3209764117 | | | | | |
| | | | | Taxes w/Current Exemptions: | $4,422.68 | | |
| | | | | Taxes w/o Exemptions: | $4,422.68 | | |
Improvement / Building
| Improvement #1: | RESIDENTIAL | State Code: | A1 | 1762.8 sqft | Value: | $344,112 |
| Bathrooms: | 2 | Bedrooms: | 3 | | Ceiling: | DRYWALL PAINTED | Exterior Wall/Cover: | CEMENT FIBER | | Floor Covering: | HARDWOOD/CARP 60-40 | Floor Structure: | WOOD W/SUBFLOOR | | Foundation: | CONCRETE | Heating: | FHA GAS | | Interior Finish: | DRYWALL PAINT | Plumbing Fixture Cnt: | 11 | | Roof Slope: | 5" IN 12" | Roof Structure/Cover: | CJ ASPHALT |
|
| | Type | Description | Class CD | Sub Class CD | Year Built | Area |
| | BAS | BASE/MAIN FLOOR | 3 | 0 | 2011 | 1762.8 |
| | AGR | ATTACHED GARAGE | 3 | 0 | 2011 | 484.0 |
| | OWP | OPEN WOOD PORCH W/STEPS | 3 | 0 | 2011 | 315.8 |
| | OP4 | OPEN PORCH W/CEILING-ROOF | 3 | 0 | 2011 | 44.0 |
Sketch
Property Image
Land
| 1 | 15 | SQ (12001-21780) | 0.0000 | 0.00 | 0.00 | 0.00 | 1.00 | $260,000 | $0 |
Roll Value History
| 2026 | N/A | N/A | N/A | N/A | N/A |
| 2025 | $344,112 | $260,000 | $0 | $604,112 | $604,112 |
| 2024 | $346,765 | $250,000 | $0 | $596,765 | $596,765 |
| 2023 | $349,607 | $250,000 | $0 | $599,607 | $599,607 |
| 2022 | $306,269 | $210,000 | $0 | $516,269 | $516,269 |
| 2021 | $268,566 | $160,000 | $0 | $428,566 | $428,566 |
| 2020 | $260,837 | $130,000 | $0 | $390,837 | $390,837 |
| 2019 | $193,051 | $170,000 | $0 | $363,051 | $363,051 |
| 2018 | $193,575 | $120,000 | $0 | $313,575 | $313,575 |
| 2017 | $194,621 | $120,000 | $0 | $314,621 | $314,621 |
| 2016 | $207,499 | $110,000 | $0 | $317,499 | $317,499 |
| 2015 | $209,708 | $100,000 | $0 | $309,708 | $309,708 |
| 2014 | $211,915 | $80,000 | $0 | $291,915 | $291,915 |
| 2013 | $214,122 | $80,000 | $0 | $294,122 | $294,122 |
| 2012 | $216,329 | $80,000 | $0 | $296,329 | $296,329 |
| 2011 | $220,744 | $80,000 | $0 | $300,744 | $300,744 |
| 2010 | $0 | $46,500 | $0 | $46,500 | $46,500 |
| 2009 | $0 | $28,169 | $0 | $28,169 | $28,169 |
Deed and Sales History
| 1 | 09/16/2013 | BARGSLD | Bargain And Sale Deed | WASHINGTON FEDERAL SAVINGS | KREPELA JR, ALDRICH J | | | $270,000.00 | 12796 | 4348126 |
| 2 | 03/06/2013 | TRUSTEED | Trustee's Deed | DAVIS, CHAD J | WASHINGTON FEDERAL SAVINGS | | | $313,167.00 | 10647 | 4335168 |
| 3 | 01/01/1900 | OTHER | Other - Misc. Documents | Unknown | DAVIS, CHAD J | | | $0.00 | 0 | 0 |
Payout Agreement
| No payout information available.. |