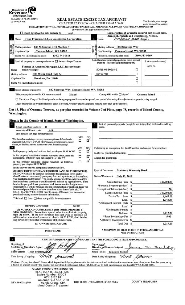
Property
Account |
| Property ID: | 810107 | Abbreviated Legal Description: | LOT 2 SP 309-04.23223-345-1640 AF#4266150 |
| Geographic ID: | R23223-339-1490 | Agent Code: | |
| Type: | Real | | |
| Tax Area: | 510 - APPRAISER-Stan/Cam Schl Dist, improved & 1 acre or less | Land Use Code | 11 |
| Open Space: | N | DFL | N |
| Historic Property: | N | Remodel Property: | N |
| Multi-Family Redevelopment: | N | | |
| Township: | 32 | Section: | 23 |
| Range: | R2 |
Location |
| Address: | 685 SEASIDE TERRACE CAMANO ISLAND, WA 98282 | Mapsco: | |
| Neighborhood: | North Camano | Map ID: | 556 |
| Neighborhood CD: | 06-C |
Owner |
| Name: | COUSINEAU TTEE, D ROBERT | Owner ID: | 284578 |
| Mailing Address: | ELIZABETH COUSINEAU TTEE 685 SEASIDE TER CAMANO ISLAND, WA 98282 | % Ownership: | 100.0000000000% |
| | | Exemptions: | |
Taxes and Assessment Details
Values
| (+) Improvement Homesite Value: | + | $0 | |
| (+) Improvement Non-Homesite Value: | + | $360,188 | |
| (+) Land Homesite Value: | + | $0 | |
| (+) Land Non-Homesite Value: | + | $260,000 | |
| (+) Curr Use (HS): | + | $0 | $0 |
| (+) Curr Use (NHS): | + | $0 | $0 |
| | | -------------------------- | |
| (=) Market Value: | = | $620,188 | |
| (–) Productivity Loss: | – | $0 | |
| | | -------------------------- | |
| (=) Subtotal: | = | $620,188 | |
| (+) Senior Appraised Value: | + | $0 | |
| (+) Non-Senior Appraised Value: | + | $620,188 | |
| | | -------------------------- | |
| (=) Total Appraised Value: | = | $620,188 | |
| (–) Senior Exemption Loss: | – | $0 | |
| (–) Exemption Loss: | – | $0 | |
| | | -------------------------- | |
| (=) Taxable Value: | = | $620,188 | |
Taxing Jurisdiction
| Owner: | COUSINEAU TTEE, D ROBERT | | |
| % Ownership: | 100.0000000000% | | |
| Total Value: | $620,188 | | |
| Tax Area: | 510 - APPRAISER-Stan/Cam Schl Dist, improved & 1 acre or less |
| CF | Conservation Futures | 0.0316035091 | $620,188 | $620,188 | $19.60 | | |
| EMS1 | Fire & Rescue Dist #1 Camano GEN (EMS) | 0.3677864386 | $620,188 | $620,188 | $228.10 | | |
| FIRE1 | Fire & Rescue Dist #1 Camano GEN | 1.2502910536 | $620,188 | $620,188 | $775.42 | | |
| FIRE1BOND | Fire & Rescue Dist #1 Camano BOND | 0.1570001679 | $620,188 | $620,188 | $97.37 | | |
| CE | County Current Expense | 0.3708482477 | $620,188 | $620,188 | $230.00 | | |
| CR | County Roads | 0.4584763726 | $620,188 | $620,188 | $284.34 | | |
| LCIB | Library Sno-Isle BOND (Camano Island) | 0.0396325772 | $620,188 | $620,188 | $24.58 | | |
| LIB | Library Sno-Isle GEN | 0.3153421757 | $620,188 | $620,188 | $195.57 | | |
| SCH205_401 | School 205-401 Enrichment | 1.2698420524 | $620,188 | $620,188 | $787.54 | | |
| SCH205BOND | School 205-401 BOND | 0.9396497583 | $620,188 | $620,188 | $582.76 | | |
| ST | State School | 1.3035497053 | $620,188 | $620,188 | $808.45 | | |
| ST2 | State School Part 2 | 0.8169543533 | $620,188 | $620,188 | $506.67 | | |
| | Total Tax Rate: | 7.3209764117 | | | | | |
| | | | | Taxes w/Current Exemptions: | $4,540.40 | | |
| | | | | Taxes w/o Exemptions: | $4,540.40 | | |
Improvement / Building
| Improvement #1: | RESIDENTIAL | State Code: | Y | 1710.5 sqft | Value: | $360,188 |
| Bathrooms: | 2 | Bedrooms: | 2 | | Ceiling: | DRYWALL PAINTED | Cooling: | HEAT PUMP/CONV/V | | Exterior Wall/Cover: | CEMENT FIBER | Floor Covering: | CERAMIC TILE/CPT 40-60 | | Floor Structure: | WOOD W/SUBFLOOR | Foundation: | CONCRETE | | Interior Finish: | DRYWALL PAINT | Plumbing Fixture Cnt: | 9 | | Roof Slope: | 5" IN 12" | Roof Structure/Cover: | CJ ASPHALT |
|
| | Type | Description | Class CD | Sub Class CD | Year Built | Area |
| | BAS | BASE/MAIN FLOOR | 3 | 0 | 2010 | 1710.5 |
| | AGR | ATTACHED GARAGE | 3 | 0 | 2010 | 748.0 |
| | OWC | OPEN WOOD PORCH W/STEPS/ROOF/C | 3 | 0 | 2010 | 411.0 |
Sketch
Property Image
Land
| 1 | 15 | SQ (12001-21780) | 0.0000 | 0.00 | 0.00 | 0.00 | 1.00 | $260,000 | $0 |
Roll Value History
| 2026 | N/A | N/A | N/A | N/A | N/A |
| 2025 | $360,188 | $260,000 | $0 | $620,188 | $620,188 |
| 2024 | $363,390 | $250,000 | $0 | $613,390 | $613,390 |
| 2023 | $366,191 | $250,000 | $0 | $616,191 | $616,191 |
| 2022 | $319,825 | $210,000 | $0 | $529,825 | $529,825 |
| 2021 | $281,262 | $160,000 | $0 | $441,262 | $441,262 |
| 2020 | $273,369 | $130,000 | $0 | $403,369 | $403,369 |
| 2019 | $202,339 | $170,000 | $0 | $372,339 | $372,339 |
| 2018 | $202,894 | $120,000 | $0 | $322,894 | $322,894 |
| 2017 | $204,003 | $120,000 | $0 | $324,003 | $324,003 |
| 2016 | $200,522 | $110,000 | $0 | $310,522 | $310,522 |
| 2015 | $202,677 | $100,000 | $0 | $302,677 | $302,677 |
| 2014 | $204,835 | $80,000 | $0 | $284,835 | $284,835 |
| 2013 | $206,990 | $64,000 | $0 | $270,990 | $270,990 |
| 2012 | $209,146 | $64,000 | $0 | $273,146 | $273,146 |
| 2011 | $211,302 | $80,000 | $0 | $291,302 | $291,302 |
| 2010 | $166,702 | $46,500 | $0 | $213,202 | $213,202 |
| 2009 | $0 | $28,169 | $0 | $28,169 | $28,169 |
Deed and Sales History
| 1 | 04/04/2018 | QCD | Quit Claim Deed | COUSINEAU, ROBERT D | COUSINEAU TTEE, D ROBERT | | | $0.00 | 33656 | 4442522 |
| 2 | 04/04/2016 | WD | Warranty Deed | OSBORNE UNDIV 50% INT, TILMON L | COUSINEAU, ROBERT D | | | $319,950.00 | 23834 | 4397923 |
| 3 | 02/25/2010 | WD | Warranty Deed | DAVIS, CHAD J | OSBORNE UNDIV 50% INT, TILMON | | | $98,890.00 | 511 | 4269801 |
| 4 | 01/01/1900 | OTHER | Other - Misc. Documents | Unknown | DAVIS, CHAD J | | | $0.00 | 0 | 0 |
Payout Agreement
| No payout information available.. |