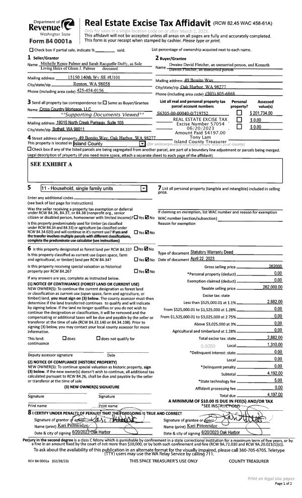
Property
Account |
| Property ID: | 810109 | Abbreviated Legal Description: | LOT 4 SP 309-04.23223-345-1640 AF#4266150 |
| Geographic ID: | R23223-345-1800 | Agent Code: | |
| Type: | Real | | |
| Tax Area: | 512 - APPRAISER-Stan/Cam Schl Dist, improved, greater than 1 acre | Land Use Code | 11 |
| Open Space: | N | DFL | N |
| Historic Property: | N | Remodel Property: | N |
| Multi-Family Redevelopment: | N | | |
| Township: | 32 | Section: | 23 |
| Range: | R2 |
Location |
| Address: | 667 SEASIDE TERRACE CAMANO ISLAND, WA 98282 | Mapsco: | |
| Neighborhood: | North Camano | Map ID: | 556 |
| Neighborhood CD: | 06-C |
Owner |
| Name: | CAMANO HOLDINGS, LLC | Owner ID: | 272807 |
| Mailing Address: | 778 MAPLE GROVE RD CAMANO ISLAND, WA 98282 | % Ownership: | 100.0000000000% |
| | | Exemptions: | |
Taxes and Assessment Details
Values
| (+) Improvement Homesite Value: | + | $0 | |
| (+) Improvement Non-Homesite Value: | + | $307,171 | |
| (+) Land Homesite Value: | + | $0 | |
| (+) Land Non-Homesite Value: | + | $305,000 | |
| (+) Curr Use (HS): | + | $0 | $0 |
| (+) Curr Use (NHS): | + | $0 | $0 |
| | | -------------------------- | |
| (=) Market Value: | = | $612,171 | |
| (–) Productivity Loss: | – | $0 | |
| | | -------------------------- | |
| (=) Subtotal: | = | $612,171 | |
| (+) Senior Appraised Value: | + | $0 | |
| (+) Non-Senior Appraised Value: | + | $612,171 | |
| | | -------------------------- | |
| (=) Total Appraised Value: | = | $612,171 | |
| (–) Senior Exemption Loss: | – | $0 | |
| (–) Exemption Loss: | – | $0 | |
| | | -------------------------- | |
| (=) Taxable Value: | = | $612,171 | |
Taxing Jurisdiction
| Owner: | CAMANO HOLDINGS, LLC | | |
| % Ownership: | 100.0000000000% | | |
| Total Value: | $612,171 | | |
| Tax Area: | 512 - APPRAISER-Stan/Cam Schl Dist, improved, greater than 1 acre |
| CF | Conservation Futures | 0.0316035091 | $612,171 | $612,171 | $19.35 | | |
| EMS1 | Fire & Rescue Dist #1 Camano GEN (EMS) | 0.3677864386 | $612,171 | $612,171 | $225.15 | | |
| FIRE1 | Fire & Rescue Dist #1 Camano GEN | 1.2502910536 | $612,171 | $612,171 | $765.39 | | |
| FIRE1BOND | Fire & Rescue Dist #1 Camano BOND | 0.1570001679 | $612,171 | $612,171 | $96.11 | | |
| CE | County Current Expense | 0.3708482477 | $612,171 | $612,171 | $227.02 | | |
| CR | County Roads | 0.4584763726 | $612,171 | $612,171 | $280.67 | | |
| LCIB | Library Sno-Isle BOND (Camano Island) | 0.0396325772 | $612,171 | $612,171 | $24.26 | | |
| LIB | Library Sno-Isle GEN | 0.3153421757 | $612,171 | $612,171 | $193.04 | | |
| SCH205_401 | School 205-401 Enrichment | 1.2698420524 | $612,171 | $612,171 | $777.36 | | |
| SCH205BOND | School 205-401 BOND | 0.9396497583 | $612,171 | $612,171 | $575.23 | | |
| ST | State School | 1.3035497053 | $612,171 | $612,171 | $798.00 | | |
| ST2 | State School Part 2 | 0.8169543533 | $612,171 | $612,171 | $500.12 | | |
| | Total Tax Rate: | 7.3209764117 | | | | | |
| | | | | Taxes w/Current Exemptions: | $4,481.70 | | |
| | | | | Taxes w/o Exemptions: | $4,481.70 | | |
Improvement / Building
| Improvement #1: | RESIDENTIAL | State Code: | Y | 624.0 sqft | Value: | $307,171 |
| Bathrooms: | 1 | Bedrooms: | 1 | | Ceiling: | DRYWALL PAINTED | Exterior Wall/Cover: | CEMENT FIBER | | Floor Covering: | HARDWOOD 100% | Floor Structure: | SLAB ON GRADE | | Foundation: | CONCRETE | Heating: | WALL HEAT ELECTRIC | | Interior Finish: | DRYWALL PAINT | Plumbing Fixture Cnt: | 9 | | Roof Slope: | 6" IN 12" | Roof Structure/Cover: | CJ ASPHALT |
|
| | Type | Description | Class CD | Sub Class CD | Year Built | Area |
| | BAS | BASE/MAIN FLOOR | 3 | 0 | 2015 | 624.0 |
| | oPOL | POLE BARN | 3 | 0 | 2015 | 2304.0 |
| | CPD | OPEN CARPORT DIRT FLOOR | 3 | 0 | 2015 | 672.0 |
| | OWC | OPEN WOOD PORCH W/STEPS/ROOF/C | 3 | 0 | 2015 | 208.0 |
| | CPD | OPEN CARPORT DIRT FLOOR | 2 | 0 | 2015 | 360.0 |
| | UTY | STORAGE/UTILITY | 2 | 0 | 2015 | 300.0 |
| | UTY | STORAGE/UTILITY | 3 | 0 | 2015 | 200.0 |
Sketch
Property Image
Land
| 1 | 17 | AC (01.01-02.00) | 0.0000 | 0.00 | 0.00 | 0.00 | 1.00 | $305,000 | $0 |
Roll Value History
| 2026 | N/A | N/A | N/A | N/A | N/A |
| 2025 | $307,171 | $305,000 | $0 | $612,171 | $612,171 |
| 2024 | $308,999 | $290,000 | $0 | $598,999 | $598,999 |
| 2023 | $310,825 | $290,000 | $0 | $600,825 | $600,825 |
| 2022 | $237,788 | $260,000 | $0 | $497,788 | $497,788 |
| 2021 | $216,978 | $230,000 | $0 | $446,978 | $446,978 |
| 2020 | $211,379 | $150,000 | $0 | $361,379 | $361,379 |
| 2019 | $167,147 | $180,000 | $0 | $347,147 | $347,147 |
| 2018 | $167,402 | $150,000 | $0 | $317,402 | $317,402 |
| 2017 | $167,912 | $120,000 | $0 | $287,912 | $287,912 |
| 2016 | $193,137 | $110,000 | $0 | $303,137 | $303,137 |
| 2015 | $92,780 | $100,000 | $0 | $192,780 | $192,780 |
| 2014 | $40,000 | $80,000 | $0 | $120,000 | $120,000 |
| 2013 | $4,000 | $80,000 | $0 | $84,000 | $84,000 |
| 2012 | $4,000 | $80,000 | $0 | $84,000 | $84,000 |
| 2011 | $4,000 | $80,000 | $0 | $84,000 | $84,000 |
| 2010 | $4,000 | $80,000 | $0 | $84,000 | $84,000 |
| 2009 | $4,000 | $75,493 | $0 | $79,493 | $79,493 |
Deed and Sales History
| 1 | 11/13/2015 | QCD | Quit Claim Deed | GIBBS, GARY | CAMANO HOLDINGS, LLC | | | $0.00 | 22224 | 4389806 |
| 2 | 04/05/2013 | WD | Warranty Deed | DAVIS, CHAD J | GIBBS, GARY | | | $120,000.00 | 10967 | 4337386 |
|   | |
| 3 | 01/01/1900 | OTHER | Other - Misc. Documents | Unknown | DAVIS, CHAD J | | | $0.00 | 0 | 0 |
Payout Agreement
| No payout information available.. |