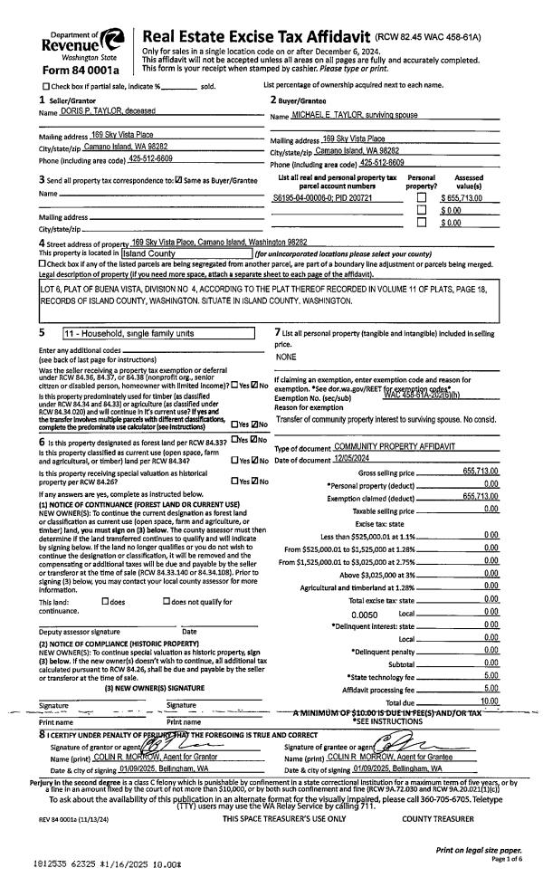
Property
Account |
| Property ID: | 810111 | Abbreviated Legal Description: | LOT 1 SP 246-08.23334-239-3610 AF#4266234 |
| Geographic ID: | R23334-255-3610 | Agent Code: | |
| Type: | Real | | |
| Tax Area: | 112 - APPRAISER-OH Schl Dist, outside OH, improved, greater than 1 acre | Land Use Code | 11 |
| Open Space: | N | DFL | N |
| Historic Property: | N | Remodel Property: | N |
| Multi-Family Redevelopment: | N | | |
| Township: | 33 | Section: | 34 |
| Range: | R2 |
Location |
| Address: | 2579 GREEN ACRES LN OAK HARBOR, WA 98277 | Mapsco: | |
| Neighborhood: | Cycle 6 | Map ID: | 656 |
| Neighborhood CD: | 6 |
Owner |
| Name: | ROBERTSON, DONALD G | Owner ID: | 311724 |
| Mailing Address: | 2579 GREEN ACRES LN OAK HARBOR, WA 98277 | % Ownership: | 100.0000000000% |
| | | Exemptions: | |
Taxes and Assessment Details
Values
| (+) Improvement Homesite Value: | + | $0 | |
| (+) Improvement Non-Homesite Value: | + | $167,764 | |
| (+) Land Homesite Value: | + | $0 | |
| (+) Land Non-Homesite Value: | + | $300,000 | |
| (+) Curr Use (HS): | + | $0 | $0 |
| (+) Curr Use (NHS): | + | $0 | $0 |
| | | -------------------------- | |
| (=) Market Value: | = | $467,764 | |
| (–) Productivity Loss: | – | $0 | |
| | | -------------------------- | |
| (=) Subtotal: | = | $467,764 | |
| (+) Senior Appraised Value: | + | $0 | |
| (+) Non-Senior Appraised Value: | + | $467,764 | |
| | | -------------------------- | |
| (=) Total Appraised Value: | = | $467,764 | |
| (–) Senior Exemption Loss: | – | $0 | |
| (–) Exemption Loss: | – | $0 | |
| | | -------------------------- | |
| (=) Taxable Value: | = | $467,764 | |
Taxing Jurisdiction
| Owner: | ROBERTSON, DONALD G | | |
| % Ownership: | 100.0000000000% | | |
| Total Value: | $467,764 | | |
| Tax Area: | 112 - APPRAISER-OH Schl Dist, outside OH, improved, greater than 1 acre |
| CF | Conservation Futures | 0.0316035091 | $467,764 | $467,764 | $14.78 | | |
| CEM1 | Cemetery #1 | 0.0040320932 | $467,764 | $467,764 | $1.89 | | |
| FIRE2 | Fire & Rescue Dist #2 N Whidbey GEN | 0.5475949600 | $467,764 | $467,764 | $256.15 | | |
| HOBOND | Hospital BOND | 0.1910887512 | $467,764 | $467,764 | $89.38 | | |
| HOGEN | Hospital GEN | 0.3902502903 | $467,764 | $467,764 | $182.55 | | |
| CE | County Current Expense | 0.3708482477 | $467,764 | $467,764 | $173.47 | | |
| CR | County Roads | 0.4584763726 | $467,764 | $467,764 | $214.46 | | |
| ISLANDEMS | Hospital GEN (EMS) | 0.5000000000 | $467,764 | $467,764 | $233.88 | | |
| LIB | Library Sno-Isle GEN | 0.3153421757 | $467,764 | $467,764 | $147.51 | | |
| NWHIDPRMT | P & R N Whidbey GEN | 0.2004466701 | $467,764 | $467,764 | $93.76 | | |
| SCH201MO | School 201 Enrichment | 1.8559231640 | $467,764 | $467,764 | $868.13 | | |
| ST | State School | 1.3035497053 | $467,764 | $467,764 | $609.75 | | |
| ST2 | State School Part 2 | 0.8169543533 | $467,764 | $467,764 | $382.14 | | |
| | Total Tax Rate: | 6.9861102925 | | | | | |
| | | | | Taxes w/Current Exemptions: | $3,267.85 | | |
| | | | | Taxes w/o Exemptions: | $3,267.85 | | |
Improvement / Building
| Improvement #1: | MANUFACTURED HOME | State Code: | Y | 2137.6 sqft | Value: | $167,764 |
| Bathrooms: | 2 | Bedrooms: | 3 | | Ceiling: | PLASTER PAINTED | Cooling: | EVAP NO DUCT | | Exterior Wall/Cover: | VINYL | Floor Covering: | CARPET 100% | | Floor Structure: | SLAB ON GRADE | Foundation: | SLAB | | Heating: | FHA ELECTRIC | Interior Finish: | PLASTER | | Plumbing Fixture Cnt: | 1 | Roof Slope: | FLAT | | Roof Structure/Cover: | CJ ALUMINIUM HEAVY |   |   |
|
| | Type | Description | Class CD | Sub Class CD | Year Built | Area |
| | BAS | BASE/MAIN FLOOR | 5 | 0 | 1991 | 2137.6 |
| | OWR | OPEN WOOD PORCH W/STEPS/ROOF | 5 | 0 | 1991 | 60.4 |
| | OWP | OPEN WOOD PORCH W/STEPS | 5 | 0 | 1991 | 28.0 |
| | UTY | STORAGE/UTILITY | 5 | 0 | 1991 | 100.0 |
Sketch
Property Image
Land
| 1 | 32 | AC (03.01-09.99) | 5.0200 | 0.00 | 0.00 | 0.00 | 1.00 | $300,000 | $0 |
Roll Value History
| 2026 | N/A | N/A | N/A | N/A | N/A |
| 2025 | $167,764 | $300,000 | $0 | $467,764 | $467,764 |
| 2024 | $170,095 | $280,000 | $0 | $450,095 | $450,095 |
| 2023 | $137,791 | $270,000 | $0 | $407,791 | $407,791 |
| 2022 | $95,530 | $240,000 | $0 | $335,530 | $335,530 |
| 2021 | $85,755 | $160,000 | $0 | $245,755 | $245,755 |
| 2020 | $85,832 | $140,000 | $0 | $225,832 | $225,832 |
| 2019 | $69,688 | $200,000 | $0 | $269,688 | $269,688 |
| 2018 | $71,738 | $170,000 | $0 | $241,738 | $241,738 |
| 2017 | $73,784 | $150,000 | $0 | $223,784 | $223,784 |
| 2016 | $72,856 | $140,000 | $0 | $212,856 | $212,856 |
| 2015 | $75,131 | $120,000 | $0 | $195,131 | $195,131 |
| 2014 | $112,698 | $75,000 | $0 | $187,698 | $187,698 |
| 2013 | $0 | $65,260 | $0 | $65,260 | $65,260 |
| 2012 | $0 | $100,400 | $0 | $100,400 | $100,400 |
| 2011 | $0 | $100,400 | $0 | $100,400 | $100,400 |
| 2010 | $0 | $100,400 | $0 | $100,400 | $100,400 |
Deed and Sales History
| 1 | 03/12/2024 | WD | Warranty Deed | DEANGELO, CASEY R | ROBERTSON, DONALD G | | | $455,000.00 | 59460 | 4570489 |
| 2 | 12/17/2014 | WD | Warranty Deed | WESTGATE MOBILE HOMES INC | DEANGELO, CASEY R | | | $219,000.00 | 17943 | 4370321 |
| 3 | 01/01/1900 | OTHER | Other - Misc. Documents | Unknown | WESTGATE MOBILE HOMES INC, | | | $0.00 | 0 | 0 |
Payout Agreement
| No payout information available.. |