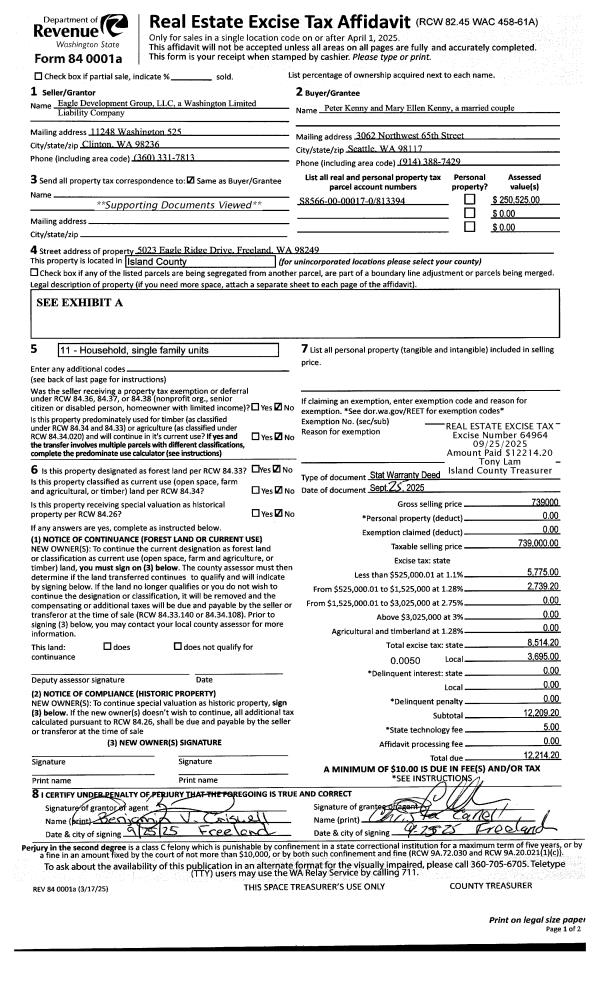
Property
Account |
| Property ID: | 810206 | Abbreviated Legal Description: | PT H CROCKETT DLC IN SE SEC 10 LY E OF EGGERMAN RD & S OF DESC: BG AT PT ON SEC LN 189.42' S OF 1/4 SEC COR BETWEEN SEC 10 & 11 N89*W 2017.60' S19*W 215.90' S23*W 240.90' S89*E 2187.88' N424.30' TPB EX S/2 SE SD SEC 10 ALSO EX PT TO ISLAND COUNTY FOR RD B |
| Geographic ID: | R13110-175-5020 | Agent Code: | |
| Type: | Real | | |
| Tax Area: | 312 - APPRAISER-Cpvl Schl Dist, outside Cpvl, improved, greater than 1 acre | Land Use Code | 11 |
| Open Space: | N | DFL | N |
| Historic Property: | N | Remodel Property: | N |
| Multi-Family Redevelopment: | N | | |
| Township: | 31 | Section: | 10 |
| Range: | R1 |
Location |
| Address: | 695 S EGGERMAN RD COUPEVILLE, WA 98239 | Mapsco: | |
| Neighborhood: | Cycle 2 | Map ID: | 47 |
| Neighborhood CD: | 2 |
Owner |
| Name: | PAZ, ALEJANDRO R ECHEVERRIA | Owner ID: | 292312 |
| Mailing Address: | IRENE A BRYANT 695 EGGERMAN RD COUPEVILLE, WA 98239 | % Ownership: | 100.0000000000% |
| | | Exemptions: | |
Taxes and Assessment Details
Values
| (+) Improvement Homesite Value: | + | $0 | |
| (+) Improvement Non-Homesite Value: | + | $442,862 | |
| (+) Land Homesite Value: | + | $0 | |
| (+) Land Non-Homesite Value: | + | $397,745 | |
| (+) Curr Use (HS): | + | $0 | $0 |
| (+) Curr Use (NHS): | + | $0 | $0 |
| | | -------------------------- | |
| (=) Market Value: | = | $840,607 | |
| (–) Productivity Loss: | – | $0 | |
| | | -------------------------- | |
| (=) Subtotal: | = | $840,607 | |
| (+) Senior Appraised Value: | + | $0 | |
| (+) Non-Senior Appraised Value: | + | $840,607 | |
| | | -------------------------- | |
| (=) Total Appraised Value: | = | $840,607 | |
| (–) Senior Exemption Loss: | – | $0 | |
| (–) Exemption Loss: | – | $0 | |
| | | -------------------------- | |
| (=) Taxable Value: | = | $840,607 | |
Taxing Jurisdiction
| Owner: | PAZ, ALEJANDRO R ECHEVERRIA | | |
| % Ownership: | 100.0000000000% | | |
| Total Value: | $840,607 | | |
| Tax Area: | 312 - APPRAISER-Cpvl Schl Dist, outside Cpvl, improved, greater than 1 acre |
| CF | Conservation Futures | 0.0316035091 | $840,607 | $840,607 | $26.57 | | |
| CEM2 | Cemetery #2 | 0.0095056933 | $840,607 | $840,607 | $7.99 | | |
| FIRE5 | Fire & Rescue Dist #5 C Whidbey GEN | 1.2008080668 | $840,607 | $840,607 | $1,009.41 | | |
| FIRE5BOND | Fire & Rescue Dist #5 C Whidbey BOND | 0.1400090713 | $840,607 | $840,607 | $117.69 | | |
| HOBOND | Hospital BOND | 0.1910887512 | $840,607 | $840,607 | $160.63 | | |
| HOGEN | Hospital GEN | 0.3902502903 | $840,607 | $840,607 | $328.05 | | |
| CE | County Current Expense | 0.3708482477 | $840,607 | $840,607 | $311.74 | | |
| CR | County Roads | 0.4584763726 | $840,607 | $840,607 | $385.40 | | |
| ISLANDEMS | Hospital GEN (EMS) | 0.5000000000 | $840,607 | $840,607 | $420.30 | | |
| LIB | Library Sno-Isle GEN | 0.3153421757 | $840,607 | $840,607 | $265.08 | | |
| LIBCAP | Library Sno-Isle BOND (Cap Fac Imp Area) | 0.0543427938 | $840,607 | $840,607 | $45.68 | | |
| POCOUP | Port of Coupeville GEN | 0.1093371703 | $840,607 | $840,607 | $91.91 | | |
| POCOUPIDD | Port of Coupeville IDD | 0.3409740022 | $840,607 | $840,607 | $286.63 | | |
| COUPSDTECH | School 204 CP (TECH) | 0.7545480007 | $840,607 | $840,607 | $634.28 | | |
| SCH204MO | School 204 Enrichment | 0.6716186034 | $840,607 | $840,607 | $564.57 | | |
| ST | State School | 1.3035497053 | $840,607 | $840,607 | $1,095.77 | | |
| ST2 | State School Part 2 | 0.8169543533 | $840,607 | $840,607 | $686.74 | | |
| | Total Tax Rate: | 7.6592568070 | | | | | |
| | | | | Taxes w/Current Exemptions: | $6,438.44 | | |
| | | | | Taxes w/o Exemptions: | $6,438.44 | | |
Improvement / Building
| Improvement #1: | RESIDENTIAL | State Code: | Y | 2672.2 sqft | Value: | $442,862 |
| Bathrooms: | 2.5 | Bedrooms: | 3 | | Ceiling: | DRYWALL PAINTED | Exterior Wall/Cover: | WOOD SIDING | | Floor Covering: | CARPET/VINYL 80-20 | Floor Structure: | WOOD W/SUBFLOOR | | Foundation: | CONCRETE | Heating: | BASEBOARD ELECTRIC | | Interior Finish: | DRYWALL PAINT | Plumbing Fixture Cnt: | 16 | | Roof Slope: | 5" IN 12" | Roof Structure/Cover: | BEAM ASPHALT |
|
| | Type | Description | Class CD | Sub Class CD | Year Built | Area |
| | BAS | BASE/MAIN FLOOR | 3 | 0 | 1988 | 2672.2 |
| | oPOL | POLE BARN | 3 | 0 | 1988 | 864.0 |
| | AGR | ATTACHED GARAGE | 3 | 0 | 1988 | 624.0 |
| | OWC | OPEN WOOD PORCH W/STEPS/ROOF/C | 3 | 0 | 1988 | 72.5 |
Sketch
Property Image
Land
| 1 | HS | HOMESITE | 1.0000 | 43560.00 | 0.00 | 0.00 | 1.00 | $340,000 | $0 |
| 2 | 91 | UNDEVELOPED LAND-METES AND BOUNDS | 8.6000 | 374616.00 | 0.00 | 0.00 | 1.00 | $57,745 | $0 |
Roll Value History
| 2026 | N/A | N/A | N/A | N/A | N/A |
| 2025 | $442,862 | $397,745 | $0 | $840,607 | $840,607 |
| 2024 | $442,560 | $360,000 | $0 | $802,560 | $802,560 |
| 2023 | $448,217 | $350,000 | $0 | $798,217 | $798,217 |
| 2022 | $410,966 | $310,000 | $0 | $720,966 | $720,966 |
| 2021 | $361,837 | $260,000 | $0 | $621,837 | $621,837 |
| 2020 | $352,731 | $240,000 | $0 | $592,731 | $592,731 |
| 2019 | $300,728 | $300,000 | $0 | $600,728 | $600,728 |
| 2018 | $265,847 | $250,000 | $0 | $515,847 | $515,847 |
| 2017 | $267,761 | $240,000 | $37,639 | $305,400 | $305,400 |
| 2016 | $271,584 | $240,000 | $37,639 | $309,223 | $309,223 |
| 2015 | $275,410 | $81,600 | $37,639 | $313,049 | $313,049 |
| 2014 | $279,234 | $81,600 | $37,639 | $316,873 | $316,873 |
| 2013 | $283,060 | $81,600 | $37,639 | $320,699 | $320,699 |
| 2012 | $298,752 | $81,600 | $37,639 | $336,391 | $336,391 |
| 2011 | $302,575 | $96,000 | $37,639 | $340,214 | $340,214 |
| 2010 | $317,767 | $96,000 | $37,639 | $355,406 | $355,406 |
| 2009 | $332,259 | $165,220 | $5,708 | $337,967 | $337,967 |
Deed and Sales History
| 1 | 10/17/2019 | WD | Warranty Deed | BOYER JR, FREEMAN E | PAZ, ALEJANDRO R ECHEVERRIA | | | $583,818.00 | 40792 | 4473903 |
| 2 | 10/05/2012 | ESTSEPPROP | Establish Separate Property | BOYER JR, FREEMAN E | BOYER JR, FREEMAN E | | | $0.00 | 9213 | 4325565 |
| 3 | 06/21/2010 | BLA | DNU - Boundary Line Adjustment | Unknown | POPE TRUSTEE OF, GAIL B | | | $0.00 | 81770 | 4265297 |
Payout Agreement
| No payout information available.. |