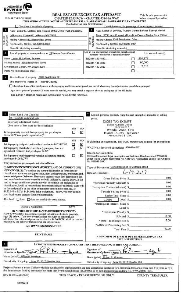
Property
Account |
| Property ID: | 810250 | Abbreviated Legal Description: | FROSTAD ROAD - ASSESSORS PLAT LOT 3 48 - IN GL3: BG SWCR GL3 E165' N TO SLN CO RD W ALG RD TO WLN GL3 S TPB EZ PUGET SOUND POWER & LIGHT AF#364655 |
| Geographic ID: | S8542-00-00003-0 | Agent Code: | |
| Type: | Real | | |
| Tax Area: | 112 - APPRAISER-OH Schl Dist, outside OH, improved, greater than 1 acre | Land Use Code | 11 |
| Open Space: | N | DFL | N |
| Historic Property: | N | Remodel Property: | N |
| Multi-Family Redevelopment: | N | | |
| Township: | | Section: | |
| Range: | |
Location |
| Address: | 106 E FROSTAD RD OAK HARBOR, WA 98277 | Mapsco: | |
| Neighborhood: | Cycle 6 | Map ID: | 606 |
| Neighborhood CD: | 6 |
Owner |
| Name: | KENT, NADIA V | Owner ID: | 313932 |
| Mailing Address: | JAMES KENT 106 E FROSTAD RD OAK HARBOR, WA 98277 | % Ownership: | 100.0000000000% |
| | | Exemptions: | |
Taxes and Assessment Details
Values
| (+) Improvement Homesite Value: | + | $0 | |
| (+) Improvement Non-Homesite Value: | + | $211,218 | |
| (+) Land Homesite Value: | + | $0 | |
| (+) Land Non-Homesite Value: | + | $260,000 | |
| (+) Curr Use (HS): | + | $0 | $0 |
| (+) Curr Use (NHS): | + | $0 | $0 |
| | | -------------------------- | |
| (=) Market Value: | = | $471,218 | |
| (–) Productivity Loss: | – | $0 | |
| | | -------------------------- | |
| (=) Subtotal: | = | $471,218 | |
| (+) Senior Appraised Value: | + | $0 | |
| (+) Non-Senior Appraised Value: | + | $471,218 | |
| | | -------------------------- | |
| (=) Total Appraised Value: | = | $471,218 | |
| (–) Senior Exemption Loss: | – | $0 | |
| (–) Exemption Loss: | – | $0 | |
| | | -------------------------- | |
| (=) Taxable Value: | = | $471,218 | |
Taxing Jurisdiction
| Owner: | KENT, NADIA V | | |
| % Ownership: | 100.0000000000% | | |
| Total Value: | $471,218 | | |
| Tax Area: | 112 - APPRAISER-OH Schl Dist, outside OH, improved, greater than 1 acre |
| CF | Conservation Futures | 0.0316035091 | $471,218 | $471,218 | $14.89 | | |
| CEM1 | Cemetery #1 | 0.0040320932 | $471,218 | $471,218 | $1.90 | | |
| FIRE2 | Fire & Rescue Dist #2 N Whidbey GEN | 0.5475949600 | $471,218 | $471,218 | $258.04 | | |
| HOBOND | Hospital BOND | 0.1910887512 | $471,218 | $471,218 | $90.04 | | |
| HOGEN | Hospital GEN | 0.3902502903 | $471,218 | $471,218 | $183.89 | | |
| CE | County Current Expense | 0.3708482477 | $471,218 | $471,218 | $174.75 | | |
| CR | County Roads | 0.4584763726 | $471,218 | $471,218 | $216.04 | | |
| ISLANDEMS | Hospital GEN (EMS) | 0.5000000000 | $471,218 | $471,218 | $235.61 | | |
| LIB | Library Sno-Isle GEN | 0.3153421757 | $471,218 | $471,218 | $148.59 | | |
| NWHIDPRMT | P & R N Whidbey GEN | 0.2004466701 | $471,218 | $471,218 | $94.45 | | |
| SCH201MO | School 201 Enrichment | 1.8559231640 | $471,218 | $471,218 | $874.54 | | |
| ST | State School | 1.3035497053 | $471,218 | $471,218 | $614.26 | | |
| ST2 | State School Part 2 | 0.8169543533 | $471,218 | $471,218 | $384.96 | | |
| | Total Tax Rate: | 6.9861102925 | | | | | |
| | | | | Taxes w/Current Exemptions: | $3,291.96 | | |
| | | | | Taxes w/o Exemptions: | $3,291.96 | | |
Improvement / Building
| Improvement #1: | RESIDENTIAL | State Code: | Y | 1237.2 sqft | Value: | $211,218 |
| Bathrooms: | 1 | Bedrooms: | 3 | | Ceiling: | DRY WALL SPRAYED | Exterior Wall/Cover: | PLY/HARDBOARD T-111 | | Floor Covering: | CARPET/VINYL 80-20 | Floor Structure: | WOOD W/SUBFLOOR | | Foundation: | CONCRETE | Heating: | FHA GAS | | Interior Finish: | DRYWALL PAINT | Plumbing Fixture Cnt: | 8 | | Roof Slope: | 6" IN 12" | Roof Structure/Cover: | CJ ASPHALT |
|
| | Type | Description | Class CD | Sub Class CD | Year Built | Area |
| | BAS | BASE/MAIN FLOOR | 3 | 0 | 1923 | 814.2 |
| | OWP | OPEN WOOD PORCH W/STEPS | 3 | 0 | 1923 | 395.4 |
| | UPH | HALF STORY | 3 | 0 | 1923 | 423.0 |
| | DGR | DETACHED GARAGE | 3 | 0 | 1923 | 720.0 |
Sketch
Property Image
Land
| 1 | 17 | AC (01.01-02.00) | 1.1100 | 48351.60 | 0.00 | 0.00 | 1.00 | $260,000 | $0 |
Roll Value History
| 2026 | N/A | N/A | N/A | N/A | N/A |
| 2025 | $211,218 | $260,000 | $0 | $471,218 | $471,218 |
| 2024 | $192,512 | $220,000 | $0 | $412,512 | $412,512 |
| 2023 | $195,418 | $220,000 | $0 | $415,418 | $415,418 |
| 2022 | $185,322 | $220,000 | $0 | $405,322 | $405,322 |
| 2021 | $163,510 | $160,000 | $0 | $323,510 | $323,510 |
| 2020 | $159,757 | $160,000 | $0 | $319,757 | $319,757 |
| 2019 | $115,400 | $180,000 | $0 | $295,400 | $295,400 |
| 2018 | $115,804 | $150,000 | $0 | $265,804 | $265,804 |
| 2017 | $116,614 | $125,000 | $0 | $241,614 | $241,614 |
| 2016 | $115,752 | $120,000 | $0 | $235,752 | $235,752 |
| 2015 | $117,133 | $130,000 | $0 | $247,133 | $247,133 |
| 2014 | $118,512 | $100,000 | $0 | $218,512 | $218,512 |
| 2013 | $125,893 | $80,750 | $0 | $206,643 | $206,643 |
| 2012 | $127,274 | $80,750 | $0 | $208,024 | $208,024 |
| 2011 | $128,653 | $95,000 | $0 | $223,653 | $223,653 |
| 2010 | $135,620 | $95,000 | $0 | $230,620 | $230,620 |
Deed and Sales History
| 1 | 09/17/2024 | WD | Warranty Deed | HUCKE, STEVE | KENT, NADIA V | | | $480,000.00 | 61314 | 4577275 |
| 2 | 08/30/2023 | WD | Warranty Deed | MABE, JONATHAN | HUCKE, STEVE | | | $420,000.00 | 57879 | 4564341 |
| 3 | 11/14/2017 | WD | Warranty Deed | CARSON, SCOTT | MABE, JONATHAN | | | $265,000.00 | 31953 | 4434336 |
| 4 | 05/05/2017 | TRUSTEED | Trustee's Deed | WARD, WILLIAM B | CARSON, SCOTT | | | $195,500.00 | 29194 | 4422098 |
| 5 | 01/01/1900 | OTHER | Other - Misc. Documents | Unknown | WARD, WILLIAM B | | | $0.00 | 0 | 0 |
Payout Agreement
| No payout information available.. |